Property
Account |
| Property ID: | 42898 | Abbreviated Legal Description: | 33-7-37 TAX 8A |
| Parcel Number: | 370733210010 | Agent Code: | |
| Type: | Real | | |
| Tax Area: | 101 - 140-4 | Land Use Code | 83 |
| Open Space: | Y | DFL | N |
| Historic Property: | N | Remodel Property: | N |
| Multi-Family Redevelopment: | N | | |
| Township: | 7 | Section: | 33 |
| Range: | 37 |
Location |
| Address: | | Mapsco: | |
| Neighborhood: | 0 Farm | Map ID: | |
| Neighborhood CD: | 4240 |
Owner |
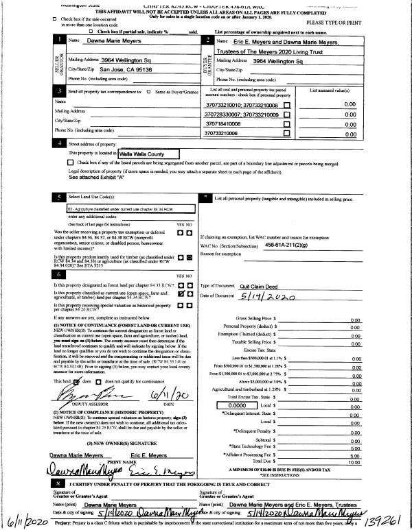
| Name: | MEYERS 2020 LIVING TRUST | Owner ID: | 67349 |
| Mailing Address: | 3964 WELLINGTON SQ SAN JOSE, CA 95136 | % Ownership: | 50.0000000000% |
| | | Exemptions: | |
Taxes and Assessment Details
Values
| (+) Improvement Homesite Value: | + | $0 | |
| (+) Improvement Non-Homesite Value: | + | $0 | |
| (+) Land Homesite Value: | + | $0 | |
| (+) Land Non-Homesite Value: | + | $0 | |
| (+) Curr Use (HS): | + | $0 | $0 |
| (+) Curr Use (NHS): | + | $3,555 | $1,240 |
| | | -------------------------- | |
| (=) Market Value: | = | $3,555 | |
| (–) Productivity Loss: | – | $2,315 | |
| | | -------------------------- | |
| (=) Subtotal: | = | $1,240 | |
| (+) Senior Appraised Value: | + | $0 | |
| (+) Non-Senior Appraised Value: | + | $1,240 | |
| | | -------------------------- | |
| (=) Total Appraised Value: | = | $1,240 | |
| (–) Senior Exemption Loss: | – | $0 | |
| (–) Exemption Loss: | – | $0 | |
| | | -------------------------- | |
| (=) Taxable Value: | = | $1,240 | |
Taxing Jurisdiction
| Owner: | MEYERS 2020 LIVING TRUST | | |
| % Ownership: | 50.0000000000% | | |
| Total Value: | $3,555 | | |
| Tax Area: | 101 - 140-4 |
| CERFD | CURRENT EXPENSE REFUND 010 | 0.0000000000 | $1,240 | $1,240 | $0.00 | | |
| CURREXP | CURRENT EXPENSE 010 | 1.0175366760 | $1,240 | $1,240 | $1.26 | | |
| HUMNSERV | HUMAN SERVICES 119 | 0.0250000000 | $1,240 | $1,240 | $0.03 | | |
| SLDREL | SOLDIERS RELIEF 121 | 0.0155990005 | $1,240 | $1,240 | $0.02 | | |
| EMERGSER | EMS 147 | 0.3792580840 | $1,240 | $1,240 | $0.47 | | |
| EMSRFD | EMS REFUND 147 | 0.0000000000 | $1,240 | $1,240 | $0.00 | | |
| FD4EXP | FD #4 EXPENSE 686 | 0.8836993059 | $1,240 | $1,240 | $1.10 | | |
| RLBRFD | RURAL LIBRARY REFUND 623 | 0.0000000000 | $1,240 | $1,240 | $0.00 | | |
| RURALLIB | RURAL LIBRARY 623 | 0.3710609029 | $1,240 | $1,240 | $0.46 | | |
| PORTRFD | PORT REFUND 640 | 0.0000000000 | $1,240 | $1,240 | $0.00 | | |
| PORTWWGEN | PORT OF WW 640 | 0.2460186015 | $1,240 | $1,240 | $0.31 | | |
| SD140BOND | SD #140 BOND 764 | 0.8342371393 | $1,240 | $1,240 | $1.03 | | |
| SD140GEN | SD #140 GENERAL 760 | 2.0646500647 | $1,240 | $1,240 | $2.56 | | |
| ST2 | STATE SCHOOL PART 2 600 | 0.8131451643 | $1,240 | $1,240 | $1.01 | | |
| STATESCHL | STATE SCHOOL 600 | 1.5158548041 | $1,240 | $1,240 | $1.88 | | |
| STREFUND | STATE REFUND LEVY 603 | 0.0000000000 | $1,240 | $1,240 | $0.00 | | |
| COROAD | COUNTY ROAD 115 | 1.6549953990 | $1,240 | $1,240 | $2.05 | | |
| CRPRD | COUNTY ROAD REFUND 115 | 0.0000000000 | $1,240 | $1,240 | $0.00 | | |
| | Total Tax Rate: | 9.8210551422 | | | | | |
| | | | | Taxes w/Current Exemptions: | $12.18 | | |
| | | | | Taxes w/o Exemptions: | $12.18 | | |
Improvement / Building
Sketch
| No sketches available for this property. |
Property Image
Land
| 1 | 90-C1AN | Class 1 90 BU Annual | 2.0000 | 0.00 | 0.00 | 0.00 | 1.00 | $7,110 | $2,480 |
Roll Value History
| 2026 | N/A | N/A | N/A | N/A | N/A |
| 2025 | $0 | $3,735 | $1,115 | $1,115 | $1,115 |
| 2024 | $0 | $3,645 | $1,195 | $1,195 | $1,195 |
| 2023 | $0 | $3,555 | $1,240 | $1,240 | $1,240 |
| 2022 | $0 | $3,420 | $1,185 | $1,185 | $1,185 |
| 2021 | $0 | $3,240 | $1,180 | $1,180 | $1,180 |
| 2020 | $0 | $3,060 | $1,210 | $1,210 | $1,210 |
| 2019 | $0 | $2,960 | $1,235 | $1,235 | $1,235 |
| 2018 | $0 | $2,950 | $1,405 | $1,405 | $1,405 |
| 2017 | $0 | $2,925 | $1,425 | $1,425 | $1,425 |
| 2016 | $0 | $2,925 | $1,430 | $1,430 | $1,430 |
| 2015 | $0 | $2,925 | $1,270 | $1,270 | $1,270 |
| 2014 | $0 | $2,925 | $1,280 | $1,280 | $1,280 |
Deed and Sales History
| 1 | 06/11/2020 | QCD | QUIT CLAIM DEED | MEYERS DAWNA MARIE | MEYERS 2020 LIVING TRUST | | | $0.00 | 139261 | 2020-05244 |
| 2 | 05/15/2014 | QCD | QUIT CLAIM DEED | ROSS FAMILY TRUST | MEYERS DAWNA MARIE | | | | 125896 | 2014-03313 |
| 3 | 10/18/1989 | QCD | QUIT CLAIM DEED | | | | | $0.00 | 0 | 1798-906714 |
Payout Agreement
| No payout information available.. |