Property
Account |
| Property ID: | 42894 | Abbreviated Legal Description: | 33-7-37 TAX 7 |
| Parcel Number: | 370733210008 | Agent Code: | |
| Type: | Real | | |
| Tax Area: | 101 - 140-4 | Land Use Code | 83 |
| Open Space: | Y | DFL | N |
| Historic Property: | N | Remodel Property: | N |
| Multi-Family Redevelopment: | N | | |
| Township: | 7 | Section: | 33 |
| Range: | 37 |
Location |
| Address: | | Mapsco: | |
| Neighborhood: | 0 Farm | Map ID: | |
| Neighborhood CD: | 4240 |
Owner |
| Name: | MEYERS 2020 LIVING TRUST | Owner ID: | 67349 |
| Mailing Address: | 3964 WELLINGTON SQ SAN JOSE, CA 95136 | % Ownership: | 50.0000000000% |
| | | Exemptions: | |
Taxes and Assessment Details
Property Tax Information as of
02/21/2026
Click on "Statement Details" to expand or collapse a tax statement.
* Please enter a valid date ** Please enter a valid date *
Statement Details |
| | TOTAL: | $0.00 | $0.00 | $0.00 | $0.00 | $0.00 | $0.00 |
|
| | $0.00 | $0.00 | $0.00 | $0.00 | $0.00 | $0.00 |
Values
| (+) Improvement Homesite Value: | + | $0 | |
| (+) Improvement Non-Homesite Value: | + | $0 | |
| (+) Land Homesite Value: | + | $0 | |
| (+) Land Non-Homesite Value: | + | $0 | |
| (+) Curr Use (HS): | + | $0 | $0 |
| (+) Curr Use (NHS): | + | $87,985 | $30,665 |
| | | -------------------------- | |
| (=) Market Value: | = | $87,985 | |
| (–) Productivity Loss: | – | $57,320 | |
| | | -------------------------- | |
| (=) Subtotal: | = | $30,665 | |
| (+) Senior Appraised Value: | + | $0 | |
| (+) Non-Senior Appraised Value: | + | $30,665 | |
| | | -------------------------- | |
| (=) Total Appraised Value: | = | $30,665 | |
| (–) Senior Exemption Loss: | – | $0 | |
| (–) Exemption Loss: | – | $0 | |
| | | -------------------------- | |
| (=) Taxable Value: | = | $30,665 | |
Taxing Jurisdiction
| Owner: | MEYERS 2020 LIVING TRUST | | |
| % Ownership: | 50.0000000000% | | |
| Total Value: | $87,985 | | |
| Tax Area: | 101 - 140-4 |
| CERFD | CURRENT EXPENSE REFUND 010 | 0.0000000000 | $30,665 | $30,665 | $0.00 | | |
| CURREXP | CURRENT EXPENSE 010 | 1.0175366760 | $30,665 | $30,665 | $31.20 | | |
| HUMNSERV | HUMAN SERVICES 119 | 0.0250000000 | $30,665 | $30,665 | $0.77 | | |
| SLDREL | SOLDIERS RELIEF 121 | 0.0155990005 | $30,665 | $30,665 | $0.48 | | |
| EMERGSER | EMS 147 | 0.3792580840 | $30,665 | $30,665 | $11.63 | | |
| EMSRFD | EMS REFUND 147 | 0.0000000000 | $30,665 | $30,665 | $0.00 | | |
| FD4EXP | FD #4 EXPENSE 686 | 0.8836993059 | $30,665 | $30,665 | $27.10 | | |
| RLBRFD | RURAL LIBRARY REFUND 623 | 0.0000000000 | $30,665 | $30,665 | $0.00 | | |
| RURALLIB | RURAL LIBRARY 623 | 0.3710609029 | $30,665 | $30,665 | $11.38 | | |
| PORTRFD | PORT REFUND 640 | 0.0000000000 | $30,665 | $30,665 | $0.00 | | |
| PORTWWGEN | PORT OF WW 640 | 0.2460186015 | $30,665 | $30,665 | $7.54 | | |
| SD140BOND | SD #140 BOND 764 | 0.8342371393 | $30,665 | $30,665 | $25.58 | | |
| SD140GEN | SD #140 GENERAL 760 | 2.0646500647 | $30,665 | $30,665 | $63.31 | | |
| ST2 | STATE SCHOOL PART 2 600 | 0.8131451643 | $30,665 | $30,665 | $24.94 | | |
| STATESCHL | STATE SCHOOL 600 | 1.5158548041 | $30,665 | $30,665 | $46.48 | | |
| STREFUND | STATE REFUND LEVY 603 | 0.0000000000 | $30,665 | $30,665 | $0.00 | | |
| COROAD | COUNTY ROAD 115 | 1.6549953990 | $30,665 | $30,665 | $50.75 | | |
| CRPRD | COUNTY ROAD REFUND 115 | 0.0000000000 | $30,665 | $30,665 | $0.00 | | |
| | Total Tax Rate: | 9.8210551422 | | | | | |
| | | | | Taxes w/Current Exemptions: | $301.16 | | |
| | | | | Taxes w/o Exemptions: | $301.16 | | |
Improvement / Building
Sketch
| No sketches available for this property. |
Property Image
Land
| 1 | 90-C1AN | Class 1 90 BU Annual | 49.5000 | 0.00 | 0.00 | 0.00 | 1.00 | $175,970 | $61,330 |
| 2 | WASTE | Waste | 2.0000 | 0.00 | 0.00 | 0.00 | 1.00 | $0 | $0 |
Roll Value History
| 2026 | N/A | N/A | N/A | N/A | N/A |
| 2025 | $0 | $92,440 | $27,620 | $27,620 | $27,620 |
| 2024 | $0 | $90,215 | $29,625 | $29,625 | $29,625 |
| 2023 | $0 | $87,985 | $30,665 | $30,665 | $30,665 |
| 2022 | $0 | $84,645 | $29,355 | $29,355 | $29,355 |
| 2021 | $0 | $80,190 | $29,180 | $29,180 | $29,180 |
| 2020 | $0 | $75,735 | $29,950 | $29,950 | $29,950 |
| 2019 | $0 | $73,285 | $30,515 | $30,515 | $30,515 |
| 2018 | $0 | $73,060 | $34,750 | $34,750 | $34,750 |
| 2017 | $0 | $72,395 | $35,320 | $35,320 | $35,320 |
| 2016 | $0 | $72,395 | $35,370 | $35,370 | $35,370 |
| 2015 | $0 | $72,395 | $31,385 | $31,385 | $31,385 |
| 2014 | $0 | $72,395 | $31,655 | $31,655 | $31,655 |
Deed and Sales History
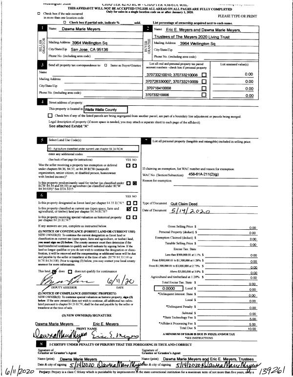
| 1 | 06/11/2020 | QCD | QUIT CLAIM DEED | MEYERS DAWNA MARIE | MEYERS 2020 LIVING TRUST | | | $0.00 | 139261 | 2020-05244 |
| 2 | 05/15/2014 | QCD | QUIT CLAIM DEED | ROSS FAMILY TRUST | MEYERS DAWNA MARIE | | | | 125896 | 2014-03313 |
| 3 | 01/07/1992 | WARRANTY D | WARRANTY DEED | | | | | $75,000.00 | 0 | 1939-200120 |
|   | |
Payout Agreement
| No payout information available.. |