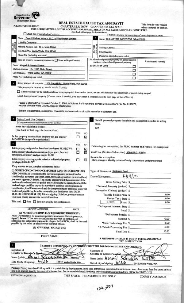
Property
Account |
| Property ID: | 42653 | Abbreviated Legal Description: | 31-8-37 PARCEL D OF S/P (PTN TAX 4 & 3 & ALL TAX 4A ALL WITHIN SE1/4SW1/4) |
| Parcel Number: | 370831340008 | Agent Code: | |
| Type: | Real | | |
| Tax Area: | 310 - 101-8 | Land Use Code | 81 |
| Open Space: | N | DFL | N |
| Historic Property: | N | Remodel Property: | N |
| Multi-Family Redevelopment: | N | | |
| Township: | 8 | Section: | 31 |
| Range: | 37 |
Location |
| Address: | 1106 SAPOLIL RD WA 99329 | Mapsco: | |
| Neighborhood: | 0 Farm | Map ID: | |
| Neighborhood CD: | 4240 |
Owner |
| Name: | WALKER ABIGAIL SCHWERIN | Owner ID: | 51497 |
| Mailing Address: | 501 WASHINGTON ST UNIT 30 WALLA WALLA, WA 99362 | % Ownership: | 5.0000000000% |
| | | Exemptions: | |
Taxes and Assessment Details
Values
| (+) Improvement Homesite Value: | + | $0 | |
| (+) Improvement Non-Homesite Value: | + | $2,175 | |
| (+) Land Homesite Value: | + | $1,500 | |
| (+) Land Non-Homesite Value: | + | $1,068 | |
| (+) Curr Use (HS): | + | $0 | $0 |
| (+) Curr Use (NHS): | + | $0 | $0 |
| | | -------------------------- | |
| (=) Market Value: | = | $4,743 | |
| (–) Productivity Loss: | – | $0 | |
| | | -------------------------- | |
| (=) Subtotal: | = | $4,743 | |
| (+) Senior Appraised Value: | + | $0 | |
| (+) Non-Senior Appraised Value: | + | $4,743 | |
| | | -------------------------- | |
| (=) Total Appraised Value: | = | $4,743 | |
| (–) Senior Exemption Loss: | – | $0 | |
| (–) Exemption Loss: | – | $0 | |
| | | -------------------------- | |
| (=) Taxable Value: | = | $4,743 | |
Taxing Jurisdiction
| Owner: | WALKER ABIGAIL SCHWERIN | | |
| % Ownership: | 5.0000000000% | | |
| Total Value: | $4,743 | | |
| Tax Area: | 310 - 101-8 |
| CERFD | CURRENT EXPENSE REFUND 010 | 0.0000000000 | $4,743 | $4,743 | $0.00 | | |
| CURREXP | CURRENT EXPENSE 010 | 1.0175366760 | $4,743 | $4,743 | $4.83 | | |
| HUMNSERV | HUMAN SERVICES 119 | 0.0250000000 | $4,743 | $4,743 | $0.12 | | |
| SLDREL | SOLDIERS RELIEF 121 | 0.0155990005 | $4,743 | $4,743 | $0.07 | | |
| EMERGSER | EMS 147 | 0.3792580840 | $4,743 | $4,743 | $1.80 | | |
| EMSRFD | EMS REFUND 147 | 0.0000000000 | $4,743 | $4,743 | $0.00 | | |
| FD8EXP | FD #8 EXPENSE 697 | 0.6647992540 | $4,743 | $4,743 | $3.15 | | |
| RLBRFD | RURAL LIBRARY REFUND 623 | 0.0000000000 | $4,743 | $4,743 | $0.00 | | |
| RURALLIB | RURAL LIBRARY 623 | 0.3710609029 | $4,743 | $4,743 | $1.76 | | |
| PORTRFD | PORT REFUND 640 | 0.0000000000 | $4,743 | $4,743 | $0.00 | | |
| PORTWWGEN | PORT OF WW 640 | 0.2460186015 | $4,743 | $4,743 | $1.17 | | |
| SD101CAP | SD #101 CAP 752 | 0.5894423472 | $4,743 | $4,743 | $2.80 | | |
| SD101GEN | SD #101 GENERAL 750 | 0.7455117868 | $4,743 | $4,743 | $3.54 | | |
| ST2 | STATE SCHOOL PART 2 600 | 0.8131451643 | $4,743 | $4,743 | $3.86 | | |
| STATESCHL | STATE SCHOOL 600 | 1.5158548041 | $4,743 | $4,743 | $7.19 | | |
| STREFUND | STATE REFUND LEVY 603 | 0.0000000000 | $4,743 | $4,743 | $0.00 | | |
| COROAD | COUNTY ROAD 115 | 1.6549953990 | $4,743 | $4,743 | $7.85 | | |
| CRPRD | COUNTY ROAD REFUND 115 | 0.0000000000 | $4,743 | $4,743 | $0.00 | | |
| | Total Tax Rate: | 8.0382220203 | | | | | |
| | | | | Taxes w/Current Exemptions: | $38.14 | | |
| | | | | Taxes w/o Exemptions: | $38.14 | | |
Improvement / Building
| Improvement #1: | RESIDENTIAL | State Code: | 81 | 0.0 sqft | Value: | $43,500 |
| | Type | Description | Class CD | Sub Class CD | Year Built | Area |
| | SHOP | SHOP BUILDING | 1 | 20 | 0 | 1968.0 |
| | SHOP | SHOP BUILDING | 1 | 20 | 0 | 1728.0 |
| | BARN | BARN-AVE | 1 | 20 | 0 | 6960.0 |
| | UTST | Utility Storage Shed | 1 | 20 | 0 | 720.0 |
| | UTIL-STOR | UTILITY STORAGE | 1 | 20 | 0 | 4320.0 |
| | FBAT | FULL BATH | 1 | 30 | 0 | 1.0 |
| | BNV | BUILDING NO VALUE | 1 | 20 | 0 | 196.0 |
| | BNV | BUILDING NO VALUE | 1 | 20 | 0 | 840.0 |
Sketch
| No sketches available for this property. |
Property Image
Land
| 1 | WASTE | Waste | 2.0000 | 0.00 | 0.00 | 0.00 | 1.00 | $0 | $0 |
| 2 | 80-C1AN | Class 1 80 BU Annual | 7.0000 | 304920.00 | 0.00 | 0.00 | 1.00 | $21,360 | $0 |
| 3 | 15-HS | HOMESITE 150,000 | 1.0000 | 0.00 | 0.00 | 0.00 | 1.00 | $30,000 | $0 |
Roll Value History
| 2026 | N/A | N/A | N/A | N/A | N/A |
| 2025 | $2,175 | $2,624 | $0 | $4,799 | $4,799 |
| 2024 | $2,175 | $2,596 | $0 | $4,771 | $4,771 |
| 2023 | $2,175 | $2,568 | $0 | $4,743 | $4,743 |
| 2022 | $2,175 | $2,517 | $0 | $4,692 | $4,692 |
| 2021 | $2,175 | $2,461 | $0 | $4,636 | $4,636 |
| 2020 | $2,175 | $2,406 | $0 | $4,581 | $4,581 |
| 2019 | $2,175 | $2,378 | $0 | $4,553 | $4,553 |
| 2018 | $2,175 | $2,375 | $0 | $4,550 | $4,550 |
| 2017 | $2,175 | $2,368 | $0 | $4,543 | $4,543 |
| 2016 | $2,175 | $2,368 | $0 | $4,543 | $4,543 |
| 2015 | $2,175 | $2,368 | $0 | $4,543 | $4,543 |
| 2014 | $2,175 | $2,368 | $0 | $4,543 | $4,543 |
| 2013 | $2,175 | $2,326 | $826 | $4,501 | $4,501 |
| 2012 | $34,100 | $44,000 | $0 | $0 | $0 |
| 2011 | $25,000 | $12,000 | $0 | $0 | $0 |
| 2010 | $25,000 | $12,200 | $0 | $0 | $0 |
| 2009 | $25,000 | $12,200 | $0 | $0 | $0 |
| 2008 | $40,000 | $10,900 | $0 | $0 | $0 |
| 2007 | $40,000 | $10,900 | $0 | $0 | $0 |
Deed and Sales History
Payout Agreement
| No payout information available.. |