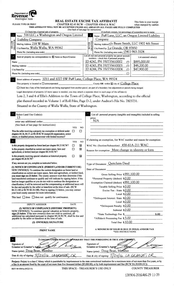
Property
Account |
| Property ID: | 4244 | Abbreviated Legal Description: | ELLIS'S ADDITION PARCEL 4 |
| Parcel Number: | 350735610004 | Agent Code: | |
| Type: | Real | | |
| Tax Area: | 75 - CP 250 | Land Use Code | 13 |
| Open Space: | N | DFL | N |
| Historic Property: | N | Remodel Property: | N |
| Multi-Family Redevelopment: | N | | |
| Township: | 7 | Section: | 35 |
| Range: | 35 |
Location |
| Address: | 1027 SW PUFF LN WA 99324 | Mapsco: | |
| Neighborhood: | A SFR Land Only | Map ID: | |
| Neighborhood CD: | 113091 |
Owner |
| Name: | PUFF LANE LLC | Owner ID: | 59754 |
| Mailing Address: | C/O FOR THE GIRLS LLC 1260 NW WATERHOUSE AVE, STE. 150 BEAVERTON, OR 97006 | % Ownership: | 100.0000000000% |
| | | Exemptions: | |
Taxes and Assessment Details
Values
| (+) Improvement Homesite Value: | + | N/A | |
| (+) Improvement Non-Homesite Value: | + | N/A | |
| (+) Land Homesite Value: | + | N/A | |
| (+) Land Non-Homesite Value: | + | N/A | Ag / Timber Use Value |
| (+) Curr Use (HS): | + | N/A | N/A |
| (+) Curr Use (NHS): | + | N/A | N/A |
| | | -------------------------- | |
| (=) Market Value: | = | N/A | |
| (–) Productivity Loss: | – | N/A | |
| | | -------------------------- | |
| (=) Subtotal: | = | N/A | |
| (+) Senior Appraised Value: | + | N/A | |
| (+) Non-Senior Appraised Value: | + | N/A | |
| | | -------------------------- | |
| (=) Total Appraised Value: | = | N/A | |
| (–) Senior Exemption Loss: | – | N/A | |
| (–) Exemption Loss: | – | N/A | |
| | | -------------------------- | |
| (=) Taxable Value: | = | N/A | |
Taxing Jurisdiction
| Owner: | PUFF LANE LLC | | |
| % Ownership: | 100.0000000000% | | |
| Total Value: | N/A | | |
| Tax Area: | 75 - CP 250 |
| CERFD | CURRENT EXPENSE REFUND 010 | N/A | N/A | N/A | N/A | | |
| CURREXP | CURRENT EXPENSE 010 | N/A | N/A | N/A | N/A | | |
| HUMNSERV | HUMAN SERVICES 119 | N/A | N/A | N/A | N/A | | |
| SLDREL | SOLDIERS RELIEF 121 | N/A | N/A | N/A | N/A | | |
| COLLPLBOND | C OF CP BOND 644 | N/A | N/A | N/A | N/A | | |
| COLLPLGEN | CITY OF CP 632 | N/A | N/A | N/A | N/A | | |
| EMERGSER | EMS 147 | N/A | N/A | N/A | N/A | | |
| EMSRFD | EMS REFUND 147 | N/A | N/A | N/A | N/A | | |
| PORTRFD | PORT REFUND 640 | N/A | N/A | N/A | N/A | | |
| PORTWWGEN | PORT OF WW 640 | N/A | N/A | N/A | N/A | | |
| SD250BOND | SD #250 BOND 773 | N/A | N/A | N/A | N/A | | |
| SD250GEN | SD #250 GENERAL 770 | N/A | N/A | N/A | N/A | | |
| ST2 | STATE SCHOOL PART 2 600 | N/A | N/A | N/A | N/A | | |
| STATESCHL | STATE SCHOOL 600 | N/A | N/A | N/A | N/A | | |
| STREFUND | STATE REFUND LEVY 603 | N/A | N/A | N/A | N/A | | |
| | Total Tax Rate: | N/A | | | | | |
| | | | | Taxes w/Current Exemptions: | N/A | | |
| | | | | Taxes w/o Exemptions: | N/A | | |
Improvement / Building
| Improvement #1: | RESIDENTIAL | State Code: | 13 | 1.0 sqft | Value: | N/A |
Sketch
| No sketches available for this property. |
Property Image
Land
| 1 | RES 1 | Converted: Residential | 0.2500 | 10890.00 | 0.00 | 0.00 | 1.00 | N/A | N/A |
Roll Value History
| 2026 | N/A | N/A | N/A | N/A | N/A |
| 2025 | $0 | $92,240 | $0 | $92,240 | $92,240 |
| 2024 | $0 | $58,500 | $0 | $58,500 | $58,500 |
| 2023 | $0 | $58,500 | $0 | $58,500 | $58,500 |
| 2022 | $0 | $58,500 | $0 | $58,500 | $58,500 |
| 2021 | $0 | $58,500 | $0 | $58,500 | $58,500 |
| 2020 | $0 | $58,500 | $0 | $58,500 | $58,500 |
| 2019 | $0 | $47,900 | $0 | $47,900 | $47,900 |
| 2018 | $0 | $47,900 | $0 | $47,900 | $47,900 |
| 2017 | $0 | $47,900 | $0 | $47,900 | $47,900 |
| 2016 | $0 | $47,900 | $0 | $47,900 | $47,900 |
| 2015 | $0 | $47,900 | $0 | $47,900 | $47,900 |
| 2014 | $0 | $47,900 | $0 | $47,900 | $47,900 |
| 2013 | $0 | $47,900 | $0 | $47,900 | $47,900 |
| 2012 | $0 | $47,900 | $0 | $0 | $0 |
| 2011 | $0 | $47,900 | $0 | $0 | $0 |
| 2010 | $0 | $47,900 | $0 | $0 | $0 |
| 2009 | $0 | $47,900 | $0 | $0 | $0 |
| 2008 | $0 | $25,500 | $0 | $0 | $0 |
| 2007 | $0 | $25,500 | $0 | $0 | $0 |
Deed and Sales History
| 1 | 09/26/2016 | QCD | QUIT CLAIM DEED | 516 LLC A WA & OR LTD | PUFF LANE LLC | | 3-PARCELS | $991,100.00 | 130906 | 2016-07855 |
|   | |
| 2 | 02/07/1996 | WARRANTY D | WARRANTY DEED | | | | | $578,000.00 | 85574 | 2389-601195 |
|   | |
Payout Agreement
| No payout information available.. |