| 1 | 12/14/2018 | SWD | STATUTORY WARRANTY DEED | KOMOROWSKI BENJAMIN B & JANELLE | MORALES DAVID & ROSARIO | | 2-PARCELS | $165,000.00 | 136088 | 2018-10305 |
|   | |
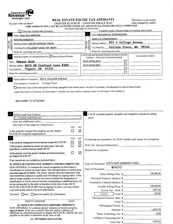
| 2 | 09/09/2015 | SWD | STATUTORY WARRANTY DEED | RICHARDSON PAUL A & TERI L | KOMOROWSKI BENJAMIN B & JANELLE | | 2-PARCELS | $129,000.00 | 128787 | 2015-07905 |
|   | |
| 3 | 05/14/2015 | QCD | QUIT CLAIM DEED | PAR PROPERTIES LLC | RICHARDSON PAUL A & TERI L | 2 PARCELS | | $0.00 | 127961 | 2015-04054 |
| 4 | 03/02/2004 | WARRANTY D | WARRANTY DEED | VANNELLI DOROTHY L | PAR PROPERTIES LLC | | | $89,000.00 | 104163 | 2004-02205 |
|   | |
| 5 | 05/24/1991 | WARRANTY D | WARRANTY DEED | | | | | $26,500.00 | 0 | 1899-103320 |
|   | |