Property
Account |
| Property ID: | 4214 | Abbreviated Legal Description: | CP #2 TAX 10 LOT 2 BLK 25 |
| Parcel Number: | 350735602512 | Agent Code: | |
| Type: | Real | | |
| Tax Area: | 75 - CP 250 | Land Use Code | 11 |
| Open Space: | N | DFL | N |
| Historic Property: | N | Remodel Property: | N |
| Multi-Family Redevelopment: | N | | |
| Township: | 7 | Section: | 35 |
| Range: | 35 |
Location |
| Address: | 108 SW 9TH ST WA 99324 | Mapsco: | |
| Neighborhood: | A SFR | Map ID: | |
| Neighborhood CD: | 113011 |
Owner |
| Name: | TITO ESPINOZA SR & ARMIDA ESPINOZA REV LIVING TRUST | Owner ID: | 72792 |
| Mailing Address: | 231 SE VALLEY DR COLLEGE PLACE, WA 99324 | % Ownership: | 100.0000000000% |
| | | Exemptions: | |
Taxes and Assessment Details
Values
| (+) Improvement Homesite Value: | + | $0 | |
| (+) Improvement Non-Homesite Value: | + | $313,610 | |
| (+) Land Homesite Value: | + | $0 | |
| (+) Land Non-Homesite Value: | + | $61,060 | |
| (+) Curr Use (HS): | + | $0 | $0 |
| (+) Curr Use (NHS): | + | $0 | $0 |
| | | -------------------------- | |
| (=) Market Value: | = | $374,670 | |
| (–) Productivity Loss: | – | $0 | |
| | | -------------------------- | |
| (=) Subtotal: | = | $374,670 | |
| (+) Senior Appraised Value: | + | $0 | |
| (+) Non-Senior Appraised Value: | + | $374,670 | |
| | | -------------------------- | |
| (=) Total Appraised Value: | = | $374,670 | |
| (–) Senior Exemption Loss: | – | $0 | |
| (–) Exemption Loss: | – | $0 | |
| | | -------------------------- | |
| (=) Taxable Value: | = | $374,670 | |
Taxing Jurisdiction
| Owner: | TITO ESPINOZA SR & ARMIDA ESPINOZA REV LIVING TRUST | | |
| % Ownership: | 100.0000000000% | | |
| Total Value: | $374,670 | | |
| Tax Area: | 75 - CP 250 |
| CERFD | CURRENT EXPENSE REFUND 010 | 0.0000000000 | $374,670 | $374,670 | $0.00 | | |
| CURREXP | CURRENT EXPENSE 010 | 1.0175366760 | $374,670 | $374,670 | $381.24 | | |
| HUMNSERV | HUMAN SERVICES 119 | 0.0250000000 | $374,670 | $374,670 | $9.37 | | |
| SLDREL | SOLDIERS RELIEF 121 | 0.0155990005 | $374,670 | $374,670 | $5.84 | | |
| COLLPLBOND | C OF CP BOND 644 | 0.4374241808 | $374,670 | $374,670 | $163.89 | | |
| COLLPLGEN | CITY OF CP 632 | 1.4453819216 | $374,670 | $374,670 | $541.54 | | |
| EMERGSER | EMS 147 | 0.3792580840 | $374,670 | $374,670 | $142.10 | | |
| EMSRFD | EMS REFUND 147 | 0.0000000000 | $374,670 | $374,670 | $0.00 | | |
| RURALLIB | RURAL LIBRARY 623 | 0.3710609029 | $374,670 | $374,670 | $139.03 | | |
| PORTRFD | PORT REFUND 640 | 0.0000000000 | $374,670 | $374,670 | $0.00 | | |
| PORTWWGEN | PORT OF WW 640 | 0.2460186015 | $374,670 | $374,670 | $92.18 | | |
| SD250BOND | SD #250 BOND 773 | 1.4560608159 | $374,670 | $374,670 | $545.54 | | |
| SD250GEN | SD #250 GENERAL 770 | 2.3880724087 | $374,670 | $374,670 | $894.74 | | |
| ST2 | STATE SCHOOL PART 2 600 | 0.8131451643 | $374,670 | $374,670 | $304.66 | | |
| STATESCHL | STATE SCHOOL 600 | 1.5158548041 | $374,670 | $374,670 | $567.95 | | |
| STREFUND | STATE REFUND LEVY 603 | 0.0000000000 | $374,670 | $374,670 | $0.00 | | |
| | Total Tax Rate: | 10.1104125603 | | | | | |
| | | | | Taxes w/Current Exemptions: | $3,788.08 | | |
| | | | | Taxes w/o Exemptions: | $3,788.08 | | |
Improvement / Building
| Improvement #1: | RESIDENTIAL | State Code: | 11 | 1712.0 sqft | Value: | $313,610 |
| Exterior Wall: | VINYL | Heating/Cooling: | FLOOR RADIANT | | Number of Bathrooms: | 3 | Number of Bedrooms: | 3 | | Plumbing: | 15 | Roof Covering: | COMP SHINGLE |
|
| | Type | Description | Class CD | Sub Class CD | Year Built | Area |
| | MA | Main Area | 1 | 30 | 1910 | 1712.0 |
| | SI1 | SITE IMPROVEMENT | 1 | 30 | 1910 | 2.5 |
| | WDR | WOOD DECK W/ROOF | 1 | 30 | 1910 | 168.0 |
| | BASE | BASEMENT | 1 | 30 | 1910 | 1152.0 |
| | DTG | Detached Garage | 1 | 30 | 1910 | 240.0 |
| | RPO | OPEN PORCH W/ROOF | 1 | 30 | 1910 | 175.0 |
| | ATG | Attached Garage | 1 | 30 | 1910 | 888.0 |
| | BPF | BASEMENT -PARTITIONED FINISH | 1 | 30 | 1910 | 1032.0 |
| | CPC | COVERED CARPORT/PATIO | 1 | 30 | 1910 | 24.0 |
| | CPCD | CARPORT/DIRT FLOOR | 1 | 30 | 1910 | 84.0 |
| | GIF | GARAGE INTERIOR FINISH | 1 | 30 | 1910 | 240.0 |
| | FIXT | AVERAGE FIXTURE | 1 | 30 | 1910 | 5.0 |
Sketch
Property Image
Land
| 1 | RES 1 | Converted: Residential | 0.2204 | 9600.00 | 0.00 | 0.00 | 1.00 | $61,060 | $0 |
Roll Value History
| 2026 | N/A | N/A | N/A | N/A | N/A |
| 2025 | $313,610 | $90,720 | $0 | $404,330 | $404,330 |
| 2024 | $313,610 | $61,060 | $0 | $374,670 | $374,670 |
| 2023 | $313,610 | $61,060 | $0 | $374,670 | $374,670 |
| 2022 | $313,610 | $61,060 | $0 | $374,670 | $374,670 |
| 2021 | $250,890 | $61,060 | $0 | $311,950 | $311,950 |
| 2020 | $167,260 | $61,060 | $0 | $228,320 | $228,320 |
| 2019 | $181,520 | $46,800 | $0 | $228,320 | $228,320 |
| 2018 | $145,220 | $46,800 | $0 | $192,020 | $192,020 |
| 2017 | $132,020 | $46,800 | $0 | $178,820 | $178,820 |
| 2016 | $120,020 | $46,800 | $0 | $166,820 | $166,820 |
| 2015 | $114,300 | $46,800 | $0 | $161,100 | $161,100 |
| 2014 | $114,300 | $46,800 | $0 | $161,100 | $161,100 |
| 2013 | $100,300 | $46,800 | $0 | $147,100 | $147,100 |
| 2012 | $116,600 | $46,800 | $0 | $0 | $0 |
| 2011 | $134,700 | $46,800 | $0 | $0 | $0 |
| 2010 | $132,600 | $46,800 | $0 | $0 | $0 |
| 2009 | $152,500 | $46,800 | $0 | $0 | $0 |
| 2008 | $86,600 | $24,400 | $0 | $0 | $0 |
| 2007 | $86,600 | $24,400 | $0 | $0 | $0 |
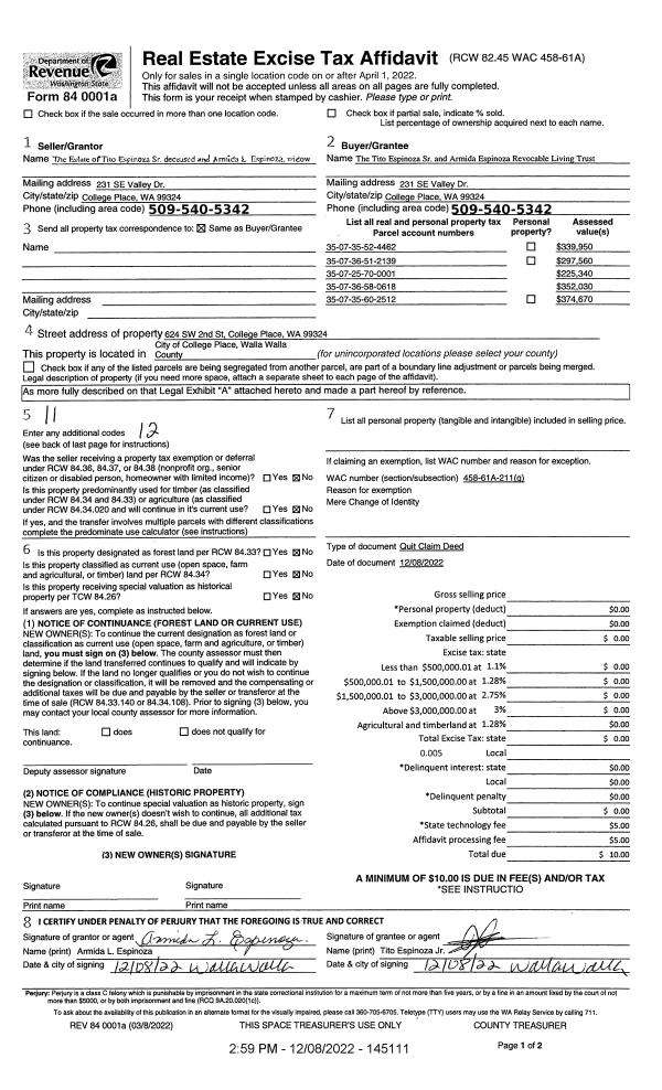
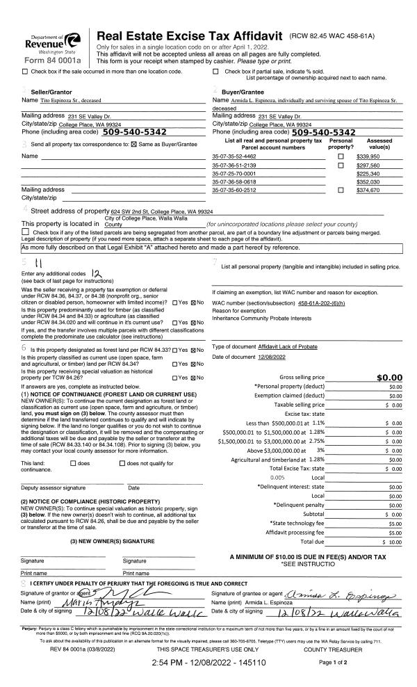
Deed and Sales History
| 1 | 12/08/2022 | QCD | QUIT CLAIM DEED | ESPINOZA ARMIDA L | TITO ESPINOZA SR & ARMIDA ESPINOZA REV LIVING TRUST | | 5-PARCELS | $0.00 | 145111 | 2022-09582 |
| 2 | 12/08/2022 | LOPA | LACK OF PROBATE AFFIDAVIT | ESPINOZA TITO ESTATE OF & ARMIDA L | ESPINOZA ARMIDA L | | 5-PARCELS | $0.00 | 145110 | 2022-09581 |
| 3 | 04/16/2018 | SWD | STATUTORY WARRANTY DEED | RITTENBACH BARBARA JEAN ESTATE OF | ESPINOZA TITO ESTATE OF & ARMIDA L | | | $237,500.00 | 134503 | 2018-02936 |
| 4 | 02/06/1974 | QCD | QUIT CLAIM DEED | | | | | $0.00 | 0 | 1889-102199 |
Payout Agreement
| No payout information available.. |