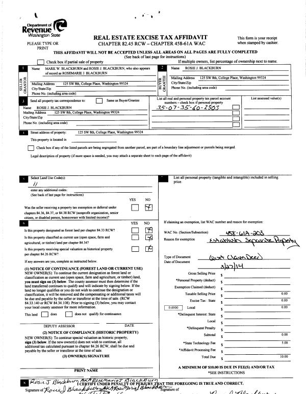
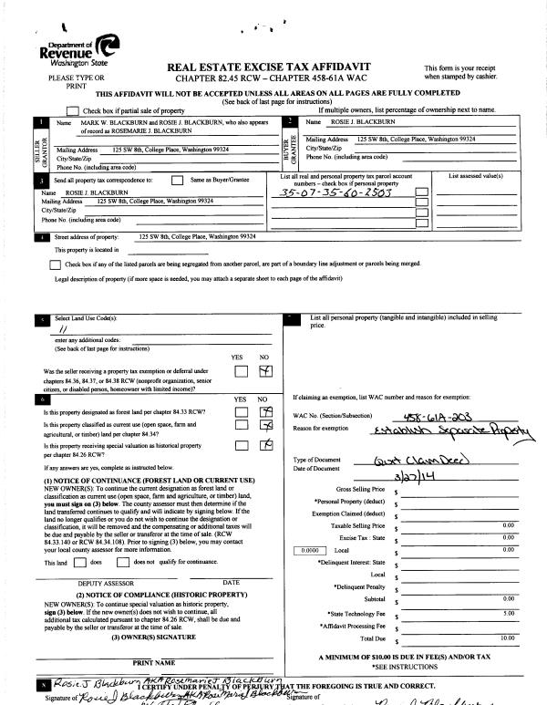
Property
Account |
| Property ID: | 4209 | Abbreviated Legal Description: | CP #2 TAX 2 LOT 2 BLK 25 |
| Parcel Number: | 350735602503 | Agent Code: | |
| Type: | Real | | |
| Tax Area: | 75 - CP 250 | Land Use Code | 11 |
| Open Space: | N | DFL | N |
| Historic Property: | N | Remodel Property: | N |
| Multi-Family Redevelopment: | N | | |
| Township: | 7 | Section: | 35 |
| Range: | 35 |
Location |
| Address: | 125 SW 8TH ST WA 99324 | Mapsco: | |
| Neighborhood: | A SFR | Map ID: | |
| Neighborhood CD: | 113011 |
Owner |
| Name: | BLACKBURN ROSIE J | Owner ID: | 54680 |
| Mailing Address: | 125 SW 8TH ST COLLEGE PLACE, WA 99324 | % Ownership: | 100.0000000000% |
| | | Exemptions: | |
Taxes and Assessment Details
Values
| (+) Improvement Homesite Value: | + | $0 | |
| (+) Improvement Non-Homesite Value: | + | $116,420 | |
| (+) Land Homesite Value: | + | $0 | |
| (+) Land Non-Homesite Value: | + | $61,690 | |
| (+) Curr Use (HS): | + | $0 | $0 |
| (+) Curr Use (NHS): | + | $0 | $0 |
| | | -------------------------- | |
| (=) Market Value: | = | $178,110 | |
| (–) Productivity Loss: | – | $0 | |
| | | -------------------------- | |
| (=) Subtotal: | = | $178,110 | |
| (+) Senior Appraised Value: | + | $0 | |
| (+) Non-Senior Appraised Value: | + | $178,110 | |
| | | -------------------------- | |
| (=) Total Appraised Value: | = | $178,110 | |
| (–) Senior Exemption Loss: | – | $0 | |
| (–) Exemption Loss: | – | $0 | |
| | | -------------------------- | |
| (=) Taxable Value: | = | $178,110 | |
Taxing Jurisdiction
| Owner: | BLACKBURN ROSIE J | | |
| % Ownership: | 100.0000000000% | | |
| Total Value: | $178,110 | | |
| Tax Area: | 75 - CP 250 |
| CERFD | CURRENT EXPENSE REFUND 010 | 0.0000000000 | $178,110 | $178,110 | $0.00 | | |
| CURREXP | CURRENT EXPENSE 010 | 1.0175366760 | $178,110 | $178,110 | $181.23 | | |
| HUMNSERV | HUMAN SERVICES 119 | 0.0250000000 | $178,110 | $178,110 | $4.45 | | |
| SLDREL | SOLDIERS RELIEF 121 | 0.0155990005 | $178,110 | $178,110 | $2.78 | | |
| COLLPLBOND | C OF CP BOND 644 | 0.4374241808 | $178,110 | $178,110 | $77.91 | | |
| COLLPLGEN | CITY OF CP 632 | 1.4453819216 | $178,110 | $178,110 | $257.44 | | |
| EMERGSER | EMS 147 | 0.3792580840 | $178,110 | $178,110 | $67.55 | | |
| EMSRFD | EMS REFUND 147 | 0.0000000000 | $178,110 | $178,110 | $0.00 | | |
| RURALLIB | RURAL LIBRARY 623 | 0.3710609029 | $178,110 | $178,110 | $66.09 | | |
| PORTRFD | PORT REFUND 640 | 0.0000000000 | $178,110 | $178,110 | $0.00 | | |
| PORTWWGEN | PORT OF WW 640 | 0.2460186015 | $178,110 | $178,110 | $43.82 | | |
| SD250BOND | SD #250 BOND 773 | 1.4560608159 | $178,110 | $178,110 | $259.34 | | |
| SD250GEN | SD #250 GENERAL 770 | 2.3880724087 | $178,110 | $178,110 | $425.34 | | |
| ST2 | STATE SCHOOL PART 2 600 | 0.8131451643 | $178,110 | $178,110 | $144.83 | | |
| STATESCHL | STATE SCHOOL 600 | 1.5158548041 | $178,110 | $178,110 | $269.99 | | |
| STREFUND | STATE REFUND LEVY 603 | 0.0000000000 | $178,110 | $178,110 | $0.00 | | |
| | Total Tax Rate: | 10.1104125603 | | | | | |
| | | | | Taxes w/Current Exemptions: | $1,800.77 | | |
| | | | | Taxes w/o Exemptions: | $1,800.77 | | |
Improvement / Building
| Improvement #1: | RESIDENTIAL | State Code: | 11 | 1782.0 sqft | Value: | $116,420 |
| Exterior Wall: | METAL/STEEL | Heating/Cooling: | FORCED AIR | | Number of Bathrooms: | 2 | Number of Bedrooms: | 4 | | Plumbing: | 8 | Roof Covering: | COMP SHINGLE |
|
| | Type | Description | Class CD | Sub Class CD | Year Built | Area |
| | MA | Main Area | 4 | 30 | 1928 | 1782.0 |
| | UPFL | Upper Floor (included in main area) | 4 | 30 | 1928 | 678.0 |
| | SI1 | SITE IMPROVEMENT | 4 | 30 | 1928 | 1.0 |
| | BASE | BASEMENT | 4 | 30 | 1928 | 1104.0 |
| | BPF | BASEMENT -PARTITIONED FINISH | 4 | 30 | 1928 | 951.0 |
| | RPS | PORCH W/STEPS,ROOF | 4 | 30 | 1928 | 40.0 |
| | S1F | Single One Story Fireplace | 4 | 30 | 1928 | 1.0 |
| | DTG | Detached Garage | 4 | 30 | 1928 | 1200.0 |
Sketch
Property Image
Land
| 1 | RES 1 | Converted: Residential | 0.2479 | 10800.00 | 0.00 | 0.00 | 1.00 | $61,690 | $0 |
Roll Value History
| 2026 | N/A | N/A | N/A | N/A | N/A |
| 2025 | $104,780 | $92,120 | $0 | $196,900 | $196,900 |
| 2024 | $116,420 | $61,690 | $0 | $178,110 | $178,110 |
| 2023 | $116,420 | $61,690 | $0 | $178,110 | $178,110 |
| 2022 | $116,420 | $61,690 | $0 | $178,110 | $178,110 |
| 2021 | $86,240 | $61,690 | $0 | $147,930 | $147,930 |
| 2020 | $57,490 | $61,690 | $0 | $119,180 | $119,180 |
| 2019 | $71,380 | $47,800 | $0 | $119,180 | $119,180 |
| 2018 | $67,980 | $47,800 | $0 | $115,780 | $115,780 |
| 2017 | $61,800 | $47,800 | $0 | $109,600 | $109,600 |
| 2016 | $61,800 | $47,800 | $0 | $109,600 | $109,600 |
| 2015 | $51,500 | $47,800 | $0 | $99,300 | $99,300 |
| 2014 | $51,500 | $47,800 | $0 | $99,300 | $99,300 |
| 2013 | $51,500 | $47,800 | $0 | $99,300 | $99,300 |
| 2012 | $69,000 | $47,800 | $0 | $0 | $0 |
| 2011 | $82,000 | $47,800 | $0 | $0 | $0 |
| 2010 | $82,000 | $47,800 | $0 | $0 | $0 |
| 2009 | $96,400 | $47,800 | $0 | $0 | $0 |
| 2008 | $79,300 | $25,400 | $0 | $0 | $0 |
| 2007 | $79,300 | $25,400 | $0 | $0 | $0 |
Deed and Sales History
| 1 | 04/16/2014 | QCD | QUIT CLAIM DEED | BLACKBURN MARK & ROSE | BLACKBURN ROSIE J | | | | 125730 | 2014-02584 |
| 2 | 08/01/1990 | WARRANTY D | WARRANTY DEED | | | | | $40,000.00 | 0 | 1849-006060 |
Payout Agreement
| No payout information available.. |