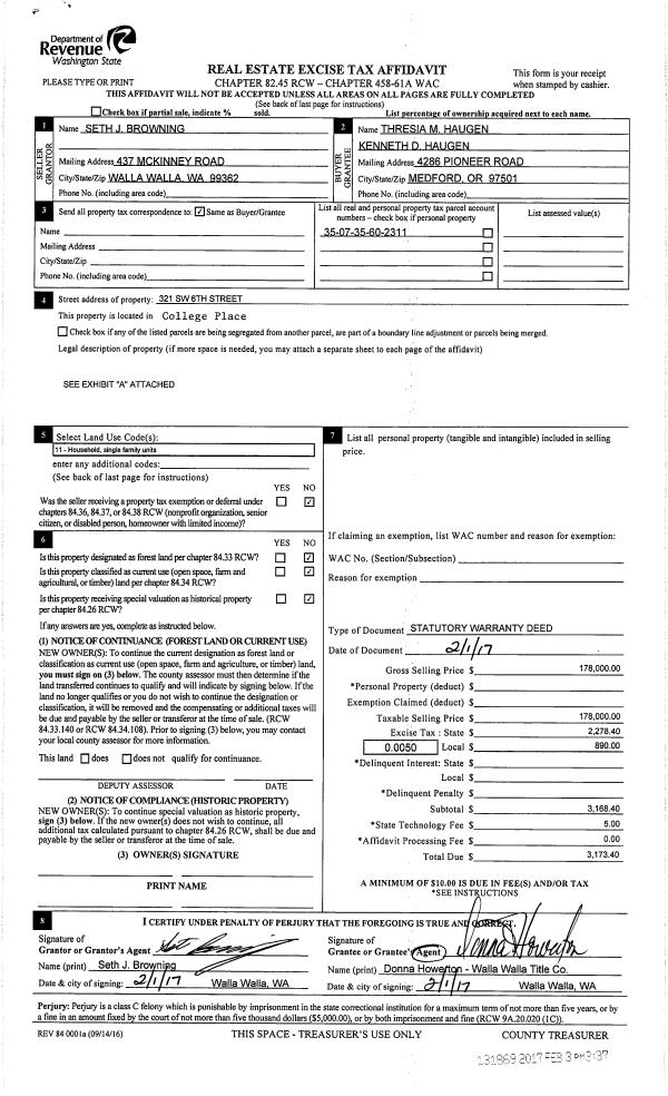
Property
Account |
| Property ID: | 4195 | Abbreviated Legal Description: | CP #2 TAX 5 LOT 2 BLK 23 |
| Parcel Number: | 350735602311 | Agent Code: | |
| Type: | Real | | |
| Tax Area: | 75 - CP 250 | Land Use Code | 11 |
| Open Space: | N | DFL | N |
| Historic Property: | N | Remodel Property: | N |
| Multi-Family Redevelopment: | N | | |
| Township: | 7 | Section: | 35 |
| Range: | 35 |
Location |
| Address: | 321 SW 6TH ST WA 99324 | Mapsco: | |
| Neighborhood: | A SFR | Map ID: | |
| Neighborhood CD: | 113011 |
Owner |
| Name: | HAUGEN KENNETH D & THRESIA M | Owner ID: | 60353 |
| Mailing Address: | 4286 PIONEER RD MEDFORD, OR 97501 | % Ownership: | 100.0000000000% |
| | | Exemptions: | |
Taxes and Assessment Details
Values
| (+) Improvement Homesite Value: | + | $0 | |
| (+) Improvement Non-Homesite Value: | + | $266,580 | |
| (+) Land Homesite Value: | + | $0 | |
| (+) Land Non-Homesite Value: | + | $44,230 | |
| (+) Curr Use (HS): | + | $0 | $0 |
| (+) Curr Use (NHS): | + | $0 | $0 |
| | | -------------------------- | |
| (=) Market Value: | = | $310,810 | |
| (–) Productivity Loss: | – | $0 | |
| | | -------------------------- | |
| (=) Subtotal: | = | $310,810 | |
| (+) Senior Appraised Value: | + | $0 | |
| (+) Non-Senior Appraised Value: | + | $310,810 | |
| | | -------------------------- | |
| (=) Total Appraised Value: | = | $310,810 | |
| (–) Senior Exemption Loss: | – | $0 | |
| (–) Exemption Loss: | – | $0 | |
| | | -------------------------- | |
| (=) Taxable Value: | = | $310,810 | |
Taxing Jurisdiction
| Owner: | HAUGEN KENNETH D & THRESIA M | | |
| % Ownership: | 100.0000000000% | | |
| Total Value: | $310,810 | | |
| Tax Area: | 75 - CP 250 |
| CERFD | CURRENT EXPENSE REFUND 010 | 0.0000000000 | $310,810 | $310,810 | $0.00 | | |
| CURREXP | CURRENT EXPENSE 010 | 1.0175366760 | $310,810 | $310,810 | $316.26 | | |
| HUMNSERV | HUMAN SERVICES 119 | 0.0250000000 | $310,810 | $310,810 | $7.77 | | |
| SLDREL | SOLDIERS RELIEF 121 | 0.0155990005 | $310,810 | $310,810 | $4.85 | | |
| COLLPLBOND | C OF CP BOND 644 | 0.4374241808 | $310,810 | $310,810 | $135.96 | | |
| COLLPLGEN | CITY OF CP 632 | 1.4453819216 | $310,810 | $310,810 | $449.24 | | |
| EMERGSER | EMS 147 | 0.3792580840 | $310,810 | $310,810 | $117.88 | | |
| EMSRFD | EMS REFUND 147 | 0.0000000000 | $310,810 | $310,810 | $0.00 | | |
| RURALLIB | RURAL LIBRARY 623 | 0.3710609029 | $310,810 | $310,810 | $115.33 | | |
| PORTRFD | PORT REFUND 640 | 0.0000000000 | $310,810 | $310,810 | $0.00 | | |
| PORTWWGEN | PORT OF WW 640 | 0.2460186015 | $310,810 | $310,810 | $76.47 | | |
| SD250BOND | SD #250 BOND 773 | 1.4560608159 | $310,810 | $310,810 | $452.56 | | |
| SD250GEN | SD #250 GENERAL 770 | 2.3880724087 | $310,810 | $310,810 | $742.24 | | |
| ST2 | STATE SCHOOL PART 2 600 | 0.8131451643 | $310,810 | $310,810 | $252.73 | | |
| STATESCHL | STATE SCHOOL 600 | 1.5158548041 | $310,810 | $310,810 | $471.14 | | |
| STREFUND | STATE REFUND LEVY 603 | 0.0000000000 | $310,810 | $310,810 | $0.00 | | |
| | Total Tax Rate: | 10.1104125603 | | | | | |
| | | | | Taxes w/Current Exemptions: | $3,142.43 | | |
| | | | | Taxes w/o Exemptions: | $3,142.43 | | |
Improvement / Building
| Improvement #1: | RESIDENTIAL | State Code: | 11 | 924.0 sqft | Value: | $266,580 |
| Exterior Wall: | SIDING | Heating/Cooling: | FORCED AIR | | Number of Bathrooms: | 2 | Number of Bedrooms: | 3 | | Plumbing: | 10 | Roof Covering: | COMP SHINGLE |
|
| | Type | Description | Class CD | Sub Class CD | Year Built | Area |
| | MA | Main Area | 1 | 30 | 1933 | 924.0 |
| | SI1 | SITE IMPROVEMENT | 1 | 30 | 1933 | 1.0 |
| | BASE | BASEMENT | 1 | 30 | 1933 | 884.0 |
| | BPF | BASEMENT -PARTITIONED FINISH | 1 | 30 | 1933 | 884.0 |
| | DTG | Detached Garage | 1 | 30 | 1933 | 440.0 |
| | OPS | OPEN PORCH W/STEPS | 1 | 30 | 1933 | 30.0 |
| | ATIC | ATTIC ROOM | 1 | 30 | 1933 | 306.0 |
| | WOD | Wood Deck | 1 | 30 | 1933 | 288.0 |
Sketch
Property Image
Land
| 1 | RES 1 | Converted: Residential | 0.1504 | 6552.00 | 0.00 | 0.00 | 1.00 | $44,230 | $0 |
Roll Value History
| 2026 | N/A | N/A | N/A | N/A | N/A |
| 2025 | $247,920 | $65,520 | $0 | $313,440 | $313,440 |
| 2024 | $266,580 | $44,230 | $0 | $310,810 | $310,810 |
| 2023 | $266,580 | $44,230 | $0 | $310,810 | $310,810 |
| 2022 | $238,020 | $44,230 | $0 | $282,250 | $282,250 |
| 2021 | $216,380 | $44,230 | $0 | $260,610 | $260,610 |
| 2020 | $160,280 | $44,230 | $0 | $204,510 | $204,510 |
| 2019 | $165,210 | $39,300 | $0 | $204,510 | $204,510 |
| 2018 | $137,680 | $39,300 | $0 | $176,980 | $176,980 |
| 2017 | $131,120 | $39,300 | $0 | $170,420 | $170,420 |
| 2016 | $119,200 | $39,300 | $0 | $158,500 | $158,500 |
| 2015 | $119,200 | $39,300 | $0 | $158,500 | $158,500 |
| 2014 | $119,200 | $39,300 | $0 | $158,500 | $158,500 |
| 2013 | $85,500 | $39,300 | $0 | $124,800 | $124,800 |
| 2012 | $85,500 | $39,300 | $0 | $0 | $0 |
| 2011 | $85,500 | $39,300 | $0 | $0 | $0 |
| 2010 | $79,600 | $39,300 | $0 | $0 | $0 |
| 2009 | $92,800 | $39,300 | $0 | $0 | $0 |
| 2008 | $74,200 | $19,700 | $0 | $0 | $0 |
| 2007 | $74,200 | $19,700 | $0 | $0 | $0 |
Deed and Sales History
| 1 | 02/03/2017 | SWD | STATUTORY WARRANTY DEED | BROWNING SETH J | HAUGEN KENNETH D & THRESIA M | | | $178,000.00 | 131869 | 2017-00956 |
| 2 | 09/12/2006 | WARRANTY D | WARRANTY DEED | THOMPSON, TERRY L ET UX | BROWNING, SETH J | | | $115,000.00 | 111187 | 2006-10999 |
| 3 | 06/26/1972 | WARRANTY D | WARRANTY DEED | | | | | $15,500.00 | 0 | 3460-522173 |
Payout Agreement
| No payout information available.. |