Property
Account |
| Property ID: | 4125 | Abbreviated Legal Description: | MOJONNIER HEIGHTS LOT 10 LESS E 174.24' |
| Parcel Number: | 350735540010 | Agent Code: | |
| Type: | Real | | |
| Tax Area: | 311 - 250-4 | Land Use Code | 11 |
| Open Space: | N | DFL | N |
| Historic Property: | N | Remodel Property: | N |
| Multi-Family Redevelopment: | N | | |
| Township: | 7 | Section: | 35 |
| Range: | 35 |
Location |
| Address: | 1543 SUMMIT PL WA 99324 | Mapsco: | |
| Neighborhood: | VG SFR Rural/City Inf | Map ID: | |
| Neighborhood CD: | 115012 |
Owner |
| Name: | FULMER GUNNER M & SARAH L | Owner ID: | 59324 |
| Mailing Address: | 1543 SUMMIT PL WALLA WALLA, WA 99362 | % Ownership: | 100.0000000000% |
| | | Exemptions: | |
Taxes and Assessment Details
Values
| (+) Improvement Homesite Value: | + | $0 | |
| (+) Improvement Non-Homesite Value: | + | $521,380 | |
| (+) Land Homesite Value: | + | $0 | |
| (+) Land Non-Homesite Value: | + | $100,730 | |
| (+) Curr Use (HS): | + | $0 | $0 |
| (+) Curr Use (NHS): | + | $0 | $0 |
| | | -------------------------- | |
| (=) Market Value: | = | $622,110 | |
| (–) Productivity Loss: | – | $0 | |
| | | -------------------------- | |
| (=) Subtotal: | = | $622,110 | |
| (+) Senior Appraised Value: | + | $0 | |
| (+) Non-Senior Appraised Value: | + | $622,110 | |
| | | -------------------------- | |
| (=) Total Appraised Value: | = | $622,110 | |
| (–) Senior Exemption Loss: | – | $0 | |
| (–) Exemption Loss: | – | $0 | |
| | | -------------------------- | |
| (=) Taxable Value: | = | $622,110 | |
Taxing Jurisdiction
| Owner: | FULMER GUNNER M & SARAH L | | |
| % Ownership: | 100.0000000000% | | |
| Total Value: | $622,110 | | |
| Tax Area: | 311 - 250-4 |
| CERFD | CURRENT EXPENSE REFUND 010 | 0.0000000000 | $622,110 | $622,110 | $0.00 | | |
| CURREXP | CURRENT EXPENSE 010 | 1.0175366760 | $622,110 | $622,110 | $633.02 | | |
| HUMNSERV | HUMAN SERVICES 119 | 0.0250000000 | $622,110 | $622,110 | $15.55 | | |
| SLDREL | SOLDIERS RELIEF 121 | 0.0155990005 | $622,110 | $622,110 | $9.70 | | |
| EMERGSER | EMS 147 | 0.3792580840 | $622,110 | $622,110 | $235.94 | | |
| EMSRFD | EMS REFUND 147 | 0.0000000000 | $622,110 | $622,110 | $0.00 | | |
| FD4EXP | FD #4 EXPENSE 686 | 0.8836993059 | $622,110 | $622,110 | $549.76 | | |
| RLBRFD | RURAL LIBRARY REFUND 623 | 0.0000000000 | $622,110 | $622,110 | $0.00 | | |
| RURALLIB | RURAL LIBRARY 623 | 0.3710609029 | $622,110 | $622,110 | $230.84 | | |
| PORTRFD | PORT REFUND 640 | 0.0000000000 | $622,110 | $622,110 | $0.00 | | |
| PORTWWGEN | PORT OF WW 640 | 0.2460186015 | $622,110 | $622,110 | $153.05 | | |
| SD250BOND | SD #250 BOND 773 | 1.4560608159 | $622,110 | $622,110 | $905.83 | | |
| SD250GEN | SD #250 GENERAL 770 | 2.3880724087 | $622,110 | $622,110 | $1,485.64 | | |
| ST2 | STATE SCHOOL PART 2 600 | 0.8131451643 | $622,110 | $622,110 | $505.87 | | |
| STATESCHL | STATE SCHOOL 600 | 1.5158548041 | $622,110 | $622,110 | $943.03 | | |
| STREFUND | STATE REFUND LEVY 603 | 0.0000000000 | $622,110 | $622,110 | $0.00 | | |
| COROAD | COUNTY ROAD 115 | 1.6549953990 | $622,110 | $622,110 | $1,029.59 | | |
| CRPRD | COUNTY ROAD REFUND 115 | 0.0000000000 | $622,110 | $622,110 | $0.00 | | |
| | Total Tax Rate: | 10.7663011628 | | | | | |
| | | | | Taxes w/Current Exemptions: | $6,697.82 | | |
| | | | | Taxes w/o Exemptions: | $6,697.82 | | |
Improvement / Building
| Improvement #1: | RESIDENTIAL | State Code: | 11 | 1594.0 sqft | Value: | $521,380 |
| Exterior Wall: | SIDING | Heating/Cooling: | REV-HEAT-PUMP-W/DUCT | | Number of Bathrooms: | 2.5 | Number of Bedrooms: | 3 | | Plumbing: | 11 | Roof Covering: | COMP SHINGLE |
|
| | Type | Description | Class CD | Sub Class CD | Year Built | Area |
| | MA | Main Area | 1 | 35 | 1961 | 1594.0 |
| | SI1 | SITE IMPROVEMENT | 1 | 35 | 1961 | 3.7 |
| | BASE | BASEMENT | 1 | 35 | 1961 | 1402.0 |
| | BPF | BASEMENT -PARTITIONED FINISH | 1 | 35 | 1961 | 1200.0 |
| | ATG | Attached Garage | 1 | 35 | 1961 | 576.0 |
| | RPO | OPEN PORCH W/ROOF | 1 | 35 | 1961 | 50.0 |
| | D2F | Double 2 Story Fireplace | 1 | 35 | 1961 | 1.0 |
| | UTST | Utility Storage Shed | 1 | 30 | 1961 | 90.0 |
| | POL2 | POLE BUILDING-CONCRETE | 1 | 30 | 2012 | 1120.0 |
Sketch
Property Image
Land
| 1 | RES 1 | Converted: Residential | 0.8800 | 38333.00 | 0.00 | 0.00 | 1.00 | $100,730 | $0 |
Roll Value History
| 2026 | N/A | N/A | N/A | N/A | N/A |
| 2025 | $469,240 | $174,030 | $0 | $643,270 | $643,270 |
| 2024 | $521,380 | $100,730 | $0 | $622,110 | $622,110 |
| 2023 | $521,380 | $100,730 | $0 | $622,110 | $622,110 |
| 2022 | $496,550 | $100,730 | $0 | $597,280 | $597,280 |
| 2021 | $381,960 | $100,730 | $0 | $482,690 | $482,690 |
| 2020 | $272,830 | $100,730 | $0 | $373,560 | $373,560 |
| 2019 | $288,660 | $84,900 | $0 | $373,560 | $373,560 |
| 2018 | $274,910 | $84,900 | $0 | $359,810 | $359,810 |
| 2017 | $249,920 | $84,900 | $0 | $334,820 | $334,820 |
| 2016 | $156,200 | $84,900 | $0 | $241,100 | $241,100 |
| 2015 | $142,000 | $84,900 | $0 | $226,900 | $226,900 |
| 2014 | $142,000 | $84,900 | $0 | $226,900 | $226,900 |
| 2013 | $142,000 | $84,900 | $0 | $226,900 | $226,900 |
| 2012 | $125,100 | $84,900 | $0 | $0 | $0 |
| 2011 | $142,600 | $113,500 | $0 | $0 | $0 |
| 2010 | $142,600 | $113,500 | $0 | $0 | $0 |
| 2009 | $156,100 | $113,500 | $0 | $0 | $0 |
| 2008 | $127,100 | $44,900 | $0 | $0 | $0 |
| 2007 | $127,100 | $44,900 | $0 | $0 | $0 |
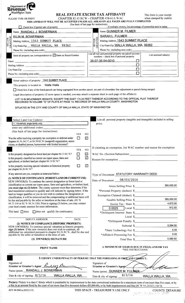
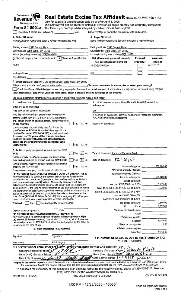
Deed and Sales History
| 1 | 12/22/2025 | SWD | STATUTORY WARRANTY DEED | FULMER GUNNER M & SARAH L | MAIDEN ANDREW & SAMANTHA | | | $660,000.00 | 150564 | 2025-07865 |
| 2 | 08/04/2016 | SWD | STATUTORY WARRANTY DEED | BOWERMAN RANDALL J | FULMER GUNNER M & SARAH L | | | $365,000.00 | 130771 | 2016-06156 |
| 3 | 03/01/2011 | WARRANTY D | WARRANTY DEED | UPPER COLUMBIA CORP | BOWERMAN, RANDALL J | | | $215,000.00 | 119817 | 2011-01895 |
| 4 | 08/14/1987 | WARRANTY D | WARRANTY DEED | | | | | $90,190.00 | 0 | 1668-706285 |
Payout Agreement
| No payout information available.. |