Property
Account |
| Property ID: | 4095 | Abbreviated Legal Description: | BLALOCK ORCHARDS TAX 43 LOT 3 BLK 45 |
| Parcel Number: | 350735524516 | Agent Code: | |
| Type: | Real | | |
| Tax Area: | 75 - CP 250 | Land Use Code | 11 |
| Open Space: | N | DFL | N |
| Historic Property: | N | Remodel Property: | N |
| Multi-Family Redevelopment: | N | | |
| Township: | 7 | Section: | 35 |
| Range: | 35 |
Location |
| Address: | 540 SW 3RD ST WA 99324 | Mapsco: | |
| Neighborhood: | A SFR | Map ID: | |
| Neighborhood CD: | 113011 |
Owner |
| Name: | WISDOM FRANKLIN D II | Owner ID: | 61877 |
| Mailing Address: | 540 SW 3RD ST COLLEGE PLACE, WA 99324 | % Ownership: | 100.0000000000% |
| | | Exemptions: | |
Taxes and Assessment Details
Property Tax Information as of
02/21/2026
Click on "Statement Details" to expand or collapse a tax statement.
* Please enter a valid date ** Please enter a valid date *
Statement Details |
| | TOTAL: | $0.00 | $0.00 | $0.00 | $0.00 | $0.00 | $0.00 |
|
| | $0.00 | $0.00 | $0.00 | $0.00 | $0.00 | $0.00 |
Values
| (+) Improvement Homesite Value: | + | $0 | |
| (+) Improvement Non-Homesite Value: | + | $388,880 | |
| (+) Land Homesite Value: | + | $0 | |
| (+) Land Non-Homesite Value: | + | $64,450 | |
| (+) Curr Use (HS): | + | $0 | $0 |
| (+) Curr Use (NHS): | + | $0 | $0 |
| | | -------------------------- | |
| (=) Market Value: | = | $453,330 | |
| (–) Productivity Loss: | – | $0 | |
| | | -------------------------- | |
| (=) Subtotal: | = | $453,330 | |
| (+) Senior Appraised Value: | + | $0 | |
| (+) Non-Senior Appraised Value: | + | $453,330 | |
| | | -------------------------- | |
| (=) Total Appraised Value: | = | $453,330 | |
| (–) Senior Exemption Loss: | – | $0 | |
| (–) Exemption Loss: | – | $0 | |
| | | -------------------------- | |
| (=) Taxable Value: | = | $453,330 | |
Taxing Jurisdiction
| Owner: | WISDOM FRANKLIN D II | | |
| % Ownership: | 100.0000000000% | | |
| Total Value: | $453,330 | | |
| Tax Area: | 75 - CP 250 |
| CERFD | CURRENT EXPENSE REFUND 010 | 0.0000000000 | $453,330 | $453,330 | $0.00 | | |
| CURREXP | CURRENT EXPENSE 010 | 1.0175366760 | $453,330 | $453,330 | $461.28 | | |
| HUMNSERV | HUMAN SERVICES 119 | 0.0250000000 | $453,330 | $453,330 | $11.33 | | |
| SLDREL | SOLDIERS RELIEF 121 | 0.0155990005 | $453,330 | $453,330 | $7.07 | | |
| COLLPLBOND | C OF CP BOND 644 | 0.4374241808 | $453,330 | $453,330 | $198.30 | | |
| COLLPLGEN | CITY OF CP 632 | 1.4453819216 | $453,330 | $453,330 | $655.23 | | |
| EMERGSER | EMS 147 | 0.3792580840 | $453,330 | $453,330 | $171.93 | | |
| EMSRFD | EMS REFUND 147 | 0.0000000000 | $453,330 | $453,330 | $0.00 | | |
| RURALLIB | RURAL LIBRARY 623 | 0.3710609029 | $453,330 | $453,330 | $168.21 | | |
| PORTRFD | PORT REFUND 640 | 0.0000000000 | $453,330 | $453,330 | $0.00 | | |
| PORTWWGEN | PORT OF WW 640 | 0.2460186015 | $453,330 | $453,330 | $111.53 | | |
| SD250BOND | SD #250 BOND 773 | 1.4560608159 | $453,330 | $453,330 | $660.08 | | |
| SD250GEN | SD #250 GENERAL 770 | 2.3880724087 | $453,330 | $453,330 | $1,082.58 | | |
| ST2 | STATE SCHOOL PART 2 600 | 0.8131451643 | $453,330 | $453,330 | $368.62 | | |
| STATESCHL | STATE SCHOOL 600 | 1.5158548041 | $453,330 | $453,330 | $687.18 | | |
| STREFUND | STATE REFUND LEVY 603 | 0.0000000000 | $453,330 | $453,330 | $0.00 | | |
| | Total Tax Rate: | 10.1104125603 | | | | | |
| | | | | Taxes w/Current Exemptions: | $4,583.34 | | |
| | | | | Taxes w/o Exemptions: | $4,583.34 | | |
Improvement / Building
| Improvement #1: | RESIDENTIAL | State Code: | 11 | 1607.0 sqft | Value: | $388,880 |
| Exterior Wall: | VINYL | Heating/Cooling: | WARM & COOLED AIR | | Number of Bathrooms: | 2 | Number of Bedrooms: | 3 | | Plumbing: | 13 | Roof Covering: | COMP SHINGLE |
|
| | Type | Description | Class CD | Sub Class CD | Year Built | Area |
| | MA | Main Area | 1 | 35 | 1995 | 1607.0 |
| | SI1 | SITE IMPROVEMENT | 1 | 35 | 1995 | 2.5 |
| | BASE | BASEMENT | 1 | 35 | 1995 | 1440.0 |
| | BPF | BASEMENT -PARTITIONED FINISH | 1 | 35 | 1995 | 1440.0 |
| | DTG | Detached Garage | 1 | 35 | 1995 | 1200.0 |
| | WOD | Wood Deck | 1 | 35 | 1995 | 20.0 |
| | RCD | WOOD DECK W/ROOF, CEILED | 1 | 35 | 1995 | 166.0 |
| | FBAT | FULL BATH | 1 | 35 | 1995 | 1.0 |
| | GFP | GAS FIREPLACE | 1 | 35 | 1995 | 1.0 |
Sketch
Property Image
Land
| 1 | RES 1 | Converted: Residential | 0.3600 | 15681.00 | 0.00 | 0.00 | 1.00 | $64,450 | $0 |
Roll Value History
| 2026 | N/A | N/A | N/A | N/A | N/A |
| 2025 | $388,880 | $97,690 | $0 | $486,570 | $486,570 |
| 2024 | $388,880 | $64,450 | $0 | $453,330 | $453,330 |
| 2023 | $388,880 | $64,450 | $0 | $453,330 | $453,330 |
| 2022 | $388,880 | $64,450 | $0 | $453,330 | $453,330 |
| 2021 | $299,140 | $64,450 | $0 | $363,590 | $363,590 |
| 2020 | $284,890 | $64,450 | $0 | $349,340 | $349,340 |
| 2019 | $297,340 | $52,000 | $0 | $349,340 | $349,340 |
| 2018 | $283,190 | $52,000 | $0 | $335,190 | $335,190 |
| 2017 | $188,790 | $52,000 | $0 | $240,790 | $240,790 |
| 2016 | $188,790 | $52,000 | $0 | $240,790 | $240,790 |
| 2015 | $179,800 | $52,000 | $0 | $231,800 | $231,800 |
| 2014 | $179,800 | $52,000 | $0 | $231,800 | $231,800 |
| 2013 | $179,800 | $52,000 | $0 | $231,800 | $231,800 |
| 2012 | $179,800 | $52,000 | $0 | $0 | $0 |
| 2011 | $179,800 | $52,000 | $0 | $0 | $0 |
| 2010 | $179,800 | $52,000 | $0 | $0 | $0 |
| 2009 | $205,600 | $52,000 | $0 | $0 | $0 |
| 2008 | $167,300 | $29,800 | $0 | $0 | $0 |
| 2007 | $167,300 | $29,800 | $0 | $0 | $0 |
Deed and Sales History
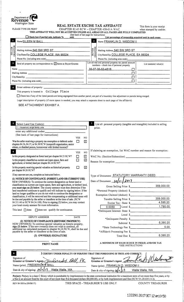
| 1 | 10/12/2017 | SWD | STATUTORY WARRANTY DEED | BALL EILEEN ESTATE OF | WISDOM FRANKLIN D II | | | $359,000.00 | 133390 | 2017-08098 |
| 2 | 04/17/2014 | COMMUNITY | COMMUNITY PROPERTY AGREEMENT | BALL ALBERT W SR & EILEEN | BALL EILEEN ESTATE OF | | | | 0 | 2014-02619 |
| 3 | 04/17/2014 | DEATH CERT | DEATH CERTIFICATE | BALL ALBERT W SR & EILEEN | | | | | 0 | 2014-02618 |
| 4 | 09/07/1993 | WARRANTY D | WARRANTY DEED | | | | | $23,000.00 | 79935 | 2109-309267 |
Payout Agreement
| No payout information available.. |