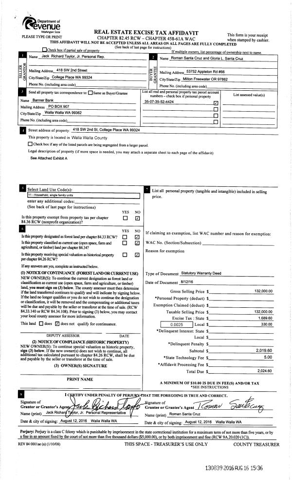
Property
Account |
| Property ID: | 4076 | Abbreviated Legal Description: | BLALOCK ORCHARDS TAX 2 & 2A LOT 12 BLK 44 |
| Parcel Number: | 350735524424 | Agent Code: | |
| Type: | Real | | |
| Tax Area: | 75 - CP 250 | Land Use Code | 11 |
| Open Space: | N | DFL | N |
| Historic Property: | N | Remodel Property: | N |
| Multi-Family Redevelopment: | N | | |
| Township: | 7 | Section: | 35 |
| Range: | 35 |
Location |
| Address: | 418 SW 2ND ST WA 99324 | Mapsco: | |
| Neighborhood: | A SFR | Map ID: | |
| Neighborhood CD: | 113011 |
Owner |
| Name: | SANTA CRUZ ROMAN & GLORIA L | Owner ID: | 59466 |
| Mailing Address: | 418 SW 2ND ST COLLEGE PLACE, WA 99324 | % Ownership: | 100.0000000000% |
| | | Exemptions: | |
Taxes and Assessment Details
Property Tax Information as of
02/21/2026
Click on "Statement Details" to expand or collapse a tax statement.
* Please enter a valid date ** Please enter a valid date *
Statement Details |
| | TOTAL: | $0.00 | $0.00 | $0.00 | $0.00 | $0.00 | $0.00 |
|
| | $0.00 | $0.00 | $0.00 | $0.00 | $0.00 | $0.00 |
Values
| (+) Improvement Homesite Value: | + | $0 | |
| (+) Improvement Non-Homesite Value: | + | $167,990 | |
| (+) Land Homesite Value: | + | $60,830 | |
| (+) Land Non-Homesite Value: | + | $0 | |
| (+) Curr Use (HS): | + | $0 | $0 |
| (+) Curr Use (NHS): | + | $0 | $0 |
| | | -------------------------- | |
| (=) Market Value: | = | $228,820 | |
| (–) Productivity Loss: | – | $0 | |
| | | -------------------------- | |
| (=) Subtotal: | = | $228,820 | |
| (+) Senior Appraised Value: | + | $0 | |
| (+) Non-Senior Appraised Value: | + | $228,820 | |
| | | -------------------------- | |
| (=) Total Appraised Value: | = | $228,820 | |
| (–) Senior Exemption Loss: | – | $0 | |
| (–) Exemption Loss: | – | $0 | |
| | | -------------------------- | |
| (=) Taxable Value: | = | $228,820 | |
Taxing Jurisdiction
| Owner: | SANTA CRUZ ROMAN & GLORIA L | | |
| % Ownership: | 100.0000000000% | | |
| Total Value: | $228,820 | | |
| Tax Area: | 75 - CP 250 |
| CERFD | CURRENT EXPENSE REFUND 010 | 0.0000000000 | $228,820 | $228,820 | $0.00 | | |
| CURREXP | CURRENT EXPENSE 010 | 1.0175366760 | $228,820 | $228,820 | $232.83 | | |
| HUMNSERV | HUMAN SERVICES 119 | 0.0250000000 | $228,820 | $228,820 | $5.72 | | |
| SLDREL | SOLDIERS RELIEF 121 | 0.0155990005 | $228,820 | $228,820 | $3.57 | | |
| COLLPLBOND | C OF CP BOND 644 | 0.4374241808 | $228,820 | $228,820 | $100.09 | | |
| COLLPLGEN | CITY OF CP 632 | 1.4453819216 | $228,820 | $228,820 | $330.73 | | |
| EMERGSER | EMS 147 | 0.3792580840 | $228,820 | $228,820 | $86.78 | | |
| EMSRFD | EMS REFUND 147 | 0.0000000000 | $228,820 | $228,820 | $0.00 | | |
| RURALLIB | RURAL LIBRARY 623 | 0.3710609029 | $228,820 | $228,820 | $84.91 | | |
| PORTRFD | PORT REFUND 640 | 0.0000000000 | $228,820 | $228,820 | $0.00 | | |
| PORTWWGEN | PORT OF WW 640 | 0.2460186015 | $228,820 | $228,820 | $56.29 | | |
| SD250BOND | SD #250 BOND 773 | 1.4560608159 | $228,820 | $228,820 | $333.18 | | |
| SD250GEN | SD #250 GENERAL 770 | 2.3880724087 | $228,820 | $228,820 | $546.44 | | |
| ST2 | STATE SCHOOL PART 2 600 | 0.8131451643 | $228,820 | $228,820 | $186.06 | | |
| STATESCHL | STATE SCHOOL 600 | 1.5158548041 | $228,820 | $228,820 | $346.86 | | |
| STREFUND | STATE REFUND LEVY 603 | 0.0000000000 | $228,820 | $228,820 | $0.00 | | |
| | Total Tax Rate: | 10.1104125603 | | | | | |
| | | | | Taxes w/Current Exemptions: | $2,313.46 | | |
| | | | | Taxes w/o Exemptions: | $2,313.46 | | |
Improvement / Building
| Improvement #1: | RESIDENTIAL | State Code: | 11 | 1202.0 sqft | Value: | $167,990 |
| Exterior Wall: | VINYL | Heating/Cooling: | FLOOR FURNACE | | Number of Bathrooms: | 1 | Number of Bedrooms: | 2 | | Plumbing: | 6 | Roof Covering: | COMP SHINGLE |
|
| | Type | Description | Class CD | Sub Class CD | Year Built | Area |
| | MA | Main Area | 1 | 25 | 1922 | 1202.0 |
| | SI1 | SITE IMPROVEMENT | 1 | 25 | 1922 | 1.5 |
| | BASE | BASEMENT | 1 | 25 | 1922 | 240.0 |
| | RCD | WOOD DECK W/ROOF, CEILED | 1 | 25 | 1922 | 72.0 |
Sketch
Property Image
Land
| 1 | RES 1 | Converted: Residential | 0.2100 | 9148.00 | 0.00 | 0.00 | 1.00 | $60,830 | $0 |
Roll Value History
| 2026 | N/A | N/A | N/A | N/A | N/A |
| 2025 | $211,670 | $90,200 | $0 | $301,870 | $301,870 |
| 2024 | $176,390 | $60,830 | $0 | $237,220 | $237,220 |
| 2023 | $167,990 | $60,830 | $0 | $228,820 | $228,820 |
| 2022 | $167,990 | $60,830 | $0 | $228,820 | $228,820 |
| 2021 | $152,720 | $60,830 | $0 | $213,550 | $213,550 |
| 2020 | $95,450 | $60,830 | $0 | $156,280 | $156,280 |
| 2019 | $109,880 | $46,400 | $0 | $156,280 | $156,280 |
| 2018 | $84,530 | $46,400 | $0 | $130,930 | $130,930 |
| 2017 | $84,530 | $46,400 | $0 | $130,930 | $130,930 |
| 2016 | $84,530 | $46,400 | $0 | $130,930 | $130,930 |
| 2015 | $80,500 | $46,400 | $0 | $126,900 | $50,560 |
| 2014 | $80,500 | $46,400 | $0 | $126,900 | $50,760 |
| 2013 | $80,500 | $46,400 | $0 | $126,900 | $126,900 |
| 2012 | $89,900 | $46,400 | $0 | $136,300 | $126,900 |
| 2011 | $80,500 | $46,400 | $0 | $0 | $0 |
| 2010 | $80,500 | $46,400 | $0 | $0 | $0 |
| 2009 | $94,600 | $46,400 | $0 | $0 | $0 |
| 2008 | $56,400 | $24,000 | $0 | $0 | $0 |
| 2007 | $56,400 | $24,000 | $0 | $0 | $0 |
Deed and Sales History
| 1 | 08/16/2016 | SWD | STATUTORY WARRANTY DEED | TAYLOR JACK RICHARD JR | SANTA CRUZ ROMAN & GLORIA L | | | $132,000.00 | 130839 | 2016-06542 |
| 2 | 11/04/2013 | DEATH CERT | DEATH CERTIFICATE | MILLER BARBARA J ESTATE OF | TAYLOR JACK RICHARD JR | | | | 0 | CC# 14-4-00082-9 |
| 3 | 04/02/1990 | QCD | QUIT CLAIM DEED | | | | | $0.00 | 0 | 1829-002165 |
Payout Agreement
| No payout information available.. |