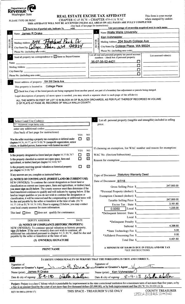
Property
Account |
| Property ID: | 4074 | Abbreviated Legal Description: | BLALOCK ORCHARDS N 50' OF LOT 12 BLK 44 |
| Parcel Number: | 350735524421 | Agent Code: | |
| Type: | Real | | |
| Tax Area: | 75 - CP 250 | Land Use Code | 11 |
| Open Space: | N | DFL | N |
| Historic Property: | N | Remodel Property: | N |
| Multi-Family Redevelopment: | N | | |
| Township: | 7 | Section: | 35 |
| Range: | 35 |
Location |
| Address: | 104 SW DAVIS AVE WA 99324 | Mapsco: | |
| Neighborhood: | A SFR | Map ID: | |
| Neighborhood CD: | 113011 |
Owner |
| Name: | WALLA WALLA UNIVERSITY | Owner ID: | 45263 |
| Mailing Address: | 204 S COLLEGE AVE COLLEGE PLACE, WA 99324 | % Ownership: | 100.0000000000% |
| | | Exemptions: | |
Taxes and Assessment Details
Values
| (+) Improvement Homesite Value: | + | $0 | |
| (+) Improvement Non-Homesite Value: | + | $251,980 | |
| (+) Land Homesite Value: | + | $0 | |
| (+) Land Non-Homesite Value: | + | $61,570 | |
| (+) Curr Use (HS): | + | $0 | $0 |
| (+) Curr Use (NHS): | + | $0 | $0 |
| | | -------------------------- | |
| (=) Market Value: | = | $313,550 | |
| (–) Productivity Loss: | – | $0 | |
| | | -------------------------- | |
| (=) Subtotal: | = | $313,550 | |
| (+) Senior Appraised Value: | + | $0 | |
| (+) Non-Senior Appraised Value: | + | $313,550 | |
| | | -------------------------- | |
| (=) Total Appraised Value: | = | $313,550 | |
| (–) Senior Exemption Loss: | – | $0 | |
| (–) Exemption Loss: | – | $0 | |
| | | -------------------------- | |
| (=) Taxable Value: | = | $313,550 | |
Taxing Jurisdiction
| Owner: | WALLA WALLA UNIVERSITY | | |
| % Ownership: | 100.0000000000% | | |
| Total Value: | $313,550 | | |
| Tax Area: | 75 - CP 250 |
| CERFD | CURRENT EXPENSE REFUND 010 | 0.0000000000 | $313,550 | $313,550 | $0.00 | | |
| CURREXP | CURRENT EXPENSE 010 | 1.0175366760 | $313,550 | $313,550 | $319.05 | | |
| HUMNSERV | HUMAN SERVICES 119 | 0.0250000000 | $313,550 | $313,550 | $7.84 | | |
| SLDREL | SOLDIERS RELIEF 121 | 0.0155990005 | $313,550 | $313,550 | $4.89 | | |
| COLLPLBOND | C OF CP BOND 644 | 0.4374241808 | $313,550 | $313,550 | $137.15 | | |
| COLLPLGEN | CITY OF CP 632 | 1.4453819216 | $313,550 | $313,550 | $453.20 | | |
| EMERGSER | EMS 147 | 0.3792580840 | $313,550 | $313,550 | $118.92 | | |
| EMSRFD | EMS REFUND 147 | 0.0000000000 | $313,550 | $313,550 | $0.00 | | |
| RURALLIB | RURAL LIBRARY 623 | 0.3710609029 | $313,550 | $313,550 | $116.35 | | |
| PORTRFD | PORT REFUND 640 | 0.0000000000 | $313,550 | $313,550 | $0.00 | | |
| PORTWWGEN | PORT OF WW 640 | 0.2460186015 | $313,550 | $313,550 | $77.14 | | |
| SD250BOND | SD #250 BOND 773 | 1.4560608159 | $313,550 | $313,550 | $456.55 | | |
| SD250GEN | SD #250 GENERAL 770 | 2.3880724087 | $313,550 | $313,550 | $748.78 | | |
| ST2 | STATE SCHOOL PART 2 600 | 0.8131451643 | $313,550 | $313,550 | $254.96 | | |
| STATESCHL | STATE SCHOOL 600 | 1.5158548041 | $313,550 | $313,550 | $475.30 | | |
| STREFUND | STATE REFUND LEVY 603 | 0.0000000000 | $313,550 | $313,550 | $0.00 | | |
| | Total Tax Rate: | 10.1104125603 | | | | | |
| | | | | Taxes w/Current Exemptions: | $3,170.13 | | |
| | | | | Taxes w/o Exemptions: | $3,170.13 | | |
Improvement / Building
| Improvement #1: | RESIDENTIAL | State Code: | 11 | 996.0 sqft | Value: | $251,980 |
| Exterior Wall: | STUCCO | Heating/Cooling: | WARM & COOLED AIR | | Number of Bathrooms: | 2 | Number of Bedrooms: | 2 | | Plumbing: | 9 | Roof Covering: | COMP SHINGLE |
|
| | Type | Description | Class CD | Sub Class CD | Year Built | Area |
| | MA | Main Area | 1 | 30 | 1926 | 996.0 |
| | SI1 | SITE IMPROVEMENT | 1 | 30 | 1926 | 1.5 |
| | BASE | BASEMENT | 1 | 30 | 1926 | 912.0 |
| | BPF | BASEMENT -PARTITIONED FINISH | 1 | 30 | 1926 | 912.0 |
| | DTG | Detached Garage | 1 | 30 | 1926 | 330.0 |
| | RPS | PORCH W/STEPS,ROOF | 1 | 30 | 1926 | 40.0 |
Sketch
Property Image
Land
| 1 | RES 1 | Converted: Residential | 0.2400 | 10454.00 | 0.00 | 0.00 | 1.00 | $61,570 | $0 |
Roll Value History
| 2026 | N/A | N/A | N/A | N/A | N/A |
| 2025 | $251,980 | $91,680 | $0 | $343,660 | $343,660 |
| 2024 | $251,980 | $61,570 | $0 | $313,550 | $313,550 |
| 2023 | $251,980 | $61,570 | $0 | $313,550 | $313,550 |
| 2022 | $251,980 | $61,570 | $0 | $313,550 | $313,550 |
| 2021 | $201,590 | $61,570 | $0 | $263,160 | $263,160 |
| 2020 | $143,990 | $61,570 | $0 | $205,560 | $205,560 |
| 2019 | $158,060 | $47,500 | $0 | $205,560 | $205,560 |
| 2018 | $112,900 | $47,500 | $0 | $160,400 | $160,400 |
| 2017 | $98,180 | $47,500 | $0 | $145,680 | $145,680 |
| 2016 | $89,250 | $47,500 | $0 | $136,750 | $136,750 |
| 2015 | $85,000 | $47,500 | $0 | $132,500 | $132,500 |
| 2014 | $85,000 | $47,500 | $0 | $132,500 | $132,500 |
| 2013 | $85,000 | $47,500 | $0 | $132,500 | $132,500 |
| 2012 | $69,800 | $47,500 | $0 | $0 | $0 |
| 2011 | $69,800 | $47,500 | $0 | $0 | $0 |
| 2010 | $72,100 | $47,500 | $0 | $0 | $0 |
| 2009 | $85,400 | $47,500 | $0 | $0 | $0 |
| 2008 | $70,700 | $25,100 | $0 | $0 | $0 |
| 2007 | $70,700 | $25,100 | $0 | $0 | $0 |
Deed and Sales History
| 1 | 08/10/2018 | SWD | STATUTORY WARRANTY DEED | DRAKE JAMES R | WALLA WALLA UNIVERSITY | | | $247,000.00 | 135314 | 2018-06580 |
| 2 | 06/01/2006 | WARRANTY D | WARRANTY DEED | JOHNSON, EDWIN & ELLA TRUST | DRAKE, JAMES R & JOYCE A | | | $85,063.00 | 110407 | 2006-06346 |
| 3 | 04/24/1974 | WARRANTY D | WARRANTY DEED | | | | | $15,650.00 | 0 | 1505-36316 |
Payout Agreement
| No payout information available.. |