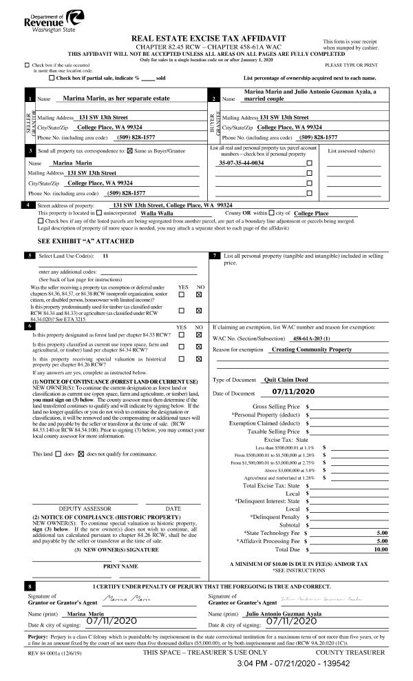
Property
Account |
| Property ID: | 4053 | Abbreviated Legal Description: | 35-7-35 TAX 17H |
| Parcel Number: | 350735440034 | Agent Code: | |
| Type: | Real | | |
| Tax Area: | 75 - CP 250 | Land Use Code | 11 |
| Open Space: | N | DFL | N |
| Historic Property: | N | Remodel Property: | N |
| Multi-Family Redevelopment: | N | | |
| Township: | 7 | Section: | 35 |
| Range: | 35 |
Location |
| Address: | 131 SW 13TH ST WA 99324 | Mapsco: | |
| Neighborhood: | A SFR | Map ID: | |
| Neighborhood CD: | 113011 |
Owner |
| Name: | MARIN MARINA & JULIO ANTONIO GUZMAN AYALA | Owner ID: | 67606 |
| Mailing Address: | 131 SW 13TH ST COLLEGE PLACE, WA 99324 | % Ownership: | 100.0000000000% |
| | | Exemptions: | |
Taxes and Assessment Details
Property Tax Information as of
02/21/2026
Click on "Statement Details" to expand or collapse a tax statement.
* Please enter a valid date ** Please enter a valid date *
Statement Details |
| | TOTAL: | $0.00 | $0.00 | $0.00 | $0.00 | $0.00 | $0.00 |
|
| | $0.00 | $0.00 | $0.00 | $0.00 | $0.00 | $0.00 |
Values
| (+) Improvement Homesite Value: | + | $0 | |
| (+) Improvement Non-Homesite Value: | + | $56,050 | |
| (+) Land Homesite Value: | + | $0 | |
| (+) Land Non-Homesite Value: | + | $49,980 | |
| (+) Curr Use (HS): | + | $0 | $0 |
| (+) Curr Use (NHS): | + | $0 | $0 |
| | | -------------------------- | |
| (=) Market Value: | = | $106,030 | |
| (–) Productivity Loss: | – | $0 | |
| | | -------------------------- | |
| (=) Subtotal: | = | $106,030 | |
| (+) Senior Appraised Value: | + | $0 | |
| (+) Non-Senior Appraised Value: | + | $106,030 | |
| | | -------------------------- | |
| (=) Total Appraised Value: | = | $106,030 | |
| (–) Senior Exemption Loss: | – | $0 | |
| (–) Exemption Loss: | – | $0 | |
| | | -------------------------- | |
| (=) Taxable Value: | = | $106,030 | |
Taxing Jurisdiction
| Owner: | MARIN MARINA & JULIO ANTONIO GUZMAN AYALA | | |
| % Ownership: | 100.0000000000% | | |
| Total Value: | $106,030 | | |
| Tax Area: | 75 - CP 250 |
| CERFD | CURRENT EXPENSE REFUND 010 | 0.0000000000 | $106,030 | $106,030 | $0.00 | | |
| CURREXP | CURRENT EXPENSE 010 | 1.0175366760 | $106,030 | $106,030 | $107.89 | | |
| HUMNSERV | HUMAN SERVICES 119 | 0.0250000000 | $106,030 | $106,030 | $2.65 | | |
| SLDREL | SOLDIERS RELIEF 121 | 0.0155990005 | $106,030 | $106,030 | $1.65 | | |
| COLLPLBOND | C OF CP BOND 644 | 0.4374241808 | $106,030 | $106,030 | $46.38 | | |
| COLLPLGEN | CITY OF CP 632 | 1.4453819216 | $106,030 | $106,030 | $153.25 | | |
| EMERGSER | EMS 147 | 0.3792580840 | $106,030 | $106,030 | $40.21 | | |
| EMSRFD | EMS REFUND 147 | 0.0000000000 | $106,030 | $106,030 | $0.00 | | |
| RURALLIB | RURAL LIBRARY 623 | 0.3710609029 | $106,030 | $106,030 | $39.34 | | |
| PORTRFD | PORT REFUND 640 | 0.0000000000 | $106,030 | $106,030 | $0.00 | | |
| PORTWWGEN | PORT OF WW 640 | 0.2460186015 | $106,030 | $106,030 | $26.09 | | |
| SD250BOND | SD #250 BOND 773 | 1.4560608159 | $106,030 | $106,030 | $154.39 | | |
| SD250GEN | SD #250 GENERAL 770 | 2.3880724087 | $106,030 | $106,030 | $253.21 | | |
| ST2 | STATE SCHOOL PART 2 600 | 0.8131451643 | $106,030 | $106,030 | $86.22 | | |
| STATESCHL | STATE SCHOOL 600 | 1.5158548041 | $106,030 | $106,030 | $160.73 | | |
| STREFUND | STATE REFUND LEVY 603 | 0.0000000000 | $106,030 | $106,030 | $0.00 | | |
| | Total Tax Rate: | 10.1104125603 | | | | | |
| | | | | Taxes w/Current Exemptions: | $1,072.01 | | |
| | | | | Taxes w/o Exemptions: | $1,072.01 | | |
Improvement / Building
| Improvement #1: | RESIDENTIAL | State Code: | 11 | 1110.0 sqft | Value: | $56,050 |
| Exterior Wall: | STUCCO | Foundation: | SLAB FOUNDATION | | Heating/Cooling: | STOVE-NO HEAT | Number of Bathrooms: | 1 | | Number of Bedrooms: | 3 | Plumbing: | 6 | | Roof Covering: | COMP SHINGLE |   |   |
|
| | Type | Description | Class CD | Sub Class CD | Year Built | Area |
| | MA | Main Area | 4 | 20 | 1948 | 1110.0 |
| | SI1 | SITE IMPROVEMENT | 4 | 20 | 1948 | 1.0 |
| | UPFL | Upper Floor (included in main area) | 4 | 20 | 1948 | 330.0 |
| | RPO | OPEN PORCH W/ROOF | 4 | 20 | 1948 | 25.0 |
Sketch
Property Image
Land
| 1 | RES 1 | Converted: Residential | 0.1700 | 7405.00 | 0.00 | 0.00 | 1.00 | $49,980 | $0 |
Roll Value History
| 2026 | N/A | N/A | N/A | N/A | N/A |
| 2025 | $50,440 | $74,050 | $0 | $124,490 | $124,490 |
| 2024 | $56,050 | $49,980 | $0 | $106,030 | $106,030 |
| 2023 | $56,050 | $49,980 | $0 | $106,030 | $106,030 |
| 2022 | $56,050 | $49,980 | $0 | $106,030 | $106,030 |
| 2021 | $56,050 | $49,980 | $0 | $106,030 | $106,030 |
| 2020 | $35,030 | $49,980 | $0 | $85,010 | $85,010 |
| 2019 | $40,610 | $44,400 | $0 | $85,010 | $85,010 |
| 2018 | $35,310 | $44,400 | $0 | $79,710 | $79,710 |
| 2017 | $35,310 | $44,400 | $0 | $79,710 | $79,710 |
| 2016 | $32,100 | $44,400 | $0 | $76,500 | $76,500 |
| 2015 | $32,100 | $44,400 | $0 | $76,500 | $76,500 |
| 2014 | $32,100 | $44,400 | $0 | $76,500 | $76,500 |
| 2013 | $32,100 | $44,400 | $0 | $76,500 | $76,500 |
| 2012 | $32,100 | $44,400 | $0 | $0 | $0 |
| 2011 | $32,100 | $44,400 | $0 | $0 | $0 |
| 2010 | $32,100 | $44,400 | $0 | $0 | $0 |
| 2009 | $40,600 | $44,400 | $0 | $0 | $0 |
| 2008 | $51,800 | $22,200 | $0 | $0 | $0 |
| 2007 | $51,800 | $22,200 | $0 | $0 | $0 |
Deed and Sales History
| 1 | 07/21/2020 | QCD | QUIT CLAIM DEED | MARIN MARINA | MARIN MARINA & JULIO ANTONIO GUZMAN AYALA | | | | 139542 | 2020-07041 |
| 2 | 06/14/2019 | QCD | QUIT CLAIM DEED | AYALA JULIO A GUZMAN | MARIN MARINA | | | | 137081 | 2019-04168 |
| 3 | 06/14/2019 | SWD | STATUTORY WARRANTY DEED | MARIN VICENTE & MARIA | MARIN MARINA | | | $100,000.00 | 137080 | 2019-04167 |
| 4 | 06/06/2001 | WARRANTY D | WARRANTY DEED | | | | | $68,900.00 | 97328 | 3140-105959 |
Payout Agreement
| No payout information available.. |