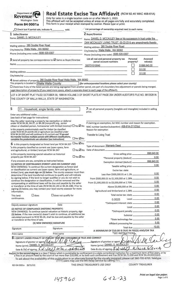
Property
Account |
| Property ID: | 4008 | Abbreviated Legal Description: | WHITMAN MISSION DC LOT 4 OF S/P (PTN TAX 1) |
| Parcel Number: | 350731510045 | Agent Code: | |
| Type: | Real | | |
| Tax Area: | 101 - 140-4 | Land Use Code | 83 |
| Open Space: | Y | DFL | N |
| Historic Property: | N | Remodel Property: | N |
| Multi-Family Redevelopment: | N | | |
| Township: | 7 | Section: | 31 |
| Range: | 35 |
Location |
| Address: | 285 DOUBLE RIVER RD WA 99362 | Mapsco: | |
| Neighborhood: | 0 Farm | Map ID: | |
| Neighborhood CD: | 2220 |
Owner |
| Name: | MCCAULEY DAN LIVING TRUST | Owner ID: | 73724 |
| Mailing Address: | C/O DANIEL D MCCAULEY 3039 CANYON VIEW CT WALLA WALLA, WA 99362 | % Ownership: | 100.0000000000% |
| | | Exemptions: | |
Taxes and Assessment Details
Property Tax Information as of
02/21/2026
Click on "Statement Details" to expand or collapse a tax statement.
* Please enter a valid date ** Please enter a valid date *
Statement Details |
| | TOTAL: | $0.00 | $0.00 | $0.00 | $0.00 | $0.00 | $0.00 |
|
| | $0.00 | $0.00 | $0.00 | $0.00 | $0.00 | $0.00 |
Values
| (+) Improvement Homesite Value: | + | $0 | |
| (+) Improvement Non-Homesite Value: | + | $611,950 | |
| (+) Land Homesite Value: | + | $0 | |
| (+) Land Non-Homesite Value: | + | $0 | |
| (+) Curr Use (HS): | + | $150,000 | $370 |
| (+) Curr Use (NHS): | + | $146,690 | $32,340 |
| | | -------------------------- | |
| (=) Market Value: | = | $908,640 | |
| (–) Productivity Loss: | – | $263,970 | |
| | | -------------------------- | |
| (=) Subtotal: | = | $644,670 | |
| (+) Senior Appraised Value: | + | $0 | |
| (+) Non-Senior Appraised Value: | + | $644,660 | |
| | | -------------------------- | |
| (=) Total Appraised Value: | = | $644,660 | |
| (–) Senior Exemption Loss: | – | $0 | |
| (–) Exemption Loss: | – | $0 | |
| | | -------------------------- | |
| (=) Taxable Value: | = | $644,660 | |
Taxing Jurisdiction
| Owner: | MCCAULEY DAN LIVING TRUST | | |
| % Ownership: | 100.0000000000% | | |
| Total Value: | $908,640 | | |
| Tax Area: | 101 - 140-4 |
| CERFD | CURRENT EXPENSE REFUND 010 | 0.0000000000 | $644,660 | $644,660 | $0.00 | | |
| CURREXP | CURRENT EXPENSE 010 | 1.0175366760 | $644,660 | $644,660 | $655.97 | | |
| HUMNSERV | HUMAN SERVICES 119 | 0.0250000000 | $644,660 | $644,660 | $16.12 | | |
| SLDREL | SOLDIERS RELIEF 121 | 0.0155990005 | $644,660 | $644,660 | $10.06 | | |
| EMERGSER | EMS 147 | 0.3792580840 | $644,660 | $644,660 | $244.49 | | |
| EMSRFD | EMS REFUND 147 | 0.0000000000 | $644,660 | $644,660 | $0.00 | | |
| FD4EXP | FD #4 EXPENSE 686 | 0.8836993059 | $644,660 | $644,660 | $569.69 | | |
| RLBRFD | RURAL LIBRARY REFUND 623 | 0.0000000000 | $644,660 | $644,660 | $0.00 | | |
| RURALLIB | RURAL LIBRARY 623 | 0.3710609029 | $644,660 | $644,660 | $239.21 | | |
| PORTRFD | PORT REFUND 640 | 0.0000000000 | $644,660 | $644,660 | $0.00 | | |
| PORTWWGEN | PORT OF WW 640 | 0.2460186015 | $644,660 | $644,660 | $158.60 | | |
| SD140BOND | SD #140 BOND 764 | 0.8342371393 | $644,660 | $644,660 | $537.80 | | |
| SD140GEN | SD #140 GENERAL 760 | 2.0646500647 | $644,660 | $644,660 | $1,331.00 | | |
| ST2 | STATE SCHOOL PART 2 600 | 0.8131451643 | $644,660 | $644,660 | $524.20 | | |
| STATESCHL | STATE SCHOOL 600 | 1.5158548041 | $644,660 | $644,660 | $977.21 | | |
| STREFUND | STATE REFUND LEVY 603 | 0.0000000000 | $644,660 | $644,660 | $0.00 | | |
| COROAD | COUNTY ROAD 115 | 1.6549953990 | $644,660 | $644,660 | $1,066.91 | | |
| CRPRD | COUNTY ROAD REFUND 115 | 0.0000000000 | $644,660 | $644,660 | $0.00 | | |
| | Total Tax Rate: | 9.8210551422 | | | | | |
| | | | | Taxes w/Current Exemptions: | $6,331.26 | | |
| | | | | Taxes w/o Exemptions: | $6,331.26 | | |
Improvement / Building
| Improvement #1: | RESIDENTIAL | State Code: | 83 | 4387.0 sqft | Value: | $611,950 |
| Exterior Wall: | SIDING | Foundation: | SLAB FOUNDATION | | Heating/Cooling: | WARM & COOLED AIR | Number of Bathrooms: | 4 | | Number of Bedrooms: | 3 | Plumbing: | 18 | | Roof Covering: | GALVANIZED METAL |   |   |
|
| | Type | Description | Class CD | Sub Class CD | Year Built | Area |
| | MA | Main Area | 4 | 45 | 2003 | 4387.0 |
| | SI1 | SITE IMPROVEMENT | 4 | 45 | 2003 | 4.5 |
| | UPFL | Upper Floor (included in main area) | 4 | 45 | 2003 | 1782.0 |
| | ATG | Attached Garage | 4 | 45 | 2003 | 832.0 |
| | RPO | OPEN PORCH W/ROOF | 4 | 45 | 2003 | 520.0 |
| | UTILITY | UTILITY BUILDING | 1 | 45 | 2003 | 80.0 |
| | LEAN TO | LEAN TO | 1 | 30 | 2003 | 2352.0 |
| | FBAT | FULL BATH | 1 | 45 | 2003 | 1.0 |
| | FIXT | AVERAGE FIXTURE | 1 | 45 | 2003 | 3.0 |
| | GIF | GARAGE INTERIOR FINISH | 1 | 45 | 2003 | 400.0 |
| | POL1 | POLE BUILDING-GRAVEL | 1 | 30 | 2003 | 3024.0 |
Sketch
Property Image
Land
| 1 | 15-HS | HOMESITE 150,000 | 1.0000 | 0.00 | 0.00 | 0.00 | 1.00 | $150,000 | $370 |
| 2 | C1-I | Class 1 Irrigated | 16.6700 | 0.00 | 0.00 | 0.00 | 1.00 | $101,690 | $21,000 |
| 3 | 5000-C1-I | 5000-C1 Irrigation | 9.0000 | 0.00 | 0.00 | 0.00 | 1.00 | $45,000 | $11,340 |
Roll Value History
| 2026 | N/A | N/A | N/A | N/A | N/A |
| 2025 | $611,950 | $303,360 | $32,350 | $644,300 | $644,300 |
| 2024 | $611,950 | $300,020 | $32,940 | $644,890 | $644,890 |
| 2023 | $611,950 | $296,690 | $32,710 | $644,660 | $644,660 |
| 2022 | $611,950 | $286,690 | $31,770 | $643,720 | $643,720 |
| 2021 | $611,950 | $278,350 | $32,170 | $644,120 | $644,120 |
| 2020 | $504,300 | $186,680 | $32,860 | $537,160 | $537,160 |
| 2019 | $504,300 | $178,350 | $33,880 | $538,180 | $538,180 |
| 2018 | $504,300 | $176,680 | $34,520 | $538,820 | $538,820 |
| 2017 | $504,300 | $176,680 | $35,610 | $539,910 | $539,910 |
| 2016 | $504,300 | $176,680 | $35,710 | $540,010 | $540,010 |
| 2015 | $504,300 | $170,010 | $32,560 | $536,860 | $536,860 |
| 2014 | $504,300 | $170,010 | $32,620 | $536,920 | $536,920 |
| 2013 | $504,300 | $168,300 | $28,000 | $532,300 | $532,300 |
| 2012 | $506,000 | $22,300 | $0 | $0 | $0 |
| 2011 | $506,700 | $21,500 | $0 | $0 | $0 |
| 2010 | $491,400 | $22,100 | $0 | $0 | $0 |
| 2009 | $508,700 | $21,800 | $0 | $0 | $0 |
| 2008 | $516,100 | $26,200 | $0 | $0 | $0 |
| 2007 | $423,600 | $58,200 | $0 | $0 | $0 |
Deed and Sales History
| 1 | 06/12/2023 | WARRANTY D | WARRANTY DEED | MC CAULEY DANIEL & CATHERINE | MCCAULEY DAN LIVING TRUST | | | | 145960 | 2023-03224 |
| 2 | 12/21/2023 | COMMUNITY | COMMUNITY PROPERTY AGREEMENT | MC CAULEY DANIEL & CATHERINE | MCCAULEY DANIEL D | | | | 0 | 2023-07404 |
| 3 | 11/19/1999 | WARRANTY D | WARRANTY DEED | | | | | $110,000.00 | 94059 | 2929-913221 |
Payout Agreement
| No payout information available.. |