Property
Account |
| Property ID: | 3972 | Abbreviated Legal Description: | ARTESIAN ACRES SUBD LOT 6 |
| Parcel Number: | 350726640006 | Agent Code: | |
| Type: | Real | | |
| Tax Area: | 311 - 250-4 | Land Use Code | 11 |
| Open Space: | N | DFL | N |
| Historic Property: | N | Remodel Property: | N |
| Multi-Family Redevelopment: | N | | |
| Township: | 7 | Section: | 26 |
| Range: | 35 |
Location |
| Address: | 74 SULLIVAN PL WA 99324 | Mapsco: | |
| Neighborhood: | A SFR Rural/City Infl | Map ID: | |
| Neighborhood CD: | 313012 |
Owner |
| Name: | LUCKEY RUSSELL A & CYNTHIA L | Owner ID: | 61539 |
| Mailing Address: | 74 SULLIVAN PL WALLA WALLA, WA 99362 | % Ownership: | 100.0000000000% |
| | | Exemptions: | |
Taxes and Assessment Details
Property Tax Information as of
04/19/2026
Click on "Statement Details" to expand or collapse a tax statement.
* Please enter a valid date ** Please enter a valid date *
Statement Details |
| | TOTAL: | $0.00 | $0.00 | $0.00 | $0.00 | $0.00 | $0.00 |
|
| | $0.00 | $0.00 | $0.00 | $0.00 | $0.00 | $0.00 |
Values
| (+) Improvement Homesite Value: | + | $0 | |
| (+) Improvement Non-Homesite Value: | + | $333,020 | |
| (+) Land Homesite Value: | + | $0 | |
| (+) Land Non-Homesite Value: | + | $90,000 | |
| (+) Curr Use (HS): | + | $0 | $0 |
| (+) Curr Use (NHS): | + | $0 | $0 |
| | | -------------------------- | |
| (=) Market Value: | = | $423,020 | |
| (–) Productivity Loss: | – | $0 | |
| | | -------------------------- | |
| (=) Subtotal: | = | $423,020 | |
| (+) Senior Appraised Value: | + | $0 | |
| (+) Non-Senior Appraised Value: | + | $423,020 | |
| | | -------------------------- | |
| (=) Total Appraised Value: | = | $423,020 | |
| (–) Senior Exemption Loss: | – | $0 | |
| (–) Exemption Loss: | – | $0 | |
| | | -------------------------- | |
| (=) Taxable Value: | = | $423,020 | |
Taxing Jurisdiction
| Owner: | LUCKEY RUSSELL A & CYNTHIA L | | |
| % Ownership: | 100.0000000000% | | |
| Total Value: | $423,020 | | |
| Tax Area: | 311 - 250-4 |
| CERFD | CURRENT EXPENSE REFUND 010 | 0.0000000000 | $423,020 | $423,020 | $0.00 | | |
| CURREXP | CURRENT EXPENSE 010 | 1.0175366760 | $423,020 | $423,020 | $430.44 | | |
| HUMNSERV | HUMAN SERVICES 119 | 0.0250000000 | $423,020 | $423,020 | $10.58 | | |
| SLDREL | SOLDIERS RELIEF 121 | 0.0155990005 | $423,020 | $423,020 | $6.60 | | |
| EMERGSER | EMS 147 | 0.3792580840 | $423,020 | $423,020 | $160.43 | | |
| EMSRFD | EMS REFUND 147 | 0.0000000000 | $423,020 | $423,020 | $0.00 | | |
| FD4EXP | FD #4 EXPENSE 686 | 0.8836993059 | $423,020 | $423,020 | $373.82 | | |
| RLBRFD | RURAL LIBRARY REFUND 623 | 0.0000000000 | $423,020 | $423,020 | $0.00 | | |
| RURALLIB | RURAL LIBRARY 623 | 0.3710609029 | $423,020 | $423,020 | $156.97 | | |
| PORTRFD | PORT REFUND 640 | 0.0000000000 | $423,020 | $423,020 | $0.00 | | |
| PORTWWGEN | PORT OF WW 640 | 0.2460186015 | $423,020 | $423,020 | $104.07 | | |
| SD250BOND | SD #250 BOND 773 | 1.4560608159 | $423,020 | $423,020 | $615.94 | | |
| SD250GEN | SD #250 GENERAL 770 | 2.3880724087 | $423,020 | $423,020 | $1,010.20 | | |
| ST2 | STATE SCHOOL PART 2 600 | 0.8131451643 | $423,020 | $423,020 | $343.98 | | |
| STATESCHL | STATE SCHOOL 600 | 1.5158548041 | $423,020 | $423,020 | $641.24 | | |
| STREFUND | STATE REFUND LEVY 603 | 0.0000000000 | $423,020 | $423,020 | $0.00 | | |
| COROAD | COUNTY ROAD 115 | 1.6549953990 | $423,020 | $423,020 | $700.10 | | |
| CRPRD | COUNTY ROAD REFUND 115 | 0.0000000000 | $423,020 | $423,020 | $0.00 | | |
| | Total Tax Rate: | 10.7663011628 | | | | | |
| | | | | Taxes w/Current Exemptions: | $4,554.37 | | |
| | | | | Taxes w/o Exemptions: | $4,554.37 | | |
Improvement / Building
| Improvement #1: | RESIDENTIAL | State Code: | 11 | 1817.0 sqft | Value: | $333,020 |
| Exterior Wall: | PLYWOOD | Heating/Cooling: | WARM & COOLED AIR | | Number of Bathrooms: | 2.5 | Number of Bedrooms: | 3 | | Plumbing: | 11 | Roof Covering: | COMP SHINGLE |
|
| | Type | Description | Class CD | Sub Class CD | Year Built | Area |
| | MA | Main Area | 2 | 35 | 2000 | 1817.0 |
| | SI1 | SITE IMPROVEMENT | 2 | 35 | 0 | 2.5 |
| | ATG | Attached Garage | 2 | 35 | 2000 | 528.0 |
| | UPFL | Upper Floor (included in main area) | 2 | 35 | 2000 | 873.0 |
| | BON2 | BONUS RM ATT/REC OR APT FINISH | 2 | 35 | 2000 | 264.0 |
| | CPC | COVERED CARPORT/PATIO | 2 | 35 | 0 | 192.0 |
| | CPC | COVERED CARPORT/PATIO | 2 | 35 | 0 | 211.0 |
Sketch
Property Image
Land
| 1 | RES 1 | Converted: Residential | 0.4607 | 20066.00 | 0.00 | 0.00 | 1.00 | $90,000 | $0 |
Roll Value History
| 2026 | N/A | N/A | N/A | N/A | N/A |
| 2025 | $432,930 | $90,000 | $0 | $522,930 | $522,930 |
| 2024 | $333,020 | $90,000 | $0 | $423,020 | $423,020 |
| 2023 | $333,020 | $90,000 | $0 | $423,020 | $423,020 |
| 2022 | $333,020 | $90,000 | $0 | $423,020 | $423,020 |
| 2021 | $297,700 | $55,000 | $0 | $352,700 | $352,700 |
| 2020 | $229,000 | $55,000 | $0 | $284,000 | $284,000 |
| 2019 | $229,000 | $55,000 | $0 | $284,000 | $284,000 |
| 2018 | $213,920 | $55,000 | $0 | $268,920 | $268,920 |
| 2017 | $213,920 | $55,000 | $0 | $268,920 | $268,920 |
| 2016 | $213,920 | $55,000 | $0 | $268,920 | $268,920 |
| 2015 | $173,900 | $55,000 | $0 | $228,900 | $228,900 |
| 2014 | $173,900 | $55,000 | $0 | $228,900 | $228,900 |
| 2013 | $173,900 | $55,000 | $0 | $228,900 | $228,900 |
| 2012 | $173,900 | $55,000 | $0 | $0 | $0 |
| 2011 | $173,900 | $55,000 | $0 | $0 | $0 |
| 2010 | $208,500 | $55,000 | $0 | $0 | $0 |
| 2009 | $262,800 | $30,000 | $0 | $0 | $0 |
| 2008 | $171,900 | $30,000 | $0 | $0 | $0 |
| 2007 | $171,900 | $30,000 | $0 | $0 | $0 |
Deed and Sales History
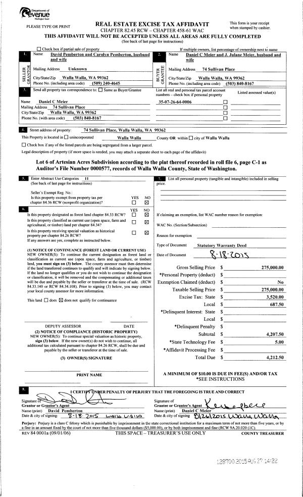
| 1 | 08/14/2017 | SWD | STATUTORY WARRANTY DEED | MEIER DANIEL C & J JULANE | LUCKEY RUSSELL A & CYNTHIA L | | | $315,000.00 | 132987 | 2017-06210 |
| 2 | 08/27/2015 | SWD | STATUTORY WARRANTY DEED | PEMBERTON DAVID & CAROLYN | MEIER DANIEL C & J JULANE | | | $275,000.00 | 128700 | 2015-07521 |
| 3 | 09/08/2005 | WARRANTY D | WARRANTY DEED | MURRAY, MATTHEW B | PEMBERTON, DAVID & CAROLYN | | | $247,000.00 | 108447 | 2005-11150 |
| 4 | 09/08/2003 | WARRANTY D | WARRANTY DEED | CROFT, RANDY & KRISTA | MURRAY, MATTHEW B | | | $202,000.00 | 102961 | 2003-13663 |
| 5 | 10/30/2000 | WARRANTY D | WARRANTY DEED | | | | | $155,000.00 | 96121 | 3040-010531 |
Payout Agreement
| No payout information available.. |