Property
Account |
| Property ID: | 3971 | Abbreviated Legal Description: | ARTESIAN ACRES SUBD LOT 5 |
| Parcel Number: | 350726640005 | Agent Code: | |
| Type: | Real | | |
| Tax Area: | 311 - 250-4 | Land Use Code | 11 |
| Open Space: | N | DFL | N |
| Historic Property: | N | Remodel Property: | N |
| Multi-Family Redevelopment: | N | | |
| Township: | 7 | Section: | 26 |
| Range: | 35 |
Location |
| Address: | 87 SULLIVAN PL WA 99324 | Mapsco: | |
| Neighborhood: | A SFR Rural/City Infl | Map ID: | |
| Neighborhood CD: | 313012 |
Owner |
| Name: | WALL ELIZABETH A | Owner ID: | 59886 |
| Mailing Address: | 87 SULLIVAN PL WALLA WALLA, WA 99362 | % Ownership: | 100.0000000000% |
| | | Exemptions: | |
Taxes and Assessment Details
Property Tax Information as of
02/21/2026
Click on "Statement Details" to expand or collapse a tax statement.
* Please enter a valid date ** Please enter a valid date *
Statement Details |
| | TOTAL: | $0.00 | $0.00 | $0.00 | $0.00 | $0.00 | $0.00 |
|
| | $0.00 | $0.00 | $0.00 | $0.00 | $0.00 | $0.00 |
Values
| (+) Improvement Homesite Value: | + | $0 | |
| (+) Improvement Non-Homesite Value: | + | $598,160 | |
| (+) Land Homesite Value: | + | $0 | |
| (+) Land Non-Homesite Value: | + | $90,000 | |
| (+) Curr Use (HS): | + | $0 | $0 |
| (+) Curr Use (NHS): | + | $0 | $0 |
| | | -------------------------- | |
| (=) Market Value: | = | $688,160 | |
| (–) Productivity Loss: | – | $0 | |
| | | -------------------------- | |
| (=) Subtotal: | = | $688,160 | |
| (+) Senior Appraised Value: | + | $0 | |
| (+) Non-Senior Appraised Value: | + | $688,160 | |
| | | -------------------------- | |
| (=) Total Appraised Value: | = | $688,160 | |
| (–) Senior Exemption Loss: | – | $0 | |
| (–) Exemption Loss: | – | $0 | |
| | | -------------------------- | |
| (=) Taxable Value: | = | $688,160 | |
Taxing Jurisdiction
| Owner: | WALL ELIZABETH A | | |
| % Ownership: | 100.0000000000% | | |
| Total Value: | $688,160 | | |
| Tax Area: | 311 - 250-4 |
| CERFD | CURRENT EXPENSE REFUND 010 | 0.0000000000 | $688,160 | $688,160 | $0.00 | | |
| CURREXP | CURRENT EXPENSE 010 | 1.0175366760 | $688,160 | $688,160 | $700.23 | | |
| HUMNSERV | HUMAN SERVICES 119 | 0.0250000000 | $688,160 | $688,160 | $17.20 | | |
| SLDREL | SOLDIERS RELIEF 121 | 0.0155990005 | $688,160 | $688,160 | $10.73 | | |
| EMERGSER | EMS 147 | 0.3792580840 | $688,160 | $688,160 | $260.99 | | |
| EMSRFD | EMS REFUND 147 | 0.0000000000 | $688,160 | $688,160 | $0.00 | | |
| FD4EXP | FD #4 EXPENSE 686 | 0.8836993059 | $688,160 | $688,160 | $608.13 | | |
| RLBRFD | RURAL LIBRARY REFUND 623 | 0.0000000000 | $688,160 | $688,160 | $0.00 | | |
| RURALLIB | RURAL LIBRARY 623 | 0.3710609029 | $688,160 | $688,160 | $255.35 | | |
| PORTRFD | PORT REFUND 640 | 0.0000000000 | $688,160 | $688,160 | $0.00 | | |
| PORTWWGEN | PORT OF WW 640 | 0.2460186015 | $688,160 | $688,160 | $169.30 | | |
| SD250BOND | SD #250 BOND 773 | 1.4560608159 | $688,160 | $688,160 | $1,002.00 | | |
| SD250GEN | SD #250 GENERAL 770 | 2.3880724087 | $688,160 | $688,160 | $1,643.38 | | |
| ST2 | STATE SCHOOL PART 2 600 | 0.8131451643 | $688,160 | $688,160 | $559.57 | | |
| STATESCHL | STATE SCHOOL 600 | 1.5158548041 | $688,160 | $688,160 | $1,043.15 | | |
| STREFUND | STATE REFUND LEVY 603 | 0.0000000000 | $688,160 | $688,160 | $0.00 | | |
| COROAD | COUNTY ROAD 115 | 1.6549953990 | $688,160 | $688,160 | $1,138.90 | | |
| CRPRD | COUNTY ROAD REFUND 115 | 0.0000000000 | $688,160 | $688,160 | $0.00 | | |
| | Total Tax Rate: | 10.7663011628 | | | | | |
| | | | | Taxes w/Current Exemptions: | $7,408.93 | | |
| | | | | Taxes w/o Exemptions: | $7,408.93 | | |
Improvement / Building
| Improvement #1: | RESIDENTIAL | State Code: | 11 | 3510.0 sqft | Value: | $598,160 |
| Exterior Wall: | PLYWOOD | Heating/Cooling: | HEAT PUMP | | Number of Bathrooms: | 4 | Number of Bedrooms: | 5 | | Plumbing: | 16 | Roof Covering: | COMP SHINGLE |
|
| | Type | Description | Class CD | Sub Class CD | Year Built | Area |
| | MA | Main Area | 1 | 35 | 2000 | 3510.0 |
| | SI1 | SITE IMPROVEMENT | 1 | 35 | 0 | 3.5 |
| | BASE | BASEMENT | 1 | 35 | 2000 | 770.0 |
| | BPF | BASEMENT -PARTITIONED FINISH | 1 | 35 | 2000 | 770.0 |
| | ATG | Attached Garage | 1 | 35 | 2000 | 1192.0 |
| | S1F | Single One Story Fireplace | 1 | 35 | 2000 | 1.0 |
| | WOD | Wood Deck | 1 | 35 | 2000 | 396.0 |
| | RPO | OPEN PORCH W/ROOF | 1 | 35 | 2000 | 96.0 |
Sketch
Property Image
Land
| 1 | RES 1 | Converted: Residential | 0.5099 | 22212.00 | 0.00 | 0.00 | 1.00 | $90,000 | $0 |
Roll Value History
| 2026 | N/A | N/A | N/A | N/A | N/A |
| 2025 | $598,160 | $90,000 | $0 | $688,160 | $688,160 |
| 2024 | $598,160 | $90,000 | $0 | $688,160 | $688,160 |
| 2023 | $598,160 | $90,000 | $0 | $688,160 | $688,160 |
| 2022 | $498,470 | $90,000 | $0 | $588,470 | $588,470 |
| 2021 | $460,400 | $55,000 | $0 | $515,400 | $515,400 |
| 2020 | $418,550 | $55,000 | $0 | $473,550 | $473,550 |
| 2019 | $418,550 | $55,000 | $0 | $473,550 | $473,550 |
| 2018 | $380,500 | $55,000 | $0 | $435,500 | $435,500 |
| 2017 | $317,080 | $55,000 | $0 | $372,080 | $372,080 |
| 2016 | $317,080 | $55,000 | $0 | $372,080 | $372,080 |
| 2015 | $311,700 | $55,000 | $0 | $366,700 | $366,700 |
| 2014 | $311,700 | $55,000 | $0 | $366,700 | $366,700 |
| 2013 | $311,700 | $55,000 | $0 | $366,700 | $366,700 |
| 2012 | $294,200 | $55,000 | $0 | $0 | $0 |
| 2011 | $294,200 | $55,000 | $0 | $0 | $0 |
| 2010 | $231,000 | $55,000 | $0 | $0 | $0 |
| 2009 | $287,800 | $30,000 | $0 | $0 | $0 |
| 2008 | $214,500 | $30,000 | $0 | $0 | $0 |
| 2007 | $214,500 | $30,000 | $0 | $0 | $0 |
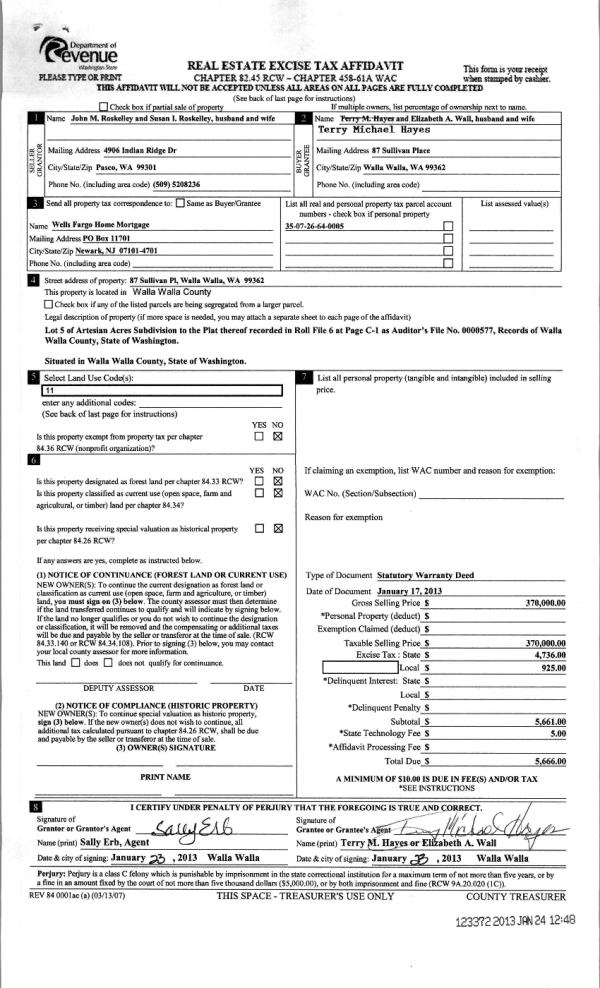
Deed and Sales History
| 1 | 10/27/2016 | QCD | QUIT CLAIM DEED | HAYES TERRY MICHAEL | WALL ELIZABETH A | | | | 131326 | 2016-08906 |
| 2 | 01/24/2013 | WARRANTY D | WARRANTY DEED | ROSKELLEY, JOHN M & SUSAN I | HAYES, TERRY MICHAEL | | | $370,000.00 | 123372 | 2013-00696 |
| 3 | 11/01/2000 | WARRANTY D | WARRANTY DEED | | | | | $164,000.00 | 96123 | 3040-010537 |
Payout Agreement
| No payout information available.. |