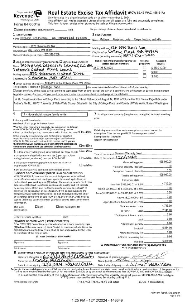
Property
Account |
| Property ID: | 3967 | Abbreviated Legal Description: | GREYSTONE ADDN LOT 28 |
| Parcel Number: | 350726630028 | Agent Code: | |
| Type: | Real | | |
| Tax Area: | 75 - CP 250 | Land Use Code | 11 |
| Open Space: | N | DFL | N |
| Historic Property: | N | Remodel Property: | N |
| Multi-Family Redevelopment: | N | | |
| Township: | 7 | Section: | 26 |
| Range: | 35 |
Location |
| Address: | 123 NW EARL LN WA 99324 | Mapsco: | |
| Neighborhood: | A SFR | Map ID: | |
| Neighborhood CD: | 113011 |
Owner |
| Name: | PLANTARIC STEPHANIE LEIGH | Owner ID: | 71883 |
| Mailing Address: | 123 NW EARL LN COLLEGE PLACE, WA 99324 | % Ownership: | 100.0000000000% |
| | | Exemptions: | |
Taxes and Assessment Details
Property Tax Information as of
02/21/2026
Click on "Statement Details" to expand or collapse a tax statement.
* Please enter a valid date ** Please enter a valid date *
Statement Details |
| | TOTAL: | $0.00 | $0.00 | $0.00 | $0.00 | $0.00 | $0.00 |
|
| | $0.00 | $0.00 | $0.00 | $0.00 | $0.00 | $0.00 |
Values
| (+) Improvement Homesite Value: | + | $0 | |
| (+) Improvement Non-Homesite Value: | + | $343,530 | |
| (+) Land Homesite Value: | + | $0 | |
| (+) Land Non-Homesite Value: | + | $70,000 | |
| (+) Curr Use (HS): | + | $0 | $0 |
| (+) Curr Use (NHS): | + | $0 | $0 |
| | | -------------------------- | |
| (=) Market Value: | = | $413,530 | |
| (–) Productivity Loss: | – | $0 | |
| | | -------------------------- | |
| (=) Subtotal: | = | $413,530 | |
| (+) Senior Appraised Value: | + | $0 | |
| (+) Non-Senior Appraised Value: | + | $413,530 | |
| | | -------------------------- | |
| (=) Total Appraised Value: | = | $413,530 | |
| (–) Senior Exemption Loss: | – | $0 | |
| (–) Exemption Loss: | – | $0 | |
| | | -------------------------- | |
| (=) Taxable Value: | = | $413,530 | |
Taxing Jurisdiction
| Owner: | PLANTARIC STEPHANIE LEIGH | | |
| % Ownership: | 100.0000000000% | | |
| Total Value: | $413,530 | | |
| Tax Area: | 75 - CP 250 |
| CERFD | CURRENT EXPENSE REFUND 010 | 0.0000000000 | $413,530 | $413,530 | $0.00 | | |
| CURREXP | CURRENT EXPENSE 010 | 1.0175366760 | $413,530 | $413,530 | $420.78 | | |
| HUMNSERV | HUMAN SERVICES 119 | 0.0250000000 | $413,530 | $413,530 | $10.34 | | |
| SLDREL | SOLDIERS RELIEF 121 | 0.0155990005 | $413,530 | $413,530 | $6.45 | | |
| COLLPLBOND | C OF CP BOND 644 | 0.4374241808 | $413,530 | $413,530 | $180.89 | | |
| COLLPLGEN | CITY OF CP 632 | 1.4453819216 | $413,530 | $413,530 | $597.71 | | |
| EMERGSER | EMS 147 | 0.3792580840 | $413,530 | $413,530 | $156.83 | | |
| EMSRFD | EMS REFUND 147 | 0.0000000000 | $413,530 | $413,530 | $0.00 | | |
| RURALLIB | RURAL LIBRARY 623 | 0.3710609029 | $413,530 | $413,530 | $153.44 | | |
| PORTRFD | PORT REFUND 640 | 0.0000000000 | $413,530 | $413,530 | $0.00 | | |
| PORTWWGEN | PORT OF WW 640 | 0.2460186015 | $413,530 | $413,530 | $101.74 | | |
| SD250BOND | SD #250 BOND 773 | 1.4560608159 | $413,530 | $413,530 | $602.12 | | |
| SD250GEN | SD #250 GENERAL 770 | 2.3880724087 | $413,530 | $413,530 | $987.54 | | |
| ST2 | STATE SCHOOL PART 2 600 | 0.8131451643 | $413,530 | $413,530 | $336.26 | | |
| STATESCHL | STATE SCHOOL 600 | 1.5158548041 | $413,530 | $413,530 | $626.85 | | |
| STREFUND | STATE REFUND LEVY 603 | 0.0000000000 | $413,530 | $413,530 | $0.00 | | |
| | Total Tax Rate: | 10.1104125603 | | | | | |
| | | | | Taxes w/Current Exemptions: | $4,180.95 | | |
| | | | | Taxes w/o Exemptions: | $4,180.95 | | |
Improvement / Building
| Improvement #1: | RESIDENTIAL | State Code: | 11 | 2046.0 sqft | Value: | $343,530 |
| Exterior Wall: | PLYWOOD | Heating/Cooling: | WARM & COOLED AIR | | Number of Bathrooms: | 3 | Number of Bedrooms: | 3 | | Plumbing: | 11 | Roof Covering: | COMP SHINGLE |
|
| | Type | Description | Class CD | Sub Class CD | Year Built | Area |
| | MA | Main Area | 2 | 30 | 1999 | 2046.0 |
| | SI1 | SITE IMPROVEMENT | 2 | 30 | 1999 | 2.0 |
| | UPFL | Upper Floor (included in main area) | 2 | 30 | 1999 | 1023.0 |
| | ATG | Attached Garage | 2 | 30 | 1999 | 400.0 |
| | CPC | COVERED CARPORT/PATIO | 2 | 30 | 1999 | 144.0 |
| | RPC | OPEN PORCH W/ROOF , CEILED | 2 | 30 | 1999 | 216.0 |
Sketch
Property Image
Land
| 1 | RES 1 | Converted: Residential | 0.1377 | 6000.00 | 0.00 | 0.00 | 1.00 | $70,000 | $0 |
Roll Value History
| 2026 | N/A | N/A | N/A | N/A | N/A |
| 2025 | $288,570 | $140,000 | $0 | $428,570 | $428,570 |
| 2024 | $360,710 | $70,000 | $0 | $430,710 | $430,710 |
| 2023 | $343,530 | $70,000 | $0 | $413,530 | $413,530 |
| 2022 | $343,530 | $70,000 | $0 | $413,530 | $413,530 |
| 2021 | $245,380 | $70,000 | $0 | $315,380 | $315,380 |
| 2020 | $217,150 | $70,000 | $0 | $287,150 | $287,150 |
| 2019 | $232,150 | $55,000 | $0 | $287,150 | $287,150 |
| 2018 | $171,960 | $55,000 | $0 | $226,960 | $226,960 |
| 2017 | $171,960 | $55,000 | $0 | $226,960 | $226,960 |
| 2016 | $143,300 | $55,000 | $0 | $198,300 | $198,300 |
| 2015 | $143,300 | $55,000 | $0 | $198,300 | $198,300 |
| 2014 | $143,300 | $55,000 | $0 | $198,300 | $198,300 |
| 2013 | $143,300 | $55,000 | $0 | $198,300 | $198,300 |
| 2012 | $139,400 | $55,000 | $0 | $0 | $0 |
| 2011 | $139,400 | $55,000 | $0 | $0 | $0 |
| 2010 | $139,400 | $55,000 | $0 | $0 | $0 |
| 2009 | $161,000 | $55,000 | $0 | $0 | $0 |
| 2008 | $118,500 | $30,000 | $0 | $0 | $0 |
| 2007 | $118,500 | $30,000 | $0 | $0 | $0 |
Deed and Sales History
| 1 | 12/12/2024 | SWD | STATUTORY WARRANTY DEED | PLANTARIC STEPHANIE LEIGH | RIEGLE MATTHEW & LORIE | | | $429,000.00 | 148649 | 2024-07185 |
| 2 | 07/01/2022 | SWD | STATUTORY WARRANTY DEED | QUINTANA PAUL A & MARIA L | PLANTARIC STEPHANIE LEIGH | | | $425,000.00 | 144245 | 2022-05589 |
| 3 | 11/14/2001 | WARRANTY D | WARRANTY DEED | | | | | $131,000.00 | 98342 | 3220-112350 |
Payout Agreement
| No payout information available.. |