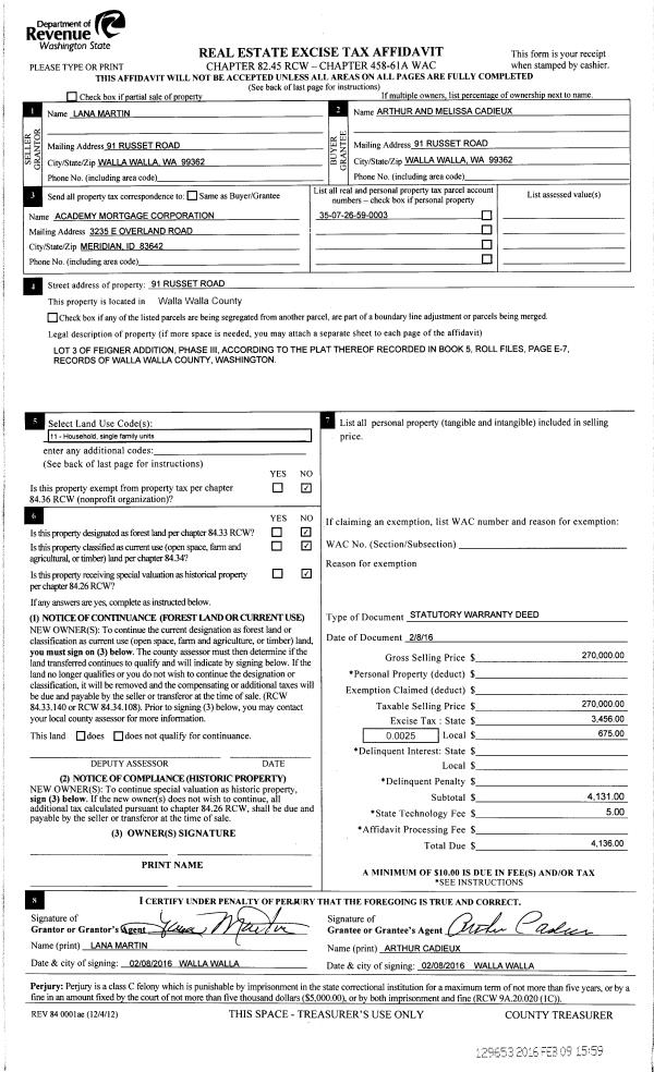
Property
Account |
| Property ID: | 3939 | Abbreviated Legal Description: | FEIGNER PHASE III LOT 3 |
| Parcel Number: | 350726590003 | Agent Code: | |
| Type: | Real | | |
| Tax Area: | 311 - 250-4 | Land Use Code | 11 |
| Open Space: | N | DFL | N |
| Historic Property: | N | Remodel Property: | N |
| Multi-Family Redevelopment: | N | | |
| Township: | 7 | Section: | 26 |
| Range: | 35 |
Location |
| Address: | 91 RUSSET RD WA 99324 | Mapsco: | |
| Neighborhood: | A SFR Rural/City Infl | Map ID: | |
| Neighborhood CD: | 313012 |
Owner |
| Name: | CADIEUX ARTHUR & MELISSA | Owner ID: | 58251 |
| Mailing Address: | 91 RUSSET RD WALLA WALLA, WA 99362 | % Ownership: | 100.0000000000% |
| | | Exemptions: | |
Taxes and Assessment Details
Property Tax Information as of
02/21/2026
Click on "Statement Details" to expand or collapse a tax statement.
* Please enter a valid date ** Please enter a valid date *
Statement Details |
| | TOTAL: | $0.00 | $0.00 | $0.00 | $0.00 | $0.00 | $0.00 |
|
| | $0.00 | $0.00 | $0.00 | $0.00 | $0.00 | $0.00 |
Values
| (+) Improvement Homesite Value: | + | $0 | |
| (+) Improvement Non-Homesite Value: | + | $349,730 | |
| (+) Land Homesite Value: | + | $0 | |
| (+) Land Non-Homesite Value: | + | $130,000 | |
| (+) Curr Use (HS): | + | $0 | $0 |
| (+) Curr Use (NHS): | + | $0 | $0 |
| | | -------------------------- | |
| (=) Market Value: | = | $479,730 | |
| (–) Productivity Loss: | – | $0 | |
| | | -------------------------- | |
| (=) Subtotal: | = | $479,730 | |
| (+) Senior Appraised Value: | + | $0 | |
| (+) Non-Senior Appraised Value: | + | $479,730 | |
| | | -------------------------- | |
| (=) Total Appraised Value: | = | $479,730 | |
| (–) Senior Exemption Loss: | – | $0 | |
| (–) Exemption Loss: | – | $0 | |
| | | -------------------------- | |
| (=) Taxable Value: | = | $479,730 | |
Taxing Jurisdiction
| Owner: | CADIEUX ARTHUR & MELISSA | | |
| % Ownership: | 100.0000000000% | | |
| Total Value: | $479,730 | | |
| Tax Area: | 311 - 250-4 |
| CERFD | CURRENT EXPENSE REFUND 010 | 0.0000000000 | $479,730 | $479,730 | $0.00 | | |
| CURREXP | CURRENT EXPENSE 010 | 1.0175366760 | $479,730 | $479,730 | $488.14 | | |
| HUMNSERV | HUMAN SERVICES 119 | 0.0250000000 | $479,730 | $479,730 | $11.99 | | |
| SLDREL | SOLDIERS RELIEF 121 | 0.0155990005 | $479,730 | $479,730 | $7.48 | | |
| EMERGSER | EMS 147 | 0.3792580840 | $479,730 | $479,730 | $181.94 | | |
| EMSRFD | EMS REFUND 147 | 0.0000000000 | $479,730 | $479,730 | $0.00 | | |
| FD4EXP | FD #4 EXPENSE 686 | 0.8836993059 | $479,730 | $479,730 | $423.94 | | |
| RLBRFD | RURAL LIBRARY REFUND 623 | 0.0000000000 | $479,730 | $479,730 | $0.00 | | |
| RURALLIB | RURAL LIBRARY 623 | 0.3710609029 | $479,730 | $479,730 | $178.01 | | |
| PORTRFD | PORT REFUND 640 | 0.0000000000 | $479,730 | $479,730 | $0.00 | | |
| PORTWWGEN | PORT OF WW 640 | 0.2460186015 | $479,730 | $479,730 | $118.02 | | |
| SD250BOND | SD #250 BOND 773 | 1.4560608159 | $479,730 | $479,730 | $698.52 | | |
| SD250GEN | SD #250 GENERAL 770 | 2.3880724087 | $479,730 | $479,730 | $1,145.63 | | |
| ST2 | STATE SCHOOL PART 2 600 | 0.8131451643 | $479,730 | $479,730 | $390.09 | | |
| STATESCHL | STATE SCHOOL 600 | 1.5158548041 | $479,730 | $479,730 | $727.20 | | |
| STREFUND | STATE REFUND LEVY 603 | 0.0000000000 | $479,730 | $479,730 | $0.00 | | |
| COROAD | COUNTY ROAD 115 | 1.6549953990 | $479,730 | $479,730 | $793.95 | | |
| CRPRD | COUNTY ROAD REFUND 115 | 0.0000000000 | $479,730 | $479,730 | $0.00 | | |
| | Total Tax Rate: | 10.7663011628 | | | | | |
| | | | | Taxes w/Current Exemptions: | $5,164.91 | | |
| | | | | Taxes w/o Exemptions: | $5,164.91 | | |
Improvement / Building
| Improvement #1: | RESIDENTIAL | State Code: | 11 | 1704.0 sqft | Value: | $349,730 |
| Exterior Wall: | SIDING | Heating/Cooling: | WARM & COOLED AIR | | Number of Bathrooms: | 2 | Number of Bedrooms: | 3 | | Plumbing: | 9 | Roof Covering: | COMP SHINGLE |
|
| | Type | Description | Class CD | Sub Class CD | Year Built | Area |
| | MA | Main Area | 1 | 35 | 1995 | 1704.0 |
| | SI1 | SITE IMPROVEMENT | 1 | 35 | 0 | 2.5 |
| | ATG | Attached Garage | 1 | 35 | 1995 | 484.0 |
| | WOD | Wood Deck | 1 | 35 | 1995 | 290.0 |
| | RPO | OPEN PORCH W/ROOF | 1 | 35 | 1995 | 80.0 |
Sketch
Property Image
Land
| 1 | RES 1 | Converted: Residential | 1.0000 | 0.00 | 0.00 | 0.00 | 1.00 | $130,000 | $0 |
Roll Value History
| 2026 | N/A | N/A | N/A | N/A | N/A |
| 2025 | $454,650 | $130,000 | $0 | $584,650 | $584,650 |
| 2024 | $454,650 | $130,000 | $0 | $584,650 | $584,650 |
| 2023 | $349,730 | $130,000 | $0 | $479,730 | $479,730 |
| 2022 | $333,080 | $130,000 | $0 | $463,080 | $463,080 |
| 2021 | $275,570 | $75,000 | $0 | $350,570 | $350,570 |
| 2020 | $229,640 | $75,000 | $0 | $304,640 | $304,640 |
| 2019 | $229,640 | $75,000 | $0 | $304,640 | $304,640 |
| 2018 | $191,370 | $75,000 | $0 | $266,370 | $266,370 |
| 2017 | $191,370 | $75,000 | $0 | $266,370 | $266,370 |
| 2016 | $191,370 | $75,000 | $0 | $266,370 | $266,370 |
| 2015 | $167,800 | $75,000 | $0 | $242,800 | $242,800 |
| 2014 | $167,800 | $75,000 | $0 | $242,800 | $242,800 |
| 2013 | $167,800 | $75,000 | $0 | $242,800 | $172,800 |
| 2012 | $167,800 | $75,000 | $0 | $0 | $0 |
| 2011 | $167,800 | $75,000 | $0 | $0 | $0 |
| 2010 | $180,200 | $75,000 | $0 | $0 | $0 |
| 2009 | $238,500 | $45,000 | $0 | $0 | $0 |
| 2008 | $132,200 | $45,000 | $0 | $0 | $0 |
| 2007 | $132,200 | $45,000 | $0 | $0 | $0 |
Deed and Sales History
| 1 | 02/09/2016 | SWD | STATUTORY WARRANTY DEED | MARTIN LANA | CADIEUX ARTHUR & MELISSA | | | $270,000.00 | 129653 | 2016-01012 |
| 2 | 08/09/1994 | WARRANTY D | WARRANTY DEED | | | | | $28,000.00 | 82313 | 2229-409308 |
Payout Agreement
| No payout information available.. |