Property
Account |
| Property ID: | 3913 | Abbreviated Legal Description: | BLALOCK ORCHARDS PARCEL 51 BLK 39 |
| Parcel Number: | 350726523951 | Agent Code: | |
| Type: | Real | | |
| Tax Area: | 75 - CP 250 | Land Use Code | 12 |
| Open Space: | N | DFL | N |
| Historic Property: | N | Remodel Property: | N |
| Multi-Family Redevelopment: | N | | |
| Township: | 7 | Section: | 26 |
| Range: | 35 |
Location |
| Address: | 29 NW B ST WA 99324 | Mapsco: | |
| Neighborhood: | A Duplex | Map ID: | |
| Neighborhood CD: | 113031 |
Owner |
| Name: | BORAM JAMES D & ELIZABETH K | Owner ID: | 66035 |
| Mailing Address: | 71513 LONDON RD COTTAGE GROVE, OR 97424 | % Ownership: | 100.0000000000% |
| | | Exemptions: | |
Taxes and Assessment Details
Values
| (+) Improvement Homesite Value: | + | $0 | |
| (+) Improvement Non-Homesite Value: | + | $271,370 | |
| (+) Land Homesite Value: | + | $0 | |
| (+) Land Non-Homesite Value: | + | $61,040 | |
| (+) Curr Use (HS): | + | $0 | $0 |
| (+) Curr Use (NHS): | + | $0 | $0 |
| | | -------------------------- | |
| (=) Market Value: | = | $332,410 | |
| (–) Productivity Loss: | – | $0 | |
| | | -------------------------- | |
| (=) Subtotal: | = | $332,410 | |
| (+) Senior Appraised Value: | + | $0 | |
| (+) Non-Senior Appraised Value: | + | $332,410 | |
| | | -------------------------- | |
| (=) Total Appraised Value: | = | $332,410 | |
| (–) Senior Exemption Loss: | – | $0 | |
| (–) Exemption Loss: | – | $0 | |
| | | -------------------------- | |
| (=) Taxable Value: | = | $332,410 | |
Taxing Jurisdiction
| Owner: | BORAM JAMES D & ELIZABETH K | | |
| % Ownership: | 100.0000000000% | | |
| Total Value: | $332,410 | | |
| Tax Area: | 75 - CP 250 |
| CERFD | CURRENT EXPENSE REFUND 010 | 0.0000000000 | $332,410 | $332,410 | $0.00 | | |
| CURREXP | CURRENT EXPENSE 010 | 1.0175366760 | $332,410 | $332,410 | $338.24 | | |
| HUMNSERV | HUMAN SERVICES 119 | 0.0250000000 | $332,410 | $332,410 | $8.31 | | |
| SLDREL | SOLDIERS RELIEF 121 | 0.0155990005 | $332,410 | $332,410 | $5.19 | | |
| COLLPLBOND | C OF CP BOND 644 | 0.4374241808 | $332,410 | $332,410 | $145.40 | | |
| COLLPLGEN | CITY OF CP 632 | 1.4453819216 | $332,410 | $332,410 | $480.46 | | |
| EMERGSER | EMS 147 | 0.3792580840 | $332,410 | $332,410 | $126.07 | | |
| EMSRFD | EMS REFUND 147 | 0.0000000000 | $332,410 | $332,410 | $0.00 | | |
| RURALLIB | RURAL LIBRARY 623 | 0.3710609029 | $332,410 | $332,410 | $123.34 | | |
| PORTRFD | PORT REFUND 640 | 0.0000000000 | $332,410 | $332,410 | $0.00 | | |
| PORTWWGEN | PORT OF WW 640 | 0.2460186015 | $332,410 | $332,410 | $81.78 | | |
| SD250BOND | SD #250 BOND 773 | 1.4560608159 | $332,410 | $332,410 | $484.01 | | |
| SD250GEN | SD #250 GENERAL 770 | 2.3880724087 | $332,410 | $332,410 | $793.82 | | |
| ST2 | STATE SCHOOL PART 2 600 | 0.8131451643 | $332,410 | $332,410 | $270.30 | | |
| STATESCHL | STATE SCHOOL 600 | 1.5158548041 | $332,410 | $332,410 | $503.89 | | |
| STREFUND | STATE REFUND LEVY 603 | 0.0000000000 | $332,410 | $332,410 | $0.00 | | |
| | Total Tax Rate: | 10.1104125603 | | | | | |
| | | | | Taxes w/Current Exemptions: | $3,360.81 | | |
| | | | | Taxes w/o Exemptions: | $3,360.81 | | |
Improvement / Building
| Improvement #1: | RESIDENTIAL | State Code: | 12 | 1936.0 sqft | Value: | $271,370 |
| Exterior Wall: | PLYWOOD | Heating/Cooling: | BASEBOARD ELECTRIC | | Number of Bathrooms: | 2 | Number of Bedrooms: | 4 | | Plumbing: | 12 | Roof Covering: | COMP SHINGLE |
|
| | Type | Description | Class CD | Sub Class CD | Year Built | Area |
| | MA | Main Area | 1 | 30 | 1977 | 1936.0 |
| | SI1 | SITE IMPROVEMENT | 1 | 30 | 1977 | 1.5 |
| | CPC | COVERED CARPORT/PATIO | 1 | 30 | 1977 | 396.0 |
| | CPC | COVERED CARPORT/PATIO | 1 | 30 | 1977 | 396.0 |
Sketch
Property Image
Land
| 1 | RES 1 | Converted: Residential | 0.2200 | 9583.00 | 0.00 | 0.00 | 1.00 | $61,040 | $0 |
Roll Value History
| 2026 | N/A | N/A | N/A | N/A | N/A |
| 2025 | $259,070 | $90,660 | $0 | $349,730 | $349,730 |
| 2024 | $272,700 | $61,000 | $0 | $333,700 | $333,700 |
| 2023 | $271,370 | $61,040 | $0 | $332,410 | $332,410 |
| 2022 | $258,450 | $61,040 | $0 | $319,490 | $319,490 |
| 2021 | $215,380 | $61,040 | $0 | $276,420 | $276,420 |
| 2020 | $153,840 | $61,040 | $0 | $214,880 | $214,880 |
| 2019 | $168,080 | $46,800 | $0 | $214,880 | $214,880 |
| 2018 | $152,800 | $46,800 | $0 | $199,600 | $199,600 |
| 2017 | $127,330 | $46,800 | $0 | $174,130 | $174,130 |
| 2016 | $106,110 | $46,800 | $0 | $152,910 | $152,910 |
| 2015 | $106,110 | $46,800 | $0 | $152,910 | $152,910 |
| 2014 | $117,900 | $46,800 | $0 | $164,700 | $164,700 |
| 2013 | $117,900 | $46,800 | $0 | $164,700 | $164,700 |
| 2012 | $117,900 | $46,800 | $0 | $0 | $0 |
| 2011 | $117,900 | $46,800 | $0 | $0 | $0 |
| 2010 | $117,900 | $46,800 | $0 | $0 | $0 |
| 2009 | $126,600 | $46,800 | $0 | $0 | $0 |
| 2008 | $97,800 | $24,400 | $0 | $0 | $0 |
| 2007 | $97,800 | $24,400 | $0 | $0 | $0 |
Deed and Sales History
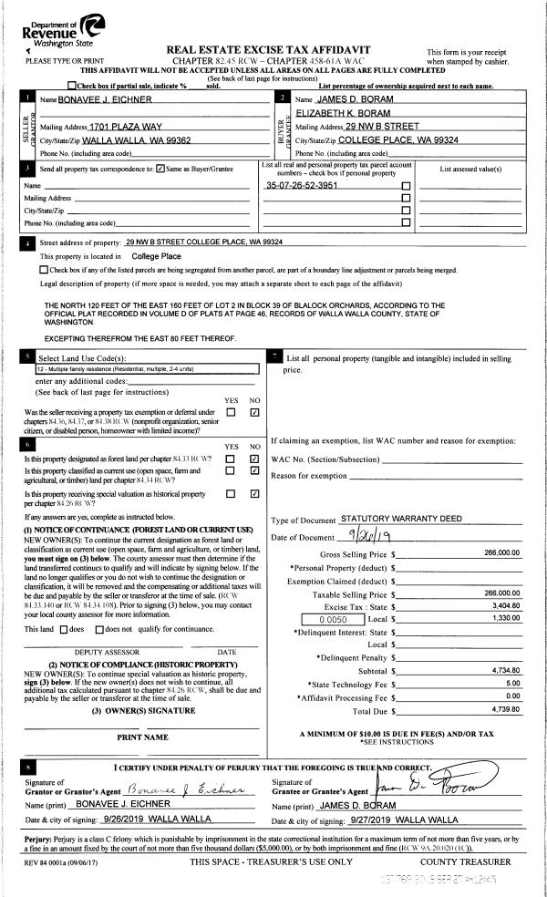
| 1 | 09/27/2019 | SWD | STATUTORY WARRANTY DEED | EICHNER BONAVEE J | BORAM JAMES D & ELIZABETH K | | | $266,000.00 | 137769 | 2019-07671 |
| 2 | 09/09/2019 | DEATH CERT | DEATH CERTIFICATE | | | | | | 0 | 2019-07670 |
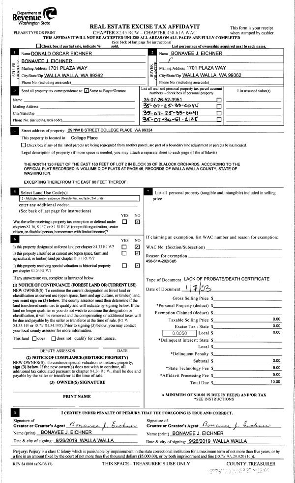
| 3 | 09/26/2019 | LOPA | LACK OF PROBATE AFFIDAVIT | EICHNER DONALD O & BONAVEE J | EICHNER BONAVEE J | | | $0.00 | 137767 | SEE IMAGES |
| 4 | 12/14/1989 | WARRANTY D | WARRANTY DEED | | | | | | 0 | 1808-908387 |
Payout Agreement
| No payout information available.. |