Property
Account |
| Property ID: | 3901 | Abbreviated Legal Description: | BLALOCK ORCHARDS TAX 15A LOT 7 BLK 38 PLUS STRIP TO THE E |
| Parcel Number: | 350726523827 | Agent Code: | |
| Type: | Real | | |
| Tax Area: | 311 - 250-4 | Land Use Code | 11 |
| Open Space: | N | DFL | N |
| Historic Property: | N | Remodel Property: | N |
| Multi-Family Redevelopment: | N | | |
| Township: | 7 | Section: | 26 |
| Range: | 35 |
Location |
| Address: | 400 NW B ST WA 99324 | Mapsco: | |
| Neighborhood: | A SFR Rural/City Inf | Map ID: | |
| Neighborhood CD: | 113012 |
Owner |
| Name: | LINDSTROM DAVID II & HEIDI | Owner ID: | 55693 |
| Mailing Address: | 400 NW B ST COLLEGE PLACE, WA 99324 | % Ownership: | 100.0000000000% |
| | | Exemptions: | |
Taxes and Assessment Details
Property Tax Information as of
02/21/2026
Click on "Statement Details" to expand or collapse a tax statement.
* Please enter a valid date ** Please enter a valid date *
Statement Details |
| | TOTAL: | $0.00 | $0.00 | $0.00 | $0.00 | $0.00 | $0.00 |
|
| | $0.00 | $0.00 | $0.00 | $0.00 | $0.00 | $0.00 |
Values
| (+) Improvement Homesite Value: | + | $0 | |
| (+) Improvement Non-Homesite Value: | + | $216,940 | |
| (+) Land Homesite Value: | + | $0 | |
| (+) Land Non-Homesite Value: | + | $66,320 | |
| (+) Curr Use (HS): | + | $0 | $0 |
| (+) Curr Use (NHS): | + | $0 | $0 |
| | | -------------------------- | |
| (=) Market Value: | = | $283,260 | |
| (–) Productivity Loss: | – | $0 | |
| | | -------------------------- | |
| (=) Subtotal: | = | $283,260 | |
| (+) Senior Appraised Value: | + | $0 | |
| (+) Non-Senior Appraised Value: | + | $283,260 | |
| | | -------------------------- | |
| (=) Total Appraised Value: | = | $283,260 | |
| (–) Senior Exemption Loss: | – | $0 | |
| (–) Exemption Loss: | – | $0 | |
| | | -------------------------- | |
| (=) Taxable Value: | = | $283,260 | |
Taxing Jurisdiction
| Owner: | LINDSTROM DAVID II & HEIDI | | |
| % Ownership: | 100.0000000000% | | |
| Total Value: | $283,260 | | |
| Tax Area: | 311 - 250-4 |
| CERFD | CURRENT EXPENSE REFUND 010 | 0.0000000000 | $283,260 | $283,260 | $0.00 | | |
| CURREXP | CURRENT EXPENSE 010 | 1.0175366760 | $283,260 | $283,260 | $288.23 | | |
| HUMNSERV | HUMAN SERVICES 119 | 0.0250000000 | $283,260 | $283,260 | $7.08 | | |
| SLDREL | SOLDIERS RELIEF 121 | 0.0155990005 | $283,260 | $283,260 | $4.42 | | |
| EMERGSER | EMS 147 | 0.3792580840 | $283,260 | $283,260 | $107.43 | | |
| EMSRFD | EMS REFUND 147 | 0.0000000000 | $283,260 | $283,260 | $0.00 | | |
| FD4EXP | FD #4 EXPENSE 686 | 0.8836993059 | $283,260 | $283,260 | $250.32 | | |
| RLBRFD | RURAL LIBRARY REFUND 623 | 0.0000000000 | $283,260 | $283,260 | $0.00 | | |
| RURALLIB | RURAL LIBRARY 623 | 0.3710609029 | $283,260 | $283,260 | $105.11 | | |
| PORTRFD | PORT REFUND 640 | 0.0000000000 | $283,260 | $283,260 | $0.00 | | |
| PORTWWGEN | PORT OF WW 640 | 0.2460186015 | $283,260 | $283,260 | $69.69 | | |
| SD250BOND | SD #250 BOND 773 | 1.4560608159 | $283,260 | $283,260 | $412.44 | | |
| SD250GEN | SD #250 GENERAL 770 | 2.3880724087 | $283,260 | $283,260 | $676.45 | | |
| ST2 | STATE SCHOOL PART 2 600 | 0.8131451643 | $283,260 | $283,260 | $230.33 | | |
| STATESCHL | STATE SCHOOL 600 | 1.5158548041 | $283,260 | $283,260 | $429.38 | | |
| STREFUND | STATE REFUND LEVY 603 | 0.0000000000 | $283,260 | $283,260 | $0.00 | | |
| COROAD | COUNTY ROAD 115 | 1.6549953990 | $283,260 | $283,260 | $468.79 | | |
| CRPRD | COUNTY ROAD REFUND 115 | 0.0000000000 | $283,260 | $283,260 | $0.00 | | |
| | Total Tax Rate: | 10.7663011628 | | | | | |
| | | | | Taxes w/Current Exemptions: | $3,049.67 | | |
| | | | | Taxes w/o Exemptions: | $3,049.67 | | |
Improvement / Building
| Improvement #1: | RESIDENTIAL | State Code: | 11 | 1336.0 sqft | Value: | $216,940 |
| Exterior Wall: | STUCCO | Heating/Cooling: | WARM & COOLED AIR | | Number of Bathrooms: | 2 | Number of Bedrooms: | 3 | | Plumbing: | 9 | Roof Covering: | COMP SHINGLE |
|
| | Type | Description | Class CD | Sub Class CD | Year Built | Area |
| | MA | Main Area | 1 | 30 | 1923 | 1336.0 |
| | DTG | Detached Garage | 1 | 30 | 1923 | 252.0 |
| | POL1 | POLE BUILDING-GRAVEL | 1 | 30 | 1923 | 288.0 |
| | SI1 | SITE IMPROVEMENT | 1 | 30 | 1923 | 1.0 |
| | BASE | BASEMENT | 1 | 30 | 1923 | 462.0 |
| | PRC | PORCH W STEPS, ROOF,CEILED | 1 | 30 | 1923 | 56.0 |
| | BPF | BASEMENT -PARTITIONED FINISH | 1 | 30 | 1923 | 240.0 |
| | RPO | OPEN PORCH W/ROOF | 1 | 30 | 1923 | 24.0 |
| | BNV | BUILDING NO VALUE | 1 | 30 | 1923 | 210.0 |
Sketch
Property Image
Land
| 1 | RES 1 | Converted: Residential | 0.2100 | 9147.00 | 0.00 | 0.00 | 1.00 | $66,320 | $0 |
Roll Value History
| 2026 | N/A | N/A | N/A | N/A | N/A |
| 2025 | $184,400 | $100,620 | $0 | $285,020 | $285,020 |
| 2024 | $216,940 | $66,320 | $0 | $283,260 | $283,260 |
| 2023 | $216,940 | $66,320 | $0 | $283,260 | $283,260 |
| 2022 | $216,940 | $66,320 | $0 | $283,260 | $283,260 |
| 2021 | $120,520 | $66,320 | $0 | $186,840 | $186,840 |
| 2020 | $60,260 | $66,320 | $0 | $126,580 | $126,580 |
| 2019 | $80,180 | $46,400 | $0 | $126,580 | $126,580 |
| 2018 | $76,360 | $46,400 | $0 | $122,760 | $122,760 |
| 2017 | $63,640 | $46,400 | $0 | $110,040 | $110,040 |
| 2016 | $57,850 | $46,400 | $0 | $104,250 | $104,250 |
| 2015 | $57,850 | $46,400 | $0 | $104,250 | $104,250 |
| 2014 | $65,000 | $46,400 | $0 | $111,400 | $111,400 |
| 2013 | $65,000 | $46,400 | $0 | $111,400 | $111,400 |
| 2012 | $65,000 | $46,400 | $0 | $0 | $0 |
| 2011 | $65,000 | $46,400 | $0 | $0 | $0 |
| 2010 | $65,000 | $46,400 | $0 | $0 | $0 |
| 2009 | $70,900 | $46,400 | $0 | $0 | $0 |
| 2008 | $65,100 | $23,600 | $0 | $0 | $0 |
| 2007 | $65,100 | $23,600 | $0 | $0 | $0 |
Deed and Sales History
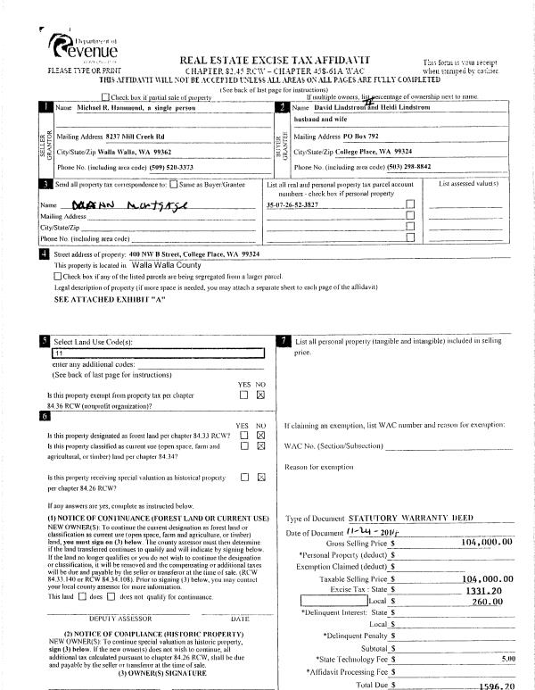
| 1 | 11/25/2014 | SWD | STATUTORY WARRANTY DEED | HAMMOND MICHAEL R | LINDSTROM DAVID II & HEIDI | | | $104,000.00 | 127013 | 2014-08589 |
| 2 | 04/20/2005 | QCD | QUIT CLAIM DEED | HOOVER, KENT & BRENDA | HAMMOND, MICHAEL R | | | | 107285 | 2005-04474 |
| 3 | 09/04/1986 | WARRANTY D | WARRANTY DEED | | | | | $34,000.00 | 0 | 1598-606831 |
Payout Agreement
| No payout information available.. |