Property
Account |
| Property ID: | 3894 | Abbreviated Legal Description: | BLALOCK ORCHARDS N 150' OF LOT 7 BLK 34 LESS TAX 3 |
| Parcel Number: | 350726523407 | Agent Code: | |
| Type: | Real | | |
| Tax Area: | 311 - 250-4 | Land Use Code | 11 |
| Open Space: | N | DFL | N |
| Historic Property: | N | Remodel Property: | N |
| Multi-Family Redevelopment: | N | | |
| Township: | 7 | Section: | 26 |
| Range: | 35 |
Location |
| Address: | 251 BLALOCK DR WA 99324 | Mapsco: | |
| Neighborhood: | A SFR Rural/City Infl | Map ID: | |
| Neighborhood CD: | 313012 |
Owner |
| Name: | VILLANUEVA AMY & ENRIQUE | Owner ID: | 70761 |
| Mailing Address: | 251 BLALOCK DR WALLA WALLA, WA 99362 | % Ownership: | 100.0000000000% |
| | | Exemptions: | |
Taxes and Assessment Details
Property Tax Information as of
02/21/2026
Click on "Statement Details" to expand or collapse a tax statement.
* Please enter a valid date ** Please enter a valid date *
Statement Details |
| | TOTAL: | $0.00 | $0.00 | $0.00 | $0.00 | $0.00 | $0.00 |
|
| | $0.00 | $0.00 | $0.00 | $0.00 | $0.00 | $0.00 |
Values
| (+) Improvement Homesite Value: | + | $0 | |
| (+) Improvement Non-Homesite Value: | + | $294,810 | |
| (+) Land Homesite Value: | + | $0 | |
| (+) Land Non-Homesite Value: | + | $83,170 | |
| (+) Curr Use (HS): | + | $0 | $0 |
| (+) Curr Use (NHS): | + | $0 | $0 |
| | | -------------------------- | |
| (=) Market Value: | = | $377,980 | |
| (–) Productivity Loss: | – | $0 | |
| | | -------------------------- | |
| (=) Subtotal: | = | $377,980 | |
| (+) Senior Appraised Value: | + | $0 | |
| (+) Non-Senior Appraised Value: | + | $377,980 | |
| | | -------------------------- | |
| (=) Total Appraised Value: | = | $377,980 | |
| (–) Senior Exemption Loss: | – | $0 | |
| (–) Exemption Loss: | – | $0 | |
| | | -------------------------- | |
| (=) Taxable Value: | = | $377,980 | |
Taxing Jurisdiction
| Owner: | VILLANUEVA AMY & ENRIQUE | | |
| % Ownership: | 100.0000000000% | | |
| Total Value: | $377,980 | | |
| Tax Area: | 311 - 250-4 |
| CERFD | CURRENT EXPENSE REFUND 010 | 0.0000000000 | $377,980 | $377,980 | $0.00 | | |
| CURREXP | CURRENT EXPENSE 010 | 1.0175366760 | $377,980 | $377,980 | $384.61 | | |
| HUMNSERV | HUMAN SERVICES 119 | 0.0250000000 | $377,980 | $377,980 | $9.45 | | |
| SLDREL | SOLDIERS RELIEF 121 | 0.0155990005 | $377,980 | $377,980 | $5.90 | | |
| EMERGSER | EMS 147 | 0.3792580840 | $377,980 | $377,980 | $143.35 | | |
| EMSRFD | EMS REFUND 147 | 0.0000000000 | $377,980 | $377,980 | $0.00 | | |
| FD4EXP | FD #4 EXPENSE 686 | 0.8836993059 | $377,980 | $377,980 | $334.02 | | |
| RLBRFD | RURAL LIBRARY REFUND 623 | 0.0000000000 | $377,980 | $377,980 | $0.00 | | |
| RURALLIB | RURAL LIBRARY 623 | 0.3710609029 | $377,980 | $377,980 | $140.25 | | |
| PORTRFD | PORT REFUND 640 | 0.0000000000 | $377,980 | $377,980 | $0.00 | | |
| PORTWWGEN | PORT OF WW 640 | 0.2460186015 | $377,980 | $377,980 | $92.99 | | |
| SD250BOND | SD #250 BOND 773 | 1.4560608159 | $377,980 | $377,980 | $550.36 | | |
| SD250GEN | SD #250 GENERAL 770 | 2.3880724087 | $377,980 | $377,980 | $902.64 | | |
| ST2 | STATE SCHOOL PART 2 600 | 0.8131451643 | $377,980 | $377,980 | $307.35 | | |
| STATESCHL | STATE SCHOOL 600 | 1.5158548041 | $377,980 | $377,980 | $572.96 | | |
| STREFUND | STATE REFUND LEVY 603 | 0.0000000000 | $377,980 | $377,980 | $0.00 | | |
| COROAD | COUNTY ROAD 115 | 1.6549953990 | $377,980 | $377,980 | $625.56 | | |
| CRPRD | COUNTY ROAD REFUND 115 | 0.0000000000 | $377,980 | $377,980 | $0.00 | | |
| | Total Tax Rate: | 10.7663011628 | | | | | |
| | | | | Taxes w/Current Exemptions: | $4,069.44 | | |
| | | | | Taxes w/o Exemptions: | $4,069.44 | | |
Improvement / Building
| Improvement #1: | RESIDENTIAL | State Code: | 11 | 1208.0 sqft | Value: | $294,810 |
| Exterior Wall: | METAL/STEEL | Heating/Cooling: | HEAT PUMP | | Number of Bathrooms: | 2 | Number of Bedrooms: | 2 | | Plumbing: | 9 | Roof Covering: | COMP SHINGLE |
|
| | Type | Description | Class CD | Sub Class CD | Year Built | Area |
| | MA | Main Area | 1 | 30 | 1978 | 1208.0 |
| | CPC | COVERED CARPORT/PATIO | 1 | 30 | 0 | 240.0 |
| | SI1 | SITE IMPROVEMENT | 1 | 30 | 0 | 4.0 |
| | BASE | BASEMENT | 1 | 30 | 1978 | 96.0 |
| | DTG | Detached Garage | 1 | 30 | 1978 | 651.0 |
| | S1F | Single One Story Fireplace | 1 | 30 | 1978 | 1.0 |
| | RPO | OPEN PORCH W/ROOF | 1 | 30 | 1978 | 80.0 |
| | UTST | Utility Storage Shed | 1 | 30 | 1978 | 550.0 |
Sketch
Property Image
Land
| 1 | RES 1 | Converted: Residential | 0.4300 | 18731.00 | 0.00 | 0.00 | 1.00 | $83,170 | $0 |
Roll Value History
| 2026 | N/A | N/A | N/A | N/A | N/A |
| 2025 | $309,550 | $83,170 | $0 | $392,720 | $392,720 |
| 2024 | $294,810 | $83,170 | $0 | $377,980 | $377,980 |
| 2023 | $294,810 | $83,170 | $0 | $377,980 | $377,980 |
| 2022 | $294,810 | $83,170 | $0 | $377,980 | $377,980 |
| 2021 | $153,050 | $54,500 | $0 | $207,550 | $207,550 |
| 2020 | $127,540 | $54,500 | $0 | $182,040 | $182,040 |
| 2019 | $127,540 | $54,500 | $0 | $182,040 | $182,040 |
| 2018 | $127,540 | $54,500 | $0 | $182,040 | $182,040 |
| 2017 | $110,900 | $54,500 | $0 | $165,400 | $165,400 |
| 2016 | $110,900 | $54,500 | $0 | $165,400 | $165,400 |
| 2015 | $115,920 | $54,500 | $0 | $170,420 | $170,420 |
| 2014 | $110,400 | $54,500 | $0 | $164,900 | $164,900 |
| 2013 | $110,400 | $54,500 | $0 | $164,900 | $164,900 |
| 2012 | $110,400 | $54,500 | $0 | $0 | $0 |
| 2011 | $110,400 | $54,500 | $0 | $0 | $0 |
| 2010 | $79,200 | $54,500 | $0 | $0 | $0 |
| 2009 | $116,000 | $32,500 | $0 | $0 | $0 |
| 2008 | $66,500 | $32,500 | $0 | $0 | $0 |
| 2007 | $66,500 | $32,500 | $0 | $0 | $0 |
Deed and Sales History
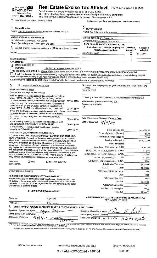
| 1 | 09/10/2024 | SWD | STATUTORY WARRANTY DEED | VILLANUEVA AMY & ENRIQUE | LESCHEN ANN E | | | $410,000.00 | 148164 | 2024-05113 |
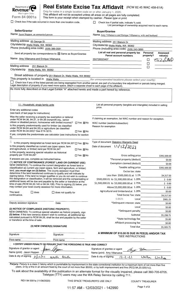
| 2 | 12/03/2021 | SWD | STATUTORY WARRANTY DEED | HOPPEN JASON | VILLANUEVA AMY & ENRIQUE | | | $392,500.00 | 142990 | 2021-14284 |
| 3 | 09/30/2005 | QCD | QUIT CLAIM DEED | WESTERN WA CORP OF SDA | BAGLEY, RUBY V | | | | 108649 | 2005-12216 |
| 4 | 09/30/2005 | WARRANTY D | WARRANTY DEED | BAGLEY, RUBY V | HOPPEN, JASON R | | | $139,900.00 | 108650 | 2005-12217 |
| 5 | 09/27/1989 | QCD | QUIT CLAIM DEED | | | | | $48,500.00 | 0 | 1788-906150 |
Payout Agreement
| No payout information available.. |