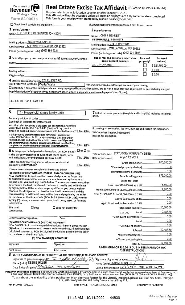
Property
Account |
| Property ID: | 3879 | Abbreviated Legal Description: | BLALOCK ORCHARDS TAX 1B BLK 31 LESS TAX 1C; TAX 1C BLK 31 |
| Parcel Number: | 350726523102 | Agent Code: | |
| Type: | Real | | |
| Tax Area: | 311 - 250-4 | Land Use Code | 11 |
| Open Space: | N | DFL | N |
| Historic Property: | N | Remodel Property: | N |
| Multi-Family Redevelopment: | N | | |
| Township: | 7 | Section: | 26 |
| Range: | 35 |
Location |
| Address: | 274 RUSSET RD WA 99324 | Mapsco: | |
| Neighborhood: | A SFR Rural/City Infl | Map ID: | |
| Neighborhood CD: | 313012 |
Owner |
| Name: | BENNETT JOHN J & STEPHANIE J | Owner ID: | 72502 |
| Mailing Address: | 274 RUSSET RD WALLA WALLA, WA 99362 | % Ownership: | 100.0000000000% |
| | | Exemptions: | |
Taxes and Assessment Details
Property Tax Information as of
02/21/2026
Click on "Statement Details" to expand or collapse a tax statement.
* Please enter a valid date ** Please enter a valid date *
Statement Details |
| | TOTAL: | $0.00 | $0.00 | $0.00 | $0.00 | $0.00 | $0.00 |
|
| | $0.00 | $0.00 | $0.00 | $0.00 | $0.00 | $0.00 |
Values
| (+) Improvement Homesite Value: | + | $0 | |
| (+) Improvement Non-Homesite Value: | + | $621,110 | |
| (+) Land Homesite Value: | + | $0 | |
| (+) Land Non-Homesite Value: | + | $159,390 | |
| (+) Curr Use (HS): | + | $0 | $0 |
| (+) Curr Use (NHS): | + | $0 | $0 |
| | | -------------------------- | |
| (=) Market Value: | = | $780,500 | |
| (–) Productivity Loss: | – | $0 | |
| | | -------------------------- | |
| (=) Subtotal: | = | $780,500 | |
| (+) Senior Appraised Value: | + | $0 | |
| (+) Non-Senior Appraised Value: | + | $780,500 | |
| | | -------------------------- | |
| (=) Total Appraised Value: | = | $780,500 | |
| (–) Senior Exemption Loss: | – | $0 | |
| (–) Exemption Loss: | – | $0 | |
| | | -------------------------- | |
| (=) Taxable Value: | = | $780,500 | |
Taxing Jurisdiction
| Owner: | BENNETT JOHN J & STEPHANIE J | | |
| % Ownership: | 100.0000000000% | | |
| Total Value: | $780,500 | | |
| Tax Area: | 311 - 250-4 |
| CERFD | CURRENT EXPENSE REFUND 010 | 0.0000000000 | $780,500 | $780,500 | $0.00 | | |
| CURREXP | CURRENT EXPENSE 010 | 1.0175366760 | $780,500 | $780,500 | $794.19 | | |
| HUMNSERV | HUMAN SERVICES 119 | 0.0250000000 | $780,500 | $780,500 | $19.51 | | |
| SLDREL | SOLDIERS RELIEF 121 | 0.0155990005 | $780,500 | $780,500 | $12.18 | | |
| EMERGSER | EMS 147 | 0.3792580840 | $780,500 | $780,500 | $296.01 | | |
| EMSRFD | EMS REFUND 147 | 0.0000000000 | $780,500 | $780,500 | $0.00 | | |
| FD4EXP | FD #4 EXPENSE 686 | 0.8836993059 | $780,500 | $780,500 | $689.73 | | |
| RLBRFD | RURAL LIBRARY REFUND 623 | 0.0000000000 | $780,500 | $780,500 | $0.00 | | |
| RURALLIB | RURAL LIBRARY 623 | 0.3710609029 | $780,500 | $780,500 | $289.61 | | |
| PORTRFD | PORT REFUND 640 | 0.0000000000 | $780,500 | $780,500 | $0.00 | | |
| PORTWWGEN | PORT OF WW 640 | 0.2460186015 | $780,500 | $780,500 | $192.02 | | |
| SD250BOND | SD #250 BOND 773 | 1.4560608159 | $780,500 | $780,500 | $1,136.46 | | |
| SD250GEN | SD #250 GENERAL 770 | 2.3880724087 | $780,500 | $780,500 | $1,863.89 | | |
| ST2 | STATE SCHOOL PART 2 600 | 0.8131451643 | $780,500 | $780,500 | $634.66 | | |
| STATESCHL | STATE SCHOOL 600 | 1.5158548041 | $780,500 | $780,500 | $1,183.12 | | |
| STREFUND | STATE REFUND LEVY 603 | 0.0000000000 | $780,500 | $780,500 | $0.00 | | |
| COROAD | COUNTY ROAD 115 | 1.6549953990 | $780,500 | $780,500 | $1,291.72 | | |
| CRPRD | COUNTY ROAD REFUND 115 | 0.0000000000 | $780,500 | $780,500 | $0.00 | | |
| | Total Tax Rate: | 10.7663011628 | | | | | |
| | | | | Taxes w/Current Exemptions: | $8,403.10 | | |
| | | | | Taxes w/o Exemptions: | $8,403.10 | | |
Improvement / Building
| Improvement #1: | RESIDENTIAL | State Code: | 11 | 2008.0 sqft | Value: | $621,110 |
| Exterior Wall: | SIDING | Heating/Cooling: | HEAT PUMP | | Number of Bathrooms: | 3 | Number of Bedrooms: | 2 | | Plumbing: | 14 | Roof Covering: | WOOD SHAKE |
|
| | Type | Description | Class CD | Sub Class CD | Year Built | Area |
| | MA | Main Area | 1 | 40 | 1983 | 2008.0 |
| | POL1 | POLE BUILDING-GRAVEL | 1 | 40 | 2000 | 720.0 |
| | SI1 | SITE IMPROVEMENT | 1 | 40 | 0 | 3.0 |
| | BASE | BASEMENT | 1 | 40 | 1983 | 2008.0 |
| | BPF | BASEMENT -PARTITIONED FINISH | 1 | 40 | 1983 | 1506.0 |
| | RPO | OPEN PORCH W/ROOF | 1 | 40 | 1983 | 234.0 |
| | WOD | Wood Deck | 1 | 40 | 1983 | 644.0 |
| | S1F | Single One Story Fireplace | 1 | 40 | 1983 | 1.0 |
| | ATG | Attached Garage | 1 | 40 | 1983 | 1056.0 |
| | POL1 | POLE BUILDING-GRAVEL | 1 | 40 | 1983 | 384.0 |
Sketch
Property Image
Land
| 1 | RES 1 | Converted: Residential | 6.8700 | 0.00 | 0.00 | 0.00 | 1.00 | $159,390 | $0 |
Roll Value History
| 2026 | N/A | N/A | N/A | N/A | N/A |
| 2025 | $714,280 | $159,390 | $0 | $873,670 | $873,670 |
| 2024 | $621,110 | $159,390 | $0 | $780,500 | $780,500 |
| 2023 | $621,110 | $159,390 | $0 | $780,500 | $780,500 |
| 2022 | $365,360 | $159,390 | $0 | $524,750 | $524,750 |
| 2021 | $346,840 | $122,000 | $0 | $468,840 | $468,840 |
| 2020 | $289,030 | $122,000 | $0 | $411,030 | $411,030 |
| 2019 | $289,030 | $122,000 | $0 | $411,030 | $411,030 |
| 2018 | $240,860 | $122,000 | $0 | $362,860 | $362,860 |
| 2017 | $240,860 | $122,000 | $0 | $362,860 | $362,860 |
| 2016 | $240,860 | $122,000 | $0 | $362,860 | $362,860 |
| 2015 | $231,110 | $122,000 | $0 | $353,110 | $353,110 |
| 2014 | $220,100 | $122,000 | $0 | $342,100 | $342,100 |
| 2013 | $220,100 | $122,000 | $0 | $342,100 | $342,100 |
| 2012 | $220,100 | $122,000 | $0 | $0 | $0 |
| 2011 | $220,100 | $122,000 | $0 | $0 | $0 |
| 2010 | $208,600 | $122,000 | $0 | $0 | $0 |
| 2009 | $298,800 | $68,500 | $0 | $0 | $0 |
| 2008 | $214,000 | $68,500 | $0 | $0 | $0 |
| 2007 | $214,000 | $68,500 | $0 | $0 | $0 |
Deed and Sales History
| 1 | 10/11/2022 | SWD | STATUTORY WARRANTY DEED | JOHNSON SHARON ESTATE OF | BENNETT JOHN J & STEPHANIE J | | | $875,000.00 | 144839 | 2022-08349 |
| 2 | 04/04/2013 | WARRANTY D | WARRANTY DEED | JOHNSON, DONALD O ESTATE OF | JOHNSON, SHARON | | | $0.00 | 123732 | 2013-03230 |
| 3 | 11/01/1968 | QCD | QUIT CLAIM DEED | | | | | $10,500.00 | 0 | 1338-204776 |
Payout Agreement
| No payout information available.. |