Property
Account |
| Property ID: | 3829 | Abbreviated Legal Description: | BLALOCK ORCHARDS TAX 12 LOT 9 BLK 15 |
| Parcel Number: | 350726521517 | Agent Code: | |
| Type: | Real | | |
| Tax Area: | 311 - 250-4 | Land Use Code | 11 |
| Open Space: | N | DFL | N |
| Historic Property: | N | Remodel Property: | N |
| Multi-Family Redevelopment: | N | | |
| Township: | 7 | Section: | 26 |
| Range: | 35 |
Location |
| Address: | 734 S HUSSEY ST WA 99324 | Mapsco: | |
| Neighborhood: | A SFR Rural/City Infl | Map ID: | |
| Neighborhood CD: | 313012 |
Owner |
| Name: | RAVER JOHN | Owner ID: | 67710 |
| Mailing Address: | 734 S HUSSEY ST WALLA WALLA, WA 99362 | % Ownership: | 100.0000000000% |
| | | Exemptions: | |
Taxes and Assessment Details
Property Tax Information as of
02/21/2026
Click on "Statement Details" to expand or collapse a tax statement.
* Please enter a valid date ** Please enter a valid date *
Statement Details |
| | TOTAL: | $0.00 | $0.00 | $0.00 | $0.00 | $0.00 | $0.00 |
|
| | $0.00 | $0.00 | $0.00 | $0.00 | $0.00 | $0.00 |
Values
| (+) Improvement Homesite Value: | + | $0 | |
| (+) Improvement Non-Homesite Value: | + | $285,780 | |
| (+) Land Homesite Value: | + | $0 | |
| (+) Land Non-Homesite Value: | + | $69,980 | |
| (+) Curr Use (HS): | + | $0 | $0 |
| (+) Curr Use (NHS): | + | $0 | $0 |
| | | -------------------------- | |
| (=) Market Value: | = | $355,760 | |
| (–) Productivity Loss: | – | $0 | |
| | | -------------------------- | |
| (=) Subtotal: | = | $355,760 | |
| (+) Senior Appraised Value: | + | $0 | |
| (+) Non-Senior Appraised Value: | + | $355,760 | |
| | | -------------------------- | |
| (=) Total Appraised Value: | = | $355,760 | |
| (–) Senior Exemption Loss: | – | $0 | |
| (–) Exemption Loss: | – | $0 | |
| | | -------------------------- | |
| (=) Taxable Value: | = | $355,760 | |
Taxing Jurisdiction
| Owner: | RAVER JOHN | | |
| % Ownership: | 100.0000000000% | | |
| Total Value: | $355,760 | | |
| Tax Area: | 311 - 250-4 |
| CERFD | CURRENT EXPENSE REFUND 010 | 0.0000000000 | $355,760 | $355,760 | $0.00 | | |
| CURREXP | CURRENT EXPENSE 010 | 1.0175366760 | $355,760 | $355,760 | $362.00 | | |
| HUMNSERV | HUMAN SERVICES 119 | 0.0250000000 | $355,760 | $355,760 | $8.89 | | |
| SLDREL | SOLDIERS RELIEF 121 | 0.0155990005 | $355,760 | $355,760 | $5.55 | | |
| EMERGSER | EMS 147 | 0.3792580840 | $355,760 | $355,760 | $134.92 | | |
| EMSRFD | EMS REFUND 147 | 0.0000000000 | $355,760 | $355,760 | $0.00 | | |
| FD4EXP | FD #4 EXPENSE 686 | 0.8836993059 | $355,760 | $355,760 | $314.38 | | |
| RLBRFD | RURAL LIBRARY REFUND 623 | 0.0000000000 | $355,760 | $355,760 | $0.00 | | |
| RURALLIB | RURAL LIBRARY 623 | 0.3710609029 | $355,760 | $355,760 | $132.01 | | |
| PORTRFD | PORT REFUND 640 | 0.0000000000 | $355,760 | $355,760 | $0.00 | | |
| PORTWWGEN | PORT OF WW 640 | 0.2460186015 | $355,760 | $355,760 | $87.52 | | |
| SD250BOND | SD #250 BOND 773 | 1.4560608159 | $355,760 | $355,760 | $518.01 | | |
| SD250GEN | SD #250 GENERAL 770 | 2.3880724087 | $355,760 | $355,760 | $849.58 | | |
| ST2 | STATE SCHOOL PART 2 600 | 0.8131451643 | $355,760 | $355,760 | $289.28 | | |
| STATESCHL | STATE SCHOOL 600 | 1.5158548041 | $355,760 | $355,760 | $539.28 | | |
| STREFUND | STATE REFUND LEVY 603 | 0.0000000000 | $355,760 | $355,760 | $0.00 | | |
| COROAD | COUNTY ROAD 115 | 1.6549953990 | $355,760 | $355,760 | $588.78 | | |
| CRPRD | COUNTY ROAD REFUND 115 | 0.0000000000 | $355,760 | $355,760 | $0.00 | | |
| | Total Tax Rate: | 10.7663011628 | | | | | |
| | | | | Taxes w/Current Exemptions: | $3,830.20 | | |
| | | | | Taxes w/o Exemptions: | $3,830.20 | | |
Improvement / Building
| Improvement #1: | RESIDENTIAL | State Code: | 11 | 1306.0 sqft | Value: | $285,780 |
| Exterior Wall: | HARDBOARD | Heating/Cooling: | HEAT PUMP | | Number of Bathrooms: | 2 | Number of Bedrooms: | 3 | | Plumbing: | 9 | Roof Covering: | GALVANIZED METAL |
|
| | Type | Description | Class CD | Sub Class CD | Year Built | Area |
| | MA | Main Area | 1 | 30 | 1960 | 1306.0 |
| | CPC | COVERED CARPORT/PATIO | 1 | 30 | 0 | 144.0 |
| | CPC | COVERED CARPORT/PATIO | 1 | 30 | 0 | 268.0 |
| | CPC | COVERED CARPORT/PATIO | 1 | 30 | 0 | 360.0 |
| | POL1 | POLE BUILDING-GRAVEL | 1 | 30 | 0 | 864.0 |
| | SI1 | SITE IMPROVEMENT | 1 | 30 | 0 | 3.0 |
| | BASE | BASEMENT | 1 | 30 | 1960 | 956.0 |
| | BRF | BASEMENT - REC FINISH | 1 | 30 | 1960 | 120.0 |
| | D1F | Double 1 Story Fireplace | 1 | 30 | 1960 | 1.0 |
| | BNV | BUILDING NO VALUE | 1 | 30 | 1960 | 120.0 |
| | RPO | OPEN PORCH W/ROOF | 1 | 30 | 1960 | 16.0 |
Sketch
Property Image
Land
| 1 | RES 1 | Converted: Residential | 0.2700 | 11761.00 | 0.00 | 0.00 | 1.00 | $69,980 | $0 |
Roll Value History
| 2026 | N/A | N/A | N/A | N/A | N/A |
| 2025 | $285,780 | $69,980 | $0 | $355,760 | $355,760 |
| 2024 | $285,780 | $69,980 | $0 | $355,760 | $355,760 |
| 2023 | $285,780 | $69,980 | $0 | $355,760 | $355,760 |
| 2022 | $259,800 | $69,980 | $0 | $329,780 | $329,780 |
| 2021 | $245,520 | $48,600 | $0 | $294,120 | $294,120 |
| 2020 | $188,860 | $48,600 | $0 | $237,460 | $237,460 |
| 2019 | $188,860 | $48,600 | $0 | $237,460 | $237,460 |
| 2018 | $188,860 | $48,600 | $0 | $237,460 | $237,460 |
| 2017 | $164,230 | $48,600 | $0 | $212,830 | $212,830 |
| 2016 | $126,330 | $48,600 | $0 | $174,930 | $174,930 |
| 2015 | $126,000 | $48,600 | $0 | $174,600 | $174,600 |
| 2014 | $120,000 | $48,600 | $0 | $168,600 | $168,600 |
| 2013 | $120,000 | $48,600 | $0 | $168,600 | $168,600 |
| 2012 | $120,000 | $48,600 | $0 | $0 | $0 |
| 2011 | $120,000 | $48,600 | $0 | $0 | $0 |
| 2010 | $120,100 | $48,600 | $0 | $0 | $0 |
| 2009 | $161,100 | $26,300 | $0 | $0 | $0 |
| 2008 | $98,600 | $26,300 | $0 | $0 | $0 |
| 2007 | $98,600 | $26,300 | $0 | $0 | $0 |
Deed and Sales History
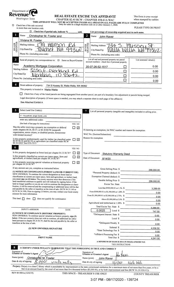
| 1 | 08/17/2020 | SWD | STATUTORY WARRANTY DEED | FOWLER CHRISTOPHER M & VIVIANA M | RAVER JOHN | | | $299,000.00 | 139724 | 2020-08179 |
| 2 | 07/13/2018 | BARGAIN & | BARGAIN & SALE DEED | FOWLER CHRISTOPHER M | FOWLER CHRISTOPHER M & VIVIANA M | | | $0.00 | 135144 | 2018-05820 |
| 3 | 01/18/2011 | WARRANTY D | WARRANTY DEED | HALL, FRANCIS J SR & JEAN A | FOWLER, CHRISTOPHER M | | | $166,000.00 | 119613 | 2011-00531 |
| 4 | 12/24/1986 | WARRANTY D | WARRANTY DEED | | | | | $56,200.00 | 0 | 1618-610150 |
Payout Agreement
| No payout information available.. |