Property
Account |
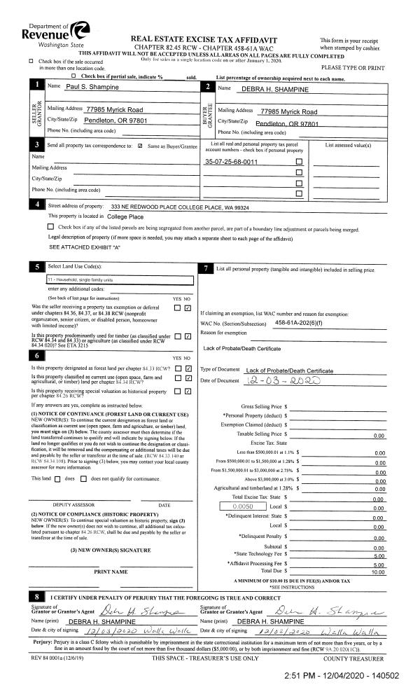
| Property ID: | 3820 | Abbreviated Legal Description: | MAJERUS ADDN PHASE IV LOT 17, LESS NLY TRIANGLE; PLUS SWLY CORNEROF LOT 18 |
| Parcel Number: | 350725680011 | Agent Code: | |
| Type: | Real | | |
| Tax Area: | 75 - CP 250 | Land Use Code | 11 |
| Open Space: | N | DFL | N |
| Historic Property: | N | Remodel Property: | N |
| Multi-Family Redevelopment: | N | | |
| Township: | 7 | Section: | 25 |
| Range: | 35 |
Location |
| Address: | 333 NE REDWOOD PL WA 99324 | Mapsco: | |
| Neighborhood: | A SFR | Map ID: | |
| Neighborhood CD: | 113011 |
Owner |
| Name: | VANDONGE ROBERT MARK & MEIKE ELIZABETH | Owner ID: | 68507 |
| Mailing Address: | 333 NE REDWOOD PL COLLEGE PLACE, WA 99324 | % Ownership: | 100.0000000000% |
| | | Exemptions: | |
Taxes and Assessment Details
Values
| (+) Improvement Homesite Value: | + | $0 | |
| (+) Improvement Non-Homesite Value: | + | $317,390 | |
| (+) Land Homesite Value: | + | $0 | |
| (+) Land Non-Homesite Value: | + | $70,000 | |
| (+) Curr Use (HS): | + | $0 | $0 |
| (+) Curr Use (NHS): | + | $0 | $0 |
| | | -------------------------- | |
| (=) Market Value: | = | $387,390 | |
| (–) Productivity Loss: | – | $0 | |
| | | -------------------------- | |
| (=) Subtotal: | = | $387,390 | |
| (+) Senior Appraised Value: | + | $0 | |
| (+) Non-Senior Appraised Value: | + | $387,390 | |
| | | -------------------------- | |
| (=) Total Appraised Value: | = | $387,390 | |
| (–) Senior Exemption Loss: | – | $0 | |
| (–) Exemption Loss: | – | $0 | |
| | | -------------------------- | |
| (=) Taxable Value: | = | $387,390 | |
Taxing Jurisdiction
| Owner: | VANDONGE ROBERT MARK & MEIKE ELIZABETH | | |
| % Ownership: | 100.0000000000% | | |
| Total Value: | $387,390 | | |
| Tax Area: | 75 - CP 250 |
| CERFD | CURRENT EXPENSE REFUND 010 | 0.0000000000 | $387,390 | $387,390 | $0.00 | | |
| CURREXP | CURRENT EXPENSE 010 | 1.0175366760 | $387,390 | $387,390 | $394.18 | | |
| HUMNSERV | HUMAN SERVICES 119 | 0.0250000000 | $387,390 | $387,390 | $9.68 | | |
| SLDREL | SOLDIERS RELIEF 121 | 0.0155990005 | $387,390 | $387,390 | $6.04 | | |
| COLLPLBOND | C OF CP BOND 644 | 0.4374241808 | $387,390 | $387,390 | $169.45 | | |
| COLLPLGEN | CITY OF CP 632 | 1.4453819216 | $387,390 | $387,390 | $559.93 | | |
| EMERGSER | EMS 147 | 0.3792580840 | $387,390 | $387,390 | $146.92 | | |
| EMSRFD | EMS REFUND 147 | 0.0000000000 | $387,390 | $387,390 | $0.00 | | |
| RURALLIB | RURAL LIBRARY 623 | 0.3710609029 | $387,390 | $387,390 | $143.75 | | |
| PORTRFD | PORT REFUND 640 | 0.0000000000 | $387,390 | $387,390 | $0.00 | | |
| PORTWWGEN | PORT OF WW 640 | 0.2460186015 | $387,390 | $387,390 | $95.31 | | |
| SD250BOND | SD #250 BOND 773 | 1.4560608159 | $387,390 | $387,390 | $564.06 | | |
| SD250GEN | SD #250 GENERAL 770 | 2.3880724087 | $387,390 | $387,390 | $925.12 | | |
| ST2 | STATE SCHOOL PART 2 600 | 0.8131451643 | $387,390 | $387,390 | $315.00 | | |
| STATESCHL | STATE SCHOOL 600 | 1.5158548041 | $387,390 | $387,390 | $587.23 | | |
| STREFUND | STATE REFUND LEVY 603 | 0.0000000000 | $387,390 | $387,390 | $0.00 | | |
| | Total Tax Rate: | 10.1104125603 | | | | | |
| | | | | Taxes w/Current Exemptions: | $3,916.67 | | |
| | | | | Taxes w/o Exemptions: | $3,916.67 | | |
Improvement / Building
| Improvement #1: | RESIDENTIAL | State Code: | 11 | 1792.0 sqft | Value: | $317,390 |
| Exterior Wall: | PLYWOOD | Heating/Cooling: | WARM & COOLED AIR | | Number of Bathrooms: | 2.5 | Number of Bedrooms: | 3 | | Plumbing: | 11 | Roof Covering: | COMP SHINGLE |
|
| | Type | Description | Class CD | Sub Class CD | Year Built | Area |
| | MA | Main Area | 2 | 30 | 1999 | 1792.0 |
| | SI1 | SITE IMPROVEMENT | 2 | 30 | 1999 | 2.0 |
| | UPFL | Upper Floor (included in main area) | 2 | 30 | 1999 | 896.0 |
| | ATG | Attached Garage | 2 | 30 | 1999 | 480.0 |
| | RPO | OPEN PORCH W/ROOF | 2 | 30 | 1999 | 160.0 |
| | TOOL | TOOL SHED | 2 | 30 | 1999 | 192.0 |
Sketch
Property Image
Land
| 1 | RES 1 | Converted: Residential | 0.1579 | 6880.00 | 0.00 | 0.00 | 1.00 | $70,000 | $0 |
Roll Value History
| 2026 | N/A | N/A | N/A | N/A | N/A |
| 2025 | $269,780 | $125,000 | $0 | $394,780 | $394,780 |
| 2024 | $317,390 | $70,000 | $0 | $387,390 | $387,390 |
| 2023 | $317,390 | $70,000 | $0 | $387,390 | $387,390 |
| 2022 | $253,910 | $70,000 | $0 | $323,910 | $323,910 |
| 2021 | $241,820 | $70,000 | $0 | $311,820 | $311,820 |
| 2020 | $172,730 | $70,000 | $0 | $242,730 | $242,730 |
| 2019 | $187,730 | $55,000 | $0 | $242,730 | $242,730 |
| 2018 | $178,790 | $55,000 | $0 | $233,790 | $233,790 |
| 2017 | $149,000 | $55,000 | $0 | $204,000 | $204,000 |
| 2016 | $141,900 | $55,000 | $0 | $196,900 | $196,900 |
| 2015 | $129,000 | $55,000 | $0 | $184,000 | $184,000 |
| 2014 | $129,000 | $55,000 | $0 | $184,000 | $184,000 |
| 2013 | $129,000 | $55,000 | $0 | $184,000 | $184,000 |
| 2012 | $109,300 | $55,000 | $0 | $0 | $0 |
| 2011 | $109,300 | $55,000 | $0 | $0 | $0 |
| 2010 | $109,300 | $55,000 | $0 | $0 | $0 |
| 2009 | $147,900 | $55,000 | $0 | $0 | $0 |
| 2008 | $113,800 | $30,000 | $0 | $0 | $0 |
| 2007 | $113,800 | $30,000 | $0 | $0 | $0 |
Deed and Sales History
| 1 | 12/04/2020 | SWD | STATUTORY WARRANTY DEED | SHAMPINE DEBRA H | VANDONGE ROBERT MARK & MEIKE ELIZABETH | | | $325,600.00 | 140503 | 2020-12892 |
| 2 | 12/04/2020 | LOPA | LACK OF PROBATE AFFIDAVIT | SHAMPINE PAUL S & DEBRA H | SHAMPINE DEBRA H | | | | 140502 | 2020-12891 |
| 3 | 03/16/2000 | WARRANTY D | WARRANTY DEED | | | | | $124,900.00 | 94719 | 2960-002590 |
Payout Agreement
| No payout information available.. |