Property
Account |
| Property ID: | 3803 | Abbreviated Legal Description: | MAJERUS ADDN PHASE II LOT 8 |
| Parcel Number: | 350725660008 | Agent Code: | |
| Type: | Real | | |
| Tax Area: | 75 - CP 250 | Land Use Code | 11 |
| Open Space: | N | DFL | N |
| Historic Property: | N | Remodel Property: | N |
| Multi-Family Redevelopment: | N | | |
| Township: | 7 | Section: | 25 |
| Range: | 35 |
Location |
| Address: | 366 NE KINGWOOD PL WA 99324 | Mapsco: | |
| Neighborhood: | A SFR | Map ID: | |
| Neighborhood CD: | 113011 |
Owner |
| Name: | GRIMES CHAD ASHLEY & AMANDA MORGAN | Owner ID: | 67271 |
| Mailing Address: | 366 NE KINGWOOD PL COLLEGE PLACE, WA 99324 | % Ownership: | 100.0000000000% |
| | | Exemptions: | |
Taxes and Assessment Details
Values
| (+) Improvement Homesite Value: | + | $0 | |
| (+) Improvement Non-Homesite Value: | + | $297,430 | |
| (+) Land Homesite Value: | + | $0 | |
| (+) Land Non-Homesite Value: | + | $70,000 | |
| (+) Curr Use (HS): | + | $0 | $0 |
| (+) Curr Use (NHS): | + | $0 | $0 |
| | | -------------------------- | |
| (=) Market Value: | = | $367,430 | |
| (–) Productivity Loss: | – | $0 | |
| | | -------------------------- | |
| (=) Subtotal: | = | $367,430 | |
| (+) Senior Appraised Value: | + | $0 | |
| (+) Non-Senior Appraised Value: | + | $367,430 | |
| | | -------------------------- | |
| (=) Total Appraised Value: | = | $367,430 | |
| (–) Senior Exemption Loss: | – | $0 | |
| (–) Exemption Loss: | – | $0 | |
| | | -------------------------- | |
| (=) Taxable Value: | = | $367,430 | |
Taxing Jurisdiction
| Owner: | GRIMES CHAD ASHLEY & AMANDA MORGAN | | |
| % Ownership: | 100.0000000000% | | |
| Total Value: | $367,430 | | |
| Tax Area: | 75 - CP 250 |
| CERFD | CURRENT EXPENSE REFUND 010 | 0.0000000000 | $367,430 | $367,430 | $0.00 | | |
| CURREXP | CURRENT EXPENSE 010 | 1.0175366760 | $367,430 | $367,430 | $373.87 | | |
| HUMNSERV | HUMAN SERVICES 119 | 0.0250000000 | $367,430 | $367,430 | $9.19 | | |
| SLDREL | SOLDIERS RELIEF 121 | 0.0155990005 | $367,430 | $367,430 | $5.73 | | |
| COLLPLBOND | C OF CP BOND 644 | 0.4374241808 | $367,430 | $367,430 | $160.72 | | |
| COLLPLGEN | CITY OF CP 632 | 1.4453819216 | $367,430 | $367,430 | $531.08 | | |
| EMERGSER | EMS 147 | 0.3792580840 | $367,430 | $367,430 | $139.35 | | |
| EMSRFD | EMS REFUND 147 | 0.0000000000 | $367,430 | $367,430 | $0.00 | | |
| RURALLIB | RURAL LIBRARY 623 | 0.3710609029 | $367,430 | $367,430 | $136.34 | | |
| PORTRFD | PORT REFUND 640 | 0.0000000000 | $367,430 | $367,430 | $0.00 | | |
| PORTWWGEN | PORT OF WW 640 | 0.2460186015 | $367,430 | $367,430 | $90.39 | | |
| SD250BOND | SD #250 BOND 773 | 1.4560608159 | $367,430 | $367,430 | $535.00 | | |
| SD250GEN | SD #250 GENERAL 770 | 2.3880724087 | $367,430 | $367,430 | $877.45 | | |
| ST2 | STATE SCHOOL PART 2 600 | 0.8131451643 | $367,430 | $367,430 | $298.77 | | |
| STATESCHL | STATE SCHOOL 600 | 1.5158548041 | $367,430 | $367,430 | $556.97 | | |
| STREFUND | STATE REFUND LEVY 603 | 0.0000000000 | $367,430 | $367,430 | $0.00 | | |
| | Total Tax Rate: | 10.1104125603 | | | | | |
| | | | | Taxes w/Current Exemptions: | $3,714.86 | | |
| | | | | Taxes w/o Exemptions: | $3,714.86 | | |
Improvement / Building
| Improvement #1: | RESIDENTIAL | State Code: | 11 | 1560.0 sqft | Value: | $297,430 |
| Exterior Wall: | PLYWOOD | Heating/Cooling: | WARM & COOLED AIR | | Number of Bathrooms: | 2.5 | Number of Bedrooms: | 3 | | Plumbing: | 11 | Roof Covering: | COMP SHINGLE |
|
| | Type | Description | Class CD | Sub Class CD | Year Built | Area |
| | MA | Main Area | 1 | 30 | 1997 | 1560.0 |
| | SI1 | SITE IMPROVEMENT | 1 | 30 | 1997 | 2.0 |
| | ATG | Attached Garage | 1 | 30 | 1997 | 440.0 |
| | RPO | OPEN PORCH W/ROOF | 1 | 30 | 1997 | 30.0 |
| | CPC | COVERED CARPORT/PATIO | 1 | 30 | 1997 | 240.0 |
| | TOOL | TOOL SHED | 1 | 30 | 1997 | 100.0 |
Sketch
Property Image
Land
| 1 | RES 1 | Converted: Residential | 0.2371 | 10327.00 | 0.00 | 0.00 | 1.00 | $70,000 | $0 |
Roll Value History
| 2026 | N/A | N/A | N/A | N/A | N/A |
| 2025 | $237,940 | $125,000 | $0 | $362,940 | $362,940 |
| 2024 | $297,430 | $70,000 | $0 | $367,430 | $367,430 |
| 2023 | $297,430 | $70,000 | $0 | $367,430 | $367,430 |
| 2022 | $258,640 | $70,000 | $0 | $328,640 | $328,640 |
| 2021 | $224,900 | $70,000 | $0 | $294,900 | $294,900 |
| 2020 | $173,000 | $70,000 | $0 | $243,000 | $243,000 |
| 2019 | $188,000 | $55,000 | $0 | $243,000 | $116,285 |
| 2018 | $170,910 | $55,000 | $0 | $225,910 | $116,285 |
| 2017 | $142,420 | $55,000 | $0 | $197,420 | $116,285 |
| 2016 | $129,480 | $55,000 | $0 | $184,480 | $116,285 |
| 2015 | $117,710 | $55,000 | $0 | $172,710 | $69,084 |
| 2014 | $123,900 | $55,000 | $0 | $178,900 | $116,285 |
| 2013 | $123,900 | $55,000 | $0 | $178,900 | $178,900 |
| 2012 | $123,900 | $55,000 | $0 | $0 | $0 |
| 2011 | $117,000 | $55,000 | $0 | $0 | $0 |
| 2010 | $108,800 | $55,000 | $0 | $0 | $0 |
| 2009 | $147,200 | $55,000 | $0 | $0 | $0 |
| 2008 | $109,700 | $30,000 | $0 | $0 | $0 |
| 2007 | $109,700 | $30,000 | $0 | $0 | $0 |
Deed and Sales History
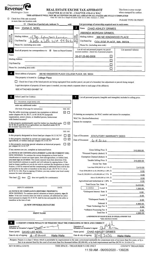
| 1 | 06/05/2020 | SWD | STATUTORY WARRANTY DEED | NOEL IDANA ELIZABETH | GRIMES CHAD ASHLEY & AMANDA MORGAN | | | $310,000.00 | 139226 | 2020-05021 |
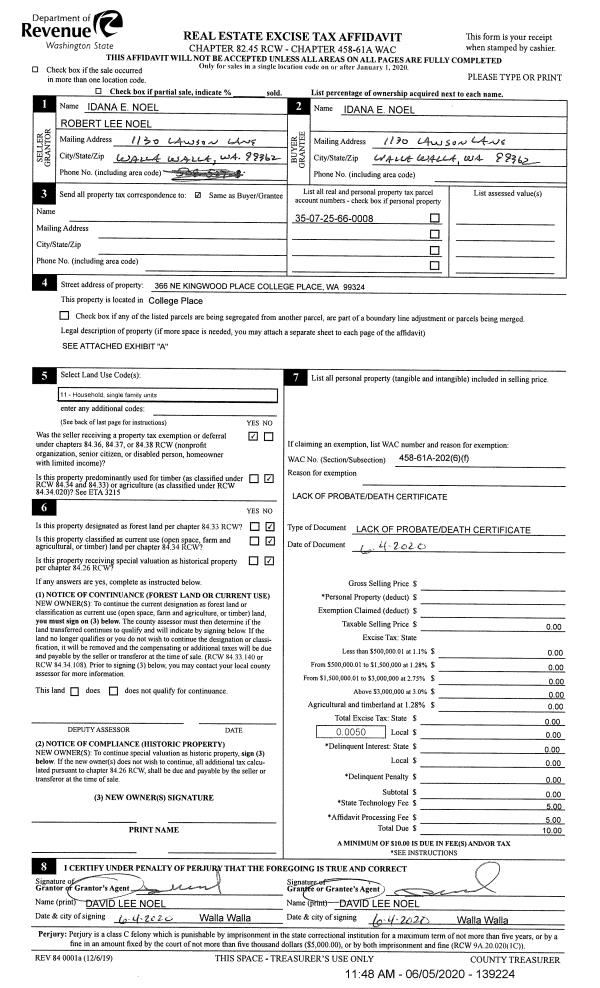
| 2 | 06/05/2020 | LOPA | LACK OF PROBATE AFFIDAVIT | NOEL IDANA ELIZABETH | NOEL IDANA ELIZABETH | | | $0.00 | 139224 | 2020-05020 |
| 3 | 05/06/2014 | DEATH CERT | DEATH CERTIFICATE | NOEL ROBERT LEE | NOEL IDANA ELIZABETH | | | | 0 | NONE |
| 4 | 03/24/1999 | WARRANTY D | WARRANTY DEED | | | | | $138,000.00 | 92415 | 2819-903685 |
Payout Agreement
| No payout information available.. |