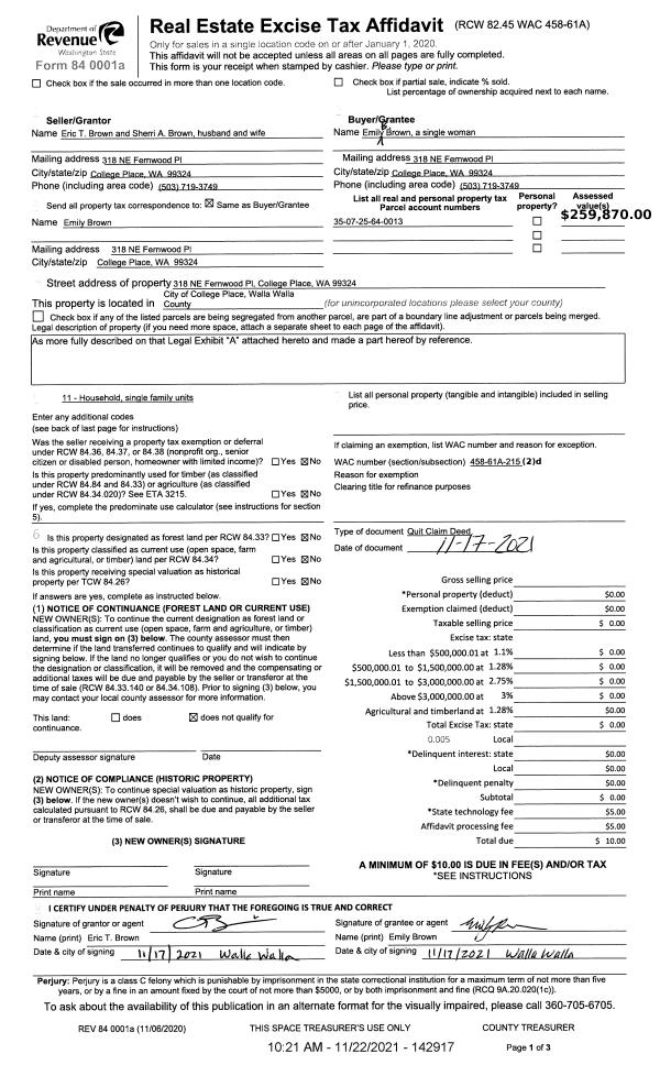
Property
Account |
| Property ID: | 3790 | Abbreviated Legal Description: | MAJERUS ADDN PHASE I LOT 13 |
| Parcel Number: | 350725640013 | Agent Code: | |
| Type: | Real | | |
| Tax Area: | 75 - CP 250 | Land Use Code | 11 |
| Open Space: | N | DFL | N |
| Historic Property: | N | Remodel Property: | N |
| Multi-Family Redevelopment: | N | | |
| Township: | 7 | Section: | 25 |
| Range: | 35 |
Location |
| Address: | 318 NE FERNWOOD PL WA 99324 | Mapsco: | |
| Neighborhood: | A SFR | Map ID: | |
| Neighborhood CD: | 113011 |
Owner |
| Name: | BROWN EMILY B | Owner ID: | 70668 |
| Mailing Address: | 318 NE FERNWOOD PL COLLEGE PLACE, WA 99324 | % Ownership: | 100.0000000000% |
| | | Exemptions: | |
Taxes and Assessment Details
Property Tax Information as of
02/21/2026
Click on "Statement Details" to expand or collapse a tax statement.
* Please enter a valid date ** Please enter a valid date *
Statement Details |
| | TOTAL: | $0.00 | $0.00 | $0.00 | $0.00 | $0.00 | $0.00 |
|
| | $0.00 | $0.00 | $0.00 | $0.00 | $0.00 | $0.00 |
Values
| (+) Improvement Homesite Value: | + | $251,100 | |
| (+) Improvement Non-Homesite Value: | + | $0 | |
| (+) Land Homesite Value: | + | $70,000 | |
| (+) Land Non-Homesite Value: | + | $0 | |
| (+) Curr Use (HS): | + | $0 | $0 |
| (+) Curr Use (NHS): | + | $0 | $0 |
| | | -------------------------- | |
| (=) Market Value: | = | $321,100 | |
| (–) Productivity Loss: | – | $0 | |
| | | -------------------------- | |
| (=) Subtotal: | = | $321,100 | |
| (+) Senior Appraised Value: | + | $0 | |
| (+) Non-Senior Appraised Value: | + | $321,100 | |
| | | -------------------------- | |
| (=) Total Appraised Value: | = | $321,100 | |
| (–) Senior Exemption Loss: | – | $0 | |
| (–) Exemption Loss: | – | $0 | |
| | | -------------------------- | |
| (=) Taxable Value: | = | $321,100 | |
Taxing Jurisdiction
| Owner: | BROWN EMILY B | | |
| % Ownership: | 100.0000000000% | | |
| Total Value: | $321,100 | | |
| Tax Area: | 75 - CP 250 |
| CERFD | CURRENT EXPENSE REFUND 010 | 0.0000000000 | $321,100 | $321,100 | $0.00 | | |
| CURREXP | CURRENT EXPENSE 010 | 1.0175366760 | $321,100 | $321,100 | $326.73 | | |
| HUMNSERV | HUMAN SERVICES 119 | 0.0250000000 | $321,100 | $321,100 | $8.03 | | |
| SLDREL | SOLDIERS RELIEF 121 | 0.0155990005 | $321,100 | $321,100 | $5.01 | | |
| COLLPLBOND | C OF CP BOND 644 | 0.4374241808 | $321,100 | $321,100 | $140.46 | | |
| COLLPLGEN | CITY OF CP 632 | 1.4453819216 | $321,100 | $321,100 | $464.11 | | |
| EMERGSER | EMS 147 | 0.3792580840 | $321,100 | $321,100 | $121.78 | | |
| EMSRFD | EMS REFUND 147 | 0.0000000000 | $321,100 | $321,100 | $0.00 | | |
| RURALLIB | RURAL LIBRARY 623 | 0.3710609029 | $321,100 | $321,100 | $119.15 | | |
| PORTRFD | PORT REFUND 640 | 0.0000000000 | $321,100 | $321,100 | $0.00 | | |
| PORTWWGEN | PORT OF WW 640 | 0.2460186015 | $321,100 | $321,100 | $79.00 | | |
| SD250BOND | SD #250 BOND 773 | 1.4560608159 | $321,100 | $321,100 | $467.54 | | |
| SD250GEN | SD #250 GENERAL 770 | 2.3880724087 | $321,100 | $321,100 | $766.81 | | |
| ST2 | STATE SCHOOL PART 2 600 | 0.8131451643 | $321,100 | $321,100 | $261.10 | | |
| STATESCHL | STATE SCHOOL 600 | 1.5158548041 | $321,100 | $321,100 | $486.74 | | |
| STREFUND | STATE REFUND LEVY 603 | 0.0000000000 | $321,100 | $321,100 | $0.00 | | |
| | Total Tax Rate: | 10.1104125603 | | | | | |
| | | | | Taxes w/Current Exemptions: | $3,246.46 | | |
| | | | | Taxes w/o Exemptions: | $3,246.46 | | |
Improvement / Building
| Improvement #1: | RESIDENTIAL | State Code: | 11 | 1120.0 sqft | Value: | $251,100 |
| Exterior Wall: | PLYWOOD | Heating/Cooling: | WARM & COOLED AIR | | Number of Bathrooms: | 2 | Number of Bedrooms: | 3 | | Plumbing: | 9 | Roof Covering: | COMP SHINGLE |
|
| | Type | Description | Class CD | Sub Class CD | Year Built | Area |
| | MA | Main Area | 1 | 30 | 1995 | 1120.0 |
| | SI1 | SITE IMPROVEMENT | 1 | 30 | 1995 | 1.5 |
| | ATG | Attached Garage | 1 | 30 | 1995 | 400.0 |
| | OPS | OPEN PORCH W/STEPS | 1 | 30 | 1995 | 14.0 |
Sketch
Property Image
Land
| 1 | RES 1 | Converted: Residential | 0.1621 | 7059.00 | 0.00 | 0.00 | 1.00 | $70,000 | $0 |
Roll Value History
| 2026 | N/A | N/A | N/A | N/A | N/A |
| 2025 | $200,880 | $125,000 | $0 | $325,880 | $325,880 |
| 2024 | $251,100 | $70,000 | $0 | $321,100 | $321,100 |
| 2023 | $251,100 | $70,000 | $0 | $321,100 | $321,100 |
| 2022 | $218,350 | $70,000 | $0 | $288,350 | $288,350 |
| 2021 | $189,870 | $70,000 | $0 | $259,870 | $259,870 |
| 2020 | $126,580 | $70,000 | $0 | $196,580 | $63,520 |
| 2019 | $141,580 | $55,000 | $0 | $196,580 | $63,520 |
| 2018 | $114,180 | $55,000 | $0 | $169,180 | $63,520 |
| 2017 | $103,800 | $55,000 | $0 | $158,800 | $63,520 |
| 2016 | $94,360 | $55,000 | $0 | $149,360 | $149,360 |
| 2015 | $85,790 | $55,000 | $0 | $140,790 | $140,790 |
| 2014 | $90,300 | $55,000 | $0 | $145,300 | $145,300 |
| 2013 | $90,300 | $55,000 | $0 | $145,300 | $145,300 |
| 2012 | $83,400 | $55,000 | $0 | $0 | $0 |
| 2011 | $83,400 | $55,000 | $0 | $0 | $0 |
| 2010 | $76,800 | $55,000 | $0 | $0 | $0 |
| 2009 | $107,700 | $55,000 | $0 | $0 | $0 |
| 2008 | $77,700 | $30,000 | $0 | $0 | $0 |
| 2007 | $77,700 | $30,000 | $0 | $0 | $0 |
Deed and Sales History
| 1 | 11/22/2021 | QCD | QUIT CLAIM DEED | BROWN ERIC T & SHERRI A | BROWN EMILY B | | | $0.00 | 142917 | 2021-13818 |
| 2 | 11/02/2021 | QCD | QUIT CLAIM DEED | BROWN ERIC T & SHERRI A | BROWN ERIC T & SHERRI A | | | $0.00 | 142793 | 2021-13174 |
| 3 | 04/15/2021 | SWD | STATUTORY WARRANTY DEED | STEVENSON SYBIL J ESTATE OF | BROWN ERIC T & SHERRI A | | | $300,000.00 | 141342 | 2021-04435 |
| 4 | 01/27/2020 | QCD | QUIT CLAIM DEED | STEVENSON LARRY A & SYBIL | STEVENSON SYBIL J ESTATE OF | | | $0.00 | 138497 | 2020-00741 |
| 5 | 03/09/2001 | WARRANTY D | WARRANTY DEED | | | | | $108,000.00 | 96732 | 3090-102254 |
Payout Agreement
| No payout information available.. |