Property
Account |
| Property ID: | 3773 | Abbreviated Legal Description: | RIMA ADDN LOT 7 BLK 1 |
| Parcel Number: | 350725610107 | Agent Code: | |
| Type: | Real | | |
| Tax Area: | 77 - CP-250-F | Land Use Code | 11 |
| Open Space: | N | DFL | N |
| Historic Property: | N | Remodel Property: | N |
| Multi-Family Redevelopment: | N | | |
| Township: | 7 | Section: | 25 |
| Range: | 35 |
Location |
| Address: | 281 NE MAPLE AVE WA 99324 | Mapsco: | |
| Neighborhood: | A SFR | Map ID: | |
| Neighborhood CD: | 113011 |
Owner |
| Name: | STILLMAN CARINA | Owner ID: | 71345 |
| Mailing Address: | 281 NE MAPLE AVE COLLEGE PLACE, WA 99324 | % Ownership: | 100.0000000000% |
| | | Exemptions: | |
Taxes and Assessment Details
Property Tax Information as of
02/21/2026
Click on "Statement Details" to expand or collapse a tax statement.
* Please enter a valid date ** Please enter a valid date *
Statement Details |
| | TOTAL: | $0.00 | $0.00 | $0.00 | $0.00 | $0.00 | $0.00 |
|
| | $0.00 | $0.00 | $0.00 | $0.00 | $0.00 | $0.00 |
Values
| (+) Improvement Homesite Value: | + | $0 | |
| (+) Improvement Non-Homesite Value: | + | $354,840 | |
| (+) Land Homesite Value: | + | $0 | |
| (+) Land Non-Homesite Value: | + | $70,000 | |
| (+) Curr Use (HS): | + | $0 | $0 |
| (+) Curr Use (NHS): | + | $0 | $0 |
| | | -------------------------- | |
| (=) Market Value: | = | $424,840 | |
| (–) Productivity Loss: | – | $0 | |
| | | -------------------------- | |
| (=) Subtotal: | = | $424,840 | |
| (+) Senior Appraised Value: | + | $0 | |
| (+) Non-Senior Appraised Value: | + | $424,840 | |
| | | -------------------------- | |
| (=) Total Appraised Value: | = | $424,840 | |
| (–) Senior Exemption Loss: | – | $0 | |
| (–) Exemption Loss: | – | $0 | |
| | | -------------------------- | |
| (=) Taxable Value: | = | $424,840 | |
Taxing Jurisdiction
| Owner: | STILLMAN CARINA | | |
| % Ownership: | 100.0000000000% | | |
| Total Value: | $424,840 | | |
| Tax Area: | 77 - CP-250-F |
| CERFD | CURRENT EXPENSE REFUND 010 | 0.0000000000 | $424,840 | $424,840 | $0.00 | | |
| CURREXP | CURRENT EXPENSE 010 | 1.0175366760 | $424,840 | $424,840 | $432.29 | | |
| HUMNSERV | HUMAN SERVICES 119 | 0.0250000000 | $424,840 | $424,840 | $10.62 | | |
| SLDREL | SOLDIERS RELIEF 121 | 0.0155990005 | $424,840 | $424,840 | $6.63 | | |
| COLLPLBOND | C OF CP BOND 644 | 0.4374241808 | $424,840 | $424,840 | $185.84 | | |
| COLLPLGEN | CITY OF CP 632 | 1.4453819216 | $424,840 | $424,840 | $614.06 | | |
| EMERGSER | EMS 147 | 0.3792580840 | $424,840 | $424,840 | $161.12 | | |
| EMSRFD | EMS REFUND 147 | 0.0000000000 | $424,840 | $424,840 | $0.00 | | |
| RURALLIB | RURAL LIBRARY 623 | 0.3710609029 | $424,840 | $424,840 | $157.64 | | |
| PORTRFD | PORT REFUND 640 | 0.0000000000 | $424,840 | $424,840 | $0.00 | | |
| PORTWWGEN | PORT OF WW 640 | 0.2460186015 | $424,840 | $424,840 | $104.52 | | |
| SD250BOND | SD #250 BOND 773 | 1.4560608159 | $424,840 | $424,840 | $618.59 | | |
| SD250GEN | SD #250 GENERAL 770 | 2.3880724087 | $424,840 | $424,840 | $1,014.55 | | |
| ST2 | STATE SCHOOL PART 2 600 | 0.8131451643 | $424,840 | $424,840 | $345.46 | | |
| STATESCHL | STATE SCHOOL 600 | 1.5158548041 | $424,840 | $424,840 | $644.00 | | |
| STREFUND | STATE REFUND LEVY 603 | 0.0000000000 | $424,840 | $424,840 | $0.00 | | |
| | Total Tax Rate: | 10.1104125603 | | | | | |
| | | | | Taxes w/Current Exemptions: | $4,295.32 | | |
| | | | | Taxes w/o Exemptions: | $4,295.32 | | |
Improvement / Building
| Improvement #1: | RESIDENTIAL | State Code: | 11 | 1736.0 sqft | Value: | $354,840 |
| Exterior Wall: | SIDING | Heating/Cooling: | REV-HEAT-PUMP-W/DUCT | | Number of Bathrooms: | 4 | Number of Bedrooms: | 3 | | Plumbing: | 16 | Roof Covering: | COMP SHINGLE |
|
| | Type | Description | Class CD | Sub Class CD | Year Built | Area |
| | MA | Main Area | 4 | 35 | 1993 | 1736.0 |
| | UPFL | Upper Floor (included in main area) | 4 | 35 | 1993 | 812.0 |
| | SI1 | SITE IMPROVEMENT | 4 | 35 | 1993 | 2.5 |
| | BASE | BASEMENT | 4 | 35 | 1993 | 924.0 |
| | BPF | BASEMENT -PARTITIONED FINISH | 4 | 35 | 1993 | 924.0 |
| | ATG | Attached Garage | 4 | 35 | 1993 | 441.0 |
| | RPS | PORCH W/STEPS,ROOF | 4 | 35 | 1993 | 30.0 |
| | WOD | Wood Deck | 4 | 35 | 1993 | 219.0 |
Sketch
Property Image
Land
| 1 | RES 1 | Converted: Residential | 0.2129 | 9276.00 | 0.00 | 0.00 | 1.00 | $70,000 | $0 |
Roll Value History
| 2026 | N/A | N/A | N/A | N/A | N/A |
| 2025 | $353,950 | $120,000 | $0 | $473,950 | $473,950 |
| 2024 | $372,580 | $70,000 | $0 | $442,580 | $442,580 |
| 2023 | $354,840 | $70,000 | $0 | $424,840 | $424,840 |
| 2022 | $322,580 | $70,000 | $0 | $392,580 | $392,580 |
| 2021 | $268,810 | $70,000 | $0 | $338,810 | $338,810 |
| 2020 | $206,780 | $70,000 | $0 | $276,780 | $276,780 |
| 2019 | $221,780 | $55,000 | $0 | $276,780 | $276,780 |
| 2018 | $170,600 | $55,000 | $0 | $225,600 | $225,600 |
| 2017 | $170,600 | $55,000 | $0 | $225,600 | $225,600 |
| 2016 | $170,600 | $55,000 | $0 | $225,600 | $225,600 |
| 2015 | $170,600 | $55,000 | $0 | $225,600 | $225,600 |
| 2014 | $170,600 | $55,000 | $0 | $225,600 | $225,600 |
| 2013 | $170,600 | $55,000 | $0 | $225,600 | $225,600 |
| 2012 | $170,600 | $55,000 | $0 | $0 | $0 |
| 2011 | $170,600 | $55,000 | $0 | $0 | $0 |
| 2010 | $150,100 | $55,000 | $0 | $0 | $0 |
| 2009 | $172,900 | $55,000 | $0 | $0 | $0 |
| 2008 | $131,500 | $30,000 | $0 | $0 | $0 |
| 2007 | $131,500 | $30,000 | $0 | $0 | $0 |
Deed and Sales History
| 1 | 09/19/2023 | SWD | STATUTORY WARRANTY DEED | STILLMAN CARINA | GALLER CAMEO S & JOHN T | | | $494,000.00 | 146498 | 203-05476 |
| 2 | 03/22/2022 | QCD | QUIT CLAIM DEED | STILLMAN JODY | STILLMAN CARINA | | | | 143597 | 2022-02376 |
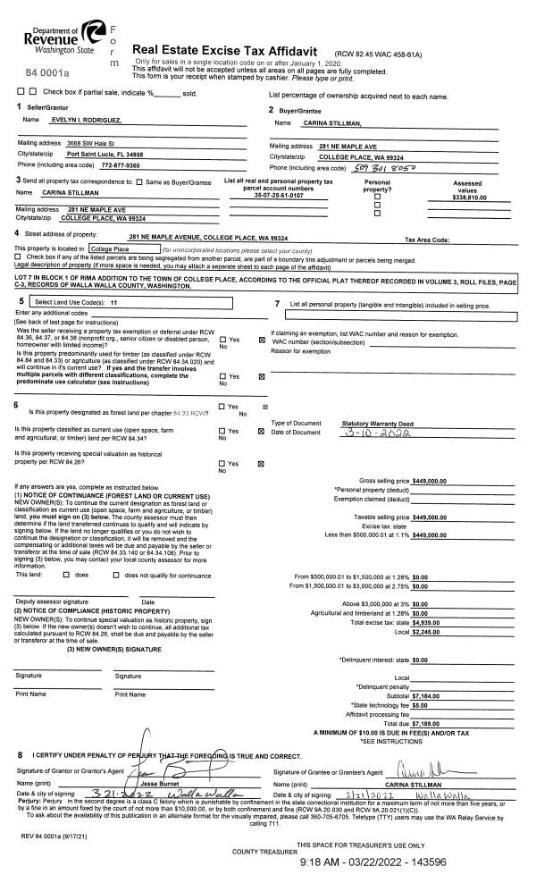
| 3 | 03/22/2022 | SWD | STATUTORY WARRANTY DEED | RODRIGUEZ EVELYN I | STILLMAN CARINA | | | $449,000.00 | 143596 | 2022-02375 |
| 4 | 08/30/2010 | QCD | QUIT CLAIM DEED | RODRIGUEZ, ADRIAN | RODRIGUEZ, EVELYN I | | | | 118939 | 2010-06719 |
| 5 | 07/15/2005 | WARRANTY D | WARRANTY DEED | GISH, BENJAMIN K & CONNIE C | RODRIGUEZ, EVELYN I | | | $278,000.00 | 107973 | 2005-08596 |
| 6 | 06/30/1993 | WARRANTY D | WARRANTY DEED | | | | | $134,000.00 | 79428 | 2089-306622 |
Payout Agreement
| No payout information available.. |