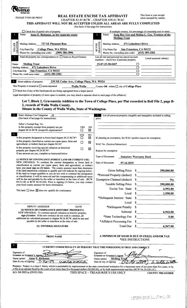
Property
Account |
| Property ID: | 3753 | Abbreviated Legal Description: | GRAVENSTEIN ADDN LOT 7 BLK 2 |
| Parcel Number: | 350725580207 | Agent Code: | |
| Type: | Real | | |
| Tax Area: | 75 - CP 250 | Land Use Code | 12 |
| Open Space: | N | DFL | N |
| Historic Property: | N | Remodel Property: | N |
| Multi-Family Redevelopment: | N | | |
| Township: | 7 | Section: | 25 |
| Range: | 35 |
Location |
| Address: | 239 NE CEDAR AVE WA 99324 | Mapsco: | |
| Neighborhood: | A Apartment | Map ID: | |
| Neighborhood CD: | 113021 |
Owner |
| Name: | MEILING TRUST | Owner ID: | 65550 |
| Mailing Address: | 471 LAKESHORE DR SAN FRANCISCO, CA 94132 | % Ownership: | 100.0000000000% |
| | | Exemptions: | |
Taxes and Assessment Details
Property Tax Information as of
04/19/2026
Click on "Statement Details" to expand or collapse a tax statement.
* Please enter a valid date ** Please enter a valid date *
Statement Details |
| | TOTAL: | $0.00 | $0.00 | $0.00 | $0.00 | $0.00 | $0.00 |
|
| | $0.00 | $0.00 | $0.00 | $0.00 | $0.00 | $0.00 |
Values
| (+) Improvement Homesite Value: | + | $0 | |
| (+) Improvement Non-Homesite Value: | + | $364,210 | |
| (+) Land Homesite Value: | + | $0 | |
| (+) Land Non-Homesite Value: | + | $58,200 | |
| (+) Curr Use (HS): | + | $0 | $0 |
| (+) Curr Use (NHS): | + | $0 | $0 |
| | | -------------------------- | |
| (=) Market Value: | = | $422,410 | |
| (–) Productivity Loss: | – | $0 | |
| | | -------------------------- | |
| (=) Subtotal: | = | $422,410 | |
| (+) Senior Appraised Value: | + | $0 | |
| (+) Non-Senior Appraised Value: | + | $422,410 | |
| | | -------------------------- | |
| (=) Total Appraised Value: | = | $422,410 | |
| (–) Senior Exemption Loss: | – | $0 | |
| (–) Exemption Loss: | – | $0 | |
| | | -------------------------- | |
| (=) Taxable Value: | = | $422,410 | |
Taxing Jurisdiction
| Owner: | MEILING TRUST | | |
| % Ownership: | 100.0000000000% | | |
| Total Value: | $422,410 | | |
| Tax Area: | 75 - CP 250 |
| CERFD | CURRENT EXPENSE REFUND 010 | 0.0000000000 | $422,410 | $422,410 | $0.00 | | |
| CURREXP | CURRENT EXPENSE 010 | 1.0175366760 | $422,410 | $422,410 | $429.82 | | |
| HUMNSERV | HUMAN SERVICES 119 | 0.0250000000 | $422,410 | $422,410 | $10.56 | | |
| SLDREL | SOLDIERS RELIEF 121 | 0.0155990005 | $422,410 | $422,410 | $6.59 | | |
| COLLPLBOND | C OF CP BOND 644 | 0.4374241808 | $422,410 | $422,410 | $184.77 | | |
| COLLPLGEN | CITY OF CP 632 | 1.4453819216 | $422,410 | $422,410 | $610.54 | | |
| EMERGSER | EMS 147 | 0.3792580840 | $422,410 | $422,410 | $160.20 | | |
| EMSRFD | EMS REFUND 147 | 0.0000000000 | $422,410 | $422,410 | $0.00 | | |
| RURALLIB | RURAL LIBRARY 623 | 0.3710609029 | $422,410 | $422,410 | $156.74 | | |
| PORTRFD | PORT REFUND 640 | 0.0000000000 | $422,410 | $422,410 | $0.00 | | |
| PORTWWGEN | PORT OF WW 640 | 0.2460186015 | $422,410 | $422,410 | $103.92 | | |
| SD250BOND | SD #250 BOND 773 | 1.4560608159 | $422,410 | $422,410 | $615.05 | | |
| SD250GEN | SD #250 GENERAL 770 | 2.3880724087 | $422,410 | $422,410 | $1,008.75 | | |
| ST2 | STATE SCHOOL PART 2 600 | 0.8131451643 | $422,410 | $422,410 | $343.48 | | |
| STATESCHL | STATE SCHOOL 600 | 1.5158548041 | $422,410 | $422,410 | $640.31 | | |
| STREFUND | STATE REFUND LEVY 603 | 0.0000000000 | $422,410 | $422,410 | $0.00 | | |
| | Total Tax Rate: | 10.1104125603 | | | | | |
| | | | | Taxes w/Current Exemptions: | $4,270.73 | | |
| | | | | Taxes w/o Exemptions: | $4,270.73 | | |
Improvement / Building
| Improvement #1: | RESIDENTIAL | State Code: | 12 | 3574.0 sqft | Value: | $364,210 |
| Exterior Wall: | HARDBOARD | Heating/Cooling: | BASEBOARD ELECTRIC | | Number of Bathrooms: | 4 | Number of Bedrooms: | 8 | | Plumbing: | 30 | Roof Covering: | COMP SHINGLE |
|
| | Type | Description | Class CD | Sub Class CD | Year Built | Area |
| | MA | Main Area | 2 | 30 | 1984 | 3574.0 |
| | SI1 | SITE IMPROVEMENT | 2 | 30 | 1984 | 4.0 |
| | UPFL | Upper Floor (included in main area) | 2 | 30 | 1984 | 1787.0 |
| | ATG | Attached Garage | 2 | 30 | 1984 | 552.0 |
| | ATG | Attached Garage | 2 | 30 | 1984 | 552.0 |
| | RPO | OPEN PORCH W/ROOF | 2 | 30 | 1984 | 196.0 |
| | BLW | WOOD BALCONIES | 2 | 30 | 1984 | 335.0 |
| | EWS | EXT WOOD STAIRS | 2 | 30 | 1984 | 3.0 |
Sketch
Property Image
Land
| 1 | RES 1 | Converted: Residential | 0.2475 | 10782.00 | 0.00 | 0.00 | 1.00 | $58,200 | $0 |
Roll Value History
| 2026 | N/A | N/A | N/A | N/A | N/A |
| 2025 | $317,990 | $78,060 | $0 | $396,050 | $396,050 |
| 2024 | $365,500 | $58,200 | $0 | $423,700 | $423,700 |
| 2023 | $364,210 | $58,200 | $0 | $422,410 | $422,410 |
| 2022 | $364,210 | $58,200 | $0 | $422,410 | $422,410 |
| 2021 | $331,100 | $58,200 | $0 | $389,300 | $389,300 |
| 2020 | $266,150 | $58,200 | $0 | $324,350 | $324,350 |
| 2019 | $276,550 | $47,800 | $0 | $324,350 | $324,350 |
| 2018 | $263,380 | $47,800 | $0 | $311,180 | $311,180 |
| 2017 | $202,600 | $47,800 | $0 | $250,400 | $250,400 |
| 2016 | $202,600 | $47,800 | $0 | $250,400 | $250,400 |
| 2015 | $202,600 | $47,800 | $0 | $250,400 | $250,400 |
| 2014 | $202,600 | $47,800 | $0 | $250,400 | $250,400 |
| 2013 | $202,600 | $47,800 | $0 | $250,400 | $250,400 |
| 2012 | $202,600 | $47,800 | $0 | $0 | $0 |
| 2011 | $202,600 | $47,800 | $0 | $0 | $0 |
| 2010 | $202,600 | $47,800 | $0 | $0 | $0 |
| 2009 | $202,600 | $47,800 | $0 | $0 | $0 |
| 2008 | $185,700 | $25,400 | $0 | $0 | $0 |
| 2007 | $185,700 | $25,400 | $0 | $0 | $0 |
Deed and Sales History
| 1 | 07/17/2019 | SWD | STATUTORY WARRANTY DEED | RICHMAN ANNE E | MEILING TRUST | | | $390,000.00 | 137298 | 2019-05182 |
| 2 | 01/11/2017 | COMMUNITY | COMMUNITY PROPERTY AGREEMENT | RICHMAN JAMES W | RICHMAN ANNE E | | | | 0 | 2017-00281 |
| 3 | 02/18/1999 | WARRANTY D | WARRANTY DEED | | | | | $165,000.00 | 92196 | 2809-902015 |
Payout Agreement
| No payout information available.. |