Property
Account |
| Property ID: | 3720 | Abbreviated Legal Description: | MT VISTA ADDN LOT 1 BLK 3 |
| Parcel Number: | 350725560301 | Agent Code: | |
| Type: | Real | | |
| Tax Area: | 75 - CP 250 | Land Use Code | 11 |
| Open Space: | N | DFL | N |
| Historic Property: | N | Remodel Property: | N |
| Multi-Family Redevelopment: | N | | |
| Township: | 7 | Section: | 25 |
| Range: | 35 |
Location |
| Address: | 306 NE A ST WA 99324 | Mapsco: | |
| Neighborhood: | G SFR | Map ID: | |
| Neighborhood CD: | 114011 |
Owner |
| Name: | POLITTE DAN L | Owner ID: | 51704 |
| Mailing Address: | 1915 FRUITVALE BLVD YAKIMA, WA 98902 | % Ownership: | 100.0000000000% |
| | | Exemptions: | |
Taxes and Assessment Details
Values
| (+) Improvement Homesite Value: | + | $0 | |
| (+) Improvement Non-Homesite Value: | + | $334,470 | |
| (+) Land Homesite Value: | + | $0 | |
| (+) Land Non-Homesite Value: | + | $75,000 | |
| (+) Curr Use (HS): | + | $0 | $0 |
| (+) Curr Use (NHS): | + | $0 | $0 |
| | | -------------------------- | |
| (=) Market Value: | = | $409,470 | |
| (–) Productivity Loss: | – | $0 | |
| | | -------------------------- | |
| (=) Subtotal: | = | $409,470 | |
| (+) Senior Appraised Value: | + | $0 | |
| (+) Non-Senior Appraised Value: | + | $409,470 | |
| | | -------------------------- | |
| (=) Total Appraised Value: | = | $409,470 | |
| (–) Senior Exemption Loss: | – | $0 | |
| (–) Exemption Loss: | – | $0 | |
| | | -------------------------- | |
| (=) Taxable Value: | = | $409,470 | |
Taxing Jurisdiction
| Owner: | POLITTE DAN L | | |
| % Ownership: | 100.0000000000% | | |
| Total Value: | $409,470 | | |
| Tax Area: | 75 - CP 250 |
| CERFD | CURRENT EXPENSE REFUND 010 | 0.0000000000 | $409,470 | $409,470 | $0.00 | | |
| CURREXP | CURRENT EXPENSE 010 | 1.0175366760 | $409,470 | $409,470 | $416.65 | | |
| HUMNSERV | HUMAN SERVICES 119 | 0.0250000000 | $409,470 | $409,470 | $10.24 | | |
| SLDREL | SOLDIERS RELIEF 121 | 0.0155990005 | $409,470 | $409,470 | $6.39 | | |
| COLLPLBOND | C OF CP BOND 644 | 0.4374241808 | $409,470 | $409,470 | $179.11 | | |
| COLLPLGEN | CITY OF CP 632 | 1.4453819216 | $409,470 | $409,470 | $591.84 | | |
| EMERGSER | EMS 147 | 0.3792580840 | $409,470 | $409,470 | $155.29 | | |
| EMSRFD | EMS REFUND 147 | 0.0000000000 | $409,470 | $409,470 | $0.00 | | |
| RURALLIB | RURAL LIBRARY 623 | 0.3710609029 | $409,470 | $409,470 | $151.94 | | |
| PORTRFD | PORT REFUND 640 | 0.0000000000 | $409,470 | $409,470 | $0.00 | | |
| PORTWWGEN | PORT OF WW 640 | 0.2460186015 | $409,470 | $409,470 | $100.74 | | |
| SD250BOND | SD #250 BOND 773 | 1.4560608159 | $409,470 | $409,470 | $596.21 | | |
| SD250GEN | SD #250 GENERAL 770 | 2.3880724087 | $409,470 | $409,470 | $977.84 | | |
| ST2 | STATE SCHOOL PART 2 600 | 0.8131451643 | $409,470 | $409,470 | $332.96 | | |
| STATESCHL | STATE SCHOOL 600 | 1.5158548041 | $409,470 | $409,470 | $620.70 | | |
| STREFUND | STATE REFUND LEVY 603 | 0.0000000000 | $409,470 | $409,470 | $0.00 | | |
| | Total Tax Rate: | 10.1104125603 | | | | | |
| | | | | Taxes w/Current Exemptions: | $4,139.91 | | |
| | | | | Taxes w/o Exemptions: | $4,139.91 | | |
Improvement / Building
| Improvement #1: | RESIDENTIAL | State Code: | 11 | 1984.0 sqft | Value: | $334,470 |
| Exterior Wall: | SIDING | Foundation: | SLAB FOUNDATION | | Heating/Cooling: | WARM & COOLED AIR | Number of Bathrooms: | 3 | | Number of Bedrooms: | 5 | Plumbing: | 16 | | Roof Covering: | COMP SHINGLE |   |   |
|
| | Type | Description | Class CD | Sub Class CD | Year Built | Area |
| | MA | Main Area | 1 | 35 | 1964 | 1984.0 |
| | SI1 | SITE IMPROVEMENT | 1 | 35 | 1964 | 2.5 |
| | BASE | BASEMENT | 1 | 35 | 1964 | 896.0 |
| | BPF | BASEMENT -PARTITIONED FINISH | 1 | 35 | 1964 | 896.0 |
| | ATG | Attached Garage | 1 | 35 | 1964 | 384.0 |
| | RPC | OPEN PORCH W/ROOF , CEILED | 1 | 35 | 1964 | 25.0 |
| | D2F | Double 2 Story Fireplace | 1 | 35 | 1964 | 1.0 |
| | CPC | COVERED CARPORT/PATIO | 1 | 35 | 1964 | 280.0 |
Sketch
Property Image
Land
| 1 | RES 1 | Converted: Residential | 0.2835 | 12350.00 | 0.00 | 0.00 | 1.00 | $75,000 | $0 |
Roll Value History
| 2026 | N/A | N/A | N/A | N/A | N/A |
| 2025 | $367,910 | $125,000 | $0 | $492,910 | $492,910 |
| 2024 | $334,470 | $75,000 | $0 | $409,470 | $409,470 |
| 2023 | $334,470 | $75,000 | $0 | $409,470 | $409,470 |
| 2022 | $334,470 | $75,000 | $0 | $409,470 | $409,470 |
| 2021 | $278,720 | $75,000 | $0 | $353,720 | $353,720 |
| 2020 | $206,460 | $75,000 | $0 | $281,460 | $281,460 |
| 2019 | $221,460 | $60,000 | $0 | $281,460 | $281,460 |
| 2018 | $184,550 | $60,000 | $0 | $244,550 | $244,550 |
| 2017 | $141,960 | $60,000 | $0 | $201,960 | $201,960 |
| 2016 | $135,200 | $60,000 | $0 | $195,200 | $195,200 |
| 2015 | $135,200 | $60,000 | $0 | $195,200 | $195,200 |
| 2014 | $169,000 | $60,000 | $0 | $229,000 | $229,000 |
| 2013 | $169,000 | $60,000 | $0 | $229,000 | $229,000 |
| 2012 | $169,000 | $60,000 | $0 | $0 | $0 |
| 2011 | $169,000 | $60,000 | $0 | $0 | $0 |
| 2010 | $169,000 | $60,000 | $0 | $0 | $0 |
| 2009 | $173,800 | $60,000 | $0 | $0 | $0 |
| 2008 | $162,900 | $30,000 | $0 | $0 | $0 |
| 2007 | $162,900 | $30,000 | $0 | $0 | $0 |
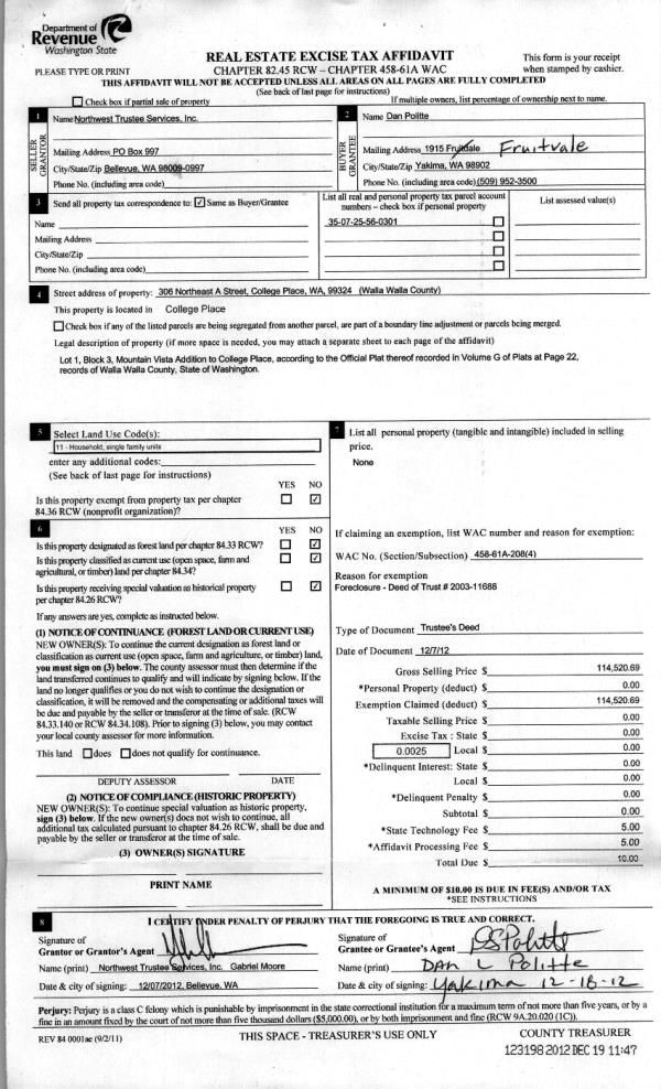
Deed and Sales History
| 1 | 12/19/2012 | WARRANTY D | WARRANTY DEED | NORTHWEST TRUSTEE SERVICES INC | POLITTE, DAN L | | | $114,520.00 | 123198 | 2012-11331 |
| 2 | 05/26/2000 | WARRANTY D | WARRANTY DEED | | | | | $162,000.00 | 95142 | 2980-005061 |
Payout Agreement
| No payout information available.. |