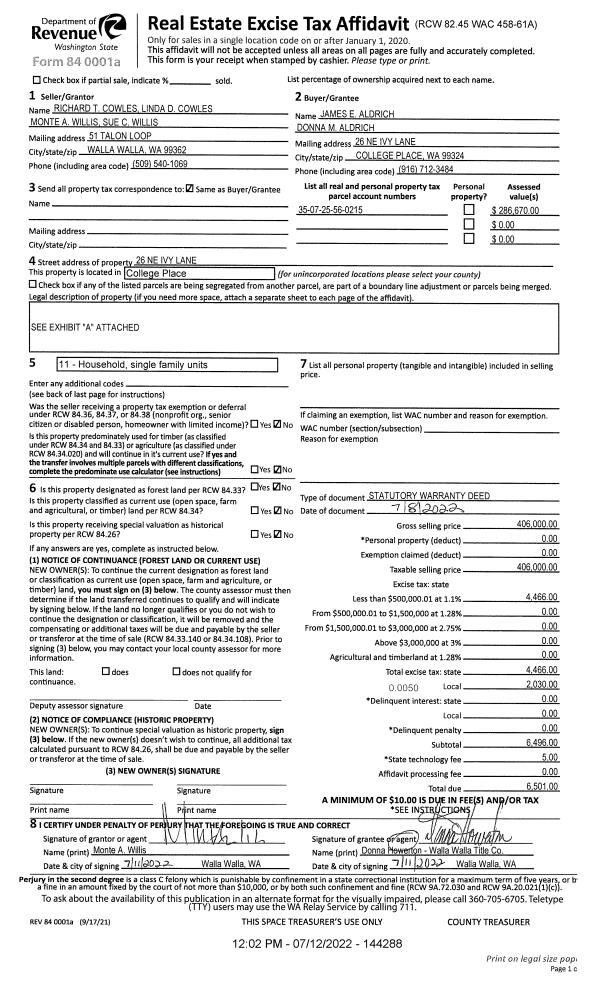
Property
Account |
| Property ID: | 3718 | Abbreviated Legal Description: | MT VISTA ADDN PARCEL 15 BLK 2 |
| Parcel Number: | 350725560215 | Agent Code: | |
| Type: | Real | | |
| Tax Area: | 75 - CP 250 | Land Use Code | 11 |
| Open Space: | N | DFL | N |
| Historic Property: | N | Remodel Property: | N |
| Multi-Family Redevelopment: | N | | |
| Township: | 7 | Section: | 25 |
| Range: | 35 |
Location |
| Address: | 26 NE IVY LN WA 99324 | Mapsco: | |
| Neighborhood: | G SFR | Map ID: | |
| Neighborhood CD: | 114011 |
Owner |
| Name: | ALDRICH JAMES E & DONNA M | Owner ID: | 71941 |
| Mailing Address: | 26 NE IVY LN COLLGE PLACE, WA 99324 | % Ownership: | 100.0000000000% |
| | | Exemptions: | |
Taxes and Assessment Details
Property Tax Information as of
02/21/2026
Click on "Statement Details" to expand or collapse a tax statement.
* Please enter a valid date ** Please enter a valid date *
Statement Details |
| | TOTAL: | $0.00 | $0.00 | $0.00 | $0.00 | $0.00 | $0.00 |
|
| | $0.00 | $0.00 | $0.00 | $0.00 | $0.00 | $0.00 |
Values
| (+) Improvement Homesite Value: | + | $0 | |
| (+) Improvement Non-Homesite Value: | + | $296,340 | |
| (+) Land Homesite Value: | + | $0 | |
| (+) Land Non-Homesite Value: | + | $75,000 | |
| (+) Curr Use (HS): | + | $0 | $0 |
| (+) Curr Use (NHS): | + | $0 | $0 |
| | | -------------------------- | |
| (=) Market Value: | = | $371,340 | |
| (–) Productivity Loss: | – | $0 | |
| | | -------------------------- | |
| (=) Subtotal: | = | $371,340 | |
| (+) Senior Appraised Value: | + | $0 | |
| (+) Non-Senior Appraised Value: | + | $371,340 | |
| | | -------------------------- | |
| (=) Total Appraised Value: | = | $371,340 | |
| (–) Senior Exemption Loss: | – | $0 | |
| (–) Exemption Loss: | – | $0 | |
| | | -------------------------- | |
| (=) Taxable Value: | = | $371,340 | |
Taxing Jurisdiction
| Owner: | ALDRICH JAMES E & DONNA M | | |
| % Ownership: | 100.0000000000% | | |
| Total Value: | $371,340 | | |
| Tax Area: | 75 - CP 250 |
| CERFD | CURRENT EXPENSE REFUND 010 | 0.0000000000 | $371,340 | $371,340 | $0.00 | | |
| CURREXP | CURRENT EXPENSE 010 | 1.0175366760 | $371,340 | $371,340 | $377.85 | | |
| HUMNSERV | HUMAN SERVICES 119 | 0.0250000000 | $371,340 | $371,340 | $9.28 | | |
| SLDREL | SOLDIERS RELIEF 121 | 0.0155990005 | $371,340 | $371,340 | $5.79 | | |
| COLLPLBOND | C OF CP BOND 644 | 0.4374241808 | $371,340 | $371,340 | $162.43 | | |
| COLLPLGEN | CITY OF CP 632 | 1.4453819216 | $371,340 | $371,340 | $536.73 | | |
| EMERGSER | EMS 147 | 0.3792580840 | $371,340 | $371,340 | $140.83 | | |
| EMSRFD | EMS REFUND 147 | 0.0000000000 | $371,340 | $371,340 | $0.00 | | |
| RURALLIB | RURAL LIBRARY 623 | 0.3710609029 | $371,340 | $371,340 | $137.79 | | |
| PORTRFD | PORT REFUND 640 | 0.0000000000 | $371,340 | $371,340 | $0.00 | | |
| PORTWWGEN | PORT OF WW 640 | 0.2460186015 | $371,340 | $371,340 | $91.36 | | |
| SD250BOND | SD #250 BOND 773 | 1.4560608159 | $371,340 | $371,340 | $540.69 | | |
| SD250GEN | SD #250 GENERAL 770 | 2.3880724087 | $371,340 | $371,340 | $886.79 | | |
| ST2 | STATE SCHOOL PART 2 600 | 0.8131451643 | $371,340 | $371,340 | $301.95 | | |
| STATESCHL | STATE SCHOOL 600 | 1.5158548041 | $371,340 | $371,340 | $562.90 | | |
| STREFUND | STATE REFUND LEVY 603 | 0.0000000000 | $371,340 | $371,340 | $0.00 | | |
| | Total Tax Rate: | 10.1104125603 | | | | | |
| | | | | Taxes w/Current Exemptions: | $3,754.39 | | |
| | | | | Taxes w/o Exemptions: | $3,754.39 | | |
Improvement / Building
| Improvement #1: | RESIDENTIAL | State Code: | 11 | 1569.0 sqft | Value: | $296,340 |
| Exterior Wall: | PLYWOOD | Heating/Cooling: | WARM & COOLED AIR | | Number of Bathrooms: | 2 | Number of Bedrooms: | 3 | | Plumbing: | 9 | Roof Covering: | COMP SHINGLE |
|
| | Type | Description | Class CD | Sub Class CD | Year Built | Area |
| | MA | Main Area | 1 | 35 | 1978 | 1569.0 |
| | SI1 | SITE IMPROVEMENT | 1 | 35 | 1978 | 2.0 |
| | ATG | Attached Garage | 1 | 35 | 1978 | 462.0 |
| | RPC | OPEN PORCH W/ROOF , CEILED | 1 | 35 | 1978 | 28.0 |
| | S1F | Single One Story Fireplace | 1 | 35 | 1978 | 1.0 |
Sketch
Property Image
Land
| 1 | RES 1 | Converted: Residential | 0.2444 | 10645.00 | 0.00 | 0.00 | 1.00 | $75,000 | $0 |
Roll Value History
| 2026 | N/A | N/A | N/A | N/A | N/A |
| 2025 | $289,670 | $125,000 | $0 | $414,670 | $414,670 |
| 2024 | $340,790 | $75,000 | $0 | $415,790 | $415,790 |
| 2023 | $296,340 | $75,000 | $0 | $371,340 | $371,340 |
| 2022 | $296,340 | $75,000 | $0 | $371,340 | $371,340 |
| 2021 | $211,670 | $75,000 | $0 | $286,670 | $286,670 |
| 2020 | $145,980 | $75,000 | $0 | $220,980 | $220,980 |
| 2019 | $160,980 | $60,000 | $0 | $220,980 | $220,980 |
| 2018 | $114,990 | $60,000 | $0 | $174,990 | $174,990 |
| 2017 | $95,820 | $60,000 | $0 | $155,820 | $155,820 |
| 2016 | $91,260 | $60,000 | $0 | $151,260 | $151,260 |
| 2015 | $91,260 | $60,000 | $0 | $151,260 | $151,260 |
| 2014 | $101,400 | $60,000 | $0 | $161,400 | $161,400 |
| 2013 | $126,800 | $60,000 | $0 | $186,800 | $186,800 |
| 2012 | $136,600 | $60,000 | $0 | $0 | $0 |
| 2011 | $146,900 | $60,000 | $0 | $0 | $0 |
| 2010 | $146,900 | $60,000 | $0 | $0 | $0 |
| 2009 | $157,800 | $60,000 | $0 | $0 | $0 |
| 2008 | $118,700 | $30,000 | $0 | $0 | $0 |
| 2007 | $118,700 | $30,000 | $0 | $0 | $0 |
Deed and Sales History
| 1 | 07/12/2022 | SWD | STATUTORY WARRANTY DEED | COWLES RICHARD T & LINDA D | ALDRICH JAMES E & DONNA M | | | $406,000.00 | 144288 | 2022-05898 |
| 2 | 05/15/2014 | WARRANTY D | WARRANTY DEED | COWLES RICHARD T & LINDA D | | | | | 125885 | 2014-03294 |
| 3 | 11/21/2013 | WARRANTY D | WARRANTY DEED | WILKINS MICHELLE | COWLES RICHARD T & LINDA D | | | $155,000.00 | 124986 | 2013-11396 |
| 4 | 09/29/2006 | WARRANTY D | WARRANTY DEED | ANDERSON, CLARENCE G & JUDY P | WILKINS, MICHELLE | | | $223,000.00 | 111344 | 2006-11798 |
| 5 | 08/18/1993 | WARRANTY D | WARRANTY DEED | | | | | $114,000.00 | 79779 | 2099-308532 |
Payout Agreement
| No payout information available.. |