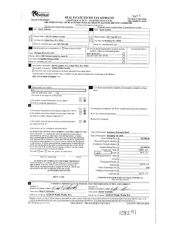
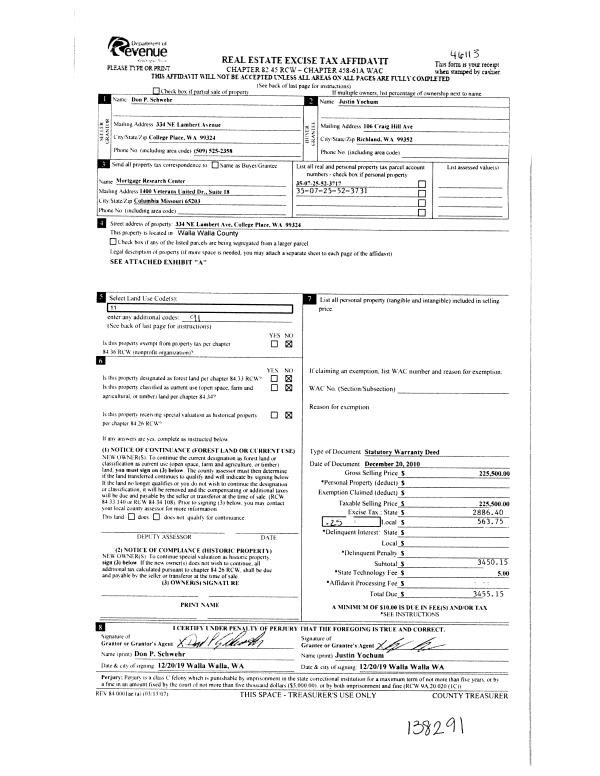
| 1 | 12/20/2019 | SWD | STATUTORY WARRANTY DEED | SCHWEHR DON P | YOCHUM JUSTIN | | 2-PARCLES | $225,500.00 | 138291 | 2019-10586 |
|   | |
| 2 | 10/31/2003 | WARRANTY D | WARRANTY DEED | SECRETARY OF VETERANS AFFAIRS | SCHWEHR DON P | | | | 103418 | 2003-16898 |
| 3 | 05/23/2003 | WARRANTY D | WARRANTY DEED | WASHINGTON MUTUAL BANK F.A. | SECRETARY OF VETERANS AFFAIRS | | | $89,087.00 | 102143 | 2003-07595 |
|   | |
| 4 | 05/19/2003 | WARRANTY D | WARRANTY DEED | BRADFIELD, THOMAS E | WASHINGTON MUTUAL BANK F.A. | | | $89,087.00 | 102108 | 2003-07298 |
|   | |
| 5 | 10/11/1991 | WARRANTY D | WARRANTY DEED | | | | | $49,500.00 | 0 | 1929-107184 |
|   | |