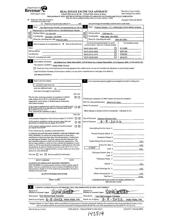
Property
Account |
| Property ID: | 3649 | Abbreviated Legal Description: | BLALOCK ORCHARDS E 101' OF LOT 2 BLK 25 |
| Parcel Number: | 350725522507 | Agent Code: | |
| Type: | Real | | |
| Tax Area: | 75 - CP 250 | Land Use Code | 11 |
| Open Space: | N | DFL | N |
| Historic Property: | N | Remodel Property: | N |
| Multi-Family Redevelopment: | N | | |
| Township: | 7 | Section: | 25 |
| Range: | 35 |
Location |
| Address: | 139 WALLULA AVE WA 99324 | Mapsco: | |
| Neighborhood: | A SFR Rural/City Infl | Map ID: | |
| Neighborhood CD: | 313012 |
Owner |
| Name: | PROPERTY DESIGNS LLC | Owner ID: | 71279 |
| Mailing Address: | 1438 GRANT ST WALLA WALLA, WA 99362 | % Ownership: | 100.0000000000% |
| | | Exemptions: | |
Taxes and Assessment Details
Values
| (+) Improvement Homesite Value: | + | $0 | |
| (+) Improvement Non-Homesite Value: | + | $68,820 | |
| (+) Land Homesite Value: | + | $0 | |
| (+) Land Non-Homesite Value: | + | $79,840 | |
| (+) Curr Use (HS): | + | $0 | $0 |
| (+) Curr Use (NHS): | + | $0 | $0 |
| | | -------------------------- | |
| (=) Market Value: | = | $148,660 | |
| (–) Productivity Loss: | – | $0 | |
| | | -------------------------- | |
| (=) Subtotal: | = | $148,660 | |
| (+) Senior Appraised Value: | + | $0 | |
| (+) Non-Senior Appraised Value: | + | $148,660 | |
| | | -------------------------- | |
| (=) Total Appraised Value: | = | $148,660 | |
| (–) Senior Exemption Loss: | – | $0 | |
| (–) Exemption Loss: | – | $0 | |
| | | -------------------------- | |
| (=) Taxable Value: | = | $148,660 | |
Taxing Jurisdiction
| Owner: | PROPERTY DESIGNS LLC | | |
| % Ownership: | 100.0000000000% | | |
| Total Value: | $148,660 | | |
| Tax Area: | 75 - CP 250 |
| CERFD | CURRENT EXPENSE REFUND 010 | 0.0000000000 | $148,660 | $148,660 | $0.00 | | |
| CURREXP | CURRENT EXPENSE 010 | 1.0175366760 | $148,660 | $148,660 | $151.27 | | |
| HUMNSERV | HUMAN SERVICES 119 | 0.0250000000 | $148,660 | $148,660 | $3.72 | | |
| SLDREL | SOLDIERS RELIEF 121 | 0.0155990005 | $148,660 | $148,660 | $2.32 | | |
| COLLPLBOND | C OF CP BOND 644 | 0.4374241808 | $148,660 | $148,660 | $65.03 | | |
| COLLPLGEN | CITY OF CP 632 | 1.4453819216 | $148,660 | $148,660 | $214.87 | | |
| EMERGSER | EMS 147 | 0.3792580840 | $148,660 | $148,660 | $56.38 | | |
| EMSRFD | EMS REFUND 147 | 0.0000000000 | $148,660 | $148,660 | $0.00 | | |
| RURALLIB | RURAL LIBRARY 623 | 0.3710609029 | $148,660 | $148,660 | $55.16 | | |
| PORTRFD | PORT REFUND 640 | 0.0000000000 | $148,660 | $148,660 | $0.00 | | |
| PORTWWGEN | PORT OF WW 640 | 0.2460186015 | $148,660 | $148,660 | $36.57 | | |
| SD250BOND | SD #250 BOND 773 | 1.4560608159 | $148,660 | $148,660 | $216.46 | | |
| SD250GEN | SD #250 GENERAL 770 | 2.3880724087 | $148,660 | $148,660 | $355.01 | | |
| ST2 | STATE SCHOOL PART 2 600 | 0.8131451643 | $148,660 | $148,660 | $120.88 | | |
| STATESCHL | STATE SCHOOL 600 | 1.5158548041 | $148,660 | $148,660 | $225.35 | | |
| STREFUND | STATE REFUND LEVY 603 | 0.0000000000 | $148,660 | $148,660 | $0.00 | | |
| | Total Tax Rate: | 10.1104125603 | | | | | |
| | | | | Taxes w/Current Exemptions: | $1,503.02 | | |
| | | | | Taxes w/o Exemptions: | $1,503.02 | | |
Improvement / Building
| Improvement #1: | RESIDENTIAL | State Code: | 11 | 1308.0 sqft | Value: | $68,820 |
| Exterior Wall: | SIDING | Foundation: | POST & PIER | | Heating/Cooling: | FLOOR FURNACE | Number of Bathrooms: | 1 | | Number of Bedrooms: | 4 | Plumbing: | 6 | | Roof Covering: | COMP SHINGLE |   |   |
|
| | Type | Description | Class CD | Sub Class CD | Year Built | Area |
| | MA | Main Area | 4 | 20 | 1897 | 1308.0 |
| | SI1 | SITE IMPROVEMENT | 4 | 20 | 1897 | 1.0 |
| | UPFL | Upper Floor (included in main area) | 4 | 20 | 1897 | 528.0 |
| | RPO | OPEN PORCH W/ROOF | 4 | 20 | 1897 | 84.0 |
| | RPO | OPEN PORCH W/ROOF | 4 | 20 | 1897 | 96.0 |
| | BNV | BUILDING NO VALUE | 4 | 20 | 1897 | 266.0 |
Sketch
Property Image
Land
| 1 | RES 1 | Converted: Residential | 0.3900 | 16988.00 | 0.00 | 0.00 | 1.00 | $79,840 | $0 |
Roll Value History
| 2026 | N/A | N/A | N/A | N/A | N/A |
| 2025 | $68,820 | $79,840 | $0 | $148,660 | $148,660 |
| 2024 | $68,820 | $79,840 | $0 | $148,660 | $148,660 |
| 2023 | $68,820 | $79,840 | $0 | $148,660 | $148,660 |
| 2022 | $68,820 | $79,840 | $0 | $148,660 | $148,660 |
| 2021 | $61,780 | $53,100 | $0 | $114,880 | $114,880 |
| 2020 | $51,480 | $53,100 | $0 | $104,580 | $104,580 |
| 2019 | $51,480 | $53,100 | $0 | $104,580 | $104,580 |
| 2018 | $38,140 | $53,100 | $0 | $91,240 | $91,240 |
| 2017 | $38,140 | $53,100 | $0 | $91,240 | $91,240 |
| 2016 | $36,320 | $53,100 | $0 | $89,420 | $89,420 |
| 2015 | $52,080 | $53,100 | $0 | $105,180 | $105,180 |
| 2014 | $37,200 | $53,100 | $0 | $90,300 | $90,300 |
| 2013 | $37,200 | $53,100 | $0 | $90,300 | $90,300 |
| 2012 | $37,200 | $53,100 | $0 | $0 | $0 |
| 2011 | $37,200 | $53,100 | $0 | $0 | $0 |
| 2010 | $38,200 | $53,100 | $0 | $0 | $0 |
| 2009 | $70,500 | $30,900 | $0 | $0 | $0 |
| 2008 | $32,500 | $30,900 | $0 | $0 | $0 |
| 2007 | $32,500 | $30,900 | $0 | $0 | $0 |
Deed and Sales History
| 1 | 03/08/2022 | SWD | STATUTORY WARRANTY DEED | MC CORMACK TERRI K | PROPERTY DESIGNS LLC | | | $0.00 | 143514 | 2022-02007 |
| 2 | 02/11/2005 | WARRANTY D | WARRANTY DEED | SMITH, BOBBY J & VENUS A | MC CORMACK, TERRI K | | | $100,000.00 | 106755 | 2005-01634 |
| 3 | 08/19/1996 | WARRANTY D | WARRANTY DEED | | | | | $30,000.00 | 86725 | 2439-608405 |
Payout Agreement
| No payout information available.. |