Property
Account |
| Property ID: | 36189 | Abbreviated Legal Description: | CRESTMONT ADDN LOT 6 BLK 3 |
| Parcel Number: | 350736670306 | Agent Code: | |
| Type: | Real | | |
| Tax Area: | 75 - CP 250 | Land Use Code | 11 |
| Open Space: | N | DFL | N |
| Historic Property: | N | Remodel Property: | N |
| Multi-Family Redevelopment: | N | | |
| Township: | 7 | Section: | 36 |
| Range: | 35 |
Location |
| Address: | 453 SE STANFORD PL WA 99324 | Mapsco: | |
| Neighborhood: | G SFR | Map ID: | |
| Neighborhood CD: | 114011 |
Owner |
| Name: | RIGGLE STEVEN DALE & NANCY ELLEN | Owner ID: | 55312 |
| Mailing Address: | 453 SE STANFORD PL COLLEGE PLACE, WA 99324 | % Ownership: | 100.0000000000% |
| | | Exemptions: | |
Taxes and Assessment Details
Values
| (+) Improvement Homesite Value: | + | $325,300 | |
| (+) Improvement Non-Homesite Value: | + | $0 | |
| (+) Land Homesite Value: | + | $65,000 | |
| (+) Land Non-Homesite Value: | + | $0 | |
| (+) Curr Use (HS): | + | $0 | $0 |
| (+) Curr Use (NHS): | + | $0 | $0 |
| | | -------------------------- | |
| (=) Market Value: | = | $390,300 | |
| (–) Productivity Loss: | – | $0 | |
| | | -------------------------- | |
| (=) Subtotal: | = | $390,300 | |
| (+) Senior Appraised Value: | + | $0 | |
| (+) Non-Senior Appraised Value: | + | $390,300 | |
| | | -------------------------- | |
| (=) Total Appraised Value: | = | $390,300 | |
| (–) Senior Exemption Loss: | – | $0 | |
| (–) Exemption Loss: | – | $0 | |
| | | -------------------------- | |
| (=) Taxable Value: | = | $390,300 | |
Taxing Jurisdiction
| Owner: | RIGGLE STEVEN DALE & NANCY ELLEN | | |
| % Ownership: | 100.0000000000% | | |
| Total Value: | $390,300 | | |
| Tax Area: | 75 - CP 250 |
| CERFD | CURRENT EXPENSE REFUND 010 | 0.0000000000 | $390,300 | $390,300 | $0.00 | | |
| CURREXP | CURRENT EXPENSE 010 | 1.0175366760 | $390,300 | $390,300 | $397.14 | | |
| HUMNSERV | HUMAN SERVICES 119 | 0.0250000000 | $390,300 | $390,300 | $9.76 | | |
| SLDREL | SOLDIERS RELIEF 121 | 0.0155990005 | $390,300 | $390,300 | $6.09 | | |
| COLLPLBOND | C OF CP BOND 644 | 0.4374241808 | $390,300 | $390,300 | $170.73 | | |
| COLLPLGEN | CITY OF CP 632 | 1.4453819216 | $390,300 | $390,300 | $564.13 | | |
| EMERGSER | EMS 147 | 0.3792580840 | $390,300 | $390,300 | $148.02 | | |
| EMSRFD | EMS REFUND 147 | 0.0000000000 | $390,300 | $390,300 | $0.00 | | |
| RURALLIB | RURAL LIBRARY 623 | 0.3710609029 | $390,300 | $390,300 | $144.83 | | |
| PORTRFD | PORT REFUND 640 | 0.0000000000 | $390,300 | $390,300 | $0.00 | | |
| PORTWWGEN | PORT OF WW 640 | 0.2460186015 | $390,300 | $390,300 | $96.02 | | |
| SD250BOND | SD #250 BOND 773 | 1.4560608159 | $390,300 | $390,300 | $568.30 | | |
| SD250GEN | SD #250 GENERAL 770 | 2.3880724087 | $390,300 | $390,300 | $932.06 | | |
| ST2 | STATE SCHOOL PART 2 600 | 0.8131451643 | $390,300 | $390,300 | $317.37 | | |
| STATESCHL | STATE SCHOOL 600 | 1.5158548041 | $390,300 | $390,300 | $591.64 | | |
| STREFUND | STATE REFUND LEVY 603 | 0.0000000000 | $390,300 | $390,300 | $0.00 | | |
| | Total Tax Rate: | 10.1104125603 | | | | | |
| | | | | Taxes w/Current Exemptions: | $3,946.09 | | |
| | | | | Taxes w/o Exemptions: | $3,946.09 | | |
Improvement / Building
| Improvement #1: | RESIDENTIAL | State Code: | 11 | 1842.0 sqft | Value: | $325,300 |
| Exterior Wall: | PLYWOOD | Heating/Cooling: | WARM & COOLED AIR | | Number of Bathrooms: | 2 | Number of Bedrooms: | 3 | | Plumbing: | 8 | Roof Covering: | COMP SHINGLE |
|
| | Type | Description | Class CD | Sub Class CD | Year Built | Area |
| | MA | Main Area | 1 | 30 | 1991 | 1842.0 |
| | SI1 | SITE IMPROVEMENT | 1 | 30 | 1991 | 2.0 |
| | ATG | Attached Garage | 1 | 30 | 1991 | 440.0 |
| | RPS | PORCH W/STEPS,ROOF | 1 | 30 | 1991 | 24.0 |
| | RPO | OPEN PORCH W/ROOF | 1 | 30 | 1991 | 168.0 |
| | SOLR | SOLAR POWER PANELS | 1 | 30 | 2017 | 20.0 |
Sketch
Property Image
Land
| 1 | RES 1 | Converted: Residential | 0.1687 | 7350.00 | 0.00 | 0.00 | 1.00 | $65,000 | $0 |
Roll Value History
| 2026 | N/A | N/A | N/A | N/A | N/A |
| 2025 | $292,770 | $125,000 | $0 | $417,770 | $417,770 |
| 2024 | $325,300 | $65,000 | $0 | $390,300 | $390,300 |
| 2023 | $325,300 | $65,000 | $0 | $390,300 | $390,300 |
| 2022 | $325,300 | $65,000 | $0 | $390,300 | $390,300 |
| 2021 | $224,340 | $65,000 | $0 | $289,340 | $289,340 |
| 2020 | $186,950 | $65,000 | $0 | $251,950 | $251,950 |
| 2019 | $186,950 | $65,000 | $0 | $251,950 | $251,950 |
| 2018 | $143,810 | $65,000 | $0 | $208,810 | $208,810 |
| 2017 | $125,050 | $65,000 | $0 | $190,050 | $190,050 |
| 2016 | $104,210 | $65,000 | $0 | $169,210 | $169,210 |
| 2015 | $104,210 | $65,000 | $0 | $169,210 | $169,210 |
| 2014 | $122,600 | $65,000 | $0 | $187,600 | $187,600 |
| 2013 | $136,200 | $65,000 | $0 | $201,200 | $80,480 |
| 2012 | $140,200 | $65,000 | $0 | $205,200 | $80,480 |
| 2011 | $143,400 | $65,000 | $0 | $208,400 | $80,480 |
| 2010 | $136,200 | $65,000 | $0 | $0 | $0 |
| 2009 | $146,800 | $65,000 | $0 | $0 | $0 |
| 2008 | $110,400 | $30,000 | $0 | $0 | $0 |
| 2007 | $110,400 | $30,000 | $0 | $0 | $0 |
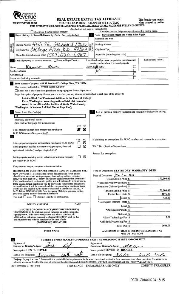
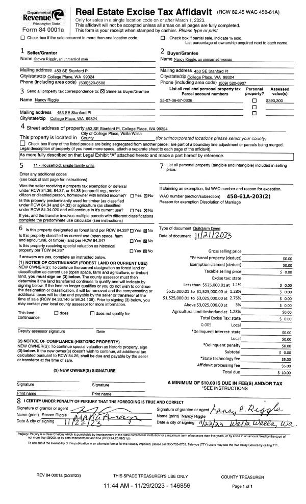
Deed and Sales History
| 1 | 11/29/2023 | QCD | QUIT CLAIM DEED | RIGGLE STEVEN DALE & NANCY ELLEN | RIGGLE NANCY | | | | 146856 | 2023-06894 |
| 2 | 08/04/2014 | SWD | STATUTORY WARRANTY DEED | HOLBROOK SHIRLEY A ROUSE | RIGGLE STEVEN DALE & NANCY ELLEN | | | $170,000.00 | 126381 | 2014-05547 |
| 3 | 06/28/1996 | WARRANTY D | WARRANTY DEED | | | | | $120,000.00 | 86396 | 2429-606484 |
Payout Agreement
| No payout information available.. |