Property
Account |
| Property ID: | 36188 | Abbreviated Legal Description: | BARRONS TAX 2 BLK 10 |
| Parcel Number: | 360729521008 | Agent Code: | |
| Type: | Real | | |
| Tax Area: | 1 - OL-140-F | Land Use Code | 11 |
| Open Space: | N | DFL | N |
| Historic Property: | N | Remodel Property: | N |
| Multi-Family Redevelopment: | N | | |
| Township: | 7 | Section: | 29 |
| Range: | 36 |
Location |
| Address: | 314 S 8TH AVE WA 99362 | Mapsco: | |
| Neighborhood: | Fair Inferior Res MH | Map ID: | |
| Neighborhood CD: | 512161 |
Owner |
| Name: | CHI MINGHUA | Owner ID: | 72587 |
| Mailing Address: | 221 E SHERMAN AVE COEUR D'ALENE, ID 83814 | % Ownership: | 100.0000000000% |
| | | Exemptions: | |
Taxes and Assessment Details
Property Tax Information as of
02/21/2026
Click on "Statement Details" to expand or collapse a tax statement.
* Please enter a valid date ** Please enter a valid date *
Statement Details |
| | TOTAL: | $0.00 | $0.00 | $0.00 | $0.00 | $0.00 | $0.00 |
|
| | $0.00 | $0.00 | $0.00 | $0.00 | $0.00 | $0.00 |
Values
| (+) Improvement Homesite Value: | + | $182,400 | |
| (+) Improvement Non-Homesite Value: | + | $0 | |
| (+) Land Homesite Value: | + | $53,830 | |
| (+) Land Non-Homesite Value: | + | $0 | |
| (+) Curr Use (HS): | + | $0 | $0 |
| (+) Curr Use (NHS): | + | $0 | $0 |
| | | -------------------------- | |
| (=) Market Value: | = | $236,230 | |
| (–) Productivity Loss: | – | $0 | |
| | | -------------------------- | |
| (=) Subtotal: | = | $236,230 | |
| (+) Senior Appraised Value: | + | $0 | |
| (+) Non-Senior Appraised Value: | + | $236,230 | |
| | | -------------------------- | |
| (=) Total Appraised Value: | = | $236,230 | |
| (–) Senior Exemption Loss: | – | $0 | |
| (–) Exemption Loss: | – | $0 | |
| | | -------------------------- | |
| (=) Taxable Value: | = | $236,230 | |
Taxing Jurisdiction
| Owner: | CHI MINGHUA | | |
| % Ownership: | 100.0000000000% | | |
| Total Value: | $236,230 | | |
| Tax Area: | 1 - OL-140-F |
| CERFD | CURRENT EXPENSE REFUND 010 | 0.0000000000 | $236,230 | $236,230 | $0.00 | | |
| CURREXP | CURRENT EXPENSE 010 | 1.0175366760 | $236,230 | $236,230 | $240.37 | | |
| HUMNSERV | HUMAN SERVICES 119 | 0.0250000000 | $236,230 | $236,230 | $5.91 | | |
| SLDREL | SOLDIERS RELIEF 121 | 0.0155990005 | $236,230 | $236,230 | $3.68 | | |
| EMERGSER | EMS 147 | 0.3792580840 | $236,230 | $236,230 | $89.59 | | |
| EMSRFD | EMS REFUND 147 | 0.0000000000 | $236,230 | $236,230 | $0.00 | | |
| PORTRFD | PORT REFUND 640 | 0.0000000000 | $236,230 | $236,230 | $0.00 | | |
| PORTWWGEN | PORT OF WW 640 | 0.2460186015 | $236,230 | $236,230 | $58.12 | | |
| SD140BOND | SD #140 BOND 764 | 0.8342371393 | $236,230 | $236,230 | $197.07 | | |
| SD140GEN | SD #140 GENERAL 760 | 2.0646500647 | $236,230 | $236,230 | $487.73 | | |
| ST2 | STATE SCHOOL PART 2 600 | 0.8131451643 | $236,230 | $236,230 | $192.09 | | |
| STATESCHL | STATE SCHOOL 600 | 1.5158548041 | $236,230 | $236,230 | $358.09 | | |
| STREFUND | STATE REFUND LEVY 603 | 0.0000000000 | $236,230 | $236,230 | $0.00 | | |
| CWWBOND | C OF WW BOND 643 | 0.2760494372 | $236,230 | $236,230 | $65.21 | | |
| CWWGEN | CITY OF WW 631 | 1.6100204973 | $236,230 | $236,230 | $380.34 | | |
| CWWRFD | CITY OF WALLA WALLA REFUND 631 | 0.0000000000 | $236,230 | $236,230 | $0.00 | | |
| | Total Tax Rate: | 8.7973694689 | | | | | |
| | | | | Taxes w/Current Exemptions: | $2,078.20 | | |
| | | | | Taxes w/o Exemptions: | $2,078.20 | | |
Improvement / Building
| Improvement #1: | MANUFACTURED HOME | State Code: | 11 | 2290.0 sqft | Value: | $182,400 |
| Exterior Wall: | HARDBOARD | Heating/Cooling: | WARM & COOLED AIR | | Number of Bathrooms: | 2 | Number of Bedrooms: | 4 | | Plumbing: | 10 | Roof Covering: | COMP SHINGLE |
|
| | Type | Description | Class CD | Sub Class CD | Year Built | Area |
| | MOBHOME | MANUFACTURD HOMES | 1 | 40 | 2001 | 2290.0 |
| | MI1 | MH SET-UP COSTS | 1 | 40 | 2001 | 1.0 |
| | RPO | OPEN PORCH W/ROOF | 1 | 40 | 2001 | 112.0 |
| | WDR | WOOD DECK W/ROOF | 1 | 40 | 2001 | 312.0 |
Sketch
Property Image
Land
| 1 | RES 1 | Converted: Residential | 0.3471 | 15120.00 | 0.00 | 0.00 | 1.00 | $53,830 | $0 |
Roll Value History
| 2026 | N/A | N/A | N/A | N/A | N/A |
| 2025 | $159,400 | $79,080 | $0 | $238,480 | $238,480 |
| 2024 | $159,400 | $79,080 | $0 | $238,480 | $238,480 |
| 2023 | $182,400 | $53,830 | $0 | $236,230 | $236,230 |
| 2022 | $182,400 | $53,830 | $0 | $236,230 | $236,230 |
| 2021 | $135,110 | $53,830 | $0 | $188,940 | $188,940 |
| 2020 | $103,930 | $53,830 | $0 | $157,760 | $157,760 |
| 2019 | $103,930 | $53,830 | $0 | $157,760 | $157,760 |
| 2018 | $103,930 | $53,830 | $0 | $157,760 | $157,760 |
| 2017 | $106,260 | $51,500 | $0 | $157,760 | $157,760 |
| 2016 | $101,200 | $51,500 | $0 | $152,700 | $61,080 |
| 2015 | $101,200 | $51,500 | $0 | $152,700 | $61,080 |
| 2014 | $126,500 | $51,500 | $0 | $178,000 | $71,200 |
| 2013 | $126,500 | $51,500 | $0 | $178,000 | $71,200 |
| 2012 | $126,900 | $51,500 | $0 | $0 | $0 |
| 2011 | $110,700 | $51,500 | $0 | $0 | $0 |
| 2010 | $110,700 | $51,500 | $0 | $0 | $0 |
| 2009 | $128,700 | $51,500 | $0 | $0 | $0 |
| 2008 | $128,700 | $51,500 | $0 | $0 | $0 |
| 2007 | $99,500 | $29,000 | $0 | $0 | $0 |
Deed and Sales History
| 1 | 10/11/2022 | QCD | QUIT CLAIM DEED | CHI MING HUA & FENG LIAN | CHI MINGHUA | | | $0.00 | 144840 | 2022-08357 |
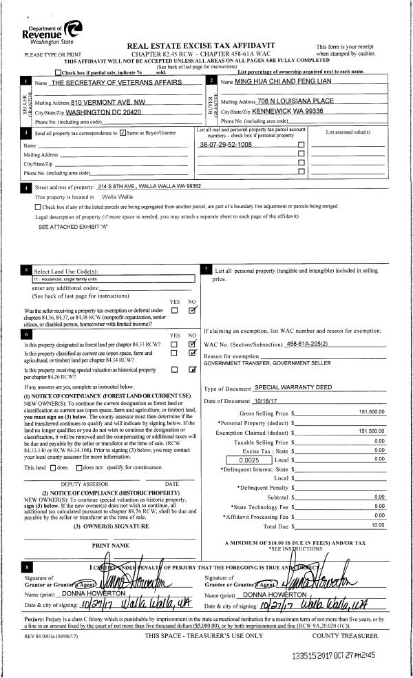
| 2 | 10/27/2017 | SWP | Special Warranty Deed | SECRETARY OF VETERANS AFFAIRS | CHI MING HUA & FENG LIAN | | | $151,500.00 | 133515 | 2017-08637 |
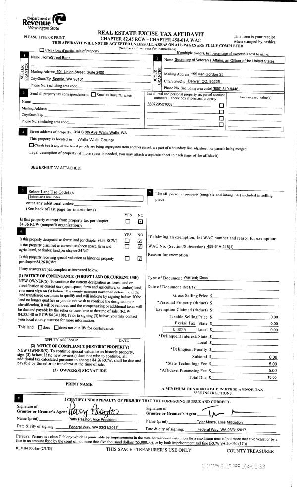
| 3 | 03/31/2017 | WARRANTY D | WARRANTY DEED | HOMESTREET BANK | SECRETARY OF VETERANS AFFAIRS | | | $0.00 | 132175 | 2017-02681 |
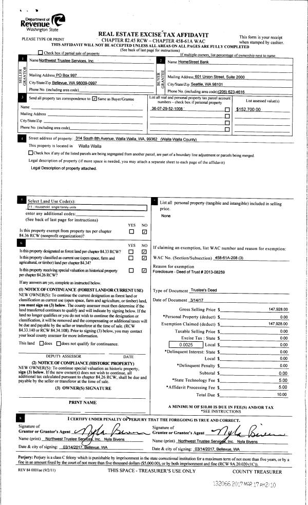
| 4 | 03/17/2017 | TRUSTEES D | TRUSTEE'S DEED | SATERN KENNETH D | HOMESTREET BANK | | | $147,928.00 | 132066 | 2017-02065 |
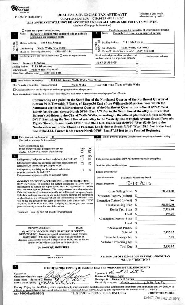
| 5 | 08/13/2013 | WARRANTY D | WARRANTY DEED | BRENES, BARBARA C | SATERN, KENNETH D | | | $158,500.00 | 124471 | 2013-08258 |
| 6 | 12/27/1999 | WARRANTY D | WARRANTY DEED | | | | | $16,000.00 | 94258 | 2939-914292 |
Payout Agreement
| No payout information available.. |