Property
Account |
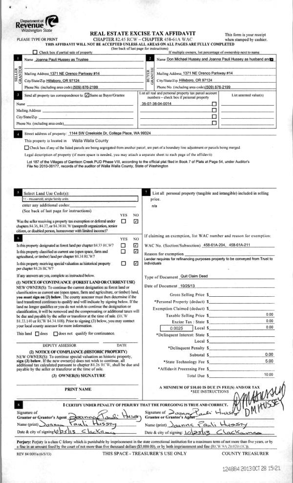
| Property ID: | 36175 | Abbreviated Legal Description: | VILLAGES OF GARRISON CREEK PUD PHASE VIII LOT 187 |
| Parcel Number: | 350736040014 | Agent Code: | |
| Type: | Real | | |
| Tax Area: | 77 - CP-250-F | Land Use Code | 11 |
| Open Space: | N | DFL | N |
| Historic Property: | N | Remodel Property: | N |
| Multi-Family Redevelopment: | N | | |
| Township: | 7 | Section: | 36 |
| Range: | 35 |
Location |
| Address: | 1144 SE CREEKSIDE DR WA 99324 | Mapsco: | |
| Neighborhood: | G SFR | Map ID: | |
| Neighborhood CD: | 114011 |
Owner |
| Name: | FELCH MARSHA L REVOCABLE LIVING TRUST | Owner ID: | 62126 |
| Mailing Address: | 1144 SE CREEKSIDE DR COLLEG PLACE, WA 99324 | % Ownership: | 100.0000000000% |
| | | Exemptions: | |
Taxes and Assessment Details
Values
| (+) Improvement Homesite Value: | + | $0 | |
| (+) Improvement Non-Homesite Value: | + | $413,130 | |
| (+) Land Homesite Value: | + | $0 | |
| (+) Land Non-Homesite Value: | + | $100,000 | |
| (+) Curr Use (HS): | + | $0 | $0 |
| (+) Curr Use (NHS): | + | $0 | $0 |
| | | -------------------------- | |
| (=) Market Value: | = | $513,130 | |
| (–) Productivity Loss: | – | $0 | |
| | | -------------------------- | |
| (=) Subtotal: | = | $513,130 | |
| (+) Senior Appraised Value: | + | $0 | |
| (+) Non-Senior Appraised Value: | + | $513,130 | |
| | | -------------------------- | |
| (=) Total Appraised Value: | = | $513,130 | |
| (–) Senior Exemption Loss: | – | $0 | |
| (–) Exemption Loss: | – | $0 | |
| | | -------------------------- | |
| (=) Taxable Value: | = | $513,130 | |
Taxing Jurisdiction
| Owner: | FELCH MARSHA L REVOCABLE LIVING TRUST | | |
| % Ownership: | 100.0000000000% | | |
| Total Value: | $513,130 | | |
| Tax Area: | 77 - CP-250-F |
| CERFD | CURRENT EXPENSE REFUND 010 | 0.0000000000 | $513,130 | $513,130 | $0.00 | | |
| CURREXP | CURRENT EXPENSE 010 | 1.0175366760 | $513,130 | $513,130 | $522.13 | | |
| HUMNSERV | HUMAN SERVICES 119 | 0.0250000000 | $513,130 | $513,130 | $12.83 | | |
| SLDREL | SOLDIERS RELIEF 121 | 0.0155990005 | $513,130 | $513,130 | $8.00 | | |
| COLLPLBOND | C OF CP BOND 644 | 0.4374241808 | $513,130 | $513,130 | $224.46 | | |
| COLLPLGEN | CITY OF CP 632 | 1.4453819216 | $513,130 | $513,130 | $741.67 | | |
| EMERGSER | EMS 147 | 0.3792580840 | $513,130 | $513,130 | $194.61 | | |
| EMSRFD | EMS REFUND 147 | 0.0000000000 | $513,130 | $513,130 | $0.00 | | |
| RURALLIB | RURAL LIBRARY 623 | 0.3710609029 | $513,130 | $513,130 | $190.40 | | |
| PORTRFD | PORT REFUND 640 | 0.0000000000 | $513,130 | $513,130 | $0.00 | | |
| PORTWWGEN | PORT OF WW 640 | 0.2460186015 | $513,130 | $513,130 | $126.24 | | |
| SD250BOND | SD #250 BOND 773 | 1.4560608159 | $513,130 | $513,130 | $747.15 | | |
| SD250GEN | SD #250 GENERAL 770 | 2.3880724087 | $513,130 | $513,130 | $1,225.39 | | |
| ST2 | STATE SCHOOL PART 2 600 | 0.8131451643 | $513,130 | $513,130 | $417.25 | | |
| STATESCHL | STATE SCHOOL 600 | 1.5158548041 | $513,130 | $513,130 | $777.83 | | |
| STREFUND | STATE REFUND LEVY 603 | 0.0000000000 | $513,130 | $513,130 | $0.00 | | |
| | Total Tax Rate: | 10.1104125603 | | | | | |
| | | | | Taxes w/Current Exemptions: | $5,187.96 | | |
| | | | | Taxes w/o Exemptions: | $5,187.96 | | |
Improvement / Building
| Improvement #1: | RESIDENTIAL | State Code: | 11 | 1884.0 sqft | Value: | $413,130 |
| Exterior Wall: | HARDBOARD | Heating/Cooling: | WARM & COOLED AIR | | Number of Bathrooms: | 3 | Number of Bedrooms: | 3 | | Plumbing: | 14 | Roof Covering: | COMP SHINGLE |
|
| | Type | Description | Class CD | Sub Class CD | Year Built | Area |
| | MA | Main Area | 1 | 40 | 2012 | 1884.0 |
| | SI1 | SITE IMPROVEMENT | 1 | 40 | 2012 | 3.5 |
| | ATG | Attached Garage | 1 | 40 | 2012 | 400.0 |
| | GFP | GAS FIREPLACE | 1 | 40 | 2012 | 1.0 |
| | RPC | OPEN PORCH W/ROOF , CEILED | 1 | 40 | 2012 | 114.0 |
| | RPC | OPEN PORCH W/ROOF , CEILED | 1 | 40 | 2012 | 42.0 |
Sketch
Property Image
Land
| 1 | RES 1 | Converted: Residential | 0.1356 | 5905.00 | 0.00 | 0.00 | 1.00 | $100,000 | $0 |
Roll Value History
| 2026 | N/A | N/A | N/A | N/A | N/A |
| 2025 | $359,420 | $175,000 | $0 | $534,420 | $534,420 |
| 2024 | $413,130 | $100,000 | $0 | $513,130 | $513,130 |
| 2023 | $413,130 | $100,000 | $0 | $513,130 | $513,130 |
| 2022 | $413,130 | $100,000 | $0 | $513,130 | $513,130 |
| 2021 | $306,020 | $100,000 | $0 | $406,020 | $406,020 |
| 2020 | $278,200 | $100,000 | $0 | $378,200 | $378,200 |
| 2019 | $283,200 | $95,000 | $0 | $378,200 | $378,200 |
| 2018 | $283,200 | $95,000 | $0 | $378,200 | $378,200 |
| 2017 | $293,200 | $85,000 | $0 | $378,200 | $378,200 |
| 2016 | $293,200 | $85,000 | $0 | $378,200 | $378,200 |
| 2015 | $293,200 | $85,000 | $0 | $378,200 | $378,200 |
| 2014 | $293,200 | $85,000 | $0 | $378,200 | $378,200 |
| 2013 | $289,200 | $75,000 | $0 | $364,200 | $364,200 |
| 2012 | $0 | $75,000 | $0 | $0 | $0 |
| 2011 | $0 | $4,500 | $0 | $0 | $0 |
| 2010 | $289,200 | $75,000 | $0 | $0 | $0 |
Deed and Sales History
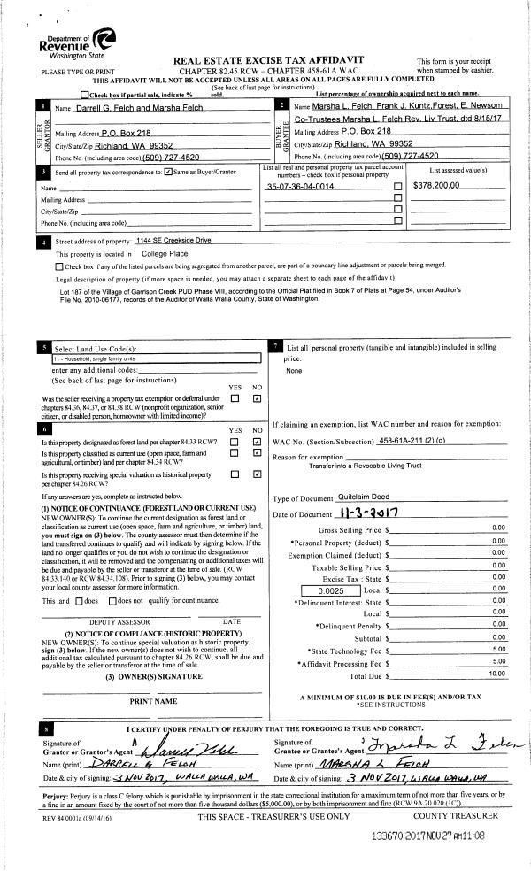
| 1 | 11/03/2017 | QCD | QUIT CLAIM DEED | FELCH DARRELL G & MARSHA | FELCH MARSHA L REVOCABLE LIVING TRUST | | | $0.00 | 133670 | 2017-09494 |
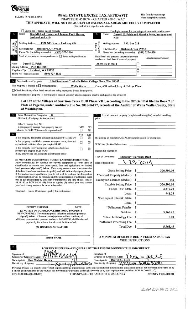
| 2 | 01/30/2014 | WARRANTY D | WARRANTY DEED | HUSSEY DON MICHAEL & JOANNA PAULI | FELCH DARRELL G & MARSHA | | | $376,500.00 | 125364 | 2014-00807 |
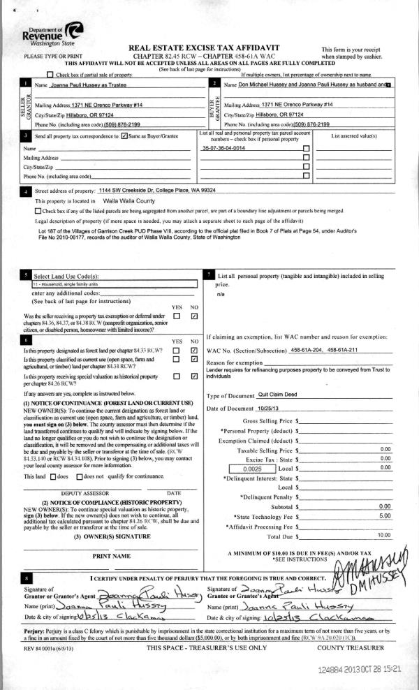
| 3 | 10/28/2013 | QCD | QUIT CLAIM DEED | HUSSEY, JOANNA PAULI TRUST | HUSSEY, DON MICHAEL & JOANNA P | | | $0.00 | 124884 | 2013-10782 |
| 4 | 05/17/2012 | QCD | QUIT CLAIM DEED | HUSSEY, JOANNA PAULI | HUSSEY, JOANNA PAULI TRUST | | | | 121831 | 2012-04022 |
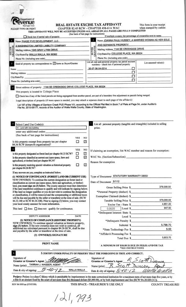
| 5 | 05/11/2012 | WARRANTY D | WARRANTY DEED | PHASE FIVE DEVELOPMENT LLC | HUSSEY, JOANNA PAULI | | | $379,000.00 | 121793 | 2012-03847 |
Payout Agreement
| No payout information available.. |