Property
Account |
| Property ID: | 36174 | Abbreviated Legal Description: | HENDERSON TAX 1 BLK 40 |
| Parcel Number: | 360729684001 | Agent Code: | |
| Type: | Real | | |
| Tax Area: | 1 - OL-140-F | Land Use Code | 11 |
| Open Space: | N | DFL | N |
| Historic Property: | N | Remodel Property: | N |
| Multi-Family Redevelopment: | N | | |
| Township: | 7 | Section: | 29 |
| Range: | 36 |
Location |
| Address: | 1017 S 4TH AVE WA 99362 | Mapsco: | |
| Neighborhood: | Fair Res | Map ID: | |
| Neighborhood CD: | 612011 |
Owner |
| Name: | LARA HUGO ESTRADA | Owner ID: | 54624 |
| Mailing Address: | 1017 S 4TH AVE WALLA WALLA, WA 99362 | % Ownership: | 100.0000000000% |
| | | Exemptions: | |
Taxes and Assessment Details
Property Tax Information as of
02/21/2026
Click on "Statement Details" to expand or collapse a tax statement.
* Please enter a valid date ** Please enter a valid date *
Statement Details |
| | TOTAL: | $0.00 | $0.00 | $0.00 | $0.00 | $0.00 | $0.00 |
|
| | $0.00 | $0.00 | $0.00 | $0.00 | $0.00 | $0.00 |
Values
| (+) Improvement Homesite Value: | + | $0 | |
| (+) Improvement Non-Homesite Value: | + | $146,620 | |
| (+) Land Homesite Value: | + | $0 | |
| (+) Land Non-Homesite Value: | + | $62,640 | |
| (+) Curr Use (HS): | + | $0 | $0 |
| (+) Curr Use (NHS): | + | $0 | $0 |
| | | -------------------------- | |
| (=) Market Value: | = | $209,260 | |
| (–) Productivity Loss: | – | $0 | |
| | | -------------------------- | |
| (=) Subtotal: | = | $209,260 | |
| (+) Senior Appraised Value: | + | $0 | |
| (+) Non-Senior Appraised Value: | + | $209,260 | |
| | | -------------------------- | |
| (=) Total Appraised Value: | = | $209,260 | |
| (–) Senior Exemption Loss: | – | $0 | |
| (–) Exemption Loss: | – | $0 | |
| | | -------------------------- | |
| (=) Taxable Value: | = | $209,260 | |
Taxing Jurisdiction
| Owner: | LARA HUGO ESTRADA | | |
| % Ownership: | 100.0000000000% | | |
| Total Value: | $209,260 | | |
| Tax Area: | 1 - OL-140-F |
| CERFD | CURRENT EXPENSE REFUND 010 | 0.0000000000 | $209,260 | $209,260 | $0.00 | | |
| CURREXP | CURRENT EXPENSE 010 | 1.0175366760 | $209,260 | $209,260 | $212.93 | | |
| HUMNSERV | HUMAN SERVICES 119 | 0.0250000000 | $209,260 | $209,260 | $5.23 | | |
| SLDREL | SOLDIERS RELIEF 121 | 0.0155990005 | $209,260 | $209,260 | $3.26 | | |
| EMERGSER | EMS 147 | 0.3792580840 | $209,260 | $209,260 | $79.36 | | |
| EMSRFD | EMS REFUND 147 | 0.0000000000 | $209,260 | $209,260 | $0.00 | | |
| PORTRFD | PORT REFUND 640 | 0.0000000000 | $209,260 | $209,260 | $0.00 | | |
| PORTWWGEN | PORT OF WW 640 | 0.2460186015 | $209,260 | $209,260 | $51.48 | | |
| SD140BOND | SD #140 BOND 764 | 0.8342371393 | $209,260 | $209,260 | $174.57 | | |
| SD140GEN | SD #140 GENERAL 760 | 2.0646500647 | $209,260 | $209,260 | $432.05 | | |
| ST2 | STATE SCHOOL PART 2 600 | 0.8131451643 | $209,260 | $209,260 | $170.16 | | |
| STATESCHL | STATE SCHOOL 600 | 1.5158548041 | $209,260 | $209,260 | $317.21 | | |
| STREFUND | STATE REFUND LEVY 603 | 0.0000000000 | $209,260 | $209,260 | $0.00 | | |
| CWWBOND | C OF WW BOND 643 | 0.2760494372 | $209,260 | $209,260 | $57.77 | | |
| CWWGEN | CITY OF WW 631 | 1.6100204973 | $209,260 | $209,260 | $336.91 | | |
| CWWRFD | CITY OF WALLA WALLA REFUND 631 | 0.0000000000 | $209,260 | $209,260 | $0.00 | | |
| | Total Tax Rate: | 8.7973694689 | | | | | |
| | | | | Taxes w/Current Exemptions: | $1,840.93 | | |
| | | | | Taxes w/o Exemptions: | $1,840.93 | | |
Improvement / Building
| Improvement #1: | RESIDENTIAL | State Code: | 11 | 744.0 sqft | Value: | $146,620 |
| Exterior Wall: | SHINGLE | Heating/Cooling: | BASEBOARD ELECTRIC | | Number of Bathrooms: | 2 | Number of Bedrooms: | 2 | | Plumbing: | 9 | Roof Covering: | COMP SHINGLE |
|
| | Type | Description | Class CD | Sub Class CD | Year Built | Area |
| | MA | Main Area | 1 | 25 | 1906 | 744.0 |
| | SI1 | SITE IMPROVEMENT | 1 | 25 | 1906 | 1.5 |
| | BASE | BASEMENT | 1 | 25 | 1906 | 432.0 |
| | BPF | BASEMENT -PARTITIONED FINISH | 1 | 25 | 1906 | 432.0 |
| | RPC | OPEN PORCH W/ROOF , CEILED | 1 | 25 | 1906 | 45.0 |
| | CPC | COVERED CARPORT/PATIO | 1 | 25 | 1906 | 192.0 |
| | DTG | Detached Garage | 1 | 25 | 1906 | 308.0 |
| | CPC | COVERED CARPORT/PATIO | 1 | 25 | 2018 | 72.0 |
| | CPCG | CARPORT/ GABLE ROOF | 1 | 25 | 2018 | 399.0 |
| | TOOL | TOOL SHED | 1 | 25 | 2018 | 120.0 |
Sketch
Property Image
Land
| 1 | RES 1 | Converted: Residential | 0.1798 | 7830.00 | 0.00 | 0.00 | 1.00 | $62,640 | $0 |
Roll Value History
| 2026 | N/A | N/A | N/A | N/A | N/A |
| 2025 | $215,170 | $78,300 | $0 | $293,470 | $293,470 |
| 2024 | $161,280 | $62,640 | $0 | $223,920 | $223,920 |
| 2023 | $146,620 | $62,640 | $0 | $209,260 | $209,260 |
| 2022 | $146,620 | $48,940 | $0 | $195,560 | $195,560 |
| 2021 | $133,290 | $48,940 | $0 | $182,230 | $182,230 |
| 2020 | $121,170 | $48,940 | $0 | $170,110 | $170,110 |
| 2019 | $121,170 | $48,940 | $0 | $170,110 | $170,110 |
| 2018 | $52,420 | $45,300 | $0 | $97,720 | $97,720 |
| 2017 | $43,680 | $45,300 | $0 | $88,980 | $88,980 |
| 2016 | $39,710 | $45,300 | $0 | $85,010 | $85,010 |
| 2015 | $39,710 | $45,300 | $0 | $85,010 | $85,010 |
| 2014 | $41,800 | $45,300 | $0 | $87,100 | $87,100 |
| 2013 | $41,800 | $45,300 | $0 | $87,100 | $87,100 |
| 2012 | $63,600 | $45,300 | $0 | $0 | $0 |
| 2011 | $63,600 | $45,300 | $0 | $0 | $0 |
| 2010 | $63,600 | $45,300 | $0 | $0 | $0 |
| 2009 | $75,700 | $45,300 | $0 | $0 | $0 |
| 2008 | $75,700 | $45,300 | $0 | $0 | $0 |
| 2007 | $51,300 | $15,700 | $0 | $0 | $0 |
Deed and Sales History
| 1 | 05/23/2024 | QCD | QUIT CLAIM DEED | AYALA IRMA | RUIZ SAUL VILLASENOR | | | | 147603 | 2024-02730 |
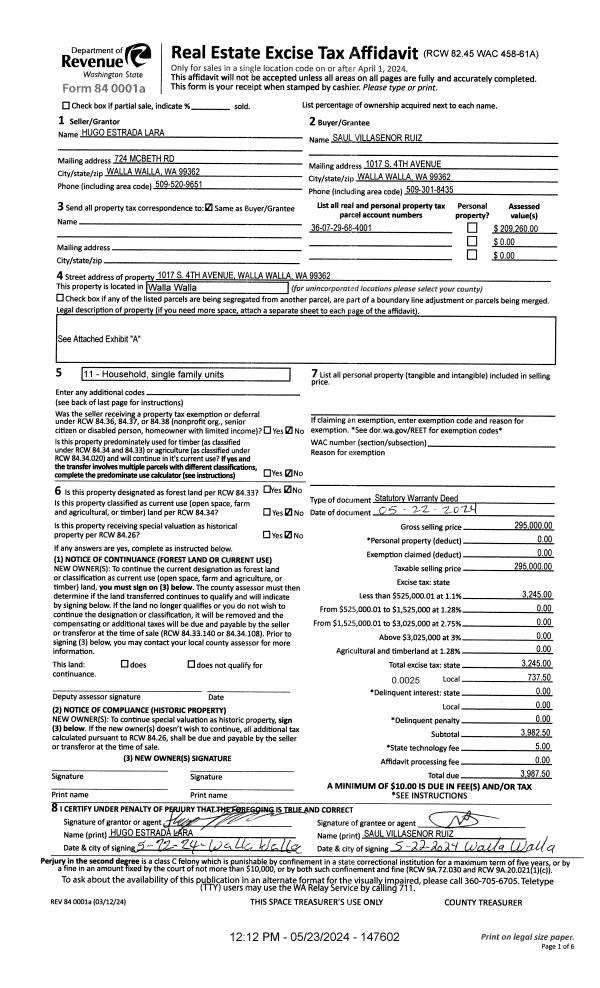
| 2 | 05/23/2024 | SWD | STATUTORY WARRANTY DEED | LARA HUGO ESTRADA | RUIZ SAUL VILLASENOR | | | $295,000.00 | 147602 | 2024-02729 |
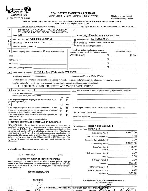
| 3 | 03/12/2014 | BARGAIN & | BARGAIN & SALE DEED | BENEFICIAL FINANCIAL INC | LARA HUGO ESTRADA | | | $63,000.00 | 125559 | 2014-01712 |
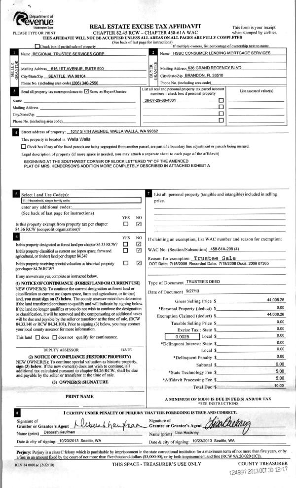
| 4 | 10/30/2013 | WARRANTY D | WARRANTY DEED | REGIONAL TRUSTEE SERVICES CORP | BENEFICIAL FINANCIAL INC | | | $44,008.00 | 124897 | 2013-10860 |
| 5 | 01/31/1990 | WARRANTY D | WARRANTY DEED | | | | | $30,000.00 | 0 | 1809-000690 |
Payout Agreement
| No payout information available.. |