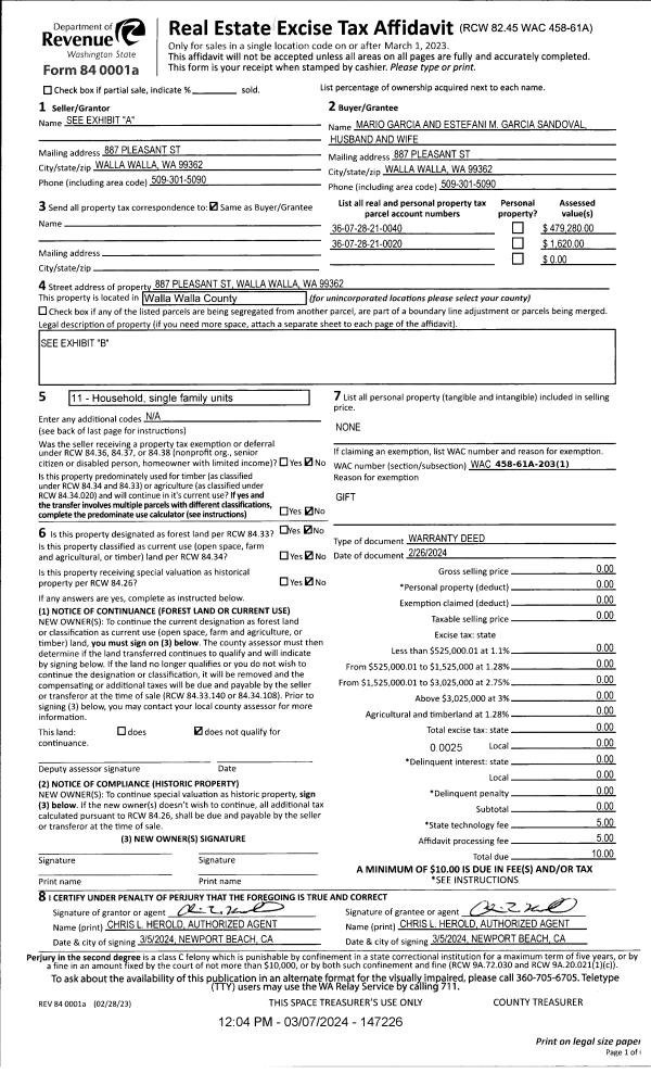
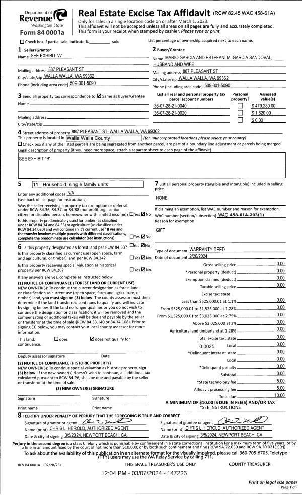
| 1 | 03/07/2024 | WARRANTY D | WARRANTY DEED | RAMIREZ MARIO GARCIA | GARCIA MARIO & ESTEFANI M GARCIA SANDOVAL | | | | 147226 | 2024-01121 |
| 2 | 04/04/2014 | WARRANTY D | WARRANTY DEED | FEDERAL HOME LOAN MORTGAGE CORP | RAMIREZ MARIO GARCIA | 2-PARCELS | | $165,000.00 | 125676 | 2014-02333 |
|   | |
| 3 | 10/31/2013 | WARRANTY D | WARRANTY DEED | REGIONAL TRUSTEE SERVICES CORP | FEDERAL HOME LOAN MORTGAGE COR | 2-PARCELS | | $243,790.00 | 124899 | 2013-10895 |
|   | |
| 4 | 04/07/2011 | QCD | QUIT CLAIM DEED | HUNTLEY, CLAUDIA LEE | HUNTLEY DANIEL LAWRENCE | | | | 119988 | 2011-02922 |
| 5 | 08/11/2003 | WARRANTY D | WARRANTY DEED | HUNTLEY CLAUDIA | HUNTLEY DAN L II & CLAUDIA L | | | | 102762 | 2003-12034 |
| 6 | 05/15/2003 | AFFIDAVIT | AFFIDAVIT | BASTRON, BARBARA LIFE EST | HUNTLEY, CLAUDIA | | | | 0 | 2003-07115 |
| 7 | 10/09/1981 | WARRANTY D | WARRANTY DEED | | | | | $70,000.00 | 0 | 1308-107704 |
|   | |