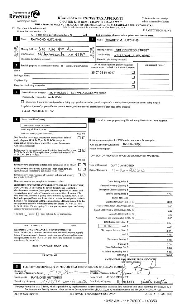
Property
Account |
| Property ID: | 3616 | Abbreviated Legal Description: | BLALOCK W1/2 LOT 2, ALL LOTS 3 & 4 BLK 9 |
| Parcel Number: | 350725510917 | Agent Code: | |
| Type: | Real | | |
| Tax Area: | 1 - OL-140-F | Land Use Code | 11 |
| Open Space: | N | DFL | N |
| Historic Property: | N | Remodel Property: | N |
| Multi-Family Redevelopment: | N | | |
| Township: | 7 | Section: | 25 |
| Range: | 35 |
Location |
| Address: | 313 PRINCESS ST WA 99362 | Mapsco: | |
| Neighborhood: | A SFR Rural/City Infl | Map ID: | |
| Neighborhood CD: | 313012 |
Owner |
| Name: | HUTCHINS CHARITY M | Owner ID: | 68305 |
| Mailing Address: | 313 PRINCESS ST WALLA WALLA, WA 99362 | % Ownership: | 100.0000000000% |
| | | Exemptions: | |
Taxes and Assessment Details
Property Tax Information as of
02/21/2026
Click on "Statement Details" to expand or collapse a tax statement.
* Please enter a valid date ** Please enter a valid date *
Statement Details |
| | TOTAL: | $0.00 | $0.00 | $0.00 | $0.00 | $0.00 | $0.00 |
|
| | $0.00 | $0.00 | $0.00 | $0.00 | $0.00 | $0.00 |
Values
| (+) Improvement Homesite Value: | + | $0 | |
| (+) Improvement Non-Homesite Value: | + | $198,620 | |
| (+) Land Homesite Value: | + | $0 | |
| (+) Land Non-Homesite Value: | + | $76,050 | |
| (+) Curr Use (HS): | + | $0 | $0 |
| (+) Curr Use (NHS): | + | $0 | $0 |
| | | -------------------------- | |
| (=) Market Value: | = | $274,670 | |
| (–) Productivity Loss: | – | $0 | |
| | | -------------------------- | |
| (=) Subtotal: | = | $274,670 | |
| (+) Senior Appraised Value: | + | $0 | |
| (+) Non-Senior Appraised Value: | + | $274,670 | |
| | | -------------------------- | |
| (=) Total Appraised Value: | = | $274,670 | |
| (–) Senior Exemption Loss: | – | $0 | |
| (–) Exemption Loss: | – | $0 | |
| | | -------------------------- | |
| (=) Taxable Value: | = | $274,670 | |
Taxing Jurisdiction
| Owner: | HUTCHINS CHARITY M | | |
| % Ownership: | 100.0000000000% | | |
| Total Value: | $274,670 | | |
| Tax Area: | 1 - OL-140-F |
| CERFD | CURRENT EXPENSE REFUND 010 | 0.0000000000 | $274,670 | $274,670 | $0.00 | | |
| CURREXP | CURRENT EXPENSE 010 | 1.0175366760 | $274,670 | $274,670 | $279.49 | | |
| HUMNSERV | HUMAN SERVICES 119 | 0.0250000000 | $274,670 | $274,670 | $6.87 | | |
| SLDREL | SOLDIERS RELIEF 121 | 0.0155990005 | $274,670 | $274,670 | $4.28 | | |
| EMERGSER | EMS 147 | 0.3792580840 | $274,670 | $274,670 | $104.17 | | |
| EMSRFD | EMS REFUND 147 | 0.0000000000 | $274,670 | $274,670 | $0.00 | | |
| PORTRFD | PORT REFUND 640 | 0.0000000000 | $274,670 | $274,670 | $0.00 | | |
| PORTWWGEN | PORT OF WW 640 | 0.2460186015 | $274,670 | $274,670 | $67.57 | | |
| SD140BOND | SD #140 BOND 764 | 0.8342371393 | $274,670 | $274,670 | $229.14 | | |
| SD140GEN | SD #140 GENERAL 760 | 2.0646500647 | $274,670 | $274,670 | $567.10 | | |
| ST2 | STATE SCHOOL PART 2 600 | 0.8131451643 | $274,670 | $274,670 | $223.35 | | |
| STATESCHL | STATE SCHOOL 600 | 1.5158548041 | $274,670 | $274,670 | $416.36 | | |
| STREFUND | STATE REFUND LEVY 603 | 0.0000000000 | $274,670 | $274,670 | $0.00 | | |
| CWWBOND | C OF WW BOND 643 | 0.2760494372 | $274,670 | $274,670 | $75.82 | | |
| CWWGEN | CITY OF WW 631 | 1.6100204973 | $274,670 | $274,670 | $442.22 | | |
| CWWRFD | CITY OF WALLA WALLA REFUND 631 | 0.0000000000 | $274,670 | $274,670 | $0.00 | | |
| | Total Tax Rate: | 8.7973694689 | | | | | |
| | | | | Taxes w/Current Exemptions: | $2,416.37 | | |
| | | | | Taxes w/o Exemptions: | $2,416.37 | | |
Improvement / Building
| Improvement #1: | RESIDENTIAL | State Code: | 11 | 2304.0 sqft | Value: | $198,620 |
| Exterior Wall: | HARDBOARD | Heating/Cooling: | WARM & COOLED AIR | | Number of Bathrooms: | 1 | Number of Bedrooms: | 2 | | Plumbing: | 9 | Roof Covering: | COMP SHINGLE |
|
| | Type | Description | Class CD | Sub Class CD | Year Built | Area |
| | MA | Main Area | 1 | 20 | 1948 | 2304.0 |
| | POL1 | POLE BUILDING-GRAVEL | 1 | 20 | 0 | 900.0 |
| | SI1 | SITE IMPROVEMENT | 1 | 20 | 1948 | 1.0 |
| | RPO | OPEN PORCH W/ROOF | 1 | 20 | 1948 | 25.0 |
| | UTST | Utility Storage Shed | 1 | 20 | 1948 | 168.0 |
Sketch
Property Image
Land
| 1 | RES 1 | Converted: Residential | 0.3444 | 15000.00 | 0.00 | 0.00 | 1.00 | $76,050 | $0 |
Roll Value History
| 2026 | N/A | N/A | N/A | N/A | N/A |
| 2025 | $198,620 | $76,050 | $0 | $274,670 | $274,670 |
| 2024 | $198,620 | $76,050 | $0 | $274,670 | $274,670 |
| 2023 | $198,620 | $76,050 | $0 | $274,670 | $274,670 |
| 2022 | $141,870 | $76,050 | $0 | $217,920 | $217,920 |
| 2021 | $167,960 | $28,200 | $0 | $196,160 | $196,160 |
| 2020 | $159,960 | $28,200 | $0 | $188,160 | $188,160 |
| 2019 | $159,960 | $28,200 | $0 | $188,160 | $188,160 |
| 2018 | $133,300 | $28,200 | $0 | $161,500 | $161,500 |
| 2017 | $126,950 | $28,200 | $0 | $155,150 | $155,150 |
| 2016 | $126,950 | $28,200 | $0 | $155,150 | $155,150 |
| 2015 | $128,600 | $28,200 | $0 | $156,800 | $156,800 |
| 2014 | $128,600 | $28,200 | $0 | $156,800 | $156,800 |
| 2013 | $128,600 | $28,200 | $0 | $156,800 | $156,800 |
| 2012 | $128,600 | $28,200 | $0 | $0 | $0 |
| 2011 | $128,600 | $28,200 | $0 | $0 | $0 |
| 2010 | $93,600 | $28,200 | $0 | $0 | $0 |
| 2009 | $99,000 | $29,200 | $0 | $0 | $0 |
| 2008 | $69,400 | $29,200 | $0 | $0 | $0 |
| 2007 | $69,400 | $29,200 | $0 | $0 | $0 |
Deed and Sales History
| 1 | 11/17/2020 | QCD | QUIT CLAIM DEED | HUTCHINS RAYMOND W & CHARITY | HUTCHINS CHARITY M | | | | 140353 | 2020-12134 |
Payout Agreement
| No payout information available.. |