| 1 | 03/25/2022 | QCD | QUIT CLAIM DEED | TRETHEWEY RISHA & MICHAEL | OPP RISHA | | | $0.00 | 143679 | 2022-02693 |
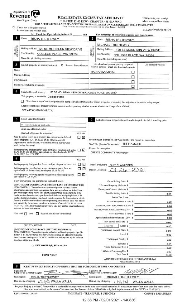
| 2 | 01/26/2021 | QCD | QUIT CLAIM DEED | OPP RISHA | TRETHEWEY RISHA & MICHAEL | | | $0.00 | 140836 | 2021-01219 |
| 3 | 12/19/2013 | WARRANTY D | WARRANTY DEED | UPPER COLUMBIA CORP SDA | OPP RISHA | | | $166,900.00 | 125145 | 2013-12114 |
| 4 | 05/04/2012 | WARRANTY D | WARRANTY DEED | CHRISTENSEN, JOHN E | UPPER COLUMBIA CORP SDA | | | | 121792 | 2012-03638 |
| 5 | 08/08/2011 | QCD | QUIT CLAIM DEED | CHRISTENSEN, JOHN E | CHRISTENSEN, JOHN E | | | | 120514 | 2011-06185 |
| 6 | 07/28/2011 | QCD | QUIT CLAIM DEED | UPPER COLUMBIA CORP OF SDA TRU | CHRISTENSEN, JOHN E | | | | 120469 | 2011-05847 |
| 7 | 04/17/2009 | WARRANTY D | WARRANTY DEED | CHRISTENSEN, JOHN E | UPPER COLUMBIA CORP OF SDA TRU | | | | 116624 | 2009-03817 |
| 8 | 09/12/2006 | WARRANTY D | WARRANTY DEED | PRINCE, TRAVIS J & LONI R | CHRISTENSEN, JOHN E | | | $185,000.00 | 111182 | 2006-10974 |
| 9 | 12/03/2004 | WARRANTY D | WARRANTY DEED | LILLY, JACKIE L & PATRICIA J | PRINCE, TRAVIS J & LONI R | | | $151,500.00 | 106329 | 2004-13904 |
| 10 | 09/07/2000 | WARRANTY D | WARRANTY DEED | | | | | $105,500.00 | 95768 | 3020-008518 |