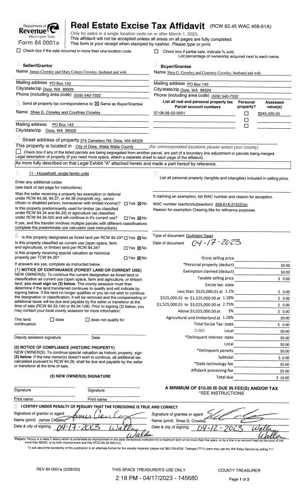
Property
Account |
| Property ID: | 36150 | Abbreviated Legal Description: | SHAW'S DIXIELAND PARCEL 1 |
| Parcel Number: | 370826520001 | Agent Code: | |
| Type: | Real | | |
| Tax Area: | 310 - 101-8 | Land Use Code | 11 |
| Open Space: | N | DFL | N |
| Historic Property: | N | Remodel Property: | N |
| Multi-Family Redevelopment: | N | | |
| Township: | 8 | Section: | 26 |
| Range: | 37 |
Location |
| Address: | 374 CEMETERY RD WA 99329 | Mapsco: | |
| Neighborhood: | A Dixie MH | Map ID: | |
| Neighborhood CD: | 413561 |
Owner |
| Name: | CROWLEY SHEA G & COURTNEY | Owner ID: | 73478 |
| Mailing Address: | PO BOX 143 DIXIE, WA 99329 | % Ownership: | 100.0000000000% |
| | | Exemptions: | |
Taxes and Assessment Details
Values
| (+) Improvement Homesite Value: | + | $246,730 | |
| (+) Improvement Non-Homesite Value: | + | $0 | |
| (+) Land Homesite Value: | + | $0 | |
| (+) Land Non-Homesite Value: | + | $65,000 | |
| (+) Curr Use (HS): | + | $0 | $0 |
| (+) Curr Use (NHS): | + | $0 | $0 |
| | | -------------------------- | |
| (=) Market Value: | = | $311,730 | |
| (–) Productivity Loss: | – | $0 | |
| | | -------------------------- | |
| (=) Subtotal: | = | $311,730 | |
| (+) Senior Appraised Value: | + | $0 | |
| (+) Non-Senior Appraised Value: | + | $311,730 | |
| | | -------------------------- | |
| (=) Total Appraised Value: | = | $311,730 | |
| (–) Senior Exemption Loss: | – | $0 | |
| (–) Exemption Loss: | – | $0 | |
| | | -------------------------- | |
| (=) Taxable Value: | = | $311,730 | |
Taxing Jurisdiction
| Owner: | CROWLEY SHEA G & COURTNEY | | |
| % Ownership: | 100.0000000000% | | |
| Total Value: | $311,730 | | |
| Tax Area: | 310 - 101-8 |
| CERFD | CURRENT EXPENSE REFUND 010 | 0.0000000000 | $311,730 | $311,730 | $0.00 | | |
| CURREXP | CURRENT EXPENSE 010 | 1.0175366760 | $311,730 | $311,730 | $317.20 | | |
| HUMNSERV | HUMAN SERVICES 119 | 0.0250000000 | $311,730 | $311,730 | $7.79 | | |
| SLDREL | SOLDIERS RELIEF 121 | 0.0155990005 | $311,730 | $311,730 | $4.86 | | |
| EMERGSER | EMS 147 | 0.3792580840 | $311,730 | $311,730 | $118.23 | | |
| EMSRFD | EMS REFUND 147 | 0.0000000000 | $311,730 | $311,730 | $0.00 | | |
| FD8EXP | FD #8 EXPENSE 697 | 0.6647992540 | $311,730 | $311,730 | $207.24 | | |
| RLBRFD | RURAL LIBRARY REFUND 623 | 0.0000000000 | $311,730 | $311,730 | $0.00 | | |
| RURALLIB | RURAL LIBRARY 623 | 0.3710609029 | $311,730 | $311,730 | $115.67 | | |
| PORTRFD | PORT REFUND 640 | 0.0000000000 | $311,730 | $311,730 | $0.00 | | |
| PORTWWGEN | PORT OF WW 640 | 0.2460186015 | $311,730 | $311,730 | $76.69 | | |
| SD101CAP | SD #101 CAP 752 | 0.5894423472 | $311,730 | $311,730 | $183.75 | | |
| SD101GEN | SD #101 GENERAL 750 | 0.7455117868 | $311,730 | $311,730 | $232.40 | | |
| ST2 | STATE SCHOOL PART 2 600 | 0.8131451643 | $311,730 | $311,730 | $253.48 | | |
| STATESCHL | STATE SCHOOL 600 | 1.5158548041 | $311,730 | $311,730 | $472.54 | | |
| STREFUND | STATE REFUND LEVY 603 | 0.0000000000 | $311,730 | $311,730 | $0.00 | | |
| COROAD | COUNTY ROAD 115 | 1.6549953990 | $311,730 | $311,730 | $515.91 | | |
| CRPRD | COUNTY ROAD REFUND 115 | 0.0000000000 | $311,730 | $311,730 | $0.00 | | |
| | Total Tax Rate: | 8.0382220203 | | | | | |
| | | | | Taxes w/Current Exemptions: | $2,505.76 | | |
| | | | | Taxes w/o Exemptions: | $2,505.76 | | |
Improvement / Building
| Improvement #1: | MANUFACTURED HOME | State Code: | 11 | 2100.0 sqft | Value: | $246,730 |
| Exterior Wall: | HARDBOARD | Heating/Cooling: | WARM & COOLED AIR | | Number of Bathrooms: | 2 | Number of Bedrooms: | 3 | | Plumbing: | 11 | Roof Covering: | COMP SHINGLE |
|
| | Type | Description | Class CD | Sub Class CD | Year Built | Area |
| | MOBHOME | MANUFACTURD HOMES | 1 | 40 | 2020 | 2100.0 |
| | MI1 | MH SET-UP COSTS | 1 | 40 | 2020 | 1.0 |
| | FOUND | FOUNDATION | 1 | 40 | 2020 | 1.0 |
Sketch
Property Image
Land
| 1 | RES 1 | Converted: Residential | 1.0000 | 43560.00 | 0.00 | 0.00 | 1.00 | $65,000 | $0 |
Roll Value History
| 2026 | N/A | N/A | N/A | N/A | N/A |
| 2025 | $308,410 | $65,000 | $0 | $373,410 | $373,410 |
| 2024 | $246,730 | $65,000 | $0 | $311,730 | $311,730 |
| 2023 | $246,730 | $65,000 | $0 | $311,730 | $311,730 |
| 2022 | $245,450 | $39,100 | $0 | $284,550 | $284,550 |
| 2021 | $0 | $39,100 | $0 | $39,100 | $39,100 |
| 2020 | $0 | $39,100 | $0 | $39,100 | $39,100 |
| 2019 | $0 | $39,100 | $0 | $39,100 | $39,100 |
| 2018 | $0 | $39,100 | $0 | $39,100 | $39,100 |
| 2017 | $0 | $39,100 | $0 | $39,100 | $39,100 |
| 2016 | $0 | $39,100 | $0 | $39,100 | $39,100 |
| 2015 | $0 | $39,100 | $0 | $39,100 | $39,100 |
| 2014 | $0 | $39,100 | $0 | $39,100 | $39,100 |
| 2013 | $0 | $39,100 | $0 | $39,100 | $39,100 |
| 2012 | $0 | $39,100 | $0 | $0 | $0 |
| 2011 | $0 | $39,100 | $0 | $0 | $0 |
| 2010 | $0 | $39,100 | $0 | $0 | $0 |
| 2009 | $0 | $21,900 | $0 | $0 | $0 |
| 2008 | $49,100 | $21,900 | $0 | $0 | $0 |
| 2007 | $49,100 | $21,900 | $0 | $0 | $0 |
Deed and Sales History
| 1 | 04/17/2023 | QCD | QUIT CLAIM DEED | CROWLEY JAMES & MARY COLEEN | CROWLEY SHEA G & COURTNEY | | | $0.00 | 145680 | 2023-02019 |
| 2 | 08/02/2019 | SWD | STATUTORY WARRANTY DEED | WILSON MITCHELL B & DEBORAH | CROWLEY JAMES & MARY COLEEN | | | $65,000.00 | 137417 | 2019-05728 |
| 3 | 09/11/2013 | WARRANTY D | WARRANTY DEED | GEHLHAUSEN, STEVE L | WILSON, MITCHELL B & DEBORAH | | | $38,500.00 | 124639 | 2013-09349 |
| 4 | 04/22/2005 | WARRANTY D | WARRANTY DEED | ROYSE, JERRY P & REBECCA A | GEHLHAUSEN, STEVE L | | | $95,000.00 | 107303 | 2005-04605 |
| 5 | 06/23/1993 | WARRANTY D | WARRANTY DEED | | | | | $18,800.00 | 79371 | 2089-306329 |
Payout Agreement
| No payout information available.. |