Property
Account |
| Property ID: | 36149 | Abbreviated Legal Description: | 7-6-36 LOT 3-C OF SHORT PLAT (PTNS TAX 2 & 10 IN SE1/4SW1/4 ANDSW1/4SE1/4) |
| Parcel Number: | 360607340002 | Agent Code: | |
| Type: | Real | | |
| Tax Area: | 101 - 140-4 | Land Use Code | 11 |
| Open Space: | N | DFL | N |
| Historic Property: | N | Remodel Property: | N |
| Multi-Family Redevelopment: | N | | |
| Township: | 6 | Section: | 7 |
| Range: | 36 |
Location |
| Address: | 397 HELAMAN RD WA 99362 | Mapsco: | |
| Neighborhood: | CYCLE 4 EXCELLENT (A) | Map ID: | |
| Neighborhood CD: | 416012 |
Owner |
| Name: | PENSIERO JAMES LORENZO | Owner ID: | 66006 |
| Mailing Address: | JENNY PENSIERO 361 HELAMAN ROAD WALLA WALLA, WA 99362 | % Ownership: | 100.0000000000% |
| | | Exemptions: | |
Taxes and Assessment Details
Property Tax Information as of
02/21/2026
Click on "Statement Details" to expand or collapse a tax statement.
* Please enter a valid date ** Please enter a valid date *
Statement Details |
| | TOTAL: | $0.00 | $0.00 | $0.00 | $0.00 | $0.00 | $0.00 |
|
| | $0.00 | $0.00 | $0.00 | $0.00 | $0.00 | $0.00 |
Values
| (+) Improvement Homesite Value: | + | $0 | |
| (+) Improvement Non-Homesite Value: | + | $1,730,520 | |
| (+) Land Homesite Value: | + | $0 | |
| (+) Land Non-Homesite Value: | + | $274,310 | |
| (+) Curr Use (HS): | + | $0 | $0 |
| (+) Curr Use (NHS): | + | $0 | $0 |
| | | -------------------------- | |
| (=) Market Value: | = | $2,004,830 | |
| (–) Productivity Loss: | – | $0 | |
| | | -------------------------- | |
| (=) Subtotal: | = | $2,004,830 | |
| (+) Senior Appraised Value: | + | $0 | |
| (+) Non-Senior Appraised Value: | + | $2,004,830 | |
| | | -------------------------- | |
| (=) Total Appraised Value: | = | $2,004,830 | |
| (–) Senior Exemption Loss: | – | $0 | |
| (–) Exemption Loss: | – | $0 | |
| | | -------------------------- | |
| (=) Taxable Value: | = | $2,004,830 | |
Taxing Jurisdiction
| Owner: | PENSIERO JAMES LORENZO | | |
| % Ownership: | 100.0000000000% | | |
| Total Value: | $2,004,830 | | |
| Tax Area: | 101 - 140-4 |
| CERFD | CURRENT EXPENSE REFUND 010 | 0.0000000000 | $2,004,830 | $2,004,830 | $0.00 | | |
| CURREXP | CURRENT EXPENSE 010 | 1.0175366760 | $2,004,830 | $2,004,830 | $2,039.99 | | |
| HUMNSERV | HUMAN SERVICES 119 | 0.0250000000 | $2,004,830 | $2,004,830 | $50.12 | | |
| SLDREL | SOLDIERS RELIEF 121 | 0.0155990005 | $2,004,830 | $2,004,830 | $31.27 | | |
| EMERGSER | EMS 147 | 0.3792580840 | $2,004,830 | $2,004,830 | $760.35 | | |
| EMSRFD | EMS REFUND 147 | 0.0000000000 | $2,004,830 | $2,004,830 | $0.00 | | |
| FD4EXP | FD #4 EXPENSE 686 | 0.8836993059 | $2,004,830 | $2,004,830 | $1,771.67 | | |
| RLBRFD | RURAL LIBRARY REFUND 623 | 0.0000000000 | $2,004,830 | $2,004,830 | $0.00 | | |
| RURALLIB | RURAL LIBRARY 623 | 0.3710609029 | $2,004,830 | $2,004,830 | $743.91 | | |
| PORTRFD | PORT REFUND 640 | 0.0000000000 | $2,004,830 | $2,004,830 | $0.00 | | |
| PORTWWGEN | PORT OF WW 640 | 0.2460186015 | $2,004,830 | $2,004,830 | $493.23 | | |
| SD140BOND | SD #140 BOND 764 | 0.8342371393 | $2,004,830 | $2,004,830 | $1,672.50 | | |
| SD140GEN | SD #140 GENERAL 760 | 2.0646500647 | $2,004,830 | $2,004,830 | $4,139.27 | | |
| ST2 | STATE SCHOOL PART 2 600 | 0.8131451643 | $2,004,830 | $2,004,830 | $1,630.22 | | |
| STATESCHL | STATE SCHOOL 600 | 1.5158548041 | $2,004,830 | $2,004,830 | $3,039.03 | | |
| STREFUND | STATE REFUND LEVY 603 | 0.0000000000 | $2,004,830 | $2,004,830 | $0.00 | | |
| COROAD | COUNTY ROAD 115 | 1.6549953990 | $2,004,830 | $2,004,830 | $3,317.98 | | |
| CRPRD | COUNTY ROAD REFUND 115 | 0.0000000000 | $2,004,830 | $2,004,830 | $0.00 | | |
| | Total Tax Rate: | 9.8210551422 | | | | | |
| | | | | Taxes w/Current Exemptions: | $19,689.54 | | |
| | | | | Taxes w/o Exemptions: | $19,689.54 | | |
Improvement / Building
| Improvement #1: | RESIDENTIAL | State Code: | 11 | 4496.0 sqft | Value: | $1,730,520 |
| Exterior Wall: | STUCCO | Heating/Cooling: | HEAT PUMP | | Number of Bathrooms: | 4.5 | Number of Bedrooms: | 5 | | Plumbing: | 20 | Roof Covering: | COMP SHINGLE |
|
| | Type | Description | Class CD | Sub Class CD | Year Built | Area |
| | MA | Main Area | 1 | 60 | 2014 | 4496.0 |
| | ATG | Attached Garage | 1 | 60 | 2014 | 1380.0 |
| | DTG | Detached Garage | 1 | 60 | 2014 | 334.0 |
| | SI1 | SITE IMPROVEMENT | 1 | 60 | 2014 | 10.0 |
| | BONU | BONUS ROOM W/FINISH | 1 | 60 | 2014 | 978.0 |
| | RPC | OPEN PORCH W/ROOF , CEILED | 1 | 60 | 2014 | 506.0 |
| | BRW | BREEZEWAY | 1 | 60 | 2014 | 218.0 |
| | RPO | OPEN PORCH W/ROOF | 1 | 60 | 2014 | 48.0 |
| | SMP | SWIMMING POOL | 1 | 60 | 2014 | 1.0 |
| | TENN | TENNIS COURT | 1 | 60 | 2014 | 1.0 |
| | DTG | Detached Garage | 1 | 60 | 2014 | 384.0 |
| | DTG | Detached Garage | 1 | 60 | 2014 | 2880.0 |
| | BON4 | BONUS RM DET/REC OR APT FINISH | 1 | 60 | 2014 | 2880.0 |
| | FIXT | AVERAGE FIXTURE | 1 | 60 | 2014 | 5.0 |
| | SOLR | SOLAR POWER PANELS | 1 | 60 | 2014 | 60.0 |
Sketch
Property Image
Land
| 1 | RES 1 | Converted: Residential | 10.5700 | 0.00 | 0.00 | 0.00 | 1.00 | $274,310 | $0 |
Roll Value History
| 2026 | N/A | N/A | N/A | N/A | N/A |
| 2025 | $1,817,050 | $274,310 | $0 | $2,091,360 | $2,091,360 |
| 2024 | $1,730,520 | $274,310 | $0 | $2,004,830 | $2,004,830 |
| 2023 | $1,730,520 | $274,310 | $0 | $2,004,830 | $2,004,830 |
| 2022 | $1,504,800 | $131,000 | $0 | $1,635,800 | $1,635,800 |
| 2021 | $1,504,800 | $131,000 | $0 | $1,635,800 | $1,635,800 |
| 2020 | $1,504,800 | $131,000 | $0 | $1,635,800 | $1,635,800 |
| 2019 | $1,015,400 | $131,000 | $0 | $1,146,400 | $1,146,400 |
| 2018 | $1,015,400 | $131,000 | $0 | $1,146,400 | $1,146,400 |
| 2017 | $1,015,400 | $131,000 | $0 | $1,146,400 | $1,146,400 |
| 2016 | $1,015,400 | $131,000 | $0 | $1,146,400 | $1,146,400 |
| 2015 | $1,015,400 | $131,000 | $0 | $1,146,400 | $1,146,400 |
| 2014 | $414,500 | $131,000 | $0 | $545,500 | $545,500 |
| 2013 | $0 | $131,000 | $0 | $131,000 | $131,000 |
| 2012 | $0 | $131,000 | $0 | $0 | $0 |
| 2011 | $0 | $131,000 | $0 | $0 | $0 |
| 2010 | $0 | $131,000 | $0 | $0 | $0 |
| 2009 | $0 | $131,000 | $0 | $0 | $0 |
| 2008 | $0 | $63,400 | $0 | $0 | $0 |
| 2007 | $0 | $11,700 | $0 | $0 | $0 |
Deed and Sales History
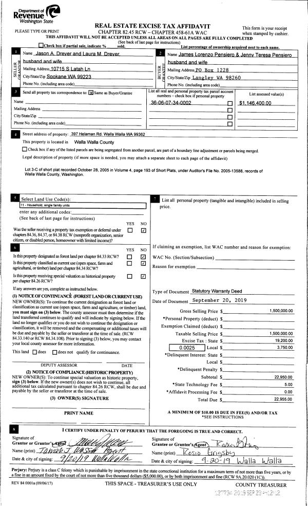
| 1 | 09/23/2019 | SWD | STATUTORY WARRANTY DEED | DREYER JASON A & LAURA M | PENSIERO JAMES LORENZO | | | $1,500,000.00 | 137734 | 2019-07514 |
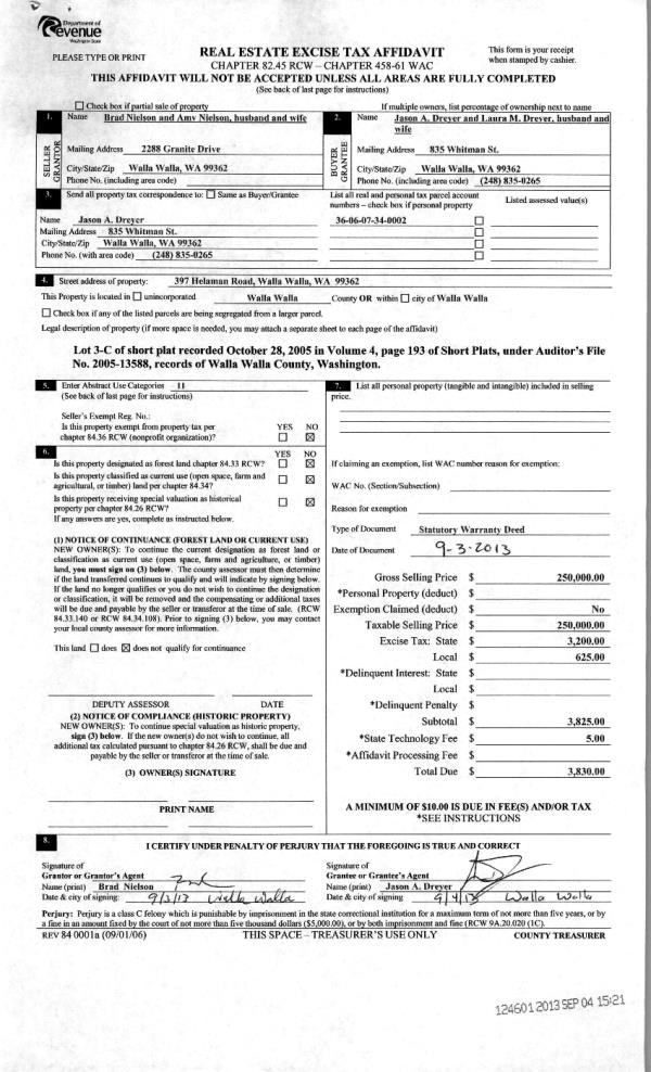
| 2 | 09/04/2013 | WARRANTY D | WARRANTY DEED | NIELSON, BRAD & AMY | DREYER, JASON A & LAURA M | | | $250,000.00 | 124601 | 2013-09135 |
| 3 | 08/06/2007 | WARRANTY D | WARRANTY DEED | GILBERT, MARK W & SUSAN G | NIELSON, BRAD & AMY | | | $190,000.00 | 113456 | 2007-09151 |
Payout Agreement
| No payout information available.. |