Property
Account |
| Property ID: | 36141 | Abbreviated Legal Description: | MILBROOKE PARK LOT 5 BLK 4 S OF ALLEY |
| Parcel Number: | 360721650405 | Agent Code: | |
| Type: | Real | | |
| Tax Area: | 1 - OL-140-F | Land Use Code | 11 |
| Open Space: | N | DFL | N |
| Historic Property: | N | Remodel Property: | N |
| Multi-Family Redevelopment: | N | | |
| Township: | 7 | Section: | 21 |
| Range: | 36 |
Location |
| Address: | 172 BOYER DR WA 99362 | Mapsco: | |
| Neighborhood: | A-Superior SFR | Map ID: | |
| Neighborhood CD: | 513211 |
Owner |
| Name: | CONRAD BIBY J | Owner ID: | 58489 |
| Mailing Address: | 172 BOYER DR WALLA WALLA, WA 99362 | % Ownership: | 100.0000000000% |
| | | Exemptions: | |
Taxes and Assessment Details
Values
| (+) Improvement Homesite Value: | + | $0 | |
| (+) Improvement Non-Homesite Value: | + | $295,120 | |
| (+) Land Homesite Value: | + | $0 | |
| (+) Land Non-Homesite Value: | + | $38,250 | |
| (+) Curr Use (HS): | + | $0 | $0 |
| (+) Curr Use (NHS): | + | $0 | $0 |
| | | -------------------------- | |
| (=) Market Value: | = | $333,370 | |
| (–) Productivity Loss: | – | $0 | |
| | | -------------------------- | |
| (=) Subtotal: | = | $333,370 | |
| (+) Senior Appraised Value: | + | $0 | |
| (+) Non-Senior Appraised Value: | + | $333,370 | |
| | | -------------------------- | |
| (=) Total Appraised Value: | = | $333,370 | |
| (–) Senior Exemption Loss: | – | $0 | |
| (–) Exemption Loss: | – | $0 | |
| | | -------------------------- | |
| (=) Taxable Value: | = | $333,370 | |
Taxing Jurisdiction
| Owner: | CONRAD BIBY J | | |
| % Ownership: | 100.0000000000% | | |
| Total Value: | $333,370 | | |
| Tax Area: | 1 - OL-140-F |
| CERFD | CURRENT EXPENSE REFUND 010 | 0.0000000000 | $333,370 | $333,370 | $0.00 | | |
| CURREXP | CURRENT EXPENSE 010 | 1.0175366760 | $333,370 | $333,370 | $339.22 | | |
| HUMNSERV | HUMAN SERVICES 119 | 0.0250000000 | $333,370 | $333,370 | $8.33 | | |
| SLDREL | SOLDIERS RELIEF 121 | 0.0155990005 | $333,370 | $333,370 | $5.20 | | |
| EMERGSER | EMS 147 | 0.3792580840 | $333,370 | $333,370 | $126.43 | | |
| EMSRFD | EMS REFUND 147 | 0.0000000000 | $333,370 | $333,370 | $0.00 | | |
| PORTRFD | PORT REFUND 640 | 0.0000000000 | $333,370 | $333,370 | $0.00 | | |
| PORTWWGEN | PORT OF WW 640 | 0.2460186015 | $333,370 | $333,370 | $82.02 | | |
| SD140BOND | SD #140 BOND 764 | 0.8342371393 | $333,370 | $333,370 | $278.11 | | |
| SD140GEN | SD #140 GENERAL 760 | 2.0646500647 | $333,370 | $333,370 | $688.29 | | |
| ST2 | STATE SCHOOL PART 2 600 | 0.8131451643 | $333,370 | $333,370 | $271.08 | | |
| STATESCHL | STATE SCHOOL 600 | 1.5158548041 | $333,370 | $333,370 | $505.34 | | |
| STREFUND | STATE REFUND LEVY 603 | 0.0000000000 | $333,370 | $333,370 | $0.00 | | |
| CWWBOND | C OF WW BOND 643 | 0.2760494372 | $333,370 | $333,370 | $92.03 | | |
| CWWGEN | CITY OF WW 631 | 1.6100204973 | $333,370 | $333,370 | $536.73 | | |
| CWWRFD | CITY OF WALLA WALLA REFUND 631 | 0.0000000000 | $333,370 | $333,370 | $0.00 | | |
| | Total Tax Rate: | 8.7973694689 | | | | | |
| | | | | Taxes w/Current Exemptions: | $2,932.78 | | |
| | | | | Taxes w/o Exemptions: | $2,932.78 | | |
Improvement / Building
| Improvement #1: | RESIDENTIAL | State Code: | 11 | 1028.0 sqft | Value: | $295,120 |
| Exterior Wall: | SIDING | Heating/Cooling: | FORCED AIR | | Number of Bathrooms: | 1 | Number of Bedrooms: | 3 | | Plumbing: | 6 | Roof Covering: | COMP SHINGLE |
|
| | Type | Description | Class CD | Sub Class CD | Year Built | Area |
| | MA | Main Area | 1 | 30 | 1950 | 1028.0 |
| | SI1 | SITE IMPROVEMENT | 1 | 30 | 1950 | 1.5 |
| | BASE | BASEMENT | 1 | 30 | 1950 | 1028.0 |
| | BPF | BASEMENT -PARTITIONED FINISH | 1 | 30 | 1950 | 341.0 |
| | RPS | PORCH W/STEPS,ROOF | 1 | 30 | 1950 | 30.0 |
| | WOD | Wood Deck | 1 | 30 | 1950 | 168.0 |
| | SOLR | SOLAR POWER PANELS | 1 | 30 | 1950 | 21.0 |
Sketch
Property Image
Land
| 1 | RES 1 | Converted: Residential | 0.1405 | 6120.00 | 0.00 | 0.00 | 1.00 | $38,250 | $0 |
Roll Value History
| 2026 | N/A | N/A | N/A | N/A | N/A |
| 2025 | $284,540 | $61,200 | $0 | $345,740 | $345,740 |
| 2024 | $258,670 | $61,200 | $0 | $319,870 | $319,870 |
| 2023 | $295,120 | $38,250 | $0 | $333,370 | $333,370 |
| 2022 | $281,070 | $38,250 | $0 | $319,320 | $319,320 |
| 2021 | $208,200 | $38,250 | $0 | $246,450 | $246,450 |
| 2020 | $138,800 | $38,250 | $0 | $177,050 | $177,050 |
| 2019 | $138,800 | $38,250 | $0 | $177,050 | $177,050 |
| 2018 | $138,800 | $38,250 | $0 | $177,050 | $177,050 |
| 2017 | $143,260 | $24,500 | $0 | $167,760 | $167,760 |
| 2016 | $119,390 | $24,500 | $0 | $143,890 | $143,890 |
| 2015 | $119,390 | $24,500 | $0 | $143,890 | $143,890 |
| 2014 | $113,700 | $24,500 | $0 | $138,200 | $138,200 |
| 2013 | $113,700 | $24,500 | $0 | $138,200 | $138,200 |
| 2012 | $116,900 | $24,500 | $0 | $0 | $0 |
| 2011 | $110,200 | $24,500 | $0 | $0 | $0 |
| 2010 | $103,800 | $24,500 | $0 | $0 | $0 |
| 2009 | $118,000 | $24,500 | $0 | $0 | $0 |
| 2008 | $111,200 | $24,500 | $0 | $0 | $0 |
| 2007 | $111,200 | $24,500 | $0 | $0 | $0 |
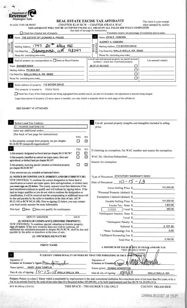
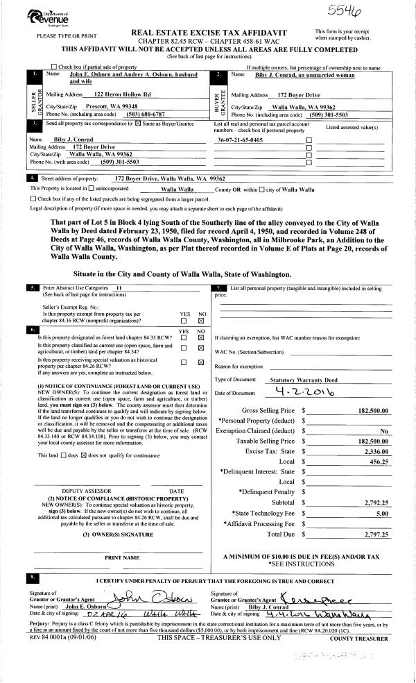
Deed and Sales History
| 1 | 04/05/2016 | SWD | STATUTORY WARRANTY DEED | OSBORN JOHN E & AUDREY A | CONRAD BIBY J | | | $182,500.00 | 129958 | 2016-02489 |
| 2 | 10/18/2013 | WARRANTY D | WARRANTY DEED | PRUSS, LEONARD A ESTATE OF | OSBORN, JOHN F & AUDREY A | | | $141,000.00 | 124846 | 2013-10498 |
| 3 | 01/01/1963 | WARRANTY D | WARRANTY DEED | | | | | $14,500.00 | 0 | 2990-434117 |
Payout Agreement
| No payout information available.. |