Property
Account |
| Property ID: | 36130 | Abbreviated Legal Description: | SHEILS 2ND LOT 42 BLK 21 |
| Parcel Number: | 360720742142 | Agent Code: | |
| Type: | Real | | |
| Tax Area: | 1 - OL-140-F | Land Use Code | 11 |
| Open Space: | N | DFL | N |
| Historic Property: | N | Remodel Property: | N |
| Multi-Family Redevelopment: | N | | |
| Township: | 7 | Section: | 20 |
| Range: | 36 |
Location |
| Address: | 930 BURNS ST WA 99362 | Mapsco: | |
| Neighborhood: | A-SFR | Map ID: | |
| Neighborhood CD: | 313011 |
Owner |
| Name: | BRIDGES BILLIE J | Owner ID: | 6883 |
| Mailing Address: | 602 W 19TH AVE KENNEWICK, WA 99337 | % Ownership: | 100.0000000000% |
| | | Exemptions: | |
Taxes and Assessment Details
Values
| (+) Improvement Homesite Value: | + | $0 | |
| (+) Improvement Non-Homesite Value: | + | $50,430 | |
| (+) Land Homesite Value: | + | $0 | |
| (+) Land Non-Homesite Value: | + | $41,250 | |
| (+) Curr Use (HS): | + | $0 | $0 |
| (+) Curr Use (NHS): | + | $0 | $0 |
| | | -------------------------- | |
| (=) Market Value: | = | $91,680 | |
| (–) Productivity Loss: | – | $0 | |
| | | -------------------------- | |
| (=) Subtotal: | = | $91,680 | |
| (+) Senior Appraised Value: | + | $0 | |
| (+) Non-Senior Appraised Value: | + | $91,680 | |
| | | -------------------------- | |
| (=) Total Appraised Value: | = | $91,680 | |
| (–) Senior Exemption Loss: | – | $0 | |
| (–) Exemption Loss: | – | $0 | |
| | | -------------------------- | |
| (=) Taxable Value: | = | $91,680 | |
Taxing Jurisdiction
| Owner: | BRIDGES BILLIE J | | |
| % Ownership: | 100.0000000000% | | |
| Total Value: | $91,680 | | |
| Tax Area: | 1 - OL-140-F |
| CERFD | CURRENT EXPENSE REFUND 010 | 0.0000000000 | $91,680 | $91,680 | $0.00 | | |
| CURREXP | CURRENT EXPENSE 010 | 1.0175366760 | $91,680 | $91,680 | $93.29 | | |
| HUMNSERV | HUMAN SERVICES 119 | 0.0250000000 | $91,680 | $91,680 | $2.29 | | |
| SLDREL | SOLDIERS RELIEF 121 | 0.0155990005 | $91,680 | $91,680 | $1.43 | | |
| EMERGSER | EMS 147 | 0.3792580840 | $91,680 | $91,680 | $34.77 | | |
| EMSRFD | EMS REFUND 147 | 0.0000000000 | $91,680 | $91,680 | $0.00 | | |
| PORTRFD | PORT REFUND 640 | 0.0000000000 | $91,680 | $91,680 | $0.00 | | |
| PORTWWGEN | PORT OF WW 640 | 0.2460186015 | $91,680 | $91,680 | $22.55 | | |
| SD140BOND | SD #140 BOND 764 | 0.8342371393 | $91,680 | $91,680 | $76.48 | | |
| SD140GEN | SD #140 GENERAL 760 | 2.0646500647 | $91,680 | $91,680 | $189.29 | | |
| ST2 | STATE SCHOOL PART 2 600 | 0.8131451643 | $91,680 | $91,680 | $74.55 | | |
| STATESCHL | STATE SCHOOL 600 | 1.5158548041 | $91,680 | $91,680 | $138.97 | | |
| STREFUND | STATE REFUND LEVY 603 | 0.0000000000 | $91,680 | $91,680 | $0.00 | | |
| CWWBOND | C OF WW BOND 643 | 0.2760494372 | $91,680 | $91,680 | $25.31 | | |
| CWWGEN | CITY OF WW 631 | 1.6100204973 | $91,680 | $91,680 | $147.61 | | |
| CWWRFD | CITY OF WALLA WALLA REFUND 631 | 0.0000000000 | $91,680 | $91,680 | $0.00 | | |
| | Total Tax Rate: | 8.7973694689 | | | | | |
| | | | | Taxes w/Current Exemptions: | $806.54 | | |
| | | | | Taxes w/o Exemptions: | $806.54 | | |
Improvement / Building
| Improvement #1: | RESIDENTIAL | State Code: | 11 | 586.0 sqft | Value: | $50,430 |
| Exterior Wall: | SHINGLE | Heating/Cooling: | BASEBOARD ELECTRIC | | Number of Bathrooms: | 1 | Number of Bedrooms: | 1 | | Plumbing: | 6 | Roof Covering: | COMP SHINGLE |
|
| | Type | Description | Class CD | Sub Class CD | Year Built | Area |
| | MA | Main Area | 1 | 20 | 1940 | 586.0 |
| | SI1 | SITE IMPROVEMENT | 1 | 20 | 0 | 1.0 |
| | BASE | BASEMENT | 1 | 20 | 1940 | 216.0 |
| | S1F | Single One Story Fireplace | 1 | 20 | 1940 | 1.0 |
| | DTG | Detached Garage | 1 | 20 | 1940 | 240.0 |
| | UTST | Utility Storage Shed | 1 | 20 | 1940 | 140.0 |
Sketch
Property Image
Land
| 1 | RES 1 | Converted: Residential | 0.1148 | 5000.00 | 0.00 | 0.00 | 1.00 | $41,250 | $0 |
Roll Value History
| 2026 | N/A | N/A | N/A | N/A | N/A |
| 2025 | $73,120 | $41,250 | $0 | $114,370 | $114,370 |
| 2024 | $50,430 | $41,250 | $0 | $91,680 | $91,680 |
| 2023 | $50,430 | $41,250 | $0 | $91,680 | $91,680 |
| 2022 | $50,430 | $41,250 | $0 | $91,680 | $91,680 |
| 2021 | $59,040 | $21,250 | $0 | $80,290 | $80,290 |
| 2020 | $49,200 | $21,250 | $0 | $70,450 | $70,450 |
| 2019 | $49,200 | $21,250 | $0 | $70,450 | $70,450 |
| 2018 | $49,200 | $21,250 | $0 | $70,450 | $70,450 |
| 2017 | $49,200 | $21,250 | $0 | $70,450 | $70,450 |
| 2016 | $44,730 | $21,250 | $0 | $65,980 | $65,980 |
| 2015 | $40,220 | $11,300 | $0 | $51,520 | $51,520 |
| 2014 | $38,300 | $11,300 | $0 | $49,600 | $49,600 |
| 2013 | $38,300 | $11,300 | $0 | $49,600 | $49,600 |
| 2012 | $38,300 | $11,300 | $0 | $0 | $0 |
| 2011 | $38,300 | $11,300 | $0 | $0 | $0 |
| 2010 | $31,600 | $21,300 | $0 | $0 | $0 |
| 2009 | $40,900 | $7,500 | $0 | $0 | $0 |
| 2008 | $34,600 | $7,500 | $0 | $0 | $0 |
| 2007 | $34,600 | $7,500 | $0 | $0 | $0 |
Deed and Sales History
| 1 | 06/23/2014 | SWD | STATUTORY WARRANTY DEED | DRO IP LTD | BRIDGES BILLIE J | | | $32,000.00 | 126114 | 2014-04322 |
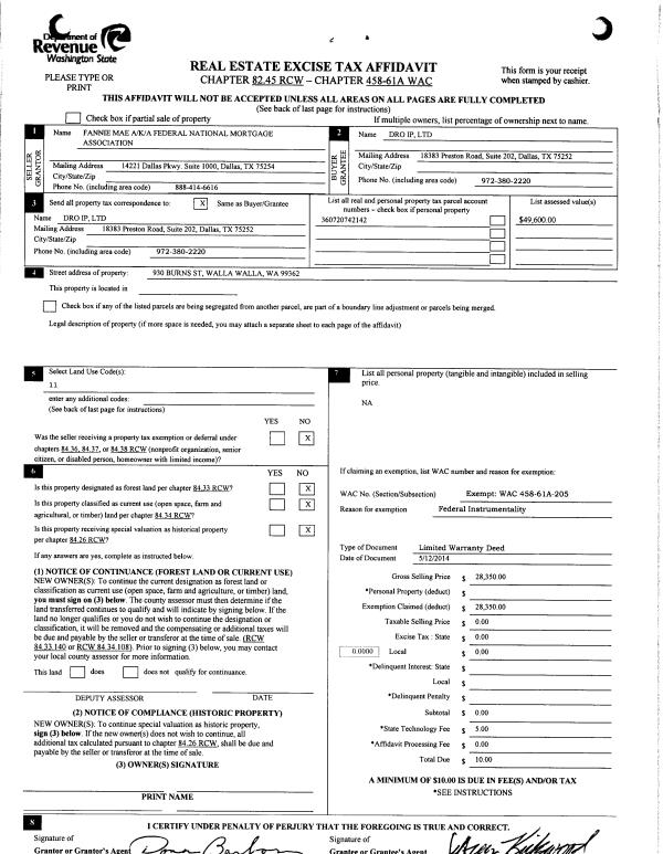
| 2 | 05/16/2014 | WARRANTY D | WARRANTY DEED | FEDERAL NATIONAL MORTGAGE ASSOCIATION | DRO IP LTD | | | $28,350.00 | 125902 | 2014-03342 |
| 3 | 10/16/2013 | WARRANTY D | WARRANTY DEED | BENEDICT, REX E ESTATE OF | FEDERAL NATIONAL MORTGAGE~ASSO | | | $68,238.00 | 124827 | 2013-10410 |
| 4 | 08/30/1996 | WARRANTY D | WARRANTY DEED | | | | | $38,000.00 | 86789 | 2449-608869 |
Payout Agreement
| No payout information available.. |