Property
Account |
| Property ID: | 36123 | Abbreviated Legal Description: | HIGHLAND HEIGHTS LOT 9 |
| Parcel Number: | 360731520009 | Agent Code: | |
| Type: | Real | | |
| Tax Area: | 101 - 140-4 | Land Use Code | 11 |
| Open Space: | N | DFL | N |
| Historic Property: | N | Remodel Property: | N |
| Multi-Family Redevelopment: | N | | |
| Township: | 7 | Section: | 31 |
| Range: | 36 |
Location |
| Address: | 1491 HIGHLAND RD WA 99362 | Mapsco: | |
| Neighborhood: | G SFR Rural/City Inf | Map ID: | |
| Neighborhood CD: | 114012 |
Owner |
| Name: | MCKAY DAVID & ROXANNE | Owner ID: | 56685 |
| Mailing Address: | 1491 HIGHLAND RD WALLA WALLA, WA 99362 | % Ownership: | 100.0000000000% |
| | | Exemptions: | |
Taxes and Assessment Details
Values
| (+) Improvement Homesite Value: | + | $0 | |
| (+) Improvement Non-Homesite Value: | + | $244,130 | |
| (+) Land Homesite Value: | + | $0 | |
| (+) Land Non-Homesite Value: | + | $120,000 | |
| (+) Curr Use (HS): | + | $0 | $0 |
| (+) Curr Use (NHS): | + | $0 | $0 |
| | | -------------------------- | |
| (=) Market Value: | = | $364,130 | |
| (–) Productivity Loss: | – | $0 | |
| | | -------------------------- | |
| (=) Subtotal: | = | $364,130 | |
| (+) Senior Appraised Value: | + | $0 | |
| (+) Non-Senior Appraised Value: | + | $364,130 | |
| | | -------------------------- | |
| (=) Total Appraised Value: | = | $364,130 | |
| (–) Senior Exemption Loss: | – | $0 | |
| (–) Exemption Loss: | – | $0 | |
| | | -------------------------- | |
| (=) Taxable Value: | = | $364,130 | |
Taxing Jurisdiction
| Owner: | MCKAY DAVID & ROXANNE | | |
| % Ownership: | 100.0000000000% | | |
| Total Value: | $364,130 | | |
| Tax Area: | 101 - 140-4 |
| CERFD | CURRENT EXPENSE REFUND 010 | 0.0000000000 | $364,130 | $364,130 | $0.00 | | |
| CURREXP | CURRENT EXPENSE 010 | 1.0175366760 | $364,130 | $364,130 | $370.52 | | |
| HUMNSERV | HUMAN SERVICES 119 | 0.0250000000 | $364,130 | $364,130 | $9.10 | | |
| SLDREL | SOLDIERS RELIEF 121 | 0.0155990005 | $364,130 | $364,130 | $5.68 | | |
| EMERGSER | EMS 147 | 0.3792580840 | $364,130 | $364,130 | $138.10 | | |
| EMSRFD | EMS REFUND 147 | 0.0000000000 | $364,130 | $364,130 | $0.00 | | |
| FD4EXP | FD #4 EXPENSE 686 | 0.8836993059 | $364,130 | $364,130 | $321.78 | | |
| RLBRFD | RURAL LIBRARY REFUND 623 | 0.0000000000 | $364,130 | $364,130 | $0.00 | | |
| RURALLIB | RURAL LIBRARY 623 | 0.3710609029 | $364,130 | $364,130 | $135.11 | | |
| PORTRFD | PORT REFUND 640 | 0.0000000000 | $364,130 | $364,130 | $0.00 | | |
| PORTWWGEN | PORT OF WW 640 | 0.2460186015 | $364,130 | $364,130 | $89.58 | | |
| SD140BOND | SD #140 BOND 764 | 0.8342371393 | $364,130 | $364,130 | $303.77 | | |
| SD140GEN | SD #140 GENERAL 760 | 2.0646500647 | $364,130 | $364,130 | $751.80 | | |
| ST2 | STATE SCHOOL PART 2 600 | 0.8131451643 | $364,130 | $364,130 | $296.09 | | |
| STATESCHL | STATE SCHOOL 600 | 1.5158548041 | $364,130 | $364,130 | $551.97 | | |
| STREFUND | STATE REFUND LEVY 603 | 0.0000000000 | $364,130 | $364,130 | $0.00 | | |
| COROAD | COUNTY ROAD 115 | 1.6549953990 | $364,130 | $364,130 | $602.63 | | |
| CRPRD | COUNTY ROAD REFUND 115 | 0.0000000000 | $364,130 | $364,130 | $0.00 | | |
| | Total Tax Rate: | 9.8210551422 | | | | | |
| | | | | Taxes w/Current Exemptions: | $3,576.13 | | |
| | | | | Taxes w/o Exemptions: | $3,576.13 | | |
Improvement / Building
| Improvement #1: | RESIDENTIAL | State Code: | 11 | 1492.0 sqft | Value: | $244,130 |
| Exterior Wall: | SIDING | Heating/Cooling: | WARM & COOLED AIR | | Number of Bathrooms: | 2 | Number of Bedrooms: | 3 | | Plumbing: | 9 | Roof Covering: | COMP SHINGLE |
|
| | Type | Description | Class CD | Sub Class CD | Year Built | Area |
| | MA | Main Area | 1 | 40 | 1975 | 1492.0 |
| | ATG | Attached Garage | 1 | 40 | 0 | 323.0 |
| | SI1 | SITE IMPROVEMENT | 1 | 40 | 0 | 2.5 |
| | WOD | Wood Deck | 1 | 40 | 1975 | 104.0 |
| | TOOL | TOOL SHED | 1 | 40 | 1975 | 355.0 |
| | RPC | OPEN PORCH W/ROOF , CEILED | 1 | 40 | 0 | 89.0 |
| | S1F | Single One Story Fireplace | 1 | 40 | 0 | 1.0 |
| | WDR | WOOD DECK W/ROOF | 1 | 40 | 1975 | 140.0 |
Sketch
Property Image
Land
| 1 | RES 1 | Converted: Residential | 1.0000 | 0.00 | 0.00 | 0.00 | 1.00 | $120,000 | $0 |
Roll Value History
| 2026 | N/A | N/A | N/A | N/A | N/A |
| 2025 | $219,720 | $180,000 | $0 | $399,720 | $399,720 |
| 2024 | $244,130 | $120,000 | $0 | $364,130 | $364,130 |
| 2023 | $244,130 | $120,000 | $0 | $364,130 | $364,130 |
| 2022 | $244,130 | $120,000 | $0 | $364,130 | $364,130 |
| 2021 | $180,840 | $120,000 | $0 | $300,840 | $300,840 |
| 2020 | $150,700 | $120,000 | $0 | $270,700 | $270,700 |
| 2019 | $180,700 | $90,000 | $0 | $270,700 | $270,700 |
| 2018 | $164,270 | $90,000 | $0 | $254,270 | $254,270 |
| 2017 | $164,270 | $90,000 | $0 | $254,270 | $254,270 |
| 2016 | $156,450 | $90,000 | $0 | $246,450 | $246,450 |
| 2015 | $149,000 | $90,000 | $0 | $239,000 | $239,000 |
| 2014 | $149,000 | $90,000 | $0 | $239,000 | $239,000 |
| 2013 | $149,000 | $90,000 | $0 | $239,000 | $239,000 |
| 2012 | $137,600 | $90,000 | $0 | $0 | $0 |
| 2011 | $107,600 | $120,000 | $0 | $0 | $0 |
| 2010 | $107,600 | $120,000 | $0 | $0 | $0 |
| 2009 | $132,900 | $120,000 | $0 | $0 | $0 |
| 2008 | $135,500 | $45,000 | $0 | $0 | $0 |
| 2007 | $135,500 | $45,000 | $0 | $0 | $0 |
Deed and Sales History
| 1 | 05/13/2015 | SWD | STATUTORY WARRANTY DEED | BILBEISI RANDAL R | MCKAY DAVID & ROXANNE | | | $255,000.00 | 127958 | 2015-04033 |
| 2 | 03/17/2015 | QCD | QUIT CLAIM DEED | BILBEISI RANDALL R & AMY | BILBEISI RANDAL R | | | $0.00 | 127957 | 2015-04032 |
| 3 | 10/15/2013 | WARRANTY D | WARRANTY DEED | LAWYER, ASHLEY | BILBEISI, RANDALL R & AMY | | | $206,000.00 | 124821 | 2013-10392 |
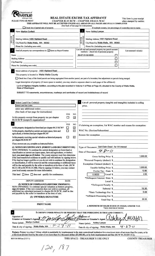
| 4 | 05/25/2011 | QCD | QUIT CLAIM DEED | CORFIELD, TIM & MARILYN | LAWYER, ASHLEY | | | $1,000.00 | 120187 | 2011-04086 |
| 5 | 05/25/2011 | WARRANTY D | WARRANTY DEED | CORFIELD, TIMOTHY L ESTATE OF | LAWYER, ASHLEY | | | $0.00 | 120188 | 2011-04088 |
| 6 | 05/25/2011 | QCD | QUIT CLAIM DEED | ROSSI, SABRINA | LAWYER, ASHLEY | | | $0.00 | 120189 | 2011-04087 |
| 7 | 02/28/2005 | QCD | QUIT CLAIM DEED | RYAN, CHRIS & ASHLEY | CORFIELD, TIM & MARILYN | | | | 106866 | 2005-02271 |
| 8 | 12/06/2004 | QCD | QUIT CLAIM DEED | RYAN, CHRIS & ASHLEY | RYAN, CHRIS & ASHLEY | | | $13,696.00 | 106341 | 2004-13981 |
| 9 | 10/25/2004 | QCD | QUIT CLAIM DEED | CORFIELD, TIMOTHY & MARILYN | RYAN, CHRIS & ASHLEY | | | | 106042 | 2004-12317 |
| 10 | 05/12/2004 | WARRANTY D | WARRANTY DEED | THORNTON, JAMES E & MARY J | CORFIELD, TIMOTHY & MARILYN | | | $230,000.00 | 104731 | 2004-05108 |
| 11 | 05/20/1988 | WARRANTY D | WARRANTY DEED | | | | | $87,500.00 | 0 | 1708-803204 |
Payout Agreement
| No payout information available.. |