Property
Account |
| Property ID: | 36104 | Abbreviated Legal Description: | HENDERSON TAX 2 BLK 44 |
| Parcel Number: | 360729684402 | Agent Code: | |
| Type: | Real | | |
| Tax Area: | 1 - OL-140-F | Land Use Code | 91 |
| Open Space: | N | DFL | N |
| Historic Property: | N | Remodel Property: | N |
| Multi-Family Redevelopment: | N | | |
| Township: | 7 | Section: | 29 |
| Range: | 36 |
Location |
| Address: | 121 MALCOLM ST WA 99362 | Mapsco: | |
| Neighborhood: | Fair Res Land Only | Map ID: | |
| Neighborhood CD: | 612091 |
Owner |
| Name: | SERRATO ALEJANDRO VIEYRA | Owner ID: | 72763 |
| Mailing Address: | 1166 W ELM ST WALLA WALLA, WA 99362 | % Ownership: | 100.0000000000% |
| | | Exemptions: | |
Taxes and Assessment Details
Property Tax Information as of
02/21/2026
Click on "Statement Details" to expand or collapse a tax statement.
* Please enter a valid date ** Please enter a valid date *
Statement Details |
| | TOTAL: | $0.00 | $0.00 | $0.00 | $0.00 | $0.00 | $0.00 |
|
| | $0.00 | $0.00 | $0.00 | $0.00 | $0.00 | $0.00 |
Values
| (+) Improvement Homesite Value: | + | $0 | |
| (+) Improvement Non-Homesite Value: | + | $0 | |
| (+) Land Homesite Value: | + | $52,000 | |
| (+) Land Non-Homesite Value: | + | $0 | |
| (+) Curr Use (HS): | + | $0 | $0 |
| (+) Curr Use (NHS): | + | $0 | $0 |
| | | -------------------------- | |
| (=) Market Value: | = | $52,000 | |
| (–) Productivity Loss: | – | $0 | |
| | | -------------------------- | |
| (=) Subtotal: | = | $52,000 | |
| (+) Senior Appraised Value: | + | $0 | |
| (+) Non-Senior Appraised Value: | + | $52,000 | |
| | | -------------------------- | |
| (=) Total Appraised Value: | = | $52,000 | |
| (–) Senior Exemption Loss: | – | $0 | |
| (–) Exemption Loss: | – | $0 | |
| | | -------------------------- | |
| (=) Taxable Value: | = | $52,000 | |
Taxing Jurisdiction
| Owner: | SERRATO ALEJANDRO VIEYRA | | |
| % Ownership: | 100.0000000000% | | |
| Total Value: | $52,000 | | |
| Tax Area: | 1 - OL-140-F |
| CERFD | CURRENT EXPENSE REFUND 010 | 0.0000000000 | $52,000 | $52,000 | $0.00 | | |
| CURREXP | CURRENT EXPENSE 010 | 1.0175366760 | $52,000 | $52,000 | $52.91 | | |
| HUMNSERV | HUMAN SERVICES 119 | 0.0250000000 | $52,000 | $52,000 | $1.30 | | |
| SLDREL | SOLDIERS RELIEF 121 | 0.0155990005 | $52,000 | $52,000 | $0.81 | | |
| EMERGSER | EMS 147 | 0.3792580840 | $52,000 | $52,000 | $19.72 | | |
| EMSRFD | EMS REFUND 147 | 0.0000000000 | $52,000 | $52,000 | $0.00 | | |
| PORTRFD | PORT REFUND 640 | 0.0000000000 | $52,000 | $52,000 | $0.00 | | |
| PORTWWGEN | PORT OF WW 640 | 0.2460186015 | $52,000 | $52,000 | $12.79 | | |
| SD140BOND | SD #140 BOND 764 | 0.8342371393 | $52,000 | $52,000 | $43.38 | | |
| SD140GEN | SD #140 GENERAL 760 | 2.0646500647 | $52,000 | $52,000 | $107.36 | | |
| ST2 | STATE SCHOOL PART 2 600 | 0.8131451643 | $52,000 | $52,000 | $42.28 | | |
| STATESCHL | STATE SCHOOL 600 | 1.5158548041 | $52,000 | $52,000 | $78.82 | | |
| STREFUND | STATE REFUND LEVY 603 | 0.0000000000 | $52,000 | $52,000 | $0.00 | | |
| CWWBOND | C OF WW BOND 643 | 0.2760494372 | $52,000 | $52,000 | $14.35 | | |
| CWWGEN | CITY OF WW 631 | 1.6100204973 | $52,000 | $52,000 | $83.72 | | |
| CWWRFD | CITY OF WALLA WALLA REFUND 631 | 0.0000000000 | $52,000 | $52,000 | $0.00 | | |
| | Total Tax Rate: | 8.7973694689 | | | | | |
| | | | | Taxes w/Current Exemptions: | $457.44 | | |
| | | | | Taxes w/o Exemptions: | $457.44 | | |
Improvement / Building
Sketch
| No sketches available for this property. |
Property Image
Land
| 1 | RES 1 | Converted: Residential | 0.1492 | 6500.00 | 0.00 | 0.00 | 1.00 | $52,000 | $0 |
Roll Value History
| 2026 | N/A | N/A | N/A | N/A | N/A |
| 2025 | $0 | $65,000 | $0 | $65,000 | $65,000 |
| 2024 | $0 | $52,000 | $0 | $52,000 | $52,000 |
| 2023 | $0 | $52,000 | $0 | $52,000 | $52,000 |
| 2022 | $0 | $40,630 | $0 | $40,630 | $40,630 |
| 2021 | $3,800 | $40,630 | $0 | $44,430 | $44,430 |
| 2020 | $3,170 | $40,630 | $0 | $43,800 | $43,800 |
| 2019 | $3,170 | $40,630 | $0 | $43,800 | $43,800 |
| 2018 | $4,730 | $39,000 | $0 | $43,730 | $43,730 |
| 2017 | $4,730 | $39,000 | $0 | $43,730 | $43,730 |
| 2016 | $6,750 | $39,000 | $0 | $45,750 | $0 |
| 2015 | $6,750 | $39,000 | $0 | $45,750 | $0 |
| 2014 | $13,500 | $39,000 | $0 | $52,500 | $2,500 |
| 2013 | $13,500 | $39,000 | $0 | $52,500 | $2,500 |
| 2012 | $26,800 | $39,000 | $0 | $0 | $0 |
| 2011 | $55,000 | $39,000 | $0 | $0 | $0 |
| 2010 | $55,000 | $39,000 | $0 | $0 | $0 |
| 2009 | $65,400 | $39,000 | $0 | $0 | $0 |
| 2008 | $65,400 | $39,000 | $0 | $0 | $0 |
| 2007 | $37,500 | $13,000 | $0 | $0 | $0 |
Deed and Sales History
| 1 | 10/31/2022 | SWD | STATUTORY WARRANTY DEED | OJCIUS AARON & JENNIFER | SERRATO ALEJANDRO VIEYRA | | | $75,000.00 | 144940 | 2022-08833 |
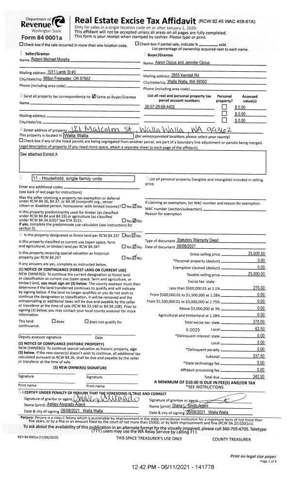
| 2 | 06/11/2021 | SWD | STATUTORY WARRANTY DEED | MURPHY ROBERT MICHAEL | OJCIUS AARON & JENNIFER | | | $25,000.00 | 141778 | 2021-07158 |
| 3 | 09/10/2018 | QCD | QUIT CLAIM DEED | BARKER CLYDE & DEBRA | MURPHY ROBERT MICHAEL | | | $0.00 | 135505 | 2018-07465 |
| 4 | 02/28/2013 | WARRANTY D | WARRANTY DEED | MURPHY, ROBERT M | BARKER, CLYDE & DEBRA | | | $0.00 | 123521 | -123521 |
| 5 | 06/11/1991 | WARRANTY D | WARRANTY DEED | | | | | $25,000.00 | 0 | 1899-103719 |
Payout Agreement
| No payout information available.. |