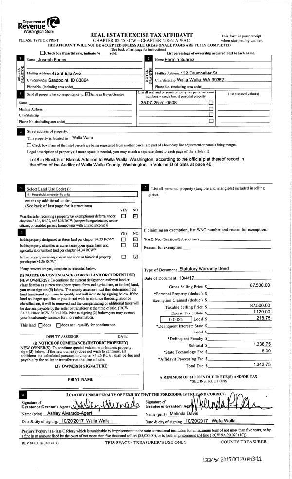
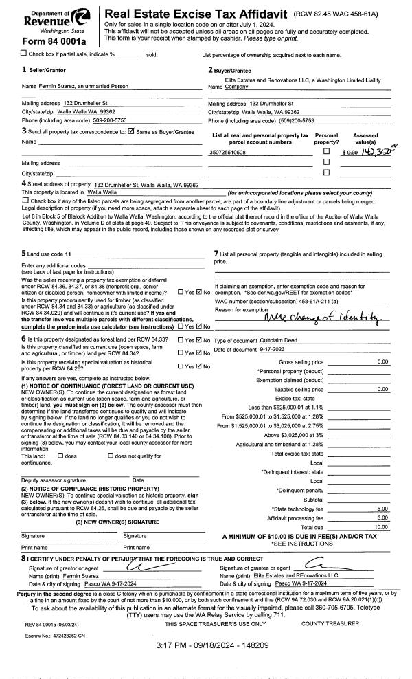
Property
Account |
| Property ID: | 3607 | Abbreviated Legal Description: | BLALOCK LOT 8 BLK 5 |
| Parcel Number: | 350725510508 | Agent Code: | |
| Type: | Real | | |
| Tax Area: | 1 - OL-140-F | Land Use Code | 11 |
| Open Space: | N | DFL | N |
| Historic Property: | N | Remodel Property: | N |
| Multi-Family Redevelopment: | N | | |
| Township: | 7 | Section: | 25 |
| Range: | 35 |
Location |
| Address: | 132 DRUMHELLER ST WA 99362 | Mapsco: | |
| Neighborhood: | A SFR Rural/City Infl | Map ID: | |
| Neighborhood CD: | 313012 |
Owner |
| Name: | SUAREZ FERMIN | Owner ID: | 62015 |
| Mailing Address: | 132 DRUMHELLER ST WALLA WALLA, WA 99362 | % Ownership: | 100.0000000000% |
| | | Exemptions: | |
Taxes and Assessment Details
Property Tax Information as of
02/21/2026
Click on "Statement Details" to expand or collapse a tax statement.
* Please enter a valid date ** Please enter a valid date *
Statement Details |
| | TOTAL: | $0.00 | $0.00 | $0.00 | $0.00 | $0.00 | $0.00 |
|
| | $0.00 | $0.00 | $0.00 | $0.00 | $0.00 | $0.00 |
Values
| (+) Improvement Homesite Value: | + | $0 | |
| (+) Improvement Non-Homesite Value: | + | $92,850 | |
| (+) Land Homesite Value: | + | $0 | |
| (+) Land Non-Homesite Value: | + | $49,500 | |
| (+) Curr Use (HS): | + | $0 | $0 |
| (+) Curr Use (NHS): | + | $0 | $0 |
| | | -------------------------- | |
| (=) Market Value: | = | $142,350 | |
| (–) Productivity Loss: | – | $0 | |
| | | -------------------------- | |
| (=) Subtotal: | = | $142,350 | |
| (+) Senior Appraised Value: | + | $0 | |
| (+) Non-Senior Appraised Value: | + | $142,350 | |
| | | -------------------------- | |
| (=) Total Appraised Value: | = | $142,350 | |
| (–) Senior Exemption Loss: | – | $0 | |
| (–) Exemption Loss: | – | $0 | |
| | | -------------------------- | |
| (=) Taxable Value: | = | $142,350 | |
Taxing Jurisdiction
| Owner: | SUAREZ FERMIN | | |
| % Ownership: | 100.0000000000% | | |
| Total Value: | $142,350 | | |
| Tax Area: | 1 - OL-140-F |
| CERFD | CURRENT EXPENSE REFUND 010 | 0.0000000000 | $142,350 | $142,350 | $0.00 | | |
| CURREXP | CURRENT EXPENSE 010 | 1.0175366760 | $142,350 | $142,350 | $144.85 | | |
| HUMNSERV | HUMAN SERVICES 119 | 0.0250000000 | $142,350 | $142,350 | $3.56 | | |
| SLDREL | SOLDIERS RELIEF 121 | 0.0155990005 | $142,350 | $142,350 | $2.22 | | |
| EMERGSER | EMS 147 | 0.3792580840 | $142,350 | $142,350 | $53.99 | | |
| EMSRFD | EMS REFUND 147 | 0.0000000000 | $142,350 | $142,350 | $0.00 | | |
| PORTRFD | PORT REFUND 640 | 0.0000000000 | $142,350 | $142,350 | $0.00 | | |
| PORTWWGEN | PORT OF WW 640 | 0.2460186015 | $142,350 | $142,350 | $35.02 | | |
| SD140BOND | SD #140 BOND 764 | 0.8342371393 | $142,350 | $142,350 | $118.75 | | |
| SD140GEN | SD #140 GENERAL 760 | 2.0646500647 | $142,350 | $142,350 | $293.90 | | |
| ST2 | STATE SCHOOL PART 2 600 | 0.8131451643 | $142,350 | $142,350 | $115.75 | | |
| STATESCHL | STATE SCHOOL 600 | 1.5158548041 | $142,350 | $142,350 | $215.78 | | |
| STREFUND | STATE REFUND LEVY 603 | 0.0000000000 | $142,350 | $142,350 | $0.00 | | |
| CWWBOND | C OF WW BOND 643 | 0.2760494372 | $142,350 | $142,350 | $39.30 | | |
| CWWGEN | CITY OF WW 631 | 1.6100204973 | $142,350 | $142,350 | $229.19 | | |
| CWWRFD | CITY OF WALLA WALLA REFUND 631 | 0.0000000000 | $142,350 | $142,350 | $0.00 | | |
| | Total Tax Rate: | 8.7973694689 | | | | | |
| | | | | Taxes w/Current Exemptions: | $1,252.31 | | |
| | | | | Taxes w/o Exemptions: | $1,252.31 | | |
Improvement / Building
| Improvement #1: | RESIDENTIAL | State Code: | 11 | 2124.0 sqft | Value: | $92,850 |
| Exterior Wall: | SIDING | Heating/Cooling: | BASEBOARD ELECTRIC | | Number of Bathrooms: | 2 | Number of Bedrooms: | 4 | | Plumbing: | 9 | Roof Covering: | COMP SHINGLE |
|
| | Type | Description | Class CD | Sub Class CD | Year Built | Area |
| | MA | Main Area | 2 | 20 | 1915 | 2124.0 |
| | SI1 | SITE IMPROVEMENT | 2 | 20 | 0 | 1.5 |
| | RPS | PORCH W/STEPS,ROOF | 2 | 20 | 1915 | 30.0 |
| | UPFL | Upper Floor (included in main area) | 2 | 20 | 1915 | 999.0 |
Sketch
Property Image
Land
| 1 | RES 1 | Converted: Residential | 0.1377 | 6000.00 | 0.00 | 0.00 | 1.00 | $49,500 | $0 |
Roll Value History
| 2026 | N/A | N/A | N/A | N/A | N/A |
| 2025 | $92,850 | $49,500 | $0 | $142,350 | $142,350 |
| 2024 | $92,850 | $49,500 | $0 | $142,350 | $142,350 |
| 2023 | $92,850 | $49,500 | $0 | $142,350 | $142,350 |
| 2022 | $92,850 | $49,500 | $0 | $142,350 | $142,350 |
| 2021 | $78,730 | $18,000 | $0 | $96,730 | $96,730 |
| 2020 | $71,570 | $18,000 | $0 | $89,570 | $89,570 |
| 2019 | $71,570 | $18,000 | $0 | $89,570 | $89,570 |
| 2018 | $71,570 | $18,000 | $0 | $89,570 | $89,570 |
| 2017 | $89,460 | $18,000 | $0 | $107,460 | $107,460 |
| 2016 | $85,200 | $18,000 | $0 | $103,200 | $103,200 |
| 2015 | $107,000 | $18,000 | $0 | $125,000 | $125,000 |
| 2014 | $107,000 | $18,000 | $0 | $125,000 | $125,000 |
| 2013 | $107,000 | $18,000 | $0 | $125,000 | $125,000 |
| 2012 | $107,000 | $18,000 | $0 | $0 | $0 |
| 2011 | $107,000 | $18,000 | $0 | $0 | $0 |
| 2010 | $142,000 | $18,000 | $0 | $0 | $0 |
| 2009 | $150,400 | $18,000 | $0 | $0 | $0 |
| 2008 | $66,200 | $18,000 | $0 | $0 | $0 |
| 2007 | $66,200 | $18,000 | $0 | $0 | $0 |
Deed and Sales History
| 1 | 11/12/2024 | | | SUAREZ FERMIN | ELITE ESTATES AND RENOVATIONS LLC | | | | 148209 | |
| 2 | 10/20/2017 | SWD | STATUTORY WARRANTY DEED | PONCY JOSEPH | SUAREZ FERMIN | | | $87,500.00 | 133454 | 2017-08410 |
| 3 | | FUL | FULFILLMENT DEED | WALTERS-HALL REVA LEE | PONCY JOSEPH | | | | 0 | 2017-08409 |
| 4 | 06/27/2007 | WARRANTY D | WARRANTY DEED | WALTERS, JACKSON H ESTATE OF | WALTERS-HALL, REVA LEE | | | | 0 | 2007-07359 |
| 5 | 08/03/2004 | WARRANTY D | WARRANTY DEED | WALTERS, ALMIRA | PONCY, JOSEPH | | | $70,000.00 | 105413 | 2004-08860 |
Payout Agreement
| No payout information available.. |