| 1 | 11/06/2024 | SWD | STATUTORY WARRANTY DEED | WILKINSON RONALD J & JANET M | GRIFFITH GREGORY & DANIELLE | | | $625,000.00 | 148486 | 2024-06495 |
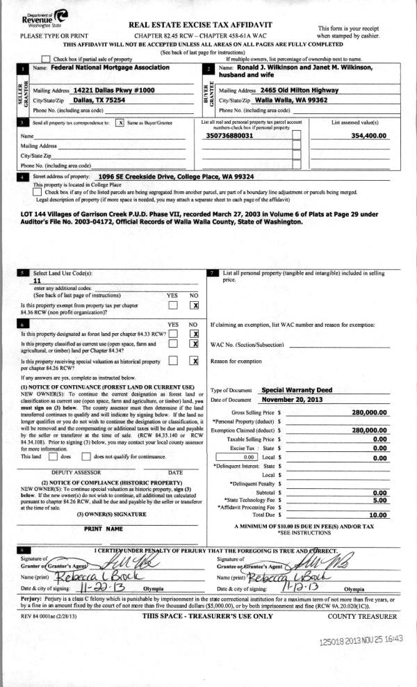
| 2 | 11/25/2013 | WARRANTY D | WARRANTY DEED | FEDERAL NATIONAL MORTGAGE ASSOC | WILKINSON RONALD J & JANET M | | | $280,000.00 | 125018 | 2013-11527 |
| 3 | 10/24/2013 | WARRANTY D | WARRANTY DEED | JAQUE, HILDA | FEDERAL NATIONAL MORTGAGE ASSO | | | $0.00 | 124872 | 2013-10710 |
| 4 | 04/23/2007 | QCD | QUIT CLAIM DEED | JAQUES, CARLOS | JAQUE, HILDA | | | | 112672 | 2007-04522 |
| 5 | 12/09/2003 | WARRANTY D | WARRANTY DEED | BATES, MICHAEL B & BARBARA J | JAQUES, CARLOS | | | $50,000.00 | 103683 | 2003-18702 |
| 6 | 04/18/2003 | WARRANTY D | WARRANTY DEED | PHASE FIVE DEVELOPMENT LLC | BATES, MICHAEL B & BARBARA J | | | $45,900.00 | 101876 | 2003-05517 |