Property
Account |
| Property ID: | 36046 | Abbreviated Legal Description: | TRACY ADDN LOT 5 |
| Parcel Number: | 360733910005 | Agent Code: | |
| Type: | Real | | |
| Tax Area: | 1 - OL-140-F | Land Use Code | 11 |
| Open Space: | N | DFL | N |
| Historic Property: | N | Remodel Property: | N |
| Multi-Family Redevelopment: | N | | |
| Township: | 7 | Section: | 33 |
| Range: | 36 |
Location |
| Address: | 836 WHEATLAND ST WA 99362 | Mapsco: | |
| Neighborhood: | G Res | Map ID: | |
| Neighborhood CD: | 614011 |
Owner |
| Name: | BAYNE KEVIN DOUGLAS & HEATHER M CLIFTON BAYNE | Owner ID: | 54426 |
| Mailing Address: | 836 WHEATLAND ST WALLA WALLA, WA 99362 | % Ownership: | 100.0000000000% |
| | | Exemptions: | |
Taxes and Assessment Details
Property Tax Information as of
02/21/2026
Click on "Statement Details" to expand or collapse a tax statement.
* Please enter a valid date ** Please enter a valid date *
Statement Details |
| | TOTAL: | $0.00 | $0.00 | $0.00 | $0.00 | $0.00 | $0.00 |
|
| | $0.00 | $0.00 | $0.00 | $0.00 | $0.00 | $0.00 |
Values
| (+) Improvement Homesite Value: | + | $0 | |
| (+) Improvement Non-Homesite Value: | + | $495,600 | |
| (+) Land Homesite Value: | + | $0 | |
| (+) Land Non-Homesite Value: | + | $133,020 | |
| (+) Curr Use (HS): | + | $0 | $0 |
| (+) Curr Use (NHS): | + | $0 | $0 |
| | | -------------------------- | |
| (=) Market Value: | = | $628,620 | |
| (–) Productivity Loss: | – | $0 | |
| | | -------------------------- | |
| (=) Subtotal: | = | $628,620 | |
| (+) Senior Appraised Value: | + | $0 | |
| (+) Non-Senior Appraised Value: | + | $628,620 | |
| | | -------------------------- | |
| (=) Total Appraised Value: | = | $628,620 | |
| (–) Senior Exemption Loss: | – | $0 | |
| (–) Exemption Loss: | – | $0 | |
| | | -------------------------- | |
| (=) Taxable Value: | = | $628,620 | |
Taxing Jurisdiction
| Owner: | BAYNE KEVIN DOUGLAS & HEATHER M CLIFTON BAYNE | | |
| % Ownership: | 100.0000000000% | | |
| Total Value: | $628,620 | | |
| Tax Area: | 1 - OL-140-F |
| CERFD | CURRENT EXPENSE REFUND 010 | 0.0000000000 | $628,620 | $628,620 | $0.00 | | |
| CURREXP | CURRENT EXPENSE 010 | 1.0175366760 | $628,620 | $628,620 | $639.64 | | |
| HUMNSERV | HUMAN SERVICES 119 | 0.0250000000 | $628,620 | $628,620 | $15.72 | | |
| SLDREL | SOLDIERS RELIEF 121 | 0.0155990005 | $628,620 | $628,620 | $9.81 | | |
| EMERGSER | EMS 147 | 0.3792580840 | $628,620 | $628,620 | $238.41 | | |
| EMSRFD | EMS REFUND 147 | 0.0000000000 | $628,620 | $628,620 | $0.00 | | |
| PORTRFD | PORT REFUND 640 | 0.0000000000 | $628,620 | $628,620 | $0.00 | | |
| PORTWWGEN | PORT OF WW 640 | 0.2460186015 | $628,620 | $628,620 | $154.65 | | |
| SD140BOND | SD #140 BOND 764 | 0.8342371393 | $628,620 | $628,620 | $524.42 | | |
| SD140GEN | SD #140 GENERAL 760 | 2.0646500647 | $628,620 | $628,620 | $1,297.88 | | |
| ST2 | STATE SCHOOL PART 2 600 | 0.8131451643 | $628,620 | $628,620 | $511.16 | | |
| STATESCHL | STATE SCHOOL 600 | 1.5158548041 | $628,620 | $628,620 | $952.90 | | |
| STREFUND | STATE REFUND LEVY 603 | 0.0000000000 | $628,620 | $628,620 | $0.00 | | |
| CWWBOND | C OF WW BOND 643 | 0.2760494372 | $628,620 | $628,620 | $173.53 | | |
| CWWGEN | CITY OF WW 631 | 1.6100204973 | $628,620 | $628,620 | $1,012.09 | | |
| CWWRFD | CITY OF WALLA WALLA REFUND 631 | 0.0000000000 | $628,620 | $628,620 | $0.00 | | |
| | Total Tax Rate: | 8.7973694689 | | | | | |
| | | | | Taxes w/Current Exemptions: | $5,530.21 | | |
| | | | | Taxes w/o Exemptions: | $5,530.21 | | |
Improvement / Building
| Improvement #1: | RESIDENTIAL | State Code: | 11 | 3451.0 sqft | Value: | $495,600 |
| Exterior Wall: | SIDING | Foundation: | SLAB FOUNDATION | | Heating/Cooling: | WARM & COOLED AIR | Number of Bathrooms: | 4 | | Number of Bedrooms: | 4 | Plumbing: | 15 | | Roof Covering: | COMP SHINGLE |   |   |
|
| | Type | Description | Class CD | Sub Class CD | Year Built | Area |
| | MA | Main Area | 3 | 40 | 1994 | 3451.0 |
| | SI1 | SITE IMPROVEMENT | 3 | 40 | 1994 | 4.5 |
| | UPFL | Upper Floor (included in main area) | 3 | 40 | 1994 | 980.0 |
| | DTG | Detached Garage | 3 | 40 | 1994 | 768.0 |
| | WOD | Wood Deck | 3 | 40 | 1994 | 1226.0 |
| | BRW | BREEZEWAY | 3 | 40 | 1994 | 384.0 |
| | GFP | GAS FIREPLACE | 3 | 40 | 1994 | 1.0 |
Sketch
Property Image
Land
| 1 | RES 1 | Converted: Residential | 0.5884 | 25630.00 | 0.00 | 0.00 | 1.00 | $133,020 | $0 |
Roll Value History
| 2026 | N/A | N/A | N/A | N/A | N/A |
| 2025 | $563,660 | $155,060 | $0 | $718,720 | $718,720 |
| 2024 | $495,600 | $133,020 | $0 | $628,620 | $628,620 |
| 2023 | $495,600 | $133,020 | $0 | $628,620 | $628,620 |
| 2022 | $495,600 | $107,900 | $0 | $603,500 | $603,500 |
| 2021 | $354,000 | $107,900 | $0 | $461,900 | $461,900 |
| 2020 | $272,310 | $107,900 | $0 | $380,210 | $380,210 |
| 2019 | $272,310 | $107,900 | $0 | $380,210 | $380,210 |
| 2018 | $311,460 | $60,000 | $0 | $371,460 | $371,460 |
| 2017 | $296,630 | $60,000 | $0 | $356,630 | $356,630 |
| 2016 | $296,630 | $60,000 | $0 | $356,630 | $356,630 |
| 2015 | $296,630 | $60,000 | $0 | $356,630 | $356,630 |
| 2014 | $282,500 | $60,000 | $0 | $342,500 | $342,500 |
| 2013 | $282,500 | $60,000 | $0 | $342,500 | $342,500 |
| 2012 | $282,500 | $60,000 | $0 | $0 | $0 |
| 2011 | $282,500 | $60,000 | $0 | $0 | $0 |
| 2010 | $251,400 | $60,000 | $0 | $0 | $0 |
| 2009 | $286,000 | $60,000 | $0 | $0 | $0 |
| 2008 | $286,000 | $60,000 | $0 | $0 | $0 |
| 2007 | $241,100 | $37,900 | $0 | $0 | $0 |
Deed and Sales History
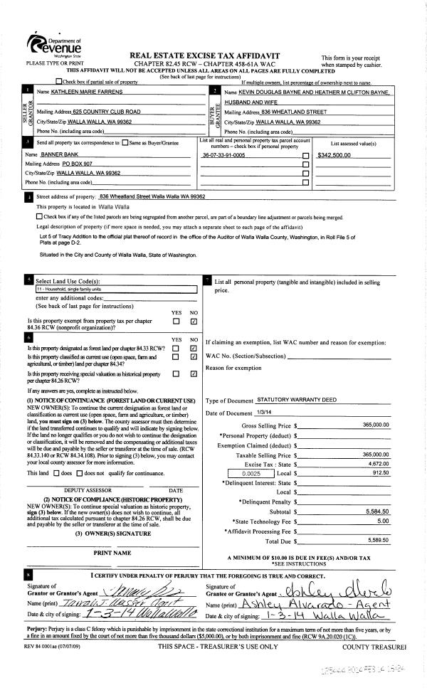
| 1 | 02/14/2014 | SWD | STATUTORY WARRANTY DEED | FARRENS KATHLEEN MARIE | BAYNE KEVIN DOUGLAS & HEATHER M CLIFTON BAYNE | | | $365,000.00 | 125444 | 2014-01144 |
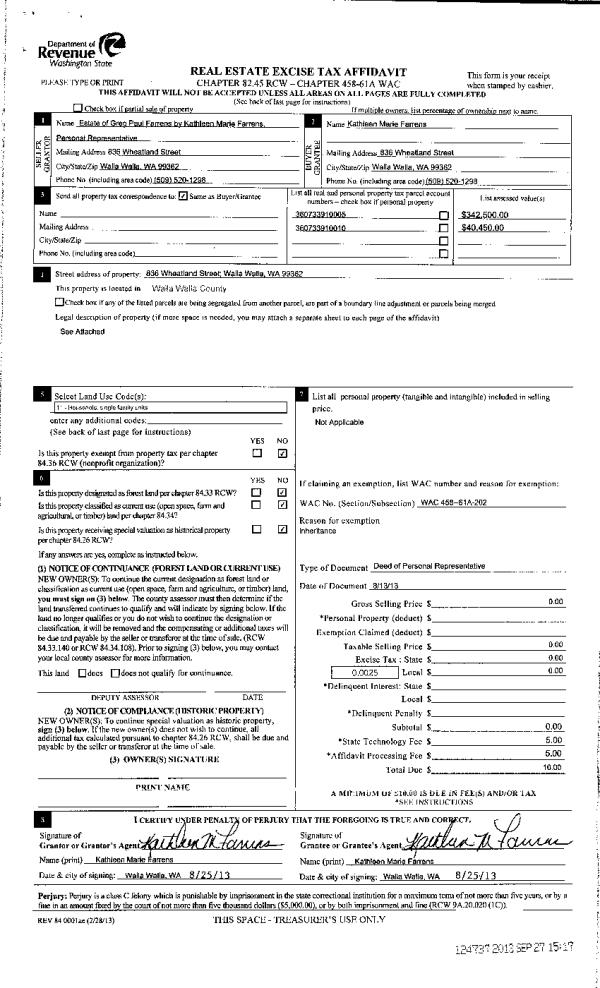
| 2 | 09/27/2013 | WARRANTY D | WARRANTY DEED | "FARRENS, GREG PAUL ESTATE~OF" | | | | | 124737 | 2013-09874 |
| 3 | 06/04/1993 | WARRANTY D | WARRANTY DEED | | | | | $0.00 | 0 | 2079-305552 |
Payout Agreement
| No payout information available.. |