Property
Account |
| Property ID: | 36014 | Abbreviated Legal Description: | SEC 3 TWN 6 RNG 34 LOT B-3 OF SHORT PLAT (WITHIN SW1/4) |
| Parcel Number: | 340603340003 | Agent Code: | |
| Type: | Real | | |
| Tax Area: | 113 - 140-6 | Land Use Code | 11 |
| Open Space: | N | DFL | N |
| Historic Property: | N | Remodel Property: | N |
| Multi-Family Redevelopment: | N | | |
| Township: | 6 | Section: | 3 |
| Range: | 34 |
Location |
| Address: | 154 SONNY LN WA 99362 | Mapsco: | |
| Neighborhood: | G TOUCHET/LOWDEN MH RURAL | Map ID: | |
| Neighborhood CD: | 214663 |
Owner |
| Name: | TALL ALFRED & CLARISSA | Owner ID: | 63942 |
| Mailing Address: | 154 SONNY LN TOUCHET, WA 99360 | % Ownership: | 100.0000000000% |
| | | Exemptions: | |
Taxes and Assessment Details
Property Tax Information as of
02/21/2026
Click on "Statement Details" to expand or collapse a tax statement.
* Please enter a valid date ** Please enter a valid date *
Statement Details |
| | TOTAL: | $0.00 | $0.00 | $0.00 | $0.00 | $0.00 | $0.00 |
|
| | $0.00 | $0.00 | $0.00 | $0.00 | $0.00 | $0.00 |
Values
| (+) Improvement Homesite Value: | + | $0 | |
| (+) Improvement Non-Homesite Value: | + | $477,110 | |
| (+) Land Homesite Value: | + | $0 | |
| (+) Land Non-Homesite Value: | + | $135,030 | |
| (+) Curr Use (HS): | + | $0 | $0 |
| (+) Curr Use (NHS): | + | $0 | $0 |
| | | -------------------------- | |
| (=) Market Value: | = | $612,140 | |
| (–) Productivity Loss: | – | $0 | |
| | | -------------------------- | |
| (=) Subtotal: | = | $612,140 | |
| (+) Senior Appraised Value: | + | $0 | |
| (+) Non-Senior Appraised Value: | + | $612,140 | |
| | | -------------------------- | |
| (=) Total Appraised Value: | = | $612,140 | |
| (–) Senior Exemption Loss: | – | $0 | |
| (–) Exemption Loss: | – | $0 | |
| | | -------------------------- | |
| (=) Taxable Value: | = | $612,140 | |
Taxing Jurisdiction
| Owner: | TALL ALFRED & CLARISSA | | |
| % Ownership: | 100.0000000000% | | |
| Total Value: | $612,140 | | |
| Tax Area: | 113 - 140-6 |
| CERFD | CURRENT EXPENSE REFUND 010 | 0.0000000000 | $612,140 | $612,140 | $0.00 | | |
| CURREXP | CURRENT EXPENSE 010 | 1.0175366760 | $612,140 | $612,140 | $622.87 | | |
| HUMNSERV | HUMAN SERVICES 119 | 0.0250000000 | $612,140 | $612,140 | $15.30 | | |
| SLDREL | SOLDIERS RELIEF 121 | 0.0155990005 | $612,140 | $612,140 | $9.55 | | |
| EMERGSER | EMS 147 | 0.3792580840 | $612,140 | $612,140 | $232.16 | | |
| EMSRFD | EMS REFUND 147 | 0.0000000000 | $612,140 | $612,140 | $0.00 | | |
| FD6EXP | FD #6 EXPENSE 693 | 0.6692985746 | $612,140 | $612,140 | $409.70 | | |
| RLBRFD | RURAL LIBRARY REFUND 623 | 0.0000000000 | $612,140 | $612,140 | $0.00 | | |
| RURALLIB | RURAL LIBRARY 623 | 0.3710609029 | $612,140 | $612,140 | $227.14 | | |
| PORTRFD | PORT REFUND 640 | 0.0000000000 | $612,140 | $612,140 | $0.00 | | |
| PORTWWGEN | PORT OF WW 640 | 0.2460186015 | $612,140 | $612,140 | $150.60 | | |
| SD140BOND | SD #140 BOND 764 | 0.8342371393 | $612,140 | $612,140 | $510.67 | | |
| SD140GEN | SD #140 GENERAL 760 | 2.0646500647 | $612,140 | $612,140 | $1,263.85 | | |
| ST2 | STATE SCHOOL PART 2 600 | 0.8131451643 | $612,140 | $612,140 | $497.76 | | |
| STATESCHL | STATE SCHOOL 600 | 1.5158548041 | $612,140 | $612,140 | $927.92 | | |
| STREFUND | STATE REFUND LEVY 603 | 0.0000000000 | $612,140 | $612,140 | $0.00 | | |
| COROAD | COUNTY ROAD 115 | 1.6549953990 | $612,140 | $612,140 | $1,013.09 | | |
| CRPRD | COUNTY ROAD REFUND 115 | 0.0000000000 | $612,140 | $612,140 | $0.00 | | |
| | Total Tax Rate: | 9.6066544109 | | | | | |
| | | | | Taxes w/Current Exemptions: | $5,880.61 | | |
| | | | | Taxes w/o Exemptions: | $5,880.61 | | |
Improvement / Building
| Improvement #1: | MANUFACTURED HOME | State Code: | 11 | 2536.0 sqft | Value: | $477,110 |
| Exterior Wall: | HARDBOARD | Heating/Cooling: | REV-HEAT-PUMP-W/DUCT | | Number of Bathrooms: | 2.5 | Number of Bedrooms: | 4 | | Plumbing: | 13 | Roof Covering: | COMP SHINGLE |
|
| | Type | Description | Class CD | Sub Class CD | Year Built | Area |
| | MOBHOME | MANUFACTURD HOMES | 1 | 40 | 2000 | 2536.0 |
| | LNTD | LEAN TO DIRT FLOOR | 1 | 40 | 0 | 432.0 |
| | MI1 | MH SET-UP COSTS | 1 | 40 | 0 | 1.0 |
| | POL1 | POLE BUILDING-GRAVEL | 1 | 40 | 0 | 1296.0 |
| | DTG | Detached Garage | 1 | 40 | 2000 | 576.0 |
Sketch
Property Image
Land
| 1 | RES 1 | Converted: Residential | 10.0100 | 0.00 | 0.00 | 0.00 | 1.00 | $135,030 | $0 |
Roll Value History
| 2026 | N/A | N/A | N/A | N/A | N/A |
| 2025 | $524,820 | $135,030 | $0 | $659,850 | $659,850 |
| 2024 | $477,110 | $135,030 | $0 | $612,140 | $612,140 |
| 2023 | $477,110 | $135,030 | $0 | $612,140 | $612,140 |
| 2022 | $298,190 | $135,030 | $0 | $433,220 | $433,220 |
| 2021 | $229,380 | $135,030 | $0 | $364,410 | $364,410 |
| 2020 | $214,770 | $120,000 | $0 | $334,770 | $334,770 |
| 2019 | $214,770 | $120,000 | $0 | $334,770 | $334,770 |
| 2018 | $153,410 | $120,000 | $0 | $273,410 | $273,410 |
| 2017 | $146,100 | $120,000 | $0 | $266,100 | $266,100 |
| 2016 | $146,100 | $120,000 | $0 | $266,100 | $266,100 |
| 2015 | $139,150 | $120,000 | $0 | $259,150 | $259,150 |
| 2014 | $163,700 | $120,000 | $0 | $283,700 | $283,700 |
| 2013 | $163,700 | $120,000 | $0 | $283,700 | $283,700 |
| 2012 | $163,700 | $120,000 | $0 | $0 | $0 |
| 2011 | $163,700 | $120,000 | $0 | $0 | $0 |
| 2010 | $163,700 | $120,000 | $0 | $0 | $0 |
| 2009 | $159,300 | $120,000 | $0 | $0 | $0 |
| 2008 | $159,300 | $120,000 | $0 | $0 | $0 |
| 2007 | $125,000 | $61,500 | $0 | $0 | $0 |
Deed and Sales History
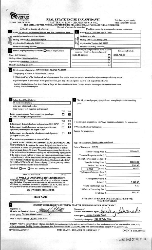
| 1 | 09/21/2018 | SWD | STATUTORY WARRANTY DEED | QUICK PAUL A & KARI A | TALL ALFRED & CLARISSA | | | $419,000.00 | 135583 | 2018-07870 |
| 2 | 10/02/2013 | WARRANTY D | WARRANTY DEED | JESSEE, JAY | QUICK, PAUL A & KARI A | | | $258,000.00 | 124759 | 2013-10012 |
| 3 | 04/02/2010 | WARRANTY D | WARRANTY DEED | JESSEE, JAY & JOAN | JESSEE, JAY | | | | 0 | CC #07-3-00244-2 |
| 4 | 05/30/1996 | WARRANTY D | WARRANTY DEED | | | | | $50,000.00 | 86211 | 2419-605390 |
Payout Agreement
| No payout information available.. |