Property
Account |
| Property ID: | 36013 | Abbreviated Legal Description: | HARRISON SAGE SUBD LOT 8 BLK 8 |
| Parcel Number: | 300812560808 | Agent Code: | |
| Type: | Real | | |
| Tax Area: | 331 - 400-M-5-W4 | Land Use Code | 11 |
| Open Space: | N | DFL | N |
| Historic Property: | N | Remodel Property: | N |
| Multi-Family Redevelopment: | N | | |
| Township: | 8 | Section: | 12 |
| Range: | 30 |
Location |
| Address: | 130 SAGE RD WA 99323 | Mapsco: | |
| Neighborhood: | Burbank A MH | Map ID: | |
| Neighborhood CD: | 213761 |
Owner |
| Name: | LINK MELISSA R | Owner ID: | 62115 |
| Mailing Address: | 130 SAGE RD BURBANK, WA 99323 | % Ownership: | 100.0000000000% |
| | | Exemptions: | |
Taxes and Assessment Details
Property Tax Information as of
02/21/2026
Click on "Statement Details" to expand or collapse a tax statement.
* Please enter a valid date ** Please enter a valid date *
Statement Details |
| | TOTAL: | $0.00 | $0.00 | $0.00 | $0.00 | $0.00 | $0.00 |
|
| | $0.00 | $0.00 | $0.00 | $0.00 | $0.00 | $0.00 |
Values
| (+) Improvement Homesite Value: | + | $0 | |
| (+) Improvement Non-Homesite Value: | + | $242,130 | |
| (+) Land Homesite Value: | + | $0 | |
| (+) Land Non-Homesite Value: | + | $63,890 | |
| (+) Curr Use (HS): | + | $0 | $0 |
| (+) Curr Use (NHS): | + | $0 | $0 |
| | | -------------------------- | |
| (=) Market Value: | = | $306,020 | |
| (–) Productivity Loss: | – | $0 | |
| | | -------------------------- | |
| (=) Subtotal: | = | $306,020 | |
| (+) Senior Appraised Value: | + | $0 | |
| (+) Non-Senior Appraised Value: | + | $306,020 | |
| | | -------------------------- | |
| (=) Total Appraised Value: | = | $306,020 | |
| (–) Senior Exemption Loss: | – | $0 | |
| (–) Exemption Loss: | – | $0 | |
| | | -------------------------- | |
| (=) Taxable Value: | = | $306,020 | |
Taxing Jurisdiction
| Owner: | LINK MELISSA R | | |
| % Ownership: | 100.0000000000% | | |
| Total Value: | $306,020 | | |
| Tax Area: | 331 - 400-M-5-W4 |
| CERFD | CURRENT EXPENSE REFUND 010 | 0.0000000000 | $306,020 | $306,020 | $0.00 | | |
| CURREXP | CURRENT EXPENSE 010 | 1.0175366760 | $306,020 | $306,020 | $311.39 | | |
| HUMNSERV | HUMAN SERVICES 119 | 0.0250000000 | $306,020 | $306,020 | $7.65 | | |
| SLDREL | SOLDIERS RELIEF 121 | 0.0155990005 | $306,020 | $306,020 | $4.77 | | |
| EMERGSER | EMS 147 | 0.3792580840 | $306,020 | $306,020 | $116.06 | | |
| EMSRFD | EMS REFUND 147 | 0.0000000000 | $306,020 | $306,020 | $0.00 | | |
| FD5EXP | FD #5 EXPENSE 689 | 1.2045331840 | $306,020 | $306,020 | $368.61 | | |
| RLBRFD | RURAL LIBRARY REFUND 623 | 0.0000000000 | $306,020 | $306,020 | $0.00 | | |
| RURALLIB | RURAL LIBRARY 623 | 0.3710609029 | $306,020 | $306,020 | $113.55 | | |
| PORTRFD | PORT REFUND 640 | 0.0000000000 | $306,020 | $306,020 | $0.00 | | |
| PORTWWGEN | PORT OF WW 640 | 0.2460186015 | $306,020 | $306,020 | $75.29 | | |
| SD400BOND | SD #400 BOND 793 | 0.0000000000 | $306,020 | $306,020 | $0.00 | | |
| SD400CAP | SD #400 CP 792 | 0.3443722657 | $306,020 | $306,020 | $105.38 | | |
| SD400GEN | SD #400 GENERAL 790 | 1.9278469916 | $306,020 | $306,020 | $589.96 | | |
| ST2 | STATE SCHOOL PART 2 600 | 0.8131451643 | $306,020 | $306,020 | $248.84 | | |
| STATESCHL | STATE SCHOOL 600 | 1.5158548041 | $306,020 | $306,020 | $463.88 | | |
| STREFUND | STATE REFUND LEVY 603 | 0.0000000000 | $306,020 | $306,020 | $0.00 | | |
| COROAD | COUNTY ROAD 115 | 1.6549953990 | $306,020 | $306,020 | $506.46 | | |
| CRPRD | COUNTY ROAD REFUND 115 | 0.0000000000 | $306,020 | $306,020 | $0.00 | | |
| | Total Tax Rate: | 9.5152210736 | | | | | |
| | | | | Taxes w/Current Exemptions: | $2,911.84 | | |
| | | | | Taxes w/o Exemptions: | $2,911.84 | | |
Improvement / Building
| Improvement #1: | MANUFACTURED HOME | State Code: | 11 | 1728.0 sqft | Value: | $242,130 |
| Exterior Wall: | HARDBOARD | Heating/Cooling: | WARM & COOLED AIR | | Number of Bathrooms: | 2 | Number of Bedrooms: | 4 | | Plumbing: | 8 | Roof Covering: | COMP SHINGLE |
|
| | Type | Description | Class CD | Sub Class CD | Year Built | Area |
| | MOBHOME | MANUFACTURD HOMES | 1 | 30 | 2000 | 1728.0 |
| | MI1 | MH SET-UP COSTS | 1 | 30 | 2000 | 1.0 |
| | DTG | Detached Garage | 1 | 30 | 2000 | 572.0 |
| | OPS | OPEN PORCH W/STEPS | 1 | 30 | 2000 | 30.0 |
| | WOD | Wood Deck | 1 | 30 | 2000 | 120.0 |
Sketch
Property Image
Land
| 1 | RES 1 | Converted: Residential | 0.5843 | 25454.00 | 0.00 | 0.00 | 1.00 | $63,890 | $0 |
Roll Value History
| 2026 | N/A | N/A | N/A | N/A | N/A |
| 2025 | $292,980 | $63,890 | $0 | $356,870 | $356,870 |
| 2024 | $266,340 | $63,890 | $0 | $330,230 | $330,230 |
| 2023 | $242,130 | $63,890 | $0 | $306,020 | $306,020 |
| 2022 | $220,120 | $63,890 | $0 | $284,010 | $284,010 |
| 2021 | $129,480 | $63,890 | $0 | $193,370 | $193,370 |
| 2020 | $149,140 | $29,200 | $0 | $178,340 | $178,340 |
| 2019 | $149,140 | $29,200 | $0 | $178,340 | $178,340 |
| 2018 | $149,140 | $29,200 | $0 | $178,340 | $178,340 |
| 2017 | $129,690 | $29,200 | $0 | $158,890 | $158,890 |
| 2016 | $117,900 | $29,200 | $0 | $147,100 | $147,100 |
| 2015 | $117,900 | $29,200 | $0 | $147,100 | $147,100 |
| 2014 | $107,200 | $29,200 | $0 | $136,400 | $136,400 |
| 2013 | $119,100 | $29,200 | $0 | $148,300 | $148,300 |
| 2012 | $112,000 | $29,200 | $0 | $0 | $0 |
| 2011 | $112,000 | $29,200 | $0 | $0 | $0 |
| 2010 | $112,000 | $29,200 | $0 | $0 | $0 |
| 2009 | $113,300 | $29,000 | $0 | $0 | $0 |
| 2008 | $94,700 | $29,000 | $0 | $0 | $0 |
| 2007 | $94,700 | $29,000 | $0 | $0 | $0 |
Deed and Sales History
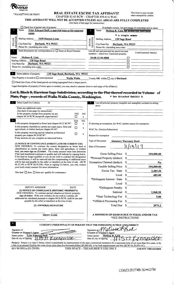
| 1 | 11/16/2017 | SWD | STATUTORY WARRANTY DEED | DUFF TYLER EDWARD | LINK MELISSA R | | | $194,000.00 | 133623 | 2017-09244 |
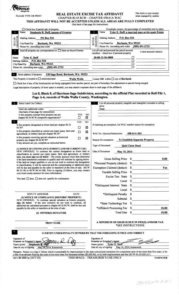
| 2 | 05/19/2014 | QCD | QUIT CLAIM DEED | | DUFF TYLER EDWARD | | | $0.00 | 125916 | 2014-03400 |
| 3 | 05/19/2014 | SWP | Special Warranty Deed | THE SECRETARY OF HOUSING & URBAN DEVELOPMENT | DUFF TYLER EDWARD | | | $97,880.00 | 125915 | 2014-03399 |
| 4 | 09/27/2013 | WARRANTY D | WARRANTY DEED | GMAC MORTGAGE LLC | SECRETARY OF HOUSING & URBAN~D | | | $129,249.00 | 124732 | 2013-09864 |
| 5 | 03/28/2013 | WARRANTY D | WARRANTY DEED | NORTHWEST TRUSTEE SERVICES INC | GMAC MORTGAGE LLC | | | $246,738.00 | 123687 | 2013-02970 |
| 6 | 08/28/2012 | WARRANTY D | WARRANTY DEED | GMAC MORTGAGE CORPORATION | FLOYD, FRED V & LINDA M | | | $0.00 | 0 | 2012-07487 |
| 7 | 10/03/2006 | WARRANTY D | WARRANTY DEED | FLOYD, FRED V & LINDA M | GMAC MORTGAGE CORPORATION | | | $146,362.00 | 111373 | 2006-11942 |
| 8 | 05/12/2003 | WARRANTY D | WARRANTY DEED | BOWELL, JORDAN R & REBECCA | FLOYD, FRED V & LINDA M | | | $129,900.00 | 102058 | 2003-06909 |
Payout Agreement
| No payout information available.. |